Peter Sinneruds veg 2
6 300 000 kr
164 m²
5 soverom
Solgt
Ottestad
Innholdsrik enebolig i Sandvika med flott vinterhage, nydelig solgang og Mjøsutsikt. Dobbelgarasje og carport.
Prisantydning
6 300 000 krOmkostninger
178 490 krTotalpris
6 478 490 kr
Pris
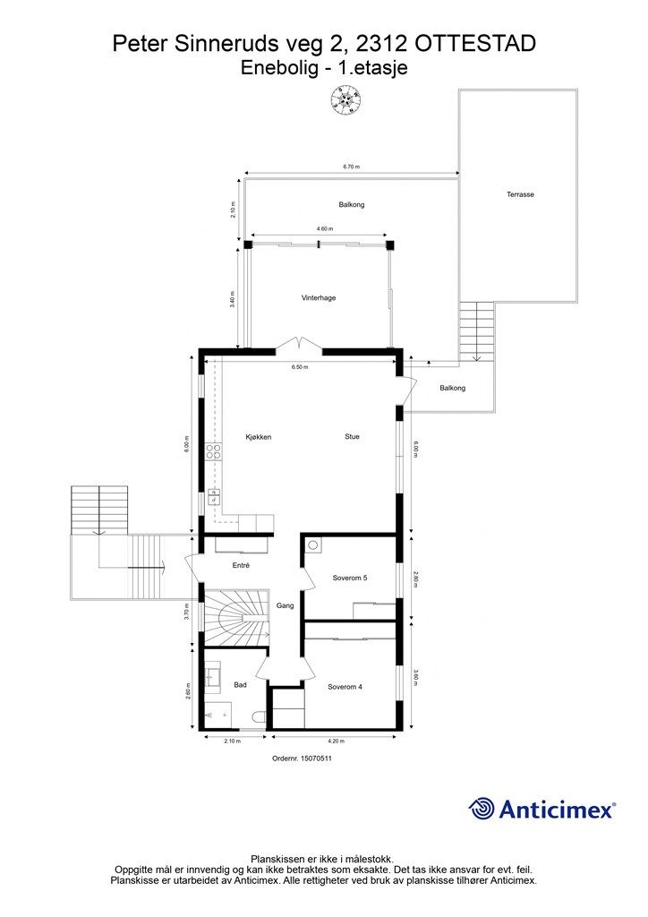
Bruksareal
217 m²BRA-I (internt bruksareal)
164 m²BRA-E (eksternt bruksareal)
37 m²TBA (terrasse-balkongareal)
56 m²
Areal
Byggeår
1976Soverom
5 soveromBad
2 badTomteareal
776 m² (eiet)Type
Enebolig - FrittliggendeEierform
EietFasiliteter
Garasje/P-plass og Balkong/TerrasseEnergimerke
Gul F
Nøkkelinfo
Unngå doble boligrenter
Vi tilbyr gunstig forsikring.
Vurderer du utleie?
Få et tilbud fra Utleie KrogsveenHva koster lånet?
Sjekk estimert lånekostnadBeskrivelse
Kort om eiendommen
En populært beliggenhet i Sandvika hvor man bor omgitt av idyllisk kulturlandskap, samtidig som det er kort vei til Hamar sentrum med alle sine byfasiliteter. En meget god solgang med sol fra morgen til kveld, flott Mjøsutsikt og en lettstelt tomt som er ryddig opparbeidet. Innholdsrik enebolig som går over to plan med blant to baderom, stort kjøkken, vinterhage og eget vaskerom. Gjennomgående moderne og fin standard med kjøkken fra 2018, flislagte baderom, lyse overflater, mye innslipp av naturlig lys og en god sone- og rominndeling med soverom og baderom i begge etasjene. Gode parkeringsforhold med dobbelgarasje, carport og øvrig parkering på tomten. Soverom i kjeller er pt. ikke godkjent til varig opphold, selger har sendt inn søknad for bruksendring.
Velkommen til visning!
Område
Legg til steder som er viktige for deg
På flyttefot? Tenk kjøp og salg samtidig.
Få din egen rådgiver gjennom hele kjøps- og salgsprosessen. Det starter med en verdivurdering.
Unngå doble boligrenter
Vi tilbyr gunstig forsikring.
Vurderer du utleie?
Få et tilbud fra Utleie KrogsveenHva koster lånet?
Sjekk estimert lånekostnadVil du varsles om lignende boliger?
Ved å lagre ditt boligsøk hos oss får du beskjed når vi har en bolig som ligner denne, før den legges ut på markedet!




