Øvre Goslia 10
8 600 000 kr
242 m²
4 soverom
Komplett salgsoppgave

Lommedalen
Panoramautsikt utover Lommedalen med kvelds- og morgensol! Stor gårdsplass | Dobbelgarasje | Kjeller med egen inngang
Prisantydning
8 600 000 krOmkostninger
235 990 krTotalpris
8 835 990 kr
Pris
Bruksareal
273 m²BRA-I (internt bruksareal)
242 m²BRA-E (eksternt bruksareal)
31 m²TBA (terrasse-balkongareal)
60 m²
Areal
Byggeår
1995Soverom
4 soveromBad
2 badTomteareal
1 016 m² (eiet)Type
Enebolig - FrittliggendeEierform
EietFasiliteter
Garasje/P-plass og Balkong/TerrasseEnergimerke
Oransje E
Nøkkelinfo
Unngå doble boligrenter
Vi tilbyr gunstig forsikring.
Vurderer du utleie?
Få et tilbud fra Utleie KrogsveenHva koster lånet?
Sjekk estimert lånekostnadBeskrivelse
Kort om eiendommen
Velkommen til Øvre Goslia 10 – her får du en sjelden kombinasjon av panoramautsikt mot fjorden, solrike uteplasser og naturnære omgivelser! Denne innbydende eneboligen over tre plan byr på en gjennomtenkt planløsning, ski-in/ski-out til Lommedalen skisenter og alle fasiliteter en aktiv familie kan ønske seg.
Høydepunkter:
• Spektakulær panoramautsikt mot fjorden og Bærumsmarka
• Solrike uteplasser m/ morgen- og kveldssol!
• Ski-in/ski-out til Lommedalen skisenter
• Marka og langrennsløyper rett ved
• Dobbelgarasje og stor gårdsplass med plass til flere biler
• 4 gode soverom
• Kjeller med egen inngang - perfekt for gjester eller utleie
• Kort vei til golfbaner, idylliske turområder og servicetilbud
Her bor du med utsikten som bakteppe og opplevelsene rett utenfor døren – året rundt!
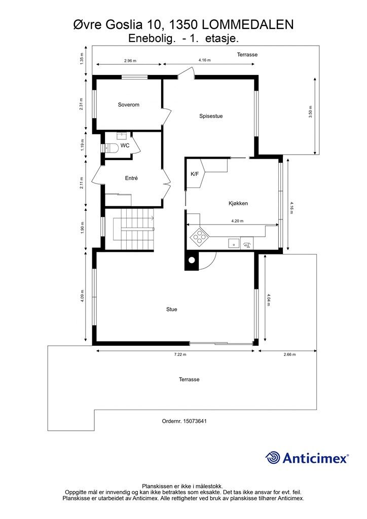
Innhold og byggemåte
Innhold og byggemåte
Eiendommen
Øvre Goslia 10, 1350 LOMMEDALEN
Kommunenummer 3201, gårdsnummer 96, bruksnummer 188
Innhold
Totalt bruksareal BRA: 273 kvm
BRA-i:
Enebolig:
Underetasje: 88 kvm: Gang, bad, badstue, vaskerom, to soverom, stue og tre innvendige boder.
1. etasje 90 kvm: Entré, toalettrom, soverom, stue, spisestue og kjøkken.
2. etasje 64 kvm: Entré, toalettrom, soverom, stue, spisestue og kjøkken.
BRA-e:
Dobbelgarasje:
1. etasje 31 kvm: Garasje.
Åpent areal:
Enebolig:
1. etasje 57 kvm: To terrasser.
2. etasje 3 kvm: Balkong.
Vedlagte plantegninger er ikke målbare. De oppgitte arealer er hentet fra rapport med befaringsdato 24.07.2025 utført av Anticimex AS. Arealene er beregnet og rom er definert etter dagens faktiske bruk, uavhengig av hva som er godkjent av bygningsmyndighetene.
Byggemåte
Selger har fått utarbeidet en tilstandsrapport, dvs. en teknisk gjennomgang av boligen hvor eventuelle avvik, risiko for kjøper og prisoverslag for hva som bør gjøres av oppgradering, er skissert. Se særskilt TGIU (tilstandsgrad ikke undersøkt), samt TG2 og TG3 som viser hva som er boligens normale slitasje, alder og type, hva som er avvik fra dette og hva som bør/må utbedres. Rapporten og selgers egenerklæring er en del av salgsoppgaven og må leses nøye før bud inngis. Kjøper overtar ansvaret for de opplysninger som fremkommer av salgsdokumentasjonen, og kan ikke gjøre gjeldende som mangel noe som burde vært kjent eller som ikke kan anses å ha betydning for avtalen.
Bygning generelt:
- Enebolig fra 1995 over to etasjer, samt underetasje.
- Grunnmur av lettklinkerblokker.
- Etasjeskiller av gassbetong og trekonstruksjoner.
- Bærende konstruksjoner hovedsakelig av trekonstruksjoner.
- Takkonstruksjon utvendig tekket med takstein.
- Utvendige fasader forblendet med trekledning.
- Boligen har entrédør med glassfelt fra byggeår.
- Terrasse skyvedører og balkongdør med 2-lags fra byggeår.
- Vinduer med 2-lags glass fra byggeår.
Teknisk anlegg:
- Vannrør av typen kobberrør og avløpsrør av typen plast.
- Hovedstoppekran for vannrør, stakepunkt for avløpsrør, OSO varmtvannsbereder på ca. 300 liter fra byggeår og ventilasjonsanlegg plassert i underetasje.
- Ventilasjon basert på balansert ventilasjon.
- Sikringsskap med automatsikringer plassert på vegg i innvendig bod.
Les for øvrig mer om byggemåte og den tekniske tilstanden i rapporten.
Det gjøres spesielt oppmerksom på bygningsdeler som har fått TG2 og TG3:
- Våtrom - Underetasje, vaskerom.
- Våtrom - 2. etasje, bad.
- Kjøkken.
- Toalettrom (Ikke våtrom) - 1. etasje.
- Innvendige overflater.
- Det er ikke etablert ventilering av kaldtloft.
- Innvendige trapper.
- Varmtvannsbereder.
- Hovedstoppekran
- el-anlegg.
- Fasade.
- Vinduer og takvinduer.
- Ytterdører.
- Yttertak.
- Rekkverkshøyden på balkong.
- Terrasse.
- Stedvis lite terrengfall vekk fra grunnmuren.
- Drenering.
- Vann- og avløpsledninger.
- Garasje.
- Våtrom - 2. etasje, bad:
Det er foretatt hulltaking og utført fuktmåling med egnet instrument (Protimeter MMS), i tilstøtende rom til våtsone. Det ble ikke registrert forhøyede verdier. Det ble derimot observert kondensproblematikk og fuktmerker innenfor dampsperre på vegg mot våtrommet. Sjablongmessig prisanslag gjelder lokal utbedring. Sjablongmessig prisanslag: kr 10 000 - 50 000,-.
Rekkverk:
Rekkverk ellers rundt boligen i underetasje er i dårlig befatning og må skiftes. Sjablongmessig prisanslag: kr 10 000 - 50 000,-.
TGIU:
- Deler av kaldtloftet ble ikke undersøkt grunnet ingen tilkomstmulighet. Det er risiko for skjulte skader. Oppfølging med jevnlig ettersyn anbefales.
- Badstue er ikke inspisert eller vurdert grunnet redusert tilkomst pga møbler, samt at Badstue mangler ferdigstillelse.
- Innvendige pipeløp og funksjonalitet er ikke vurdert.
- Fundamenter er naturgitt skjult, og det er for øvrig ingen sikre og dokumenterte opplysninger om type fundamenter som huset har.
- Byggegrunnens beskaffenhet er ukjent.
- Forstøtningsmurer er ikke vurdert i sin helhet grunnet redusert adkomst. Anbefales kontrollert i sin helhet når forholdene tilsier dette.
Se supplerende tekst i tilstandsrapporten om bygningsdeler nevnt ovenfor. Kjøper overtar ansvar og risiko for dette.
Standard
Entré:
Lys og innbydende entré med flislagt gulv og varmekabler som gir en lun velkomst. God oppbevaringsplass i praktisk, innebygd garderobe. Fra entréen er det direkte tilgang til toalett – en perfekt løsning for en aktiv familie med barn som løper inn og ut.
Kjøkken:
Romslig og lyst kjøkken fra Sigdal med profilerte fronter og laminert benkeplate. Nedsenket oppvaskkum med armatur. Godt utstyrt med integrert stekeovn, innfelt oppvaskmaskin, integrert kjøleskap og keramisk platetopp med ventilator og belysning. Tre vindusflater på samme side slipper inn rikelig med dagslys og gir en pen utsikt. Her er det også plass til spisebord – perfekt for hyggelige måltider med familie og venner.
Spisestue:
I praktisk tilknytning til kjøkkenet ligger en nydelig spisestue, med god plass til stort spisebord og annet ønsket møblement. Spisestuen har adkomst til terrasse.
Stue – underetasje:
Romslig og hyggelig stue med gode møbleringsmuligheter, perfekt som ekstra oppholdsrom, hjemmekino eller ungdoms-/lekerom. Store vindusflater gir godt dagslys og skaper en lys og luftig atmosfære til tross for beliggenheten i underetasjen. Der er det også lukket vedovn som varmer godt. Rommet har god plass til sofagruppe og kan enkelt tilpasses ulike behov og livsstiler.
Stue - 1. etasje:
Lys og innbydende stue med fleksible møbleringsmuligheter og peisovn som skaper en lun atmosfære på kjølige dager. Peisen er en Jøtul Harmony rentbrennende peisovn med eget luftinntak - egen inn luft til forbrenning i lukket gjennomsiktig peisdør, og ut gjennom pipe slik at den ikke påvirker ventilasjon. Store skyvedører gir flott lysinnslipp og leder deg ut til en nydelig terrasse – perfekt for å nyte solen og utsikten!
Stue – 2. etasje:
Trivelig loftstue som egner seg perfekt som TV-stue, lekerom eller en rolig lesekrok. Herfra er det utgang til en østvendt balkong på ca. 3 m² – ideell for en stille start på dagen.
Soverom:
Boligen har fire gode soverom med plass til seng, garderobe og øvrig møblement. Rommene fremstår lyse og innbydende, og gir fleksible muligheter for barnerom, gjesterom eller hjemmekontor. Det er innebygde skap på 2 soverom i 2.etg.
Bad – 2. etasje:
Pent baderom med flislagt gulv med gulvvarme og flislagte vegger. Himlingsflate med trepanel. Innredet med dobbel servant med armaturer, dusjnisje med dusjarmatur samt flislagt, innebygget badekar med dusjarmatur. Frittstående toalett og mekanisk avtrekk.
Toalettrom (Ikke våtrom) - 1. etasje.
Praktisk toalettrom med flislagt gulv og gulvvarme. Veggene er kledd med tapet, og rommet er utstyrt med servant med armatur, frittstående toalett og mekanisk avtrekk.
Bad – underetasje:
Bad med flislagt gulv med gulvvarme og vegger med kombinasjon av flis og tapet. Himlingsflate med trepanel. Innredet med servant med armatur, dusjhjørne med dusjarmatur og frittstående toalett. Mekanisk avtrekk. TG3 – det må påregnes behov for oppussing.
Vaskerom – underetasje:
Vaskerom med flislagt gulv med gulvvarme og vegger med kombinasjon av flis og tapet. Himlingsflate belagt med Tak-ess-plater. Rommet er utstyrt med utslagsvask med armatur, opplegg for vaskemaskin og OSO varmtvannsbereder på ca. 300 liter. Mekanisk avtrekk.
Badstue – underetasje:
Badstue fra byggeår, tilknyttet badet i underetasjen. Opplegg for elektrisk badstuovn.
Innvendige overflater:
• 1. etasje: Gulvflater belagt med parkettgulv og flislagt gulv. Tapetserte og malte veggflater. Malte himlingsflater. Profilerte innerdører. Ventilasjon
basert på balansert ventilasjon.
• 2. etasje: Gulvflater belagt med parkettgulv. Malte og tapetserte veggflater. Trepanel belagte himlingsflater. Profilerte innerdører. Ventilasjon basert
på balansert ventilasjon.
• Underetasje:
Gulvflater belagt med fliser og vegg til vegg teppe. Tapetserte og malte veggflater. Tak-ess belagte himlingsflater. Profilerte innerdører. Ventilasjon
basert på balansert ventilasjon.
Løsøre og tilbehør
Vi viser til liste fra Norges Eiendomsmeglerforbund som gjelder fra 01.01.2020 angående løsøre og tilbehør.
Oppvarming
Oppvarming via elektrisitet og vedfyring.
Dersom beboelsesrom ikke har vegg- eller fastmonterte varmekilder ved visning, følger dette heller ikke med.
Ferdigattest/brukstillatelse
Det foreligger ferdigattest på eiendommen, datert 20.03.1996. Denne kan fås ved henvendelse til megler.
Det foreligger kun igangsettelsestillatelse på garasjen, datert 11.06.1998. Det foreligger ikke ferdigattest.
Garasjen er byggesøkt om 30.12.1997. Rammetillatelse er gitt 7. april 1998 med henvisning til søknad og søkedato 31.12.1997. Igangsettelsestillatelse er gitt 11.juni 1998 med henvisning til rammetillatelse.
Det gjøres oppmerksom på at det ikke lenger utstedes ferdigattest på tiltak det er søkt om før 1998 jf. plan- og bygningsloven § 21-10. Kommunen vil ikke kreve ferdigattest for disse tiltakene og vil avvise eventuelle søknader. Bestemmelsen innebærer ikke at tiltak med manglende søknad blir lovlige, men at man ikke trenger å avslutte gamle byggesaker. Normalt sett kreves ferdigattest for alle søknadspliktige tiltak som gjøres etter plan- og bygningsloven. Kjøper overtar ansvar og risiko for dette.
Tinglyste heftelser og rettigheter
Eiendommen overdras fri for pengeheftelser.
Det er ingen tinglyste servitutter på eiendommen.
Eventuell adgang til utleie
Eiendommen har ikke separat utleieenhet. Det vil normalt være anledning til utleie av hele eiendommen eller enkeltrom, såfremt utleiearealet er bygningsmessig godkjent for varig opphold og har forsvarlige radonnivåer.
Diverse
Tilbud av produkter og tjenester fra våre samarbeidspartnere
VI er opptatt av verdiskapning, og har knyttet til oss samarbeidspartnere som skal sikre våre kunder de beste produkter og tjenester;
• Gjensidige leverer boligselgerforsikring og tilbyr bygningsforsikring
• Boligkjøperforsikring levers av Hiscox og med Sedgwick som skadebehandler, og er formidlet gjennom Gjensidige.
• BN bank tilbyr finansieringsløsninger
• Vår avdeling Krogsveen Pluss tilbyr flyttetjenester som utvask, visningsvask, lager, tømming og transport av flyttelass, i tillegg til å formidle kontakt med Flip for overflateoppussing.
• I forbindelse med overtagelse av eiendommen tilbyr Overo avtale om strøm, alarm og bredbånd.
• Krogsveen er, sammen med øvrige bransjeaktører, medeier i den digitale annonseringsplattformen Hjem.
Beliggenhet og tomteforhold
Beliggenhet og tomteforhold
Beliggenhet
Rekreasjon og fritid:
I umiddelbar nærhet finner du Lommedalshallen og Lommedalen idrettsanlegg med to flotte kunstgressbaner. Dette er også hovedkvarteret til Lommedalen IL, som tilbyr et bredt spekter av idrett for barn i alle aldre. Fotball, håndball, langrenn, hopp, basket, alpint og freeski er noe av det de tilbyr.
Lommedalen har utallige stier og veier ut i marka. Fra By er det flotte tur- og sykkelstier innover mot Tverrelva, disse blir til skiløyper på vinteren. Løypene fra By går over til Sundvollen om du er glad i lange turer. Tobonn er også et fint utgangspunkt for gå-/sykkelturer i marka på sommerhalvåret. Burudvann ligger ca. 10-15 minutters gange fra parkeringsplassen øverst i Burudveien. Dette er en populær badeplass som ble vesentlig oppgradert av kommunen i 2015-2016. På Gullhaug, som ligger ca. 8 minutter unna med bil, ligger det en stor skistadion og ca. 8 km med lysløype om du ønsker å gå en skitur etter en hektisk dag. Det er når forholden tillater det skispor like ved eiendommen fra toppen av slalåmbakken. Men uansett mulig å gå på ski inn i marka fra huset. Det er direkte fra huset tilgang til marka/Krokskogen med starthøyde på 280 moh. Eine og Isi naturreservat er 30 min unna i gange på sti i marka.
Er du glad i golf ligger både Lommedalen Golfklubb og Bærum Golfklubb kun ca. 5 minutter unna med bil, sistnevnte med en flott 18 hulls bane, samt en 9-hulls treningsbane for nybegynnere.
Lommedalen skisenter ligger i umiddelbar nærhet til boligen med ski-in ski-out, og Kolsås Skisenter ligger ca. 10 minutter unna med bil. Begge anleggene har bakke for både store og små. Det er også slalåmtrening og alpingruppe i begge bakkene.
Servicetilbud m.m:
Kun 5 minutter unna ligger en stor Rema 1000 med svært godt utvalg og post i butikk.
Det tar ca. 5-6 minutter med bil eller buss ned til historiske og tradisjonsrike Bærums Verk. Stedet så dagens lys i 1610 og er blant Norges eldste industri- og handelssteder. Her finner du BV-kjøpesenter med et godt utvalg av butikker bla. Stor Meny, Cubus, Vitus apotek, eksklusive Verket interiør for å nevne noe. Det er Vinmonopol på senteret. I Verksgata finner man et stort utvalg av små utsalgs-steder og restauranter f.eks. Melboden og Pannekakehuset. Det er også Rema 1000, Baker Hansen, Maxbo, frisør, tannlege, fastlege samt. VERTSHUSET, Norges eldste restaurant på Bærums Verk.
I desember blir Verksgaten fylt med utsalgsboder og juledekorasjoner. Her er det også julegrantenning og dette er et perfekt sted å komme i julestemning for både barn og voksne. På 17. mai er det et stort arrangement i Verksgata, med forskjellige leker for barn.
Offentlig transport:
Både Slalåmveien, Eineveien og Trulsrud busstopp ligger ca. 2 km fra boligen. Her går (210 Sandvika) hvert kvarter i rushtiden og hver 20. minutt ellers. Skal du mot Oslo kan du bytte buss på Bærums Verk og ta (150 Oslo bussterminal) mot Bekkestua og Oslo. Det er ca. 15 minutter med bil til Kolsås. Her er det bygd opp et stor innfartsparkering med over 200 plasser. T-banen tar deg til Oslo sentrum på ca. 26 minutter. Fra Sandvika går det buss til store deler av Bærum. Det går også tog mot både Oslo og Asker/Drammen. Flytoget stopper her hele døgnet og tar deg til Gardermoen på ca. 40 minutter.
Adkomst
Det vil bli skiltet med Krogsveen visningsskilt ved fellesvisninger.
Barnehager, skoler og fritid
Barnehager:
- Lommedalen barnehage avd. Krydsby
- Reddiken Kanvas barnehage
- Skarva barnehage
- Grindaberget barnehage
Barneskole:
- Gullhaug
- Lommedalen
Ungdomsskole:
- Mølladammen
Informasjon om tilhørende skolekretser er hentet fra Prognosesenteret som dataleverandør og tilhørigheten kan årlig endres av kommunen. Dersom skole- og barnehagetilbud er av betydning for kjøpet, ber vi om at det rettes en særskilt henvendelse til kommunen for oppdatert informasjon.
Beskrivelse av tomt
Eiertomt på 1 016 kvm. Tomt opparbeidet med blant annet plen, diverse beplantning og belegningsstein belagt innkjørsel.
Parkering
Parkering i dobbelgarasje. Ellers god plass til gjesteparkering på gårdsplassen.
Vei, vann og avløp
Eiendommen har adkomst via privat vei med felles vedlikeholdsansvar.
Eiendommen er tilknyttet kommunalt ledningsnett via private stikkledninger. Eier er selv ansvarlig for private stikkledninger til boligen.
Regulerings-og arealplaner
Eiendommen er regulert til frittliggende småhusbebyggelse i henhold til reguleringsplan GOSLIA datert 22.05.1986 med tilhørende reguleringsbestemmelser.
Byggesaker i nærområdet:
Byggesak - 2023/19970: Øvre Goslia 11 - fasadeendring - utgraving av kjeller.
Utsnitt av plan med tilhørende bestemmelser kan fås ved henvendelse til megler.
Økonomi
Økonomi
Kommunale utgifter
Kommunale avgifter var kr 27 065,- 2024. I dette inngår gebyr for vann, avløp, renovasjon og feiing/tilsyn.
Nåværende eier har et strømforbruk som tilsvarer ca. kr 25 000,- pr. år. / 24 000 kwh. pr. år.
Boligen har en årlig forsikringspremie på kr 9 475,-.
Velavgift er kr 1000,- pr. år. og inklderer blant annet brøyting og vedlikehold av vei.
Boligen er tilknyttet Altibox / Viken fiber som leverandør av fibernett. Dekoder medfølger ikke.
Utgiftene er basert på nåværende eiers forbruk og avtaler.
Formuesverdi
Formuesverdi for 2023 var kr 1 785 862,- ifølge skatteetaten. Beløpet forutsetter at eier bor fast i boligen (primærbolig).
Ved eventuell øvrig bruk av eiendommen (f.eks. fritidsbolig, pendlerbolig, utleieobjekt) var formuesverdien for 2023 kr 7 143 449,-.
Formuesverdien justeres normalt årlig. Se skatteetaten.no for mer informasjon om fastsettelse av formuesverdien.
Eiendomsskatt
Det er p.t ikke vedtatt eiendomsskatt for eiendommer i kommunen.
Omkostninger
8 600 000,00 Prisantydning
Omkostninger
215 000,00 Dokumentavgift til staten (2,5% av kjøpesum)
19 900,00 Gjensidige Boligkjøperpakke (valgfri)* (valgfritt)
545,00 Tinglysing panterettsdokument
545,00 Tinglysing skjøte
--------------------------------------------------------
216 090,00 (Omkostninger totalt (uten Gjensidige Boligkjøperpakke (valgfri)))
235 990,00 Omkostninger totalt (med Gjensidige Boligkjøperpakke (valgfri)))
--------------------------------------------------------
8 816 090,00 Totalpris inkl. omkostninger
8 835 990,00 Totalpris inkl. omkostninger (med Gjensidige Boligkjøperpakke (valgfri))
--------------------------------------------------------
Tilbud om lånefinansiering
Megler formidler gjerne kontakt med rådgiver hos vår samarbeidspartner BN Bank. De har konkurransedyktige betingelser samt rask og løsningsorientert behandling av din lånesøknad. Krogsveen mottar et honorar for denne formidlingen.
Betalingsbetingelser
Kjøpesum inkludert omkostninger, samt pantedokument tilknyttet eventuelt lån, skal være disponibelt hos megler 2 virkedager før overtagelsen.
Annen viktig informasjon
Annen viktig informasjon
Eier
Reidar Kleppe
Overtakelse
Etter nærmere avtale.
Boligselgerforsikring
Selger har i forbindelse med salget tegnet boligselgerforsikring levert av Gjensidige.
Boligselgerforsikringen dekker selgers ansvar etter avhendingsloven begrenset oppad til kr 14 millioner. Dersom kjøper oppdager forhold ved eiendommen som hen mener utgjør en mangel ved eiendommen, vil Gjensidige behandle reklamasjonen på vegne av selger. Forsikringsvilkår kan fås ved henvendelse til megler.
Vedlagt salgsoppgaven følger selgers egenerklæringsskjema og tilstandsrapport. Interessenter må sette seg inn i dokumentene før bud inngis.
Boligkjøperforsikring
Innen kontraktsmøtet må kjøper ta stilling til om det ønskes å bestille Boligkjøperpakken gjennom Gjensidige. I denne gunstige pakken er boligen ferdig forsikret og inkluderer rettshjelpsforsikring, også kalt Boligkjøperforsikring. Rettshjelpsforsikring gir trygghet og tilgang på profesjonell juridisk hjelp dersom det oppdages uventede feil eller mangler det første året etter overtagelse. Forsikringsselskapet behandler i så fall ethvert mangelskrav kjøper måtte ha overfor selger.
Boligkjøperpakken inkluderer bygningsforsikring for hus og hytte, innboforsikring, flytteforsikring og dobbel rentedekning - i situasjoner hvor kjøper ikke får solgt nåværende primærbolig.
Kjøper mottar ingen særskilt faktura for Boligkjøperpakken da kostnaden det første året legges til kjøpesummen for boligen. Det gjøres oppmerksom på Krogsveen mottar et honorar for denne formidlingen.
Produktark for Boligkjøperpakken ligger vedlagt i salgsoppgaven.
Dersom ikke boligkjøperpakke ønskes kan kun rettshjelpsforsikring, også kalt boligkjøperforsikring, tegnes særskilt via megler. Rettshjelpsforsikringen varer i 5 år fra overtagelse og leveres gjennom Gjensidige. Ta kontakt med megler for ytterligere informasjon.
Selskap og privatpersoner som driver med kjøp/salg/utvikling som ledd i egen næringsvirksomhet kan ikke tegne boligkjøperpakke eller rettshjelpsforsikring.
Budgivning
Forbrukerinformasjon om budgivning er vedlagt denne salgsoppgaven og er også på vår hjemmeside Krogsveen.no. Alle bud og budforhøyelser må inngis skriftlig. I tillegg må legitimasjon være fremlagt sammen med signatur fra budgiver.
Vi oppfordrer til å gi bud elektronisk via GI BUD-knappen på eiendommens hjemmeside på Krogsveen.no. Da vil samtlige vilkår bli oppfylt.
Eventuelle forhøyelser eller endringer av budet kan bekreftes pr SMS eller på e-post. Vi oppfordrer alltid til å kontakte megler pr. telefon i tillegg da forsinkelser i SMS og e-post kan forekomme.
For at budene skal kunne bli behandlet og videreformidlet skriftlig til alle involverte parter, må alle bud ha en tilstrekkelig lang akseptfrist, jf. eiendomsmeglingsforskriften § 6-3.
Selger må også skriftlig akseptere budet før aksept kan formidles til budgiver. Akseptfrist bør derfor være på minimum 30 minutter, og budforhøyelser må derfor skje i god tid før fristens utløp.
Bud i forbrukerforhold kan uansett ikke settes med kortere frist enn kl. 12.00 første virkedag etter siste annonserte visning. I tillegg kan ikke budet ha forbehold om at det skal holdes hemmelig ovenfor øvrige interessenter. Megler har iht lov om eiendomsmegling ikke anledning til å videreformidle disse budene, og de vil dermed heller ikke bli journalført.
Etter at eiendommen er solgt vil kjøper og selger få tilsendt budjournal. Øvrige budgivere kan få utlevert kopi av budjournalen i anonymisert form.
Hvitvaskingsreglene
I henhold til lov om hvitvasking og terrorfinansiering har megler plikt til å gjennomføre kontrolltiltak overfor kunder, herunder fullmektiger. Dette innebærer bl.a. å bekrefte kunders og reelle rettighetshaveres identitet på bakgrunn av fremvist gyldig legitimasjon eller på annen godkjent måte, samt å innhente opplysninger om kundeforholdets formål og tilsiktede art.
Dersom slike kundetiltak ikke kan gjennomføres, kan megler ikke etablere kundeforholdet eller utføre transaksjonen.
Hvis kjøper ikke bidrar til gjennomføring av kundekontrollen og dette fører til at transaksjonen blir forsinket eller ikke kan gjennomføres, vil dette ansees som mislighold av avtalen og gi selger rettigheter etter avhendingslova kapittel 5. I tilfeller der selger ikke bidrar til gjennomføring av løpende kundekontroll underveis i oppdraget, er det selger som misligholder sine forpliktelser etter avtalen og gi kjøper rettigheter etter avhendingslovens kapittel 4. Partene er selv ansvarlige for eventuelle kostnader og ansvar dette kan medføre. Eiendomsmegleren eller eiendomsmeglingsforetaket kan ikke holdes ansvarlig for de konsekvenser dette vil kunne få for partene eller andre som har interesser i eiendomshandelen.
Kjøper oppfordres til å innbetale kjøpesummen som ikke kommer fra låneinstitusjon i én samlet innbetaling fra egen konto i norsk bank. Megler har plikt til å melde fra til Økokrim om eiendomshandler som fremstår som mistenkelige. Melding sendes Økokrim uten at partene varsles.
Personopplysningsloven
I henhold til personopplysningsloven gjør vi oppmerksom på at interessenter kan bli registrert for videre oppfølging.
Lovanvendelse
Generelle bestemmelser
Salgsoppgaven er basert på de opplysningene selger har gitt til megler, den bygningssakyndiges tilstandsrapport, samt opplysninger innhentet fra kommunen, Kartverket og andre tilgjengelige kilder. Det er viktig at kjøper setter seg grundig inn i alle salgsdokumentene, herunder salgsoppgave, tilstandsrapport og selgers egenerklæring. Kjøper anses kjent med forhold som er tydelig beskrevet i salgsdokumentene, og slike forhold kan ikke påberopes som mangler. Dette gjelder uavhengig av om kjøper har lest dokumentene. Alle interessenter oppfordres til å undersøke eiendommen nøye, gjerne sammen med fagkyndig før bud inngis. Kjøper som velger å kjøpe usett kan ikke gjøre gjeldende som mangel noe han burde blitt kjent med ved undersøkelsen.
Dersom det er behov for avklaringer, anbefaler vi at interessenter rådfører seg med eiendomsmegler eller egne rådgivere før det legges inn bud.
En bolig som har blitt brukt i en viss tid, har vanligvis blitt utsatt for slitasje og skader kan ha oppstått. Slik bruksslitasje må kjøper regne med, og det kan avdekkes enkelte forhold etter overtakelse som nødvendiggjør utbedringer. Normal slitasje og skader som nødvendiggjør utbedring, er innenfor hva kjøper må forvente og vil ikke utgjøre en mangel.
Kjøper og selgers rettigheter og plikter reguleres av avtalen mellom partene, samt informasjonen som har vært tilgjengelig for kjøperen i forbindelse med handelen. Avtalen utfylles av avhendingsloven, og det gjelder ulike avtalevilkår avhengig av om kjøper er forbrukerkjøper eller ikke. Dette er nærmere beskrevet nedenfor.
På grunn av ulike avtalevilkår kan selger vurdere bud fra en som ikke er forbruker, ulikt fra en forbrukers bud. Dersom kjøper ikke er forbruker, er selger sitt mulige mangelsansvar begrenset fordi eiendommen selges "som den er". Selger kan ikke ta «som den er»- forbehold overfor en forbrukerkjøper. Selv et lavere bud fra en som ikke er forbruker kan foretrekkes fordi begrensningen i mulig mangelsansvar kan ha egenverdi for selger. Selger står fritt til å forkaste eller akseptere ethvert bud, og er for eksempel ikke forpliktet til å akseptere høyeste bud.
Budgiver skal i budskjema avgi egenerklæring om budgiver er forbruker eller næringsdrivende/ person som hovedsakelig handler som ledd i næringsvirksomhet. Budgivere får informasjon dersom andre bud er inngitt av en som ikke er forbruker.
Forbrukerkjøp - definisjon
Med forbrukerkjøp menes kjøp av eiendom når kjøperen er en fysisk person som ikke hovedsakelig handler som ledd i næringsvirksomhet.
Forbruker – avtalevilkår
Eiendommen har en mangel dersom den ikke er i samsvar med kravene som følger av avtalen, eller det foreligger brudd på bestemmelsene i avhendingsloven §§ 3-2 til 3-8. Hvis eiendommen ikke er i samsvar med det kjøperen må kunne forvente ut ifra alder, type og synlig tilstand, kan det være grunnlag for mangelskrav. Det samme gjelder hvis det er holdt tilbake eller gitt uriktige opplysninger om eiendommen. Dette gjelder likevel bare dersom man kan gå ut ifra at det virket inn på avtalen at opplysningen ikke ble gitt eller at mangelskravet ikke blir rettet i tide på en tydelig måte.
Boligen kan ha en mangel etter avhendingsloven § 3-3 andre ledd, dersom det er avvik mellom opplyst og faktisk innvendig areal, forutsatt at avviket er på 2% eller mer og minimum 1 kvm.
Ved beregning av et eventuelt prisavslag eller erstatning må kjøper selv dekke tap/kostnader opptil et beløp på kr 10 000 (egenandel).
Ikke-forbruker (næringsdrivende) – definisjon
Hvis kjøper er en juridisk person, eller en fysisk person som hovedsakelig handler som ledd i næringsvirksomhet, vil kjøpet ikke anses som et forbrukerkjøp.
Ikke-forbruker – avtalevilkår
Eiendommen har en mangel dersom den ikke er i samsvar med kravene som følger av avtalen.
Eiendommen selges «som den er», og selgers ansvar utover det konkret avtalte er da begrenset etter avhendingsloven § 3-9, første ledd andre setning.
Avhendingsloven § 3-3 andre ledd fravikes, og hvorvidt boligens arealsvikt utgjør en mangel vurderes etter avhendingsloven § 3-8.
Informasjon om kjøpers undersøkelsesplikt, herunder oppfordringen om å undersøke eiendommen nøye, gjelder også for kjøpere som ikke anses som forbrukere.
Det forutsettes at hjemmel overføres til kjøper. Hvis kjøper ikke ønsker hjemmelsoverføring av eiendommen, må det tas forbehold om dette i budet.
Meglers vederlag
Meglers vederlag betales av selger og er avtalt til:
Vederlag: 1,00 % av salgssummen inkl. eventuell fellesgjeld.
Vederlag
Foto Enebolig kr 6 500,00
Foto Kveld kr 5 000,00
Kontroll av hjemmel og heftelser kr 2 900,00
Markedsføringspakke kr 28 250,00
Oppgjør kr 7 500,00
Tilrettelegging kr 17 000,00
Visninger pr stk / Overtagelse kr 4 000,00
Utlegg
Innhenting av offentlig opplysninger Bærum kommune kr 4 426,00
Tinglysing sikring kr 545,00
Andre utgifter
Tilstandsrapport inkl. målsatte tegninger kr 20 701,00
Boligselgerforsikring kr 62 239,00
Opplysninger om oppdraget
Oppdragsnummer 10-0180/25
Eiendomsmegler Krogsveen AS, avd. Bærum
Gml. Ringeriksvei 40, 1357, BEKKESTUA
950 007 613
Oppdragets KR-kode KR10.25180
Dato
Sist oppdatert: 13. april 2026 kl. 10:26
Dokumenter
Dokumenter
PDF – 642 KB
PDF – 452 KB
PDF – 946 KB
PDF – 312 KB
PDF – 29 KB
PDF – 127 KB
PDF – 392 KB
Område
Legg til steder som er viktige for deg
Visning
Unngå doble boligrenter
Vi tilbyr gunstig forsikring.
Vurderer du utleie?
Få et tilbud fra Utleie KrogsveenHva koster lånet?
Sjekk estimert lånekostnadVil du varsles om lignende boliger?
Ved å lagre ditt boligsøk hos oss får du beskjed når vi har en bolig som ligner denne, før den legges ut på markedet!














































