Halvdan Svartes gate 19B
3 350 000 kr
134 m²
3 soverom
Solgt

Ekeberg/nær sentrum og Bugården
BUD INNKOMMET - Pen halvpart av vertikaldelt tomannsbolig i sentrale omgivelser - hage - 3 soverom - garasje - kort vei til Svgs
Prisantydning
3 350 000 krOmkostninger
104 740 krTotalpris
3 454 740 kr
Pris
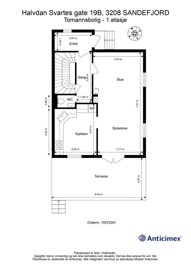
Bruksareal
156 m²BRA-I (internt bruksareal)
134 m²BRA-E (eksternt bruksareal)
22 m²TBA (terrasse-balkongareal)
19 m²
Areal
Etasje
2Byggeår
1947Soverom
3 soveromBad
1 badTomteareal
297 m² (eiet)Type
Halvpart vertikaldelt boligEierform
EietFasiliteter
Garasje/P-plass og Balkong/TerrasseEnergimerke
Oransje G
Nøkkelinfo
Unngå doble boligrenter
Vi tilbyr gunstig forsikring.
Vurderer du utleie?
Få et tilbud fra Utleie KrogsveenHva koster lånet?
Sjekk estimert lånekostnadBeskrivelse
Kort om eiendommen
Velkommen til Halvdan Svartes gate 19 b. Her bor du rett utenfor selve bykjernen, men likevel svært sentralt. Hvis byens fasiliteter frister er det kun en kort spasertur til sentrum og Indre Havn. Fra boligen er det også kort rusleavstand til populære og velkjente Bugårdsparken med opplyst tur- og joggeløype, svømmehall, frisbeebane, tennisbaner og øvrig idrettsanlegg. Sandefjord VGS finnes kun 500 meter unna. Videre er det kort vei til både skoler og barnehager.
Boligen ligger i rolige omgivelser med skjermet og koselig hage. Uteområdene er vendt mot syd/vest og har rikelig med sol. Boligen er innholdsrik og har en praktisk planløsning med blant annet stor stue, kjøkken i eget rom, 3 soverom, kjeller med vaskerom og kjellerstue (ikke godkjent for varig opphold). Velkommen til visning.
Område
Legg til steder som er viktige for deg
På flyttefot? Tenk kjøp og salg samtidig.
Få din egen rådgiver gjennom hele kjøps- og salgsprosessen. Det starter med en verdivurdering.
Unngå doble boligrenter
Vi tilbyr gunstig forsikring.
Vurderer du utleie?
Få et tilbud fra Utleie KrogsveenHva koster lånet?
Sjekk estimert lånekostnadVil du varsles om lignende boliger?
Ved å lagre ditt boligsøk hos oss får du beskjed når vi har en bolig som ligner denne, før den legges ut på markedet!

