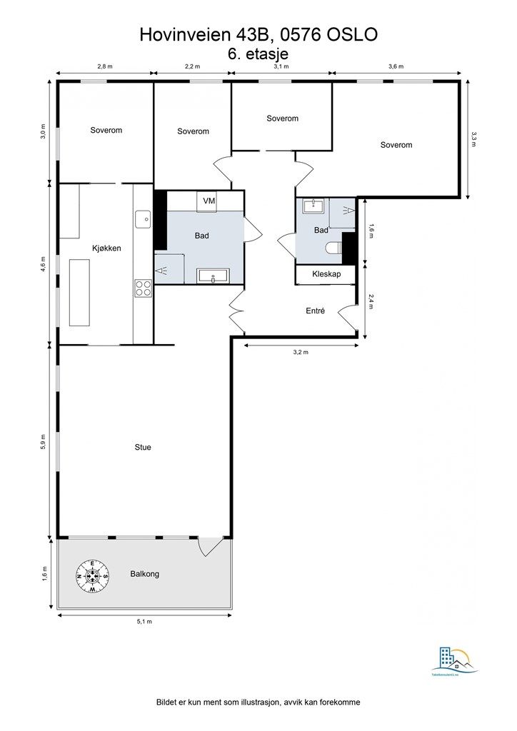
Hovinveien 43B
10 750 000 kr
111 m²
4 soverom
Solgt

Presenteres av
Simen Istre GrevskottMarienfryd / Hasle
Strøken topp- og endeleilighet med solrik vestvendt balkong-4 soverom & 2 baderom-Lyst, luftig og usjenert-Garasjeplass
Prisantydning
10 750 000 krOmkostninger
280 640 krTotalpris
11 030 640 kr
Pris
Bruksareal
122 m²BRA-I (internt bruksareal)
111 m²BRA-E (eksternt bruksareal)
11 m²TBA (terrasse-balkongareal)
8 m²
Areal
Etasje
6Byggeår
2013Soverom
4 soveromBad
2 badType
EierleilighetEierform
EierseksjonFasiliteter
Garasje/P-plass, Heis og Balkong/TerrasseFellesutgifter
5 926 krEnergimerke
Grønn D
Nøkkelinfo
Unngå doble boligrenter
Vi tilbyr gunstig forsikring.
Vurderer du utleie?
Få et tilbud fra Utleie KrogsveenHva koster lånet?
Sjekk estimert lånekostnadBeskrivelse
Kort om eiendommen
Simen Istre Grevskott har gleden av å presentere denne moderne og familievennlige 5-roms leiligheten med en solrik balkong, beliggende høyt i 6. etasje med heisadkomst. Boligen holder en god standard med TG 1 på de fleste punkter i tilstandsrapporten. Leiligheten har svært attraktiv beliggenhet i frodige og idylliske Utsiktskvartalet, Tiedemannsbyen. Denne vil du ikke gå glipp av!
Kvaliteter:
Familievennlig leilighet med fire gode soverom
Gjennomgående og romslig planløsning med mye lysinnslipp
To delikate baderom
Vestvendt balkong med gode solforhold
Kort vei til servicetilbud og fasiliteter
God oppbevaringsplass i kjellerboder
A-konto fjernvarme og bredbånd inkl.
Garasjeplass
Kort vei til Hasle T-bane (linje 5) og Ensjø T-bane (linje 1-4)
Område
Legg til steder som er viktige for deg
På flyttefot? Tenk kjøp og salg samtidig.
Få din egen rådgiver gjennom hele kjøps- og salgsprosessen. Det starter med en verdivurdering.
Unngå doble boligrenter
Vi tilbyr gunstig forsikring.
Vurderer du utleie?
Få et tilbud fra Utleie KrogsveenHva koster lånet?
Sjekk estimert lånekostnadVil du varsles om lignende boliger?
Ved å lagre ditt boligsøk hos oss får du beskjed når vi har en bolig som ligner denne, før den legges ut på markedet!
På flyttefot? Slik gjør vi det enklere for deg
Skreddersydd flyttepakke
Vi fikser håndverkere, vask, pakking, lagring og transport, og legger ut for utgiftene underveis.
Hjelp med både kjøp og salg
Hos oss har du din egen rådgiver gjennom hele kjøps- og salgsprosessen.
Hjelp til finansiering
Vårt samarbeid med BN Bank sikrer deg rask og løsningsorientert hjelp, til konkurransedyktige betingelser.

