Abildsøfaret 14
11 150 000 kr
141 m²
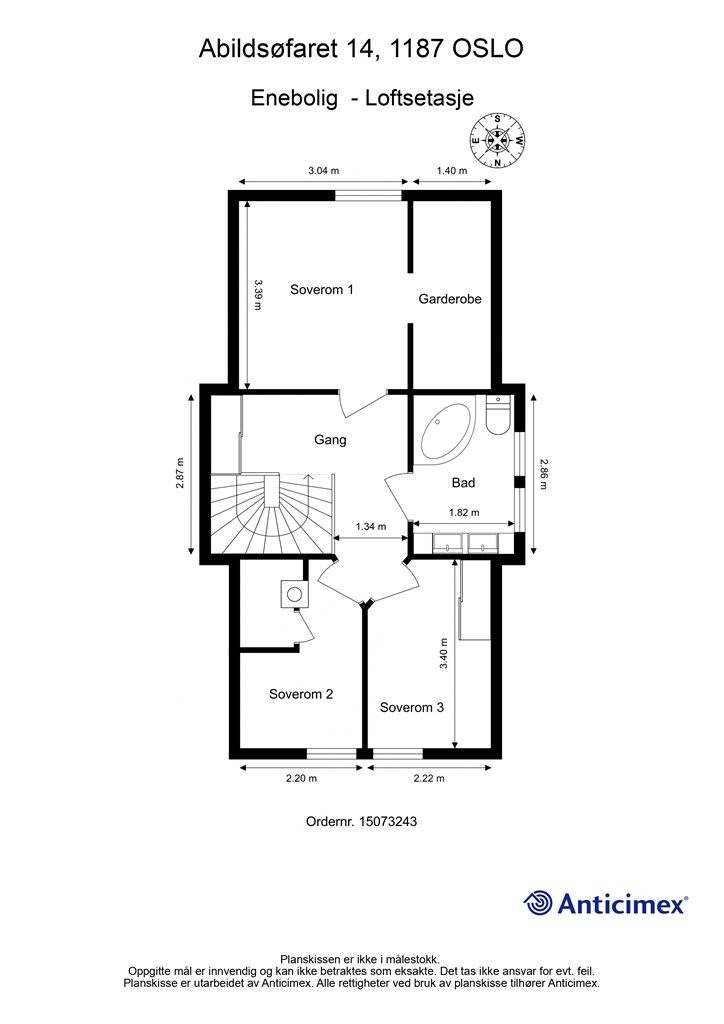
3 soverom
Solgt
Idyll på Abildsø
Skjermet og moderne enebolig o/3 plan med stor, flat og solrik hage | Garasje + p-plasser | Kjeller m/ egen inngang
Prisantydning
11 150 000 krOmkostninger
299 740 krTotalpris
11 449 740 kr
Pris
Bruksareal
177 m²BRA-I (internt bruksareal)
141 m²BRA-E (eksternt bruksareal)
36 m²TBA (terrasse-balkongareal)
17 m²
Areal
Etasje
3Byggeår
1998Soverom
3 soveromBad
2 badTomteareal
610 m² (eiet)Type
Enebolig - FrittliggendeEierform
EietFasiliteter
Garasje/P-plass og Balkong/TerrasseEnergimerke
Oransje D
Nøkkelinfo
Unngå doble boligrenter
Vi tilbyr gunstig forsikring.
Vurderer du utleie?
Få et tilbud fra Utleie KrogsveenHva koster lånet?
Sjekk estimert lånekostnadDette liker selger best ved boligen
Et fantastisk solrikt uteområde i et rolig og hyggelig nabolag, samt at boligen fremstår veldig moderne og velholdt.
Beskrivelse
Kort om eiendommen
Velkommen til Abildsøfaret 14 - et sjarmerende og innholdsrikt hjem i et barnevennlig og populært boligområde. Boligen strekker seg over tre etasjer og byr på en gjennomført planløsning med gode oppholdsrom, to bad og flere uteplasser. Her kan familien vokse i trygge omgivelser, med en stor, solrik og skjermet hage som inviterer til lek, grilling og rolige sommerdager. Huset er godt vedlikeholdt og har en egen sjarm som merkes fra første stund.
Høydepunkter:
- Praktisk og familievennlig planløsning over 3 etasjer
- Idyllisk hage på forsiden av huset, samt mindre hagedel med adkomst fra stue/balkong
- 2 bad (loft/kjeller)
- Kjeller med egen inngang
- Stor garasje med god lagringsplass (også plass til 2 biler foran)
- Større platting med jacuzzi
- Tilbaketrukket og fredelig beliggenhet
Område
Legg til steder som er viktige for deg
Meglere

Julie Slåtto
Eiendomsmeglerfullmektig MNEF
På flyttefot? Tenk kjøp og salg samtidig.
Få din egen rådgiver gjennom hele kjøps- og salgsprosessen. Det starter med en verdivurdering.
Unngå doble boligrenter
Vi tilbyr gunstig forsikring.
Vurderer du utleie?
Få et tilbud fra Utleie KrogsveenHva koster lånet?
Sjekk estimert lånekostnadVil du varsles om lignende boliger?
Ved å lagre ditt boligsøk hos oss får du beskjed når vi har en bolig som ligner denne, før den legges ut på markedet!



