Biterudveien 23B
4 490 000 kr
57 m²
1 soverom
Solgt
NÆR ASKER SENTRUM
Flott 2-roms med solrik balkong. Heis. Garasjeplass, oppvarming og varmtvann inkl. i felleskostnadene.
Prisantydning
4 490 000 krOmkostninger
123 290 krTotalpris
4 613 290 kr
Pris
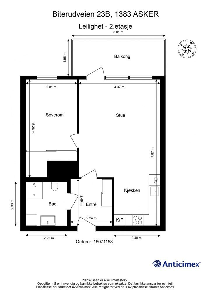
Bruksareal
62 m²BRA-I (internt bruksareal)
57 m²BRA-E (eksternt bruksareal)
5 m²TBA (terrasse-balkongareal)
10 m²
Areal
Etasje
2Byggeår
2012Soverom
1 soveromBad
1 badType
EierleilighetEierform
EierseksjonFasiliteter
Garasje/P-plass, Heis og Balkong/TerrasseFellesutgifter
4 109 krEnergimerke
Grønn D
Nøkkelinfo
Unngå doble boligrenter
Vi tilbyr gunstig forsikring.
Vurderer du utleie?
Få et tilbud fra Utleie KrogsveenHva koster lånet?
Sjekk estimert lånekostnadBeskrivelse
Kort om eiendommen
Velkommen til Biterudveien 23B, presentert av Truls E. Holm i Krogsveen.
Her får du en flott leilighet som inneholder soverom, kjøkken, stue, entré, bad og balkong. Med leiligheten følger garasjeplass i lukket garasjeanlegg med heistilgang. Sydvestvendt balkong med gode solforhold. Leiligheten ligger fint til med gangavstand til Asker sentrum, nærhet til flotte naturopplevelser både marka og badevann og kollektiv transport.
Kort fortalt:
Garasjeplass
Sydvestvendt balkong med gode solforhold
Flott utsikt
Heis
Rolig sameie
Kort vei til marka og Asker sentrum
Kort vei til buss
Velkommen til visning!
Område
Legg til steder som er viktige for deg
Meglere

Truls Eirik Holm
Eiendomsmegler/ Partner
På flyttefot? Tenk kjøp og salg samtidig.
Få din egen rådgiver gjennom hele kjøps- og salgsprosessen. Det starter med en verdivurdering.
Unngå doble boligrenter
Vi tilbyr gunstig forsikring.
Vurderer du utleie?
Få et tilbud fra Utleie KrogsveenHva koster lånet?
Sjekk estimert lånekostnadVil du varsles om lignende boliger?
Ved å lagre ditt boligsøk hos oss får du beskjed når vi har en bolig som ligner denne, før den legges ut på markedet!
På flyttefot? Slik gjør vi det enklere for deg
Skreddersydd flyttepakke
Vi fikser håndverkere, vask, pakking, lagring og transport, og legger ut for utgiftene underveis.
Hjelp med både kjøp og salg
Hos oss har du din egen rådgiver gjennom hele kjøps- og salgsprosessen.
Hjelp til finansiering
Vårt samarbeid med BN Bank sikrer deg rask og løsningsorientert hjelp, til konkurransedyktige betingelser.



