Stabells gate 10B
2 690 000 kr
50 m²
1 soverom
Solgt

Presenteres av
Sarvajuthan Mahalingam Lekker & sentrumsnær 2-roms selveier i toppetasjen - Heis - Stor balkong!
Prisantydning
2 690 000 krOmkostninger
78 290 krTotalpris
2 768 290 kr
Pris
Bruksareal
55 m²BRA-I (internt bruksareal)
50 m²BRA-E (eksternt bruksareal)
5 m²TBA (terrasse-balkongareal)
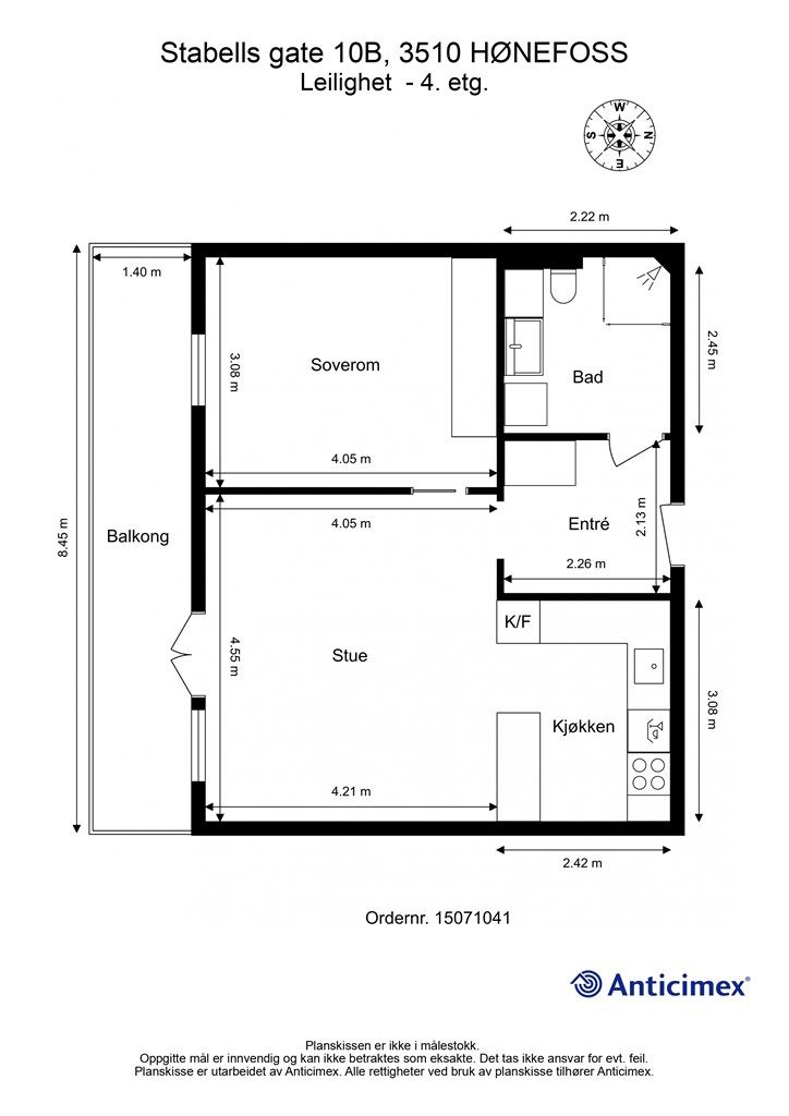
12 m²
Areal
Etasje
4Byggeår
2011Soverom
1 soveromBad
1 badType
EierleilighetEierform
EierseksjonFasiliteter
Heis og Balkong/TerrasseFellesutgifter
2 133 krEnergimerke
Rød D
Nøkkelinfo
Unngå doble boligrenter
Vi tilbyr gunstig forsikring.
Vurderer du utleie?
Få et tilbud fra Utleie KrogsveenHva koster lånet?
Sjekk estimert lånekostnadBeskrivelse
Kort om eiendommen
Eiendomsmegler Sarvajuthan Mahalingam v/Krogsveen har gleden av å presentere Stabellsgate 10B!
En lekker 2-roms selveier i byggets øverste etasje med enkel adkomst via heis. Leiligheten utmerker seg med praktisk planløsning, gjennomgående standard og ikke minst en stor balkong på hele 12 kvm. Leiligheten ligger svært sentralt til med gangavstand til kollektivtransport og alt det byen har å by på. Perfekt førstegangskjøp/utleieobjekt.
Kort fortalt:
Toppetasje
Stor balkong på 12 kvm
Enkel adkomst via heis
Ekstern bod på 5 kvm
Sentralt beliggende
Dersom boligen er av interesse kan megler bistå med kontakt av bank/finansiering.
Velkommen til visning!
Område
Legg til steder som er viktige for deg
Megler

Sarvajuthan Mahalingam
Eiendomsmegler
På flyttefot? Tenk kjøp og salg samtidig.
Få din egen rådgiver gjennom hele kjøps- og salgsprosessen. Det starter med en verdivurdering.
Unngå doble boligrenter
Vi tilbyr gunstig forsikring.
Vurderer du utleie?
Få et tilbud fra Utleie KrogsveenHva koster lånet?
Sjekk estimert lånekostnadVil du varsles om lignende boliger?
Ved å lagre ditt boligsøk hos oss får du beskjed når vi har en bolig som ligner denne, før den legges ut på markedet!
På flyttefot? Slik gjør vi det enklere for deg
Skreddersydd flyttepakke
Vi fikser håndverkere, vask, pakking, lagring og transport, og legger ut for utgiftene underveis.
Hjelp med både kjøp og salg
Hos oss har du din egen rådgiver gjennom hele kjøps- og salgsprosessen.
Hjelp til finansiering
Vårt samarbeid med BN Bank sikrer deg rask og løsningsorientert hjelp, til konkurransedyktige betingelser.
