Årvollveien 34
11 680 000 kr
155 m²
3 soverom
Solgt

Velholdt og romslig enderekkehus over 3 plan med nydelig hage, flere uteplasser og garasje - Barnevennlig og markanært
Prisantydning
11 680 000 krOmkostninger
312 990 krTotalpris
11 992 990 kr
Pris
Bruksareal
173 m²BRA-I (internt bruksareal)
155 m²BRA-E (eksternt bruksareal)
18 m²TBA (terrasse-balkongareal)
42 m²
Areal
Byggeår
1962Soverom
3 soveromBad
2 badTomteareal
290 m² (eiet)Type
RekkehusEierform
EietFasiliteter
Garasje/P-plass og Balkong/TerrasseEnergimerke
Oransje F
Nøkkelinfo
Unngå doble boligrenter
Vi tilbyr gunstig forsikring.
Vurderer du utleie?
Få et tilbud fra Utleie KrogsveenHva koster lånet?
Sjekk estimert lånekostnadBeskrivelse
Kort om eiendommen
Velholdt enderekkehus over 3 plan med flotte uteområder med to terrasser, gode solforhold og herlig utsikt!
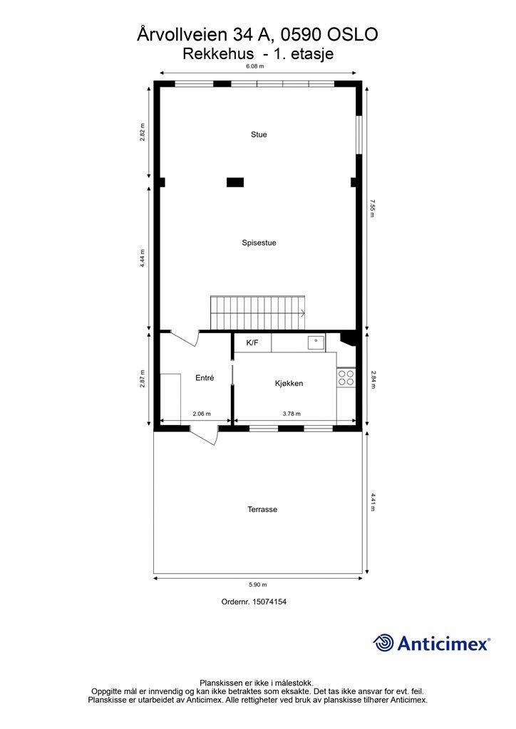
Rekkehuset har en skjermet beliggenhet med en frodig hage rett utenfor inngangsdøren. Boligen byr blant annet på 3 gode soverom, nyoppusset kjøkken, to stuer og to bad/vaskerom!
Boligen ligger i et attraktivt og veletablert boligområde med nærhet til Lillomarka, skoler, barnehager, idrettsanlegg og matbutikker.
Beliggenheten sikrer og god offentlig kommunikasjon med kort vei til sentrum.
- Enderekkehus
- Tre soverom
- To bad/vaskerom
- Separat kjøkken (oppusset i 2025)
- Romslig stue (bygget ut i 2022) og kjellerstue
- Terrasse på 18 kvm med utgang til hage
- Terrasse på 24 kvm med en herlig utsikt
- Garasjeplass med mulighet for el-bil lader
Område
Legg til steder som er viktige for deg
På flyttefot? Tenk kjøp og salg samtidig.
Få din egen rådgiver gjennom hele kjøps- og salgsprosessen. Det starter med en verdivurdering.
Unngå doble boligrenter
Vi tilbyr gunstig forsikring.
Vurderer du utleie?
Få et tilbud fra Utleie KrogsveenHva koster lånet?
Sjekk estimert lånekostnadVil du varsles om lignende boliger?
Ved å lagre ditt boligsøk hos oss får du beskjed når vi har en bolig som ligner denne, før den legges ut på markedet!

