Glenneveien 7
8 990 000 kr
208 m²
5 soverom
Solgt

Skytta
Oppgradert og velholdt enebolig med god beliggenhet, hybelleilighet, solrike uteplasser og dobbelgarasje med elbillader
Prisantydning
8 990 000 krOmkostninger
245 740 krTotalpris
9 235 740 kr
Pris
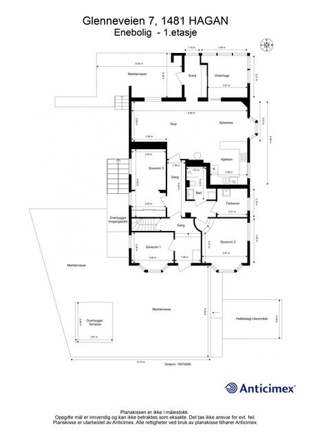
Bruksareal
252 m²BRA-I (internt bruksareal)
208 m²BRA-E (eksternt bruksareal)
44 m²TBA (terrasse-balkongareal)
139 m²
Areal
Etasje
1Byggeår
1966Soverom
5 soveromBad
2 badTomteareal
839 m² (eiet)Type
Enebolig - FrittliggendeEierform
EietFasiliteter
Garasje/P-plass og Balkong/TerrasseEnergimerke
Gul E
Nøkkelinfo
Unngå doble boligrenter
Vi tilbyr gunstig forsikring.
Vurderer du utleie?
Få et tilbud fra Utleie KrogsveenHva koster lånet?
Sjekk estimert lånekostnadBeskrivelse
Kort om eiendommen
Velkommen til Glenneveien 7! Her er et koselig hjem som ligger sentralt på Hagan/Skytta i et hyggelig nabolag. Boligen er stor, stilren og innbydende. Boligen har en hoveddel hvor alt er på samme flate samt en stor hybelleilighet i kjelleren. Her bor man i et rolig og hyggelig nabolag nær kollektivtransport med kort og enkel forbindelse til Oslo og Lillestrøm, butikker, spisested og marka. Boligen ligger tilbaketrukket fra veien og er omkranset av flotte uteplasser med ulike soner som ballbinge, stor plen, to terrasser og en stor gårdsplass. Parkeringsmulighetene er svært gode, både på gårdsplassen samt i dobbelgarasjen som har egen elbillader.
Høydepunkter:
-Skjermet og tilbaketrukket
-Hybelleilighet med egen inngang
-Dobbelgarasje
-Flotte solrike uteplasser
-Nær buss, butikker og marka
Område
Legg til steder som er viktige for deg
På flyttefot? Tenk kjøp og salg samtidig.
Få din egen rådgiver gjennom hele kjøps- og salgsprosessen. Det starter med en verdivurdering.
Unngå doble boligrenter
Vi tilbyr gunstig forsikring.
Vurderer du utleie?
Få et tilbud fra Utleie KrogsveenHva koster lånet?
Sjekk estimert lånekostnadVil du varsles om lignende boliger?
Ved å lagre ditt boligsøk hos oss får du beskjed når vi har en bolig som ligner denne, før den legges ut på markedet!

