Teglhageveien 23
4 100 000 kr
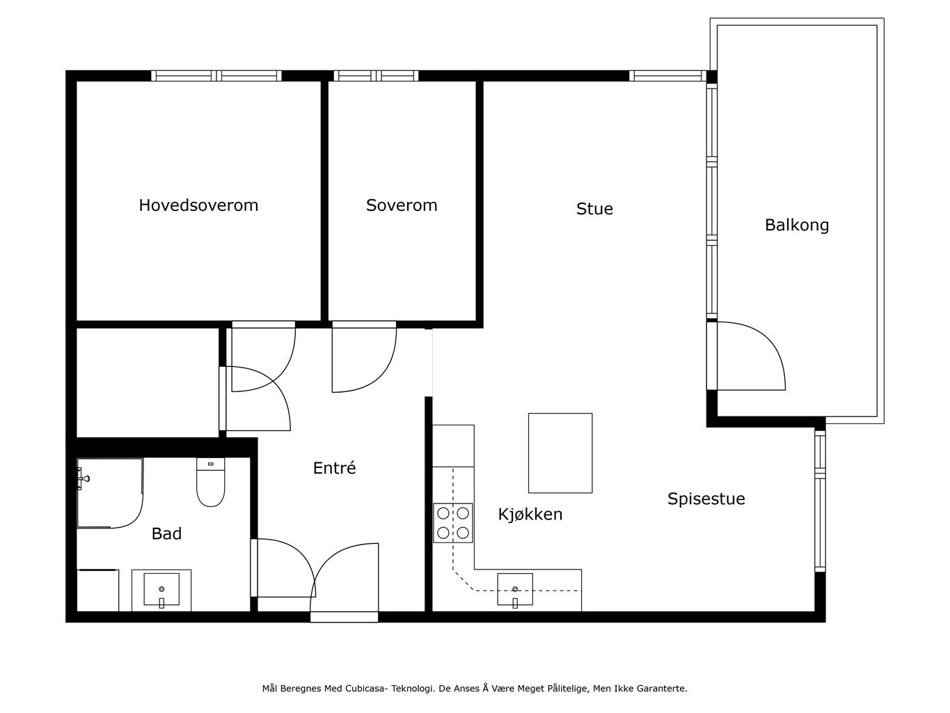
72 m²
2 soverom
Solgt

Tønsberg/Teglhagen
BUD INK - Slotsengen - smakfull hjørneleilighet - solrik balkong mot vest - heis - p-anlegg m/el-bil lader - takterrasse
Prisantydning
4 100 000 krAndel fellesgjeld
7 638 krOmkostninger
113 710 krTotalpris
4 221 348 kr
Pris
Bruksareal
77 m²BRA-I (internt bruksareal)
72 m²BRA-E (eksternt bruksareal)
5 m²TBA (terrasse-balkongareal)
13 m²
Areal
Etasje
2Byggeår
2018Soverom
2 soveromBad
1 badType
EierleilighetEierform
EierseksjonFellesutgifter
3 508 krEnergimerke
Lysegrønn C
Nøkkelinfo
Unngå doble boligrenter
Vi tilbyr gunstig forsikring.
Vurderer du utleie?
Få et tilbud fra Utleie KrogsveenHva koster lånet?
Sjekk estimert lånekostnadBeskrivelse
Kort om eiendommen
Velkommen til Slottsengen!
En lys og lettstelt eierleilighet med attraktiv hjørnebeliggenhet i et populært sameie ved foten av vakre Slottsfjellet.
Her bor du med flott utsyn mot vest, solrike uteplasser og gangavstand til Tønsberg sentrum, Brygga, skoler, barnehager, kollektivtransport, samt flotte turområder!
Leiligheten er pent innredet, har god planløsning, to soverom, helfliset bad, vannbåren varme og lavt energiforbruk. Heis til p-kjeller, garasjeplass med elbillader. Bod i samme etasje gir praktiske og komfortable hverdager – alt i et urbant nabolag med nærhet til både byliv og natur. Velg mellom sort el. hvitt kjøkken!
Perfekt for pendlere da eiendommen ligger på nordsiden av tunellen og nær jernbane. Her kan du flytte rett inn, - her er "all inclusive"!
Gled deg til visning!
Område
Legg til steder som er viktige for deg
På flyttefot? Tenk kjøp og salg samtidig.
Få din egen rådgiver gjennom hele kjøps- og salgsprosessen. Det starter med en verdivurdering.
Unngå doble boligrenter
Vi tilbyr gunstig forsikring.
Vurderer du utleie?
Få et tilbud fra Utleie KrogsveenHva koster lånet?
Sjekk estimert lånekostnadVil du varsles om lignende boliger?
Ved å lagre ditt boligsøk hos oss får du beskjed når vi har en bolig som ligner denne, før den legges ut på markedet!

