Austadveien 12
6 450 000 kr
232 m²
4 soverom
Solgt

Presenteres av
Marielle K. Ryberg Austad
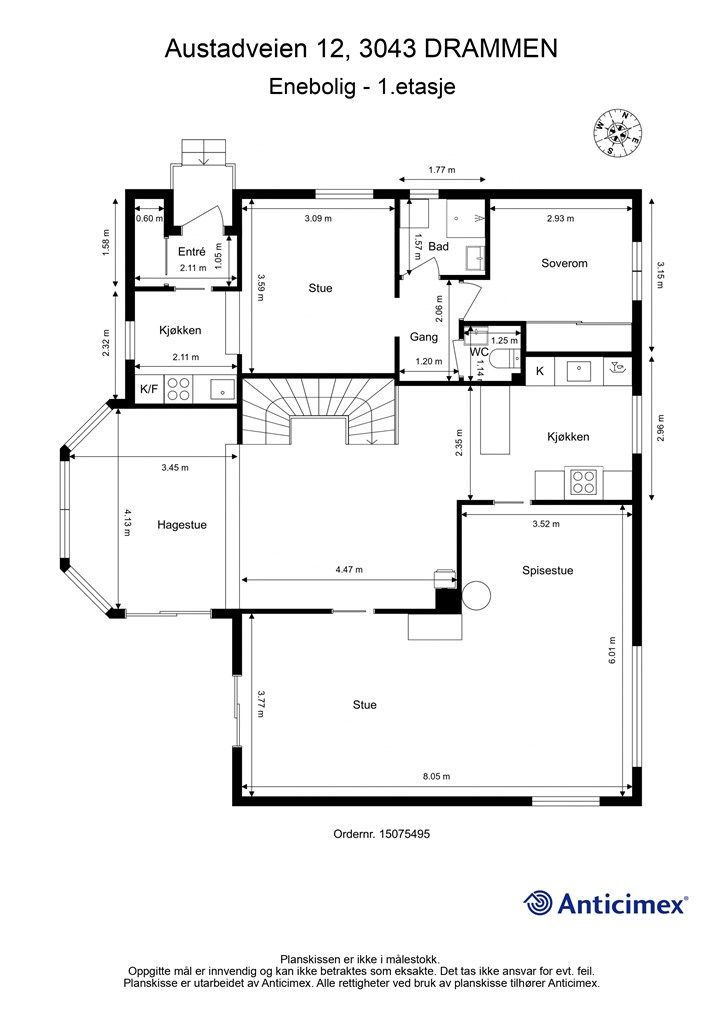
Innbydende og romslig enebolig med 2-roms utleiedel. Flott hagestue. Skjermet uteplass og stor hage - 1 mål. Garasje.
Prisantydning
6 450 000 krOmkostninger
182 240 krTotalpris
6 632 240 kr
Pris
Bruksareal
265 m²BRA-I (internt bruksareal)
232 m²BRA-E (eksternt bruksareal)
33 m²
Areal
Etasje
3Byggeår
1954Soverom
4 soveromBad
2 badTomteareal
1 052 m² (eiet)Type
Enebolig med utleiedelEierform
EietFasiliteter
Garasje/P-plass og Balkong/TerrasseEnergimerke
Oransje G
Nøkkelinfo
Unngå doble boligrenter
Vi tilbyr gunstig forsikring.
Vurderer du utleie?
Få et tilbud fra Utleie KrogsveenHva koster lånet?
Sjekk estimert lånekostnadBeskrivelse
Kort om eiendommen
Innbydende og romslig enebolig med utleiedel.
Romslig og lys vinkelstue med varmepumpe (2017), peisovn samt åpen peis
Flott og hyggelig hagestue med store glassflater samt etasjeovn
Profilert kjøkken fra 2007 med helintegrerte hvitevarer og kjøkkenhalvøy
Bad med regnfallsdusj og badekar i 2. etg
Praktisk ekstra wc-rom (oppgradert i 2001) og vaskekjeller i u. etg
Pen 2-roms utleiedel i 1. etg med eget inngangsparti
Yttertaktekke er vasket og impregnert i 2024
Skjermet uteplass og stor hage med frodige beplantninger (bl.a. frukttrær)
Parkering i integrert garasje og på stor gårdsplass med belegningsstein
Gangavstand til flere barnehager og Danvik barneskole.
Nær bussholdeplass, matbutikk og hyggelig parkområde
Velkommen til visning!
Område
Legg til steder som er viktige for deg
På flyttefot? Tenk kjøp og salg samtidig.
Få din egen rådgiver gjennom hele kjøps- og salgsprosessen. Det starter med en verdivurdering.
Unngå doble boligrenter
Vi tilbyr gunstig forsikring.
Vurderer du utleie?
Få et tilbud fra Utleie KrogsveenHva koster lånet?
Sjekk estimert lånekostnadVil du varsles om lignende boliger?
Ved å lagre ditt boligsøk hos oss får du beskjed når vi har en bolig som ligner denne, før den legges ut på markedet!
På flyttefot? Slik gjør vi det enklere for deg
Skreddersydd flyttepakke
Vi fikser håndverkere, vask, pakking, lagring og transport, og legger ut for utgiftene underveis.
Hjelp med både kjøp og salg
Hos oss har du din egen rådgiver gjennom hele kjøps- og salgsprosessen.
Hjelp til finansiering
Vårt samarbeid med BN Bank sikrer deg rask og løsningsorientert hjelp, til konkurransedyktige betingelser.

