Ullern allé 75
6 300 000 kr
72 m²
1 soverom
Solgt

Ullern
Innbydende 2,5 roms terrasseleilighet | Garasjeplass | Heis | Solrik balkong med utsikt mot by og fjord
Prisantydning
6 300 000 krOmkostninger
168 540 krTotalpris
6 468 540 kr
Pris
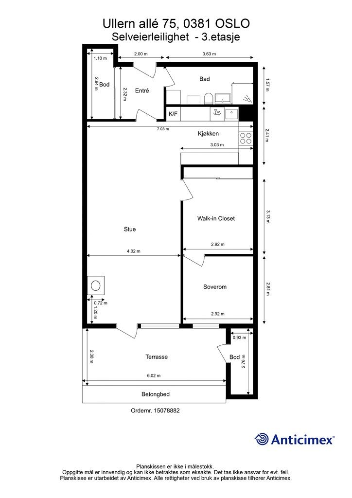
Bruksareal
80 m²BRA-I (internt bruksareal)
72 m²BRA-E (eksternt bruksareal)
8 m²TBA (terrasse-balkongareal)
14 m²
Areal
Etasje
2Byggeår
1982Soverom
1 soveromBad
1 badType
EierleilighetEierform
EierseksjonFasiliteter
Garasje/P-plass, Heis og Balkong/TerrasseFellesutgifter
5 389 krEnergimerke
Oransje E
Nøkkelinfo
Unngå doble boligrenter
Vi tilbyr gunstig forsikring.
Vurderer du utleie?
Få et tilbud fra Utleie KrogsveenHva koster lånet?
Sjekk estimert lånekostnadBeskrivelse
Kort om eiendommen
En 2,5 roms leilighet med fantastisk utsikt til grøntområder og fjorden og ingen innsyn! Leiligheten har en rolig og attraktiv beliggenhet med nærhet til offentlig kommunikasjon og butikk, samt tilgang til flotte tur- og rekreasjonsområder i umiddelbar nærhet.
Høydepunkter:
- Romslig og pent oppusset terrasseleilighet med flott utsikt til grøntareal og Oslofjorden
- Peis i stuen
- Garasjeplass i byggets kjeller
- Heis fra garasje og opp til leilighets plan
- Solrik terrasse på ca. 14 kvm med plass til utemøblement og grill
- Utebod med adkomst fra terrassen, samt innvendig bod og to kjellerboder - totalt ca. 11 kvm bodplass.
- God og romslig planløsning
- Ingen gjenboere
- Ettertraktet og sentral beliggenhet i enden av blindvei
- Kort vei til turmuligheter/marka
- Kort vei til t-bane
Område
Legg til steder som er viktige for deg
På flyttefot? Tenk kjøp og salg samtidig.
Få din egen rådgiver gjennom hele kjøps- og salgsprosessen. Det starter med en verdivurdering.
Unngå doble boligrenter
Vi tilbyr gunstig forsikring.
Vurderer du utleie?
Få et tilbud fra Utleie KrogsveenHva koster lånet?
Sjekk estimert lånekostnadVil du varsles om lignende boliger?
Ved å lagre ditt boligsøk hos oss får du beskjed når vi har en bolig som ligner denne, før den legges ut på markedet!































