Sagbruksveien 50
6 600 000 kr
86 m²
2 soverom
Solgt
Strømmen
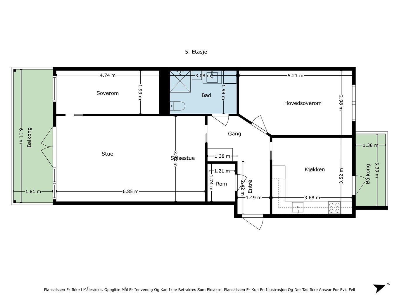
Stor 3-roms selveier fra 2023 | Høy standard | 5. etasje | 2 terrasser | Garasje | Sentral beliggenhet
Prisantydning
6 600 000 krOmkostninger
176 040 krTotalpris
6 776 040 kr
Pris
Bruksareal
96 m²BRA-I (internt bruksareal)
86 m²BRA-E (eksternt bruksareal)
10 m²TBA (terrasse-balkongareal)
15 m²
Areal
Etasje
5Byggeår
2023Soverom
2 soveromBad
1 badType
EierleilighetEierform
EierseksjonFasiliteter
Garasje/P-plass, Heis og Balkong/TerrasseFellesutgifter
3 882 krEnergimerke
Grønn A
Nøkkelinfo
Unngå doble boligrenter
Vi tilbyr gunstig forsikring.
Vurderer du utleie?
Få et tilbud fra Utleie KrogsveenHva koster lånet?
Sjekk estimert lånekostnadBeskrivelse
Kort om eiendommen
Velkommen til en nesten ny, lys og moderne leilighet. Gjennomtenkt planløsning, gode kvaliteter og to flotte terrasser. Her får du både romslige oppholdsrom, praktiske lagringsmuligheter og parkeringsplass i kjeller med elbillader.
Område
Legg til steder som er viktige for deg
På flyttefot? Tenk kjøp og salg samtidig.
Få din egen rådgiver gjennom hele kjøps- og salgsprosessen. Det starter med en verdivurdering.
Unngå doble boligrenter
Vi tilbyr gunstig forsikring.
Vurderer du utleie?
Få et tilbud fra Utleie KrogsveenHva koster lånet?
Sjekk estimert lånekostnadVil du varsles om lignende boliger?
Ved å lagre ditt boligsøk hos oss får du beskjed når vi har en bolig som ligner denne, før den legges ut på markedet!




