Hilton 38A
4 300 000 kr
125 m²
3 soverom
Solgt
Kløfta/Hilton
Pent rekkehus over 3 plan | Barnevennlige omgivelser | Velholdt bolig | Garasjeplass i felles rekke
Prisantydning
4 300 000 krAndel fellesgjeld
174 527 krOmkostninger
19 252 krTotalpris
4 493 779 kr
Pris
Bruksareal
127 m²BRA-I (internt bruksareal)
125 m²BRA-E (eksternt bruksareal)
2 m²TBA (terrasse-balkongareal)
27 m²
Areal
Etasje
3Byggeår
1969Soverom
3 soveromBad
2 badType
RekkehusEierform
AndelFellesutgifter
4 479 krEnergimerke
Oransje G
Nøkkelinfo
Unngå doble boligrenter
Vi tilbyr gunstig forsikring.
Vurderer du utleie?
Få et tilbud fra Utleie KrogsveenHva koster lånet?
Sjekk estimert lånekostnadBeskrivelse
Kort om eiendommen
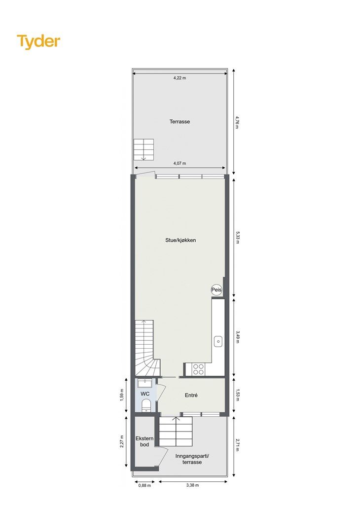
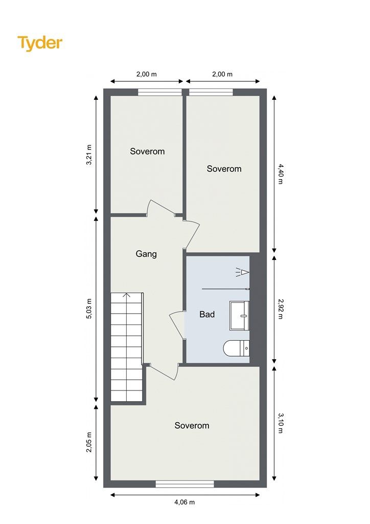
Velkommen til Hilton 38A! Presenteres av Jørgen Gabrielsen v/Krogsveen. Dette er et tiltalende rekkehus som byr på et moderne uttrykk. Boligen strekker seg over tre plan med en familievennlig planløsning. I 1. etasje finner man entré og WC-rom, stue og kjøkken i en åpen og sosial løsning, med moderne overflater og vindusflater ut mot en terrasse på 20 kvm som gir rikelig med dagslys. Fra terrassen har du og adkomst til en koselig hageflekk. Videre i 2. etasje har du 3 gode soverom og er moderne bad fra 2017. Underetasjen fungerer ypperlig som en barne- og ungdomsavdeling med en romslig kjellerstue, eget bad og en bod for ekstra lagringsplass.
Boligen ligger i et etablert og barnevennlig nabolag. I tillegg har du parkeringsplass med lader til el-bil i felles garasjerekke.
Område
Legg til steder som er viktige for deg
På flyttefot? Tenk kjøp og salg samtidig.
Få din egen rådgiver gjennom hele kjøps- og salgsprosessen. Det starter med en verdivurdering.
Unngå doble boligrenter
Vi tilbyr gunstig forsikring.
Vurderer du utleie?
Få et tilbud fra Utleie KrogsveenHva koster lånet?
Sjekk estimert lånekostnadVil du varsles om lignende boliger?
Ved å lagre ditt boligsøk hos oss får du beskjed når vi har en bolig som ligner denne, før den legges ut på markedet!




