Nesvegen 16
4 150 000 kr
92 m²
3 soverom
Solgt

Spjelkavik
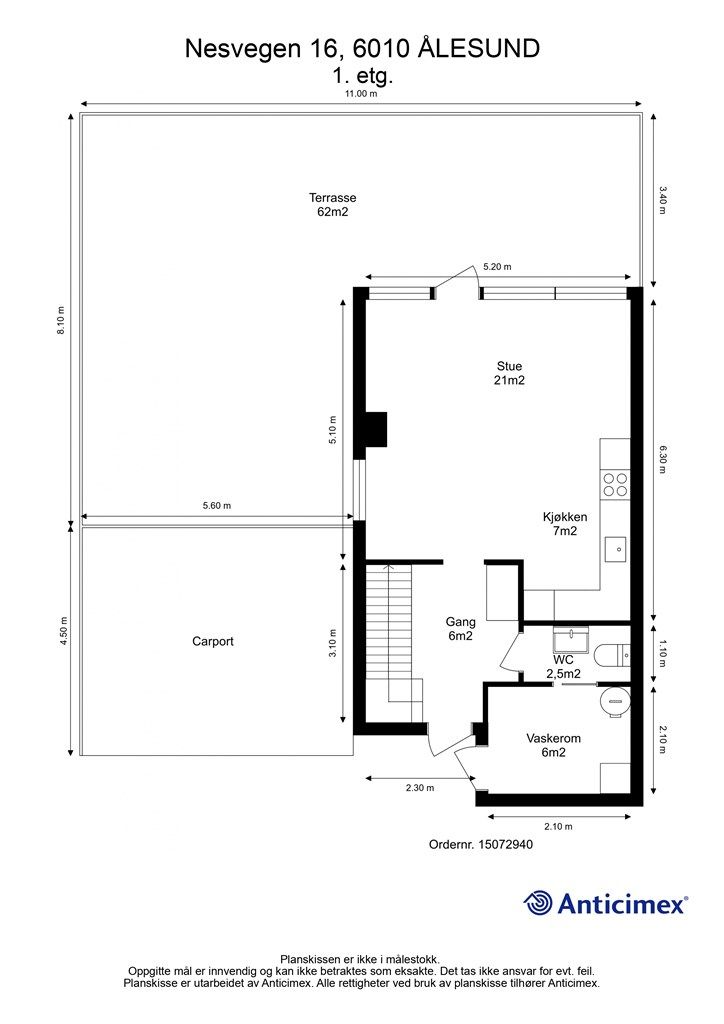
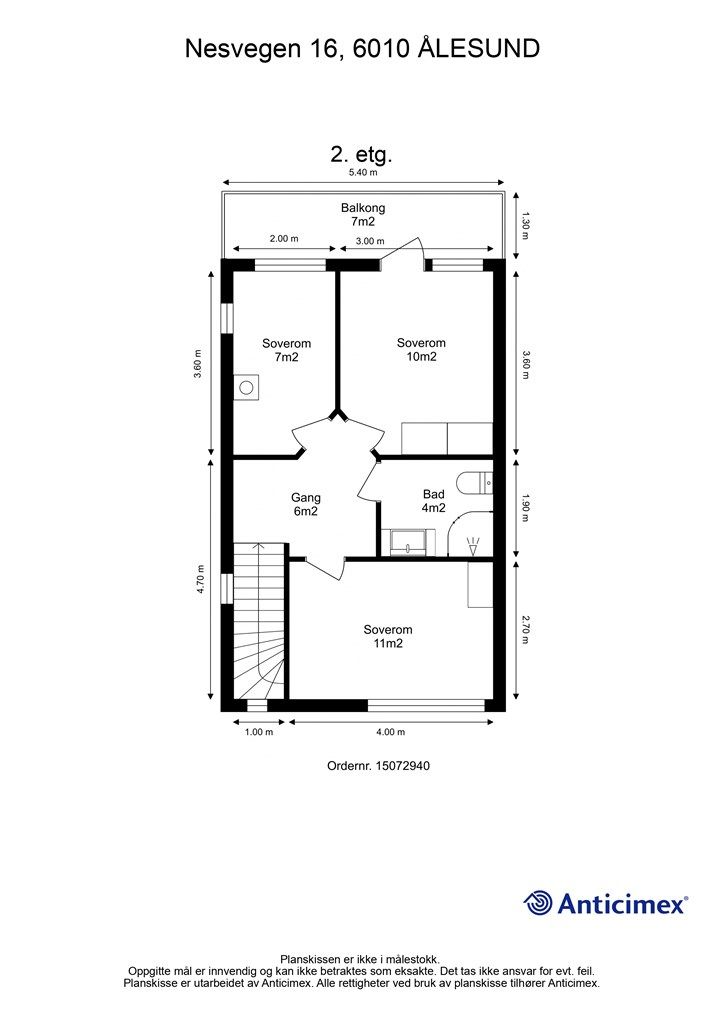
Innholdsrik 1/2-part vk.delt tomannsbolig | Markterrasse på 66 kvm + balkong 7 kvm | Dobbel carport | Stor hage
Prisantydning
4 150 000 krOmkostninger
124 740 krTotalpris
4 274 740 kr
Pris
Bruksareal
95 m²BRA-I (internt bruksareal)
92 m²BRA-E (eksternt bruksareal)
3 m²TBA (terrasse-balkongareal)
69 m²
Areal
Etasje
2Byggeår
2003Soverom
3 soveromBad
2 badTomteareal
734 m² (eiet)Type
Halvpart vertikaldelt boligEierform
EietFasiliteter
Garasje/P-plass og Balkong/Terrasse
Nøkkelinfo
Unngå doble boligrenter
Vi tilbyr gunstig forsikring.
Vurderer du utleie?
Få et tilbud fra Utleie KrogsveenHva koster lånet?
Sjekk estimert lånekostnadBeskrivelse
Kort om eiendommen
Innholdsrik 1/2-part vertikaldelt tomannsbolig
* God planløsning
* Markterrasse på 66 kvm
* Balkong på 7 kvm
* Dobbel carport med el bil lader
* Gode parkeringsmuligheter på egen tomt
* Stor flott hage
* Kort vei til skoler og barnehage
* Ca. 15 min. gange til handelssentrum på Moa
Velkommen til visning! Husk å melde deg på!
Område
Legg til steder som er viktige for deg
På flyttefot? Tenk kjøp og salg samtidig.
Få din egen rådgiver gjennom hele kjøps- og salgsprosessen. Det starter med en verdivurdering.
Unngå doble boligrenter
Vi tilbyr gunstig forsikring.
Vurderer du utleie?
Få et tilbud fra Utleie KrogsveenHva koster lånet?
Sjekk estimert lånekostnadVil du varsles om lignende boliger?
Ved å lagre ditt boligsøk hos oss får du beskjed når vi har en bolig som ligner denne, før den legges ut på markedet!

