Schweigaards gate 67A
5 900 000 kr
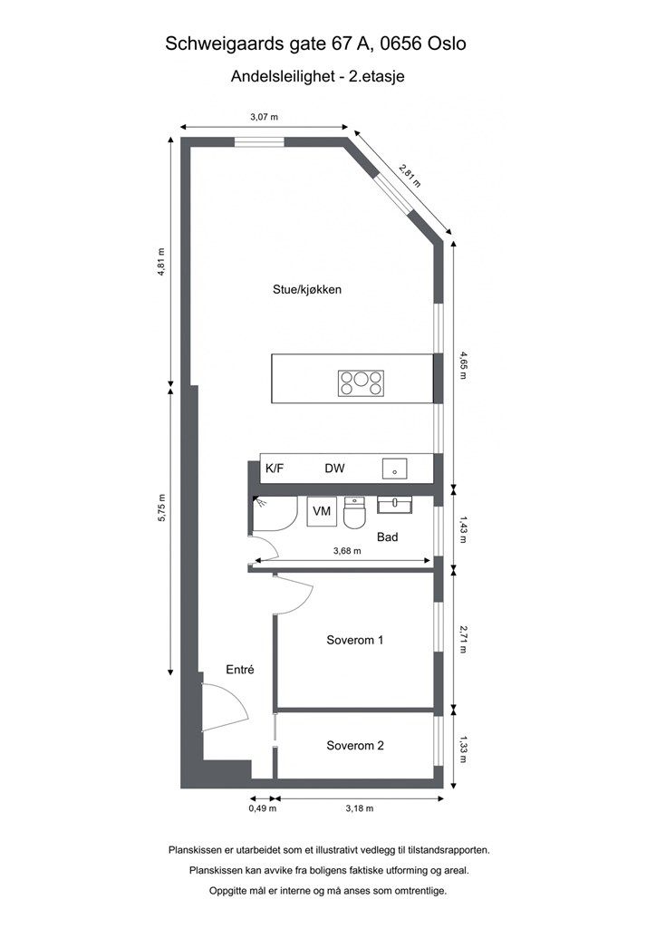
60 m²
2 soverom
Solgt

Gamlebyen
Stilren og påkostet 3-r hjørneleilighet som oser av særpreg- 3m takhøyde. VV inkl. Felles takterrasse og flott bakgård!
Prisantydning
5 900 000 krAndel fellesgjeld
84 253 krOmkostninger
11 040 krTotalpris
5 995 293 kr
Pris
Bruksareal
64 m²BRA-I (internt bruksareal)
60 m²BRA-E (eksternt bruksareal)
4 m²
Areal
Etasje
2Byggeår
1887Soverom
2 soveromBad
1 badType
AndelsleilighetEierform
AndelFellesutgifter
5 748 krEnergimerke
Rød G
Nøkkelinfo
Unngå doble boligrenter
Vi tilbyr gunstig forsikring.
Vurderer du utleie?
Få et tilbud fra Utleie KrogsveenHva koster lånet?
Sjekk estimert lånekostnadBeskrivelse
Kort om eiendommen
Velkommen til Schweigaards gate 67A!
En sjarmerende og klassisk hjørneleilighet i Gamlebyen. Leiligheten utmerker seg med en gjennomtenkt planløsning, romslige oppholdsrom og luftig takhøyde. Boligen har i perioden 2023-2025 gjennomgått omfattende oppussing, samtidig som det klassiske detaljene med stukkatur, rosett er godt ivaretatt. Felles pent opparbeidet bakgård med sittegrupper, utekjøkken og peis, samt en vestvendt takterrasse med utsikt. Her bor du sentralt med gangavstand til Sørenga, sentrum og et bredt kollektivtilbud.
Høydepunkter:
- Ledig parkeringsleie rett over gaten for kr. 1.300,- pr. mnd.
- Klassisk særpreg
- Gjennomgående god standard
- Hjørnebeliggenhet med godt lysinslipp
- Påkostet kjøkken fra Kvik
- Fiskebeinsparkett
- Varmekabler i entré og bad
- V.v inkl.
Område
Legg til steder som er viktige for deg
På flyttefot? Tenk kjøp og salg samtidig.
Få din egen rådgiver gjennom hele kjøps- og salgsprosessen. Det starter med en verdivurdering.
Unngå doble boligrenter
Vi tilbyr gunstig forsikring.
Vurderer du utleie?
Få et tilbud fra Utleie KrogsveenHva koster lånet?
Sjekk estimert lånekostnadVil du varsles om lignende boliger?
Ved å lagre ditt boligsøk hos oss får du beskjed når vi har en bolig som ligner denne, før den legges ut på markedet!

