Gamle Dalsveg 18
6 800 000 kr
183 m²
4 soverom
Solgt

Maura
Meget tiltalende enebolig med fire soverom, to bad og stor terrasse med utestue-Flott opparbeidet tomt og dbl garasje
Prisantydning
6 800 000 krOmkostninger
190 990 krTotalpris
6 990 990 kr
Pris
Bruksareal
221 m²BRA-I (internt bruksareal)
183 m²BRA-E (eksternt bruksareal)
38 m²TBA (terrasse-balkongareal)
64 m²
Areal
Etasje
2Byggeår
2020Soverom
4 soveromBad
2 badTomteareal
714 m² (eiet)Type
Enebolig - FrittliggendeEierform
EietFasiliteter
Garasje/P-plassEnergimerke
Oransje B
Nøkkelinfo
Unngå doble boligrenter
Vi tilbyr gunstig forsikring.
Vurderer du utleie?
Få et tilbud fra Utleie KrogsveenHva koster lånet?
Sjekk estimert lånekostnadBeskrivelse
Kort om eiendommen
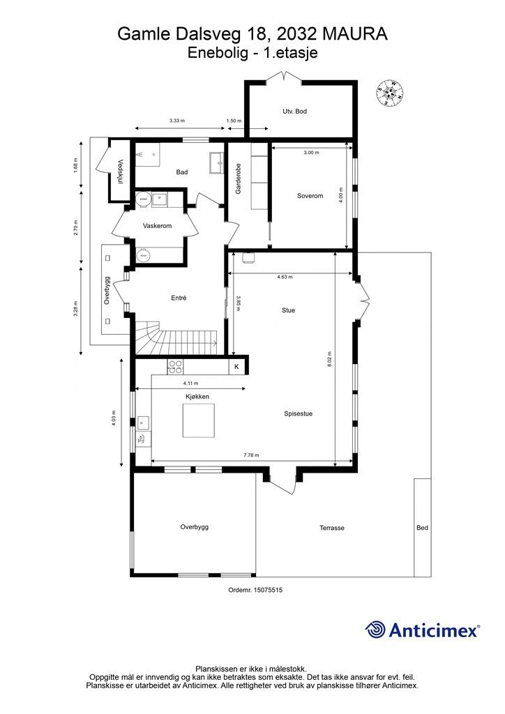
Meget tiltalende enebolig over 2 plan. 1. etasje består av entre/trapperom, baderom, vaskerom, kjøkken, spisestue/stue og soverom samt garderoberom. 2. etasje har trapperom/tv-stue, baderom og 3 soverom samt innvendig bod. Utgang fra spisestue/stue til en stor terrasse. Boligen har også frittstående garasje med lagerloft. I tillegg har du en praktisk utebod og flott og innbydende utestue. Her kan du flytte rett inn uten å tenke på oppussing.
Kort avstand til Maura sentrum med forretninger, barnehage og barneskole. Ca. 5 km til Nannestad Torg med forretningsenter, post, bank, kommuneadministrasjon, ungdom- og videregående skole. ca. 50 m til bussholdeplass. Barnevennlig område. Kort avstand til fine tur- og friluftsmuligheter. Alpinanlegg i nærområdet samt utsøkte skiløyper i Nordåsen.
Område
Legg til steder som er viktige for deg
På flyttefot? Tenk kjøp og salg samtidig.
Få din egen rådgiver gjennom hele kjøps- og salgsprosessen. Det starter med en verdivurdering.
Unngå doble boligrenter
Vi tilbyr gunstig forsikring.
Vurderer du utleie?
Få et tilbud fra Utleie KrogsveenHva koster lånet?
Sjekk estimert lånekostnadVil du varsles om lignende boliger?
Ved å lagre ditt boligsøk hos oss får du beskjed når vi har en bolig som ligner denne, før den legges ut på markedet!

