Nedregotten 48
3 350 000 kr
90 m²
2 soverom
Solgt

Emblem
Tiltalende vertikaldelt tomannsbolig i populært boligområde | Stor markterrasse og balkong
Prisantydning
3 350 000 krOmkostninger
94 790 krTotalpris
3 444 790 kr
Pris
Bruksareal
98 m²BRA-I (internt bruksareal)
90 m²BRA-E (eksternt bruksareal)
8 m²TBA (terrasse-balkongareal)
28 m²
Areal
Etasje
2Byggeår
2004Soverom
2 soveromBad
1 badTomteareal
313 m² (eiet)Type
Halvpart vertikaldelt boligEierform
EietFasiliteter
Balkong/TerrasseEnergimerke
Gul C
Nøkkelinfo
Unngå doble boligrenter
Vi tilbyr gunstig forsikring.
Vurderer du utleie?
Få et tilbud fra Utleie KrogsveenHva koster lånet?
Sjekk estimert lånekostnadDette liker selger best ved boligen
Det mest positive med eiendommen er at den er så skjerma! Lite innsyn, så man kan sette seg ut på verandaen å nyte roa i gode solforhold. God parkeringsplass, og godt utnytta areal inne. Det er gåavstand til både barnehage og den nye skolen, og det er gode kollektiv transport muligheter. Det er ett trygt og rolig nabolag med trivelige folk, og eiendommen ligg skjerma fra hovedveien med skogen som skilla og dempa lyden fra bilene.
Beskrivelse
Kort om eiendommen
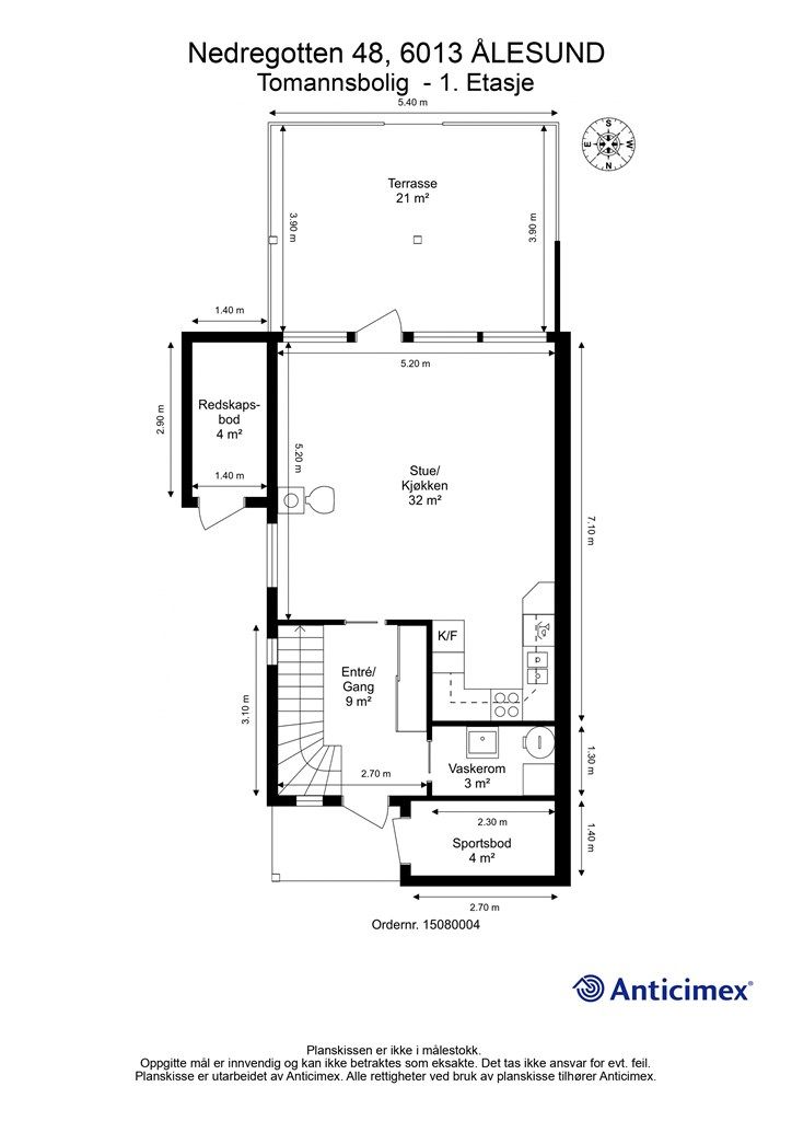
Tiltalende halvpart av tomannsbolig med sentral beliggenhet på Emblem
* Stue og kjøkken i åpen løsning
* Stor markterrasse på ca. 21 kvm i 1. etg. med tilkomst til hage
* Balkong på 7 kvm i 2. etasje
* Kort vei til barneskole og barnehage
* Utsikt mot Sunnmørsalpane
* Landlige omgivelser med flotte turmuligheter i nærområdet.
Velkommen til visning! Husk påmelding!
Område
Legg til steder som er viktige for deg
På flyttefot? Tenk kjøp og salg samtidig.
Få din egen rådgiver gjennom hele kjøps- og salgsprosessen. Det starter med en verdivurdering.
Unngå doble boligrenter
Vi tilbyr gunstig forsikring.
Vurderer du utleie?
Få et tilbud fra Utleie KrogsveenHva koster lånet?
Sjekk estimert lånekostnadVil du varsles om lignende boliger?
Ved å lagre ditt boligsøk hos oss får du beskjed når vi har en bolig som ligner denne, før den legges ut på markedet!



































