Kornmoenga 68
7 590 000 kr
139 m²
5 soverom
Solgt
TÅRNÅSEN
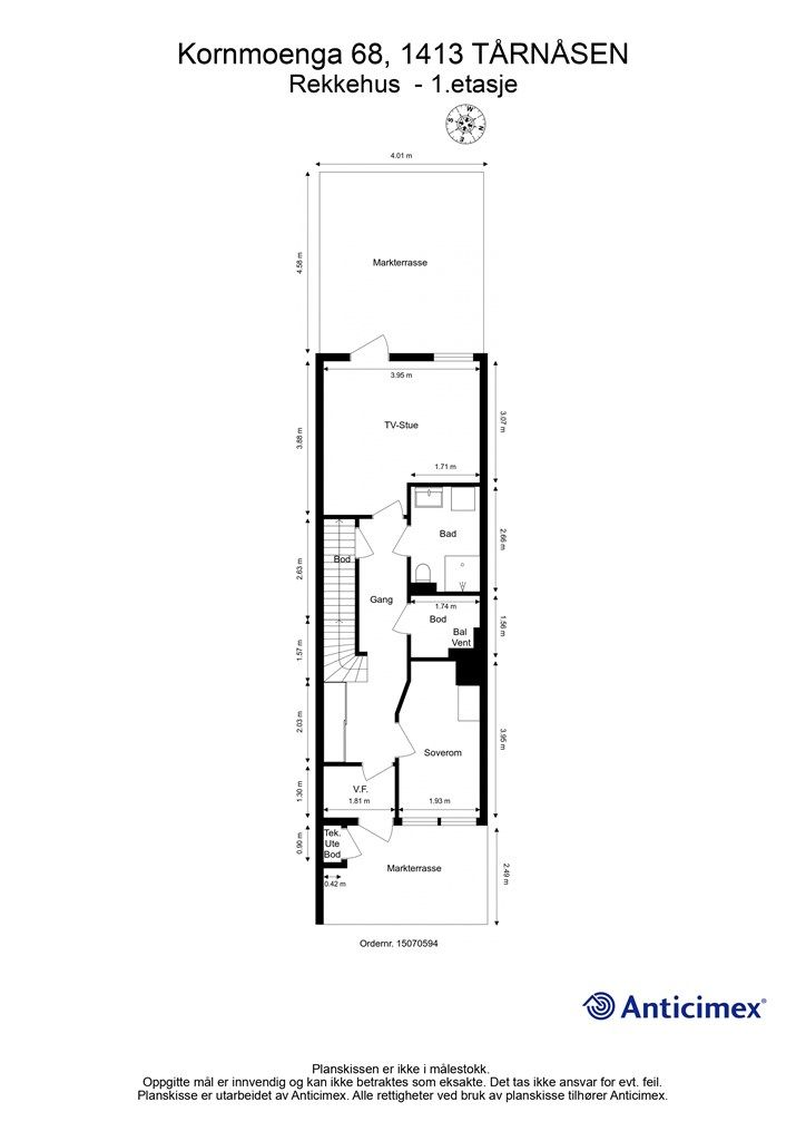
Moderne rekkehus fra 2015 - 4 soverom, 2 stuer og 2 bad - solrike uteplasser - 2 garasjepl. - barnevennlig -nær marka
Prisantydning
7 590 000 krOmkostninger
191 690 krTotalpris
7 781 690 kr
Pris
Bruksareal
144 m²BRA-I (internt bruksareal)
139 m²BRA-E (eksternt bruksareal)
5 m²TBA (terrasse-balkongareal)
44 m²
Areal
Byggeår
2015Soverom
5 soveromBad
2 badTomteareal
128 m² (eiet)Type
RekkehusEierform
EietFasiliteter
Garasje/P-plass og Balkong/TerrasseEnergimerke
Grønn A
Nøkkelinfo
Unngå doble boligrenter
Vi tilbyr gunstig forsikring.
Vurderer du utleie?
Få et tilbud fra Utleie KrogsveenHva koster lånet?
Sjekk estimert lånekostnadBeskrivelse
Kort om eiendommen
Flott beliggende rekkehus i et svært barnevennlig boområde på Tårnåsen.
- Moderne bolig fra 2015. Boligen inneholder bl.a. 2 stuer (en av stuene kan også benyttes som et 5. soverom), åpen kjøkkenløsning, 4 soverom, 2 bad og mye bodplass
- To balkonger og én markterrasse med svært gode solforhold
- Boligen er oppvarmet med vannbåren varme (oppvarmingen er inkl. i felleskostnadene)
- Kort avstand til 2 garasjeplasser med elbil-lader. Forøvrig god plass til gjesteparkering
- Trivelig og barnevennlig boområde med minimal biltrafikk på tunet og lekeplasser. Nær marka med flotte turmuligheter sommer som vinter. Kort og bilfri vei til barnehage, barneskole og ungdomsskole
- Rett ved bussholdeplass med hyppige avganger til bl.a. Oslo (omkring 30 minutter til Oslo sentrum
Område
Legg til steder som er viktige for deg
På flyttefot? Tenk kjøp og salg samtidig.
Få din egen rådgiver gjennom hele kjøps- og salgsprosessen. Det starter med en verdivurdering.
Unngå doble boligrenter
Vi tilbyr gunstig forsikring.
Vurderer du utleie?
Få et tilbud fra Utleie KrogsveenHva koster lånet?
Sjekk estimert lånekostnadVil du varsles om lignende boliger?
Ved å lagre ditt boligsøk hos oss får du beskjed når vi har en bolig som ligner denne, før den legges ut på markedet!
På flyttefot? Slik gjør vi det enklere for deg
Skreddersydd flyttepakke
Vi fikser håndverkere, vask, pakking, lagring og transport, og legger ut for utgiftene underveis.
Hjelp med både kjøp og salg
Hos oss har du din egen rådgiver gjennom hele kjøps- og salgsprosessen.
Hjelp til finansiering
Vårt samarbeid med BN Bank sikrer deg rask og løsningsorientert hjelp, til konkurransedyktige betingelser.




