Tangenheia 13
6 800 000 kr
156 m²
4 soverom
Komplett salgsoppgave

Tangenheia
Flott enebolig med "alt" -Stor takterrasse, smarte løsninger, nydelig utsikt, plen, tun, garasje og sentral beliggenhet!
Prisantydning
6 800 000 krOmkostninger
190 990 krTotalpris
6 990 990 kr
Pris
Bruksareal
193 m²BRA-I (internt bruksareal)
156 m²BRA-E (eksternt bruksareal)
37 m²TBA (terrasse-balkongareal)
155 m²
Areal
Etasje
2Byggeår
2019Soverom
4 soveromBad
2 badTomteareal
599 m² (eiet)Type
Enebolig - FrittliggendeEierform
EietFasiliteter
Garasje/P-plass og Balkong/TerrasseEnergimerke
Rød C
Nøkkelinfo
Unngå doble boligrenter
Vi tilbyr gunstig forsikring.
Vurderer du utleie?
Få et tilbud fra Utleie KrogsveenHva koster lånet?
Sjekk estimert lånekostnadBeskrivelse
Kort om eiendommen
Eneboligen ble ferdigstilt i 2019 og har en smakfull utforming med opparbeidede utearealer. Utvendig er det flotte murer, inngjerdet plen, asfaltert tun med plass til mange gjester og ikke minst - To takterrasser med helt rå utsikt. På den øverste takterrassen er det glassrekkverk og utekjøkken med vann-og strømtilknytning. På eiendommen skinner sola fra tidlig morgen til sent på kveld, ca. kl. 22:30 midtsommers. Det er også en god del vintersol på Tangenheia. I 2. etasje er det ca. 270 cm fra gulv til tak, det er gasspeis, flott kjøkken fra Epoq med hvitevarer fra Bosch, balansert ventilasjon og montert plissé gardiner/solskjerming i flere rom.
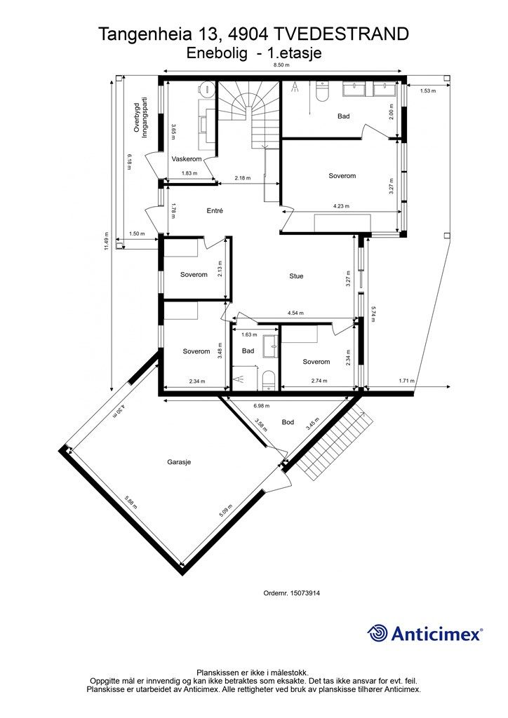
1. etasje: Entré, vaskerom, to bad, stue og fire soverom.
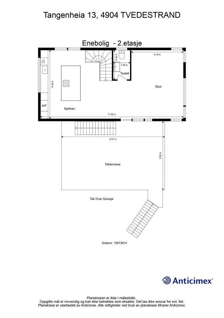
2. etasje: Kjøkken, stue og toalettrom.
Innhold og byggemåte
Innhold og byggemåte
Eiendommen
Tangenheia 13, 4904 TVEDESTRAND
Kommunenummer 4213, gårdsnummer 59, bruksnummer 408, ideell andel 1/1
Innhold
Totalt bruksareal BRA: 193 kvm
BRA-i:
Enebolig :
1. etasje 91 kvm: Entre, vaskerom, to bad, stue og fire soverom
2. etasje 65 kvm: Kjøkken, stue og toalettrom
BRA-e:
Enebolig:
1. etasje 37 kvm: Garasje og bod
Åpent areal:
Enebolig:
1. etasje 31 kvm: Overbygd inngangsparti (9 kvm) og delvis overbygd platting (22 kvm)
2. etasje 47 kvm: Takterrasse
3. etasje 77 kvm: Takterrasse
Vedlagte plantegninger er ikke målbare. De oppgitte arealer er hentet fra rapport med befaringsdato 03.07.2025 utført av Anticimex v/ Halvard Grina. Det foreligger byggemeldte tegninger og ferdigattest for enebolig med integrert garasje datert 10.10.2019.
Byggemåte
Selger har fått utarbeidet en tilstandsrapport, dvs. en teknisk gjennomgang av boligen hvor eventuelle avvik, risiko for kjøper og prisoverslag for hva som bør gjøres av oppgradering, er skissert. Se særskilt TGIU (tilstandsgrad ikke undersøkt), samt TG2 og TG3 som viser hva som er boligens normale slitasje, alder og type, hva som er avvik fra dette og hva som bør/må utbedres. Rapporten og selgers egenerklæring er en del av salgsoppgaven og må leses nøye før bud inngis. Kjøper overtar ansvaret for de opplysninger som fremkommer av salgsdokumentasjonen, og kan ikke gjøre gjeldende som mangel noe som burde vært kjent eller som ikke kan anses å ha betydning for avtalen.
Bygningen er iht. tilstandsrapporten oppført med støpt plate på mark. Fundamentert på ukjent byggegrunn. Yttervegger av trekonstruksjoner. Fasadene er kledd med stående trekledning og fasadeplater. Etasjeskillere av trekonstruksjoner. Flate tak (hovedsakelig med terrasse). Yttertak/takterrasser er utvendig tekket med sveiset asfaltpapp. Vinduer og terrassedører med karmer av tre, og tre-lags glass tre/mur/betong.
Les forøvrig mer om byggemåte og den tekniske tilstanden i rapporten.
Det gjøres spesielt oppmerksom på:
TG1 (Alt i orden): 90%
TG2 (Alder, slitasje, skader mv.): 7%
TG3 (Strakstiltak nødvendig): 0%
TGIU (Ikke undersøkt): 3%
Følgende har fått tilstandsgrad 2 (det henvises til sidetall i tilstandsrapporten):
Innvendige trapper, s. 10. Trappen har ikke håndløper på begge sider og oppfyller dermed ikke dagens krav til sikkerhet iht. NS3600.
Etasjeskiller 1. etasje og 2 etasje- skjevhetsmåling, s. 11. noen merkbare skjevheter i 2.etg.
Yttervegger inkl. fasader og konstruksjon- fasader ink. kledning, s. 12. Musesikring kontrollert på tilfeldige steder, ikke tilstrekkelig i ytterhjørner og mot dører/vinduer. Bør kontrolleres og utbedres der hvor det er behov.
Inntrukket balkong over innvendige rom, s. 13. Bør etableres inspeksjonsmulighet i terrassebord. Rekkverk i tre er stedvis malingsslitt.
Utvendige trapper- helhetsvurdering, s. 13. Trappene har ikke håndløper på begge sider.
Fundamenter, s. 13. Det er gjort utbedringer etter takstmanns befaring på fundamenter. Selger har hatt folk til å utbedre/dokumentere tiltak. Rapporten er vedlagt salgsoppgaven i sin helhet.
Selger har fylt ut egenerklæringsskjema som er vedlagt salgsoppgaven i sin helhet. Skjemaet er kort oppsummert her, men det anbefales å lese gjennom hele for en fullstendig oversikt:
7. Skal utbedres før overtagelse.
10. Utettheter: Ja, har vært, er utbedret av utbygger.
Løsøre og tilbehør
Følgende hvitevarer medfølger: Oppvaskmaskin, koketopp, stekeovn og kombiovn - mikrobølge-og stekeovn. Kjøl-/fryseskap kan følge med mot et tillegg i prisen.
Vi viser til liste fra Norges Eiendomsmeglerforbund som gjelder fra 01.01.2020 angående løsøre og tilbehør.
Garderobeskap medfølger ikke.
Oppvarming
Elektrisk og gass. Gasspeis i stue oppe, samt varmekabler i gang, stue, vaskerom og to bad i 1. etasje.
Ferdigattest/brukstillatelse
Det foreligger ferdigattest på enebolig med integrert garasje, datert 10.10.2019. Denne kan fås ved henvendelse til megler.
Det er uvisst om det er gjort endringer etter at ferdigattest ble gitt, men selger opplyser at det ikke er foretatt endringer i selgers eiertid, med unntak av utbedring på fundamenter.
Tinglyste heftelser og rettigheter
På eiendommen er det tinglyst følgende servitutter og heftelser som følger eiendommens matrikkel ved overskjøting til ny hjemmelsshaver:
4213/59/408:
16.10.2015- Dokumentnr. 957716- Erklæring/avtale
Rettighetshaver: Glitre Nett AS
Org.nr: 982 974 011
Avtale om grunnrettigheter til jordkabler - 24kV
Bestemmelse om adkomstrett
Bestemmelse om bebyggelse
Med flere bestemmelser
Overført fra: Knr:4213 Gnr:59 Bnr:351
Gjelder denne registerenheten med flere
16.10.2015- Dokumentnr. 957745- Erklæring/avtale
Rettighetshaver: Glitre Nett AS
Org.nr: 982 974 011
Avtale om grunnrettigheter til nettstasjon
Bestemmelse om elektriske ledninger/kabler
Bestemmelse om adkomstrett
Bestemmelse om bebyggelse
Med flere bestemmelser
Overført fra: Knr:4213 Gnr:59 Bnr:351
Gjelder denne registerenheten med flere
Meglers forklaring av tinglyste dokumenter: Glitre Nett AS har rettigheter til å vedlikehold, adkomst og grunnrettigheter til jordkabel og nettstasjon. Dette er tinglyst på alle eiendommer på Tangenheia og gjelder der det er nettastasjon/jordkabler.
Servituttene vil følge eiendommen. Kjøpers bank vil få prioritet etter ovennevnte heftelser og servitutter.
Eventuell adgang til utleie
Eiendommen har ikke separat utleieenhet. Det vil normalt være anledning til utleie av hele eiendommen eller enkeltrom, såfremt utleiearealet er bygningsmessig godkjent for varig opphold og har forsvarlige radonnivåer.
Diverse
Vi er opptatt av verdiskapning, og har knyttet til oss samarbeidspartnere som skal sikre våre kunder de beste produkter og tjenester;
• Gjensidige leverer boligselgerforsikring og tilbyr bygningsforsikring
• Boligkjøperforsikring leveres av Hiscox og med Sedgwick som skadebehandler, og er formidlet gjennom Gjensidige.
• BN bank tilbyr finansieringsløsninger
• Vår avdeling Krogsveen Pluss tilbyr flyttetjenester som utvask, visningsvask, lager, tømming og transport av flyttelass, i tillegg til å formidle kontakt med Flip for overflateoppussing.
• I forbindelse med overtagelse av eiendommen tilbyr Overo avtale om strøm, alarm og bredbånd.
• Krogsveen er, sammen med øvrige bransjeaktører, medeier i den digitale annonseringsplattformen Hjem.
Energimerking
Megler har fylt ut en enkel energiattest, det tas forbehold om mindre avvik i denne.
Beliggenhet og tomteforhold
Beliggenhet og tomteforhold
Beliggenhet
Nydelig beliggenhet på populære Tangeheia, et nyere boligområde like utenfor sentrum av Tvedestrand. Boligområdet ligger på en ås med svært solfylte omgivelser og fantastisk utsikt ut mot Tvedestrandsfjorden. Eiendommen har spektakulære solforhold med sol til ca. 22:30 midtsommer. Det tar omtrent 15 minutter å gå til sentrum og kort avstand til gode bussforbindelser. I sentrum finner du en rekke flotte fasiliteter som koselige handlegater, restauranter, bakeriutsalg, gallerier og utstillinger. Fra eiendommen er det kort og trygg gangavstand til barnehage og skole. Det er kjøpesenter på Bergsmyr og ved Grenstøl (ca. 5 min. unna i bil).
Fra eiendommen er det kort vei til både friluftsliv og byliv. Det er snarvei til badeplass ved sjøen like ved, badeplass på Svarttjenn og fine turstier i området. Sentrumet er livlig på sommertid med mange besøkende i byen.
Det tar ca. 30 minutter med bil til Risør, og ca. 20 til Arendal.
Adkomst
Se kart eller kontakt megler for veibeskrivelse.
Barnehager, skoler og fritid
Barnehage:
Lyngbakken barnehage (1-5 år): 1.3 km
Bronsbu barnehage (1-5 år) : 3.4 km
Blåbærskogen naturbarnehage (0-5 år): 3.5 km
Skole:
Tvedestrand barneskole (1-7 kl.): 1.4 km
Lyngmyr skole (8-10 kl.): 1.4 km
Tvedestrand videregående skole: 3.2 km
Sam Eydes videregående skole: 26.8 km
Informasjon om tilhørende skolekretser er hentet fra Prognosesenteret som dataleverandør, og tilhørigheten kan årlig endres av kommunen. Dersom skole- og barnehagetilbud er av betydning for kjøpet, ber vi om at det rettes en særskilt henvendelse til kommunen/bydelsadministrasjonen for oppdatert informasjon.
Beskrivelse av tomt
Fantastisk fin og fritt beliggende eiendom, plassert i høyden med nydelige utsiktsforhold og solrike omgivelser. Boligen har to solfylte takterrasser hvor man kan nyte en helt fantastisk utsikt utover Tvedestrandsfjorden. Tomten er opparbeidet med asfaltert innkjørsel med god plass til biloppstilling, plen, pukk/grus og forstøtningsmur. Det er overbygd inngangsparti og en delvis overbygd platting i 1.etasje. Takterrassen i 2 etasje har adkomst fra innsiden og fra bakkeplan, og fra denne terrassen er det videre adkomst til takterrassen over 2 etasje. Eiendommens tomtegrenser er oppgitt som nøyaktige i grunnkart mottatt fra kommunen. Det ser ut som all bygningsmasse (hus/garasje) er innenfor tomtegrenser.
Parkering
Det er god plass til parkering på egen tomt, enten i tunet eller i integrert garasje. Det er installert elbillader i garasjen.
Vei, vann og avløp
Eiendommen har adkomst via kommunal vei.
Eiendommen er tilknyttet kommunalt ledningsnett via private stikkledninger. Eier er selv ansvarlig for private stikkledninger til boligen.
Regulerings-og arealplaner
Eiendommen er regulert til boligformål i henhold til reguleringsplan "Tangenheia" datert 21.02.2012. Reguleringsplankart er vedlagt salgsoppgaven.
Økonomi
Økonomi
Kommunale utgifter
I årlige kommunale avgifter inngår følgende (stipulert av kommunen for 2025):
Vann: kr 5.826,-
Avløp: kr 7.994,-
Feiing: kr 309,-
Eiendomsskatt kr 8.108,-
Renovasjon (leveres av RTA): kr 4.800,-
I årlige kommunale avgifter inkludert overnevnte beløp må kr. 27.037,-
Boligen har en årlig forsikringspremie på kr 11 664,- i Frende.
Boligen er tilknyttet fiber fra Telia for kr. 599,- pr. måned og 439 mbps. TV-tuner/dekoder medfølger ikke.
Utgiftene er basert på nåværende eiers forbruk og avtaler.
Formuesverdi
Formuesverdi for 2023 var kr 1 207 071,- ifølge skatteetaten. Beløpet forutsetter at eier bor fast i boligen (primærbolig).
Ved eventuell øvrig bruk av eiendommen (f.eks. fritidsbolig, pendlerbolig, utleieobjekt) var formuesverdien for 2023 kr 4 828 285,-.
Formuesverdien justeres normalt årlig. Se skatteetaten.no for mer informasjon om fastsettelse av formuesverdien.
Eiendomsskatt
Det er eiendomsskatt i Tvedestrand kommune.
Omkostninger
6 800 000,00 Prisantydning
Omkostninger
170 000,00 Dokumentavgift til staten (2,5% av kjøpesum)
19 900,00 Gjensidige Boligkjøperpakke (valgfri)
545,00 Tinglysing panterettsdokument
545,00 Tinglysing skjøte
--------------------------------------------------------
190 990,00 Omkostninger totalt
--------------------------------------------------------
6 990 990,00 Totalpris inkl. omkostninger
--------------------------------------------------------
Totalpris inkl. omkostninger forutsetter kjøp til prisantydning.
Det tas forbehold om endringer i avgifter og gebyrer.
Betalingsbetingelser
Kjøpesum inkludert omkostninger, samt pantedokument tilknyttet eventuelt lån, skal være disponibelt hos megler 2 virkedager før overtagelsen.
Annen viktig informasjon
Annen viktig informasjon
Eier
Omar Pawe og Janne Larsen Bodin
Overtakelse
Etter nærmere avtale.
Boligselgerforsikring
Selger har i forbindelse med salget tegnet boligselgerforsikring levert av Gjensidige.
Boligselgerforsikringen dekker selgers ansvar etter avhendingsloven begrenset oppad til kr 14 millioner. Dersom kjøper oppdager forhold ved eiendommen som hen mener utgjør en mangel ved eiendommen, vil Gjensidige behandle reklamasjonen på vegne av selger. Forsikringsvilkår kan fås ved henvendelse til megler.
Vedlagt salgsoppgaven følger selgers egenerklæringsskjema og tilstandsrapport. Interessenter må sette seg inn i dokumentene før bud inngis.
Boligkjøperforsikring
Innen kontraktsmøtet må kjøper ta stilling til om det ønskes å bestille Boligkjøperpakken gjennom Gjensidige. I denne gunstige pakken er boligen ferdig forsikret og inkluderer rettshjelpsforsikring, også kalt Boligkjøperforsikring. Rettshjelpsforsikring gir trygghet og tilgang på profesjonell juridisk hjelp dersom det oppdages uventede feil eller mangler det første året etter overtagelse. Forsikringsselskapet behandler i så fall ethvert mangelskrav kjøper måtte ha overfor selger.
Boligkjøperpakken inkluderer bygningsforsikring for hus og hytte, innboforsikring, flytteforsikring og dobbel rentedekning - i situasjoner hvor kjøper ikke får solgt nåværende primærbolig.
Kjøper mottar ingen særskilt faktura for Boligkjøperpakken da kostnaden det første året legges til kjøpesummen for boligen. Det gjøres oppmerksom på Krogsveen mottar et honorar for denne formidlingen.
Produktark for Boligkjøperpakken ligger vedlagt i salgsoppgaven.
Dersom ikke boligkjøperpakke ønskes kan kun rettshjelpsforsikring, også kalt boligkjøperforsikring, tegnes særskilt via megler. Rettshjelpsforsikringen varer i 5 år fra overtagelse og leveres gjennom Gjensidige. Ta kontakt med megler for ytterligere informasjon.
Selskap og privatpersoner som driver med kjøp/salg/utvikling som ledd i egen næringsvirksomhet kan ikke tegne boligkjøperpakke eller rettshjelpsforsikring.
Budgivning
Forbrukerinformasjon om budgivning er vedlagt denne salgsoppgaven og er også på vår hjemmeside Krogsveen.no. Alle bud og budforhøyelser må inngis skriftlig. I tillegg må legitimasjon være fremlagt sammen med signatur fra budgiver.
Vi oppfordrer til å gi bud elektronisk via GI BUD-knappen på eiendommens hjemmeside på Krogsveen.no. Da vil samtlige vilkår bli oppfylt.
Eventuelle forhøyelser eller endringer av budet kan bekreftes pr SMS eller på e-post. Vi oppfordrer alltid til å kontakte megler pr. telefon i tillegg da forsinkelser i SMS og e-post kan forekomme.
For at budene skal kunne bli behandlet og videreformidlet skriftlig til alle involverte parter, må alle bud ha en tilstrekkelig lang akseptfrist, jf. eiendomsmeglingsforskriften § 6-3.
Selger må også skriftlig akseptere budet før aksept kan formidles til budgiver. Akseptfrist bør derfor være på minimum 30 minutter, og budforhøyelser må derfor skje i god tid før fristens utløp.
Bud i forbrukerforhold kan uansett ikke settes med kortere frist enn kl. 12.00 første virkedag etter siste annonserte visning. I tillegg kan ikke budet ha forbehold om at det skal holdes hemmelig ovenfor øvrige interessenter. Megler har iht lov om eiendomsmegling ikke anledning til å videreformidle disse budene, og de vil dermed heller ikke bli journalført.
Etter at eiendommen er solgt vil kjøper og selger få tilsendt budjournal. Øvrige budgivere kan få utlevert kopi av budjournalen i anonymisert form.
Hvitvaskingsreglene
I henhold til lov om hvitvasking og terrorfinansiering har megler plikt til å gjennomføre kontrolltiltak overfor kunder, herunder fullmektiger. Dette innebærer bl.a. å bekrefte kunders og reelle rettighetshaveres identitet på bakgrunn av fremvist gyldig legitimasjon eller på annen godkjent måte, samt å innhente opplysninger om kundeforholdets formål og tilsiktede art.
Dersom slike kundetiltak ikke kan gjennomføres, kan megler ikke etablere kundeforholdet eller utføre transaksjonen.
Hvis kjøper ikke bidrar til gjennomføring av kundekontrollen og dette fører til at transaksjonen blir forsinket eller ikke kan gjennomføres, vil dette ansees som mislighold av avtalen og gi selger rettigheter etter avhendingslova kapittel 5. I tilfeller der selger ikke bidrar til gjennomføring av løpende kundekontroll underveis i oppdraget, er det selger som misligholder sine forpliktelser etter avtalen og gi kjøper rettigheter etter avhendingslovens kapittel 4. Partene er selv ansvarlige for eventuelle kostnader og ansvar dette kan medføre. Eiendomsmegleren eller eiendomsmeglingsforetaket kan ikke holdes ansvarlig for de konsekvenser dette vil kunne få for partene eller andre som har interesser i eiendomshandelen.
Kjøper oppfordres til å innbetale kjøpesummen som ikke kommer fra låneinstitusjon i én samlet innbetaling fra egen konto i norsk bank. Megler har plikt til å melde fra til Økokrim om eiendomshandler som fremstår som mistenkelige. Melding sendes Økokrim uten at partene varsles.
Personopplysningsloven
I henhold til personopplysningsloven gjør vi oppmerksom på at interessenter kan bli registrert for videre oppfølging.
Lovanvendelse
Generelle bestemmelser
Salgsoppgaven er basert på de opplysningene selger har gitt til megler, den bygningssakyndiges tilstandsrapport, samt opplysninger innhentet fra kommunen, Kartverket og andre tilgjengelige kilder. Det er viktig at kjøper setter seg grundig inn i alle salgsdokumentene, herunder salgsoppgave, tilstandsrapport og selgers egenerklæring. Kjøper anses kjent med forhold som er tydelig beskrevet i salgsdokumentene, og slike forhold kan ikke påberopes som mangler. Dette gjelder uavhengig av om kjøper har lest dokumentene. Alle interessenter oppfordres til å undersøke eiendommen nøye, gjerne sammen med fagkyndig før bud inngis. Kjøper som velger å kjøpe usett kan ikke gjøre gjeldende som mangel noe han burde blitt kjent med ved undersøkelsen.
Dersom det er behov for avklaringer, anbefaler vi at interessenter rådfører seg med eiendomsmegler eller egne rådgivere før det legges inn bud.
En bolig som har blitt brukt i en viss tid, har vanligvis blitt utsatt for slitasje og skader kan ha oppstått. Slik bruksslitasje må kjøper regne med, og det kan avdekkes enkelte forhold etter overtakelse som nødvendiggjør utbedringer. Normal slitasje og skader som nødvendiggjør utbedring, er innenfor hva kjøper må forvente og vil ikke utgjøre en mangel.
Kjøper og selgers rettigheter og plikter reguleres av avtalen mellom partene, samt informasjonen som har vært tilgjengelig for kjøperen i forbindelse med handelen. Avtalen utfylles av avhendingsloven, og det gjelder ulike avtalevilkår avhengig av om kjøper er forbrukerkjøper eller ikke. Dette er nærmere beskrevet nedenfor.
På grunn av ulike avtalevilkår kan selger vurdere bud fra en som ikke er forbruker, ulikt fra en forbrukers bud. Dersom kjøper ikke er forbruker, er selger sitt mulige mangelsansvar begrenset fordi eiendommen selges "som den er". Selger kan ikke ta «som den er»- forbehold overfor en forbrukerkjøper. Selv et lavere bud fra en som ikke er forbruker kan foretrekkes fordi begrensningen i mulig mangelsansvar kan ha egenverdi for selger. Selger står fritt til å forkaste eller akseptere ethvert bud, og er for eksempel ikke forpliktet til å akseptere høyeste bud.
Budgiver skal i budskjema avgi egenerklæring om budgiver er forbruker eller næringsdrivende/ person som hovedsakelig handler som ledd i næringsvirksomhet. Budgivere får informasjon dersom andre bud er inngitt av en som ikke er forbruker.
Forbrukerkjøp - definisjon
Med forbrukerkjøp menes kjøp av eiendom når kjøperen er en fysisk person som ikke hovedsakelig handler som ledd i næringsvirksomhet.
Forbruker – avtalevilkår
Eiendommen har en mangel dersom den ikke er i samsvar med kravene som følger av avtalen, eller det foreligger brudd på bestemmelsene i avhendingsloven §§ 3-2 til 3-8. Hvis eiendommen ikke er i samsvar med det kjøperen må kunne forvente ut ifra alder, type og synlig tilstand, kan det være grunnlag for mangelskrav. Det samme gjelder hvis det er holdt tilbake eller gitt uriktige opplysninger om eiendommen. Dette gjelder likevel bare dersom man kan gå ut ifra at det virket inn på avtalen at opplysningen ikke ble gitt eller at mangelskravet ikke blir rettet i tide på en tydelig måte.
Boligen kan ha en mangel etter avhendingsloven § 3-3 andre ledd, dersom det er avvik mellom opplyst og faktisk innvendig areal, forutsatt at avviket er på 2% eller mer og minimum 1 kvm.
Ved beregning av et eventuelt prisavslag eller erstatning må kjøper selv dekke tap/kostnader opptil et beløp på kr 10 000 (egenandel).
Ikke-forbruker (næringsdrivende) – definisjon
Hvis kjøper er en juridisk person, eller en fysisk person som hovedsakelig handler som ledd i næringsvirksomhet, vil kjøpet ikke anses som et forbrukerkjøp.
Ikke-forbruker – avtalevilkår
Eiendommen har en mangel dersom den ikke er i samsvar med kravene som følger av avtalen.
Eiendommen selges «som den er», og selgers ansvar utover det konkret avtalte er da begrenset etter avhendingsloven § 3-9, første ledd andre setning.
Avhendingsloven § 3-3 andre ledd fravikes, og hvorvidt boligens arealsvikt utgjør en mangel vurderes etter avhendingsloven § 3-8.
Informasjon om kjøpers undersøkelsesplikt, herunder oppfordringen om å undersøke eiendommen nøye, gjelder også for kjøpere som ikke anses som forbrukere.
Det forutsettes at hjemmel overføres til kjøper. Hvis kjøper ikke ønsker hjemmelsoverføring av eiendommen, må det tas forbehold om dette i budet.
Meglers vederlag
Meglers vederlag betales av selger og er avtalt til:
Vederlag: 0,90% av salgssummen inkl. eventuell fellesgjeld. Minimumsprovisjon er kr 55.000,-
Tilrettelegging fra kr 9.900,-
Oppgjør: kr 7.500,-
Markedspakke: kr 26.900,-
Visninger pr stk/overtagelse: kr 990,-
Oppslag eiendomsregister: kr 2.900,-
Megler har i tillegg krav på dekning av følgende utlegg: Innhenting av dokumenter servitutter fra grunnboken kr 260 pr stk, innhenting av offentlige opplysninger Tvedestrand kommune kr 4.650,-, tinglysning sikring kr 545,-, foto ca. 5.900,-.
Opplysninger om oppdraget
Oppdragsnummer 47-0116/25
Eiendomsmegler Krogsveen AS, avd. Arendal
Kystveien 14, 4841, ARENDAL
950 007 613
Oppdragets KR-kode KR47.25116
Dato
Sist oppdatert: 08. april 2026 kl. 11:46
Dokumenter
Dokumenter
PDF – 526 KB
PDF – 914 KB
PDF – 312 KB
PDF – 29 KB
PDF – 127 KB
PDF – 392 KB
Område
Legg til steder som er viktige for deg
Visning
For å delta på visning, ber vi om at du melder deg på. Da sikrer vi at du får nødvendig informasjon og at det er satt av tilstrekkelig med tid. Kontakt megler dersom annet tidspunkt ønskes. Husk å lese salgsoppgaven før visningen, så du stiller forberedt. NB. Visning utgår dersom det ikke er noen påmeldte.
Ønsker du kun å bli holdt orientert, kan du fra eiendommens hjemmeside få varsel om solgtpris, eller kontakte megler.
Lurer du på noe?
Unngå doble boligrenter
Vi tilbyr gunstig forsikring.
Vurderer du utleie?
Få et tilbud fra Utleie KrogsveenHva koster lånet?
Sjekk estimert lånekostnadVil du varsles om lignende boliger?
Ved å lagre ditt boligsøk hos oss får du beskjed når vi har en bolig som ligner denne, før den legges ut på markedet!


