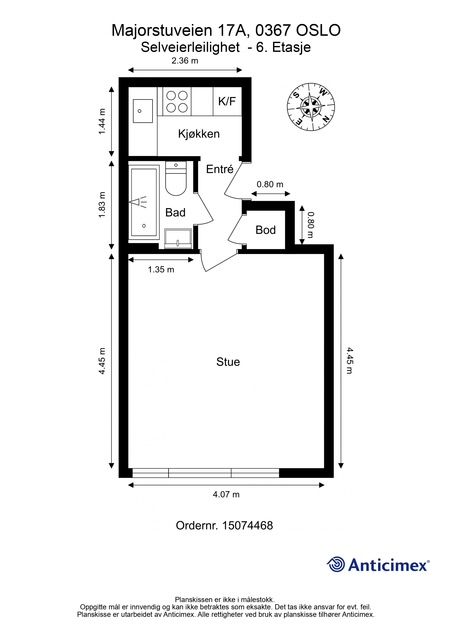
Majorstuveien 17A
3 300 000 kr
27 m²
Solgt

Majorstuen
Lys 1-roms med arealsmart planløsning | Oppussingsobjekt| Perfekt førstegangskjøp | IN-ordning | Lave felleskost.
Prisantydning
3 300 000 krAndel fellesgjeld
35 130 krOmkostninger
94 410 krTotalpris
3 429 540 kr
Pris
Bruksareal
30 m²BRA-I (internt bruksareal)
27 m²BRA-E (eksternt bruksareal)
3 m²
Areal
Etasje
6Byggeår
1936Bad
1 badType
EierleilighetEierform
EierseksjonFasiliteter
HeisFellesutgifter
2 296 krEnergimerke
Grønn G
Nøkkelinfo
Unngå doble boligrenter
Vi tilbyr gunstig forsikring.
Vurderer du utleie?
Få et tilbud fra Utleie KrogsveenHva koster lånet?
Sjekk estimert lånekostnadBeskrivelse
Kort om eiendommen
Velkommen til Majorstuveien 17A!
En arealsmart 1-roms leilighet med ypperlig plassering i hjertet av Majorstuen. Leiligheten har en åpen planløsning som sikrer god romfølelse og smarte møbleringsløsninger. Eiendommen ligger attraktivt til i et etterspurt boligområde, med umiddelbar nærhet til et rikt utvalg av byens fasiliteter, servicetilbud og kulturopplevelser. Området har også svært gode kollektivforbindelser. Her har man gode muligheter for å skape et nytt koselig hjem, eller bo i den slik den står i dag.
Høydepunkter:
- Sentral beliggenhet.
- Varmtvann og fyring inkludert i felleskost.
- IN-ordning.
- Perfekt førstegangskjøp.
- Parkeringsmuligheter i sameiet.
- Grunnpakke TV-signaler/internett inkludert i felleskost.
- Heis.
Velkommen til visning!
Område
Legg til steder som er viktige for deg
På flyttefot? Tenk kjøp og salg samtidig.
Få din egen rådgiver gjennom hele kjøps- og salgsprosessen. Det starter med en verdivurdering.
Unngå doble boligrenter
Vi tilbyr gunstig forsikring.
Vurderer du utleie?
Få et tilbud fra Utleie KrogsveenHva koster lånet?
Sjekk estimert lånekostnadVil du varsles om lignende boliger?
Ved å lagre ditt boligsøk hos oss får du beskjed når vi har en bolig som ligner denne, før den legges ut på markedet!

