Liavegen 107
2 250 000 kr
95 m²
3 soverom
Komplett salgsoppgave
Lia Hyttegrend
Lekker og svært velholdt helårshytte med idyllisk beliggenhet rett ved Telemarkskanalen! Svært gode solforhold!
Prisantydning
2 250 000 krOmkostninger
77 240 krTotalpris
2 327 240 kr
Pris
Bruksareal
118 m²BRA-I (internt bruksareal)
95 m²BRA-E (eksternt bruksareal)
23 m²TBA (terrasse-balkongareal)
49 m²
Areal
Etasje
2Byggeår
1974Soverom
3 soveromBad
1 badTomteareal
1 514 m² (eiet)Type
Fritidseiendom innlandetEierform
EietFasiliteter
Garasje/P-plass og Balkong/TerrasseEnergimerke
Oransje F
Nøkkelinfo
Vurderer du utleie?
Få et tilbud fra Utleie KrogsveenHva koster lånet?
Sjekk estimert lånekostnadBeskrivelse
Kort om eiendommen
Innhold og byggemåte
Innhold og byggemåte
Eiendommen
Liavegen 107, 3825 LUNDE
Kommunenummer 4018, gårdsnummer 91, bruksnummer 31, ideell andel 1/1
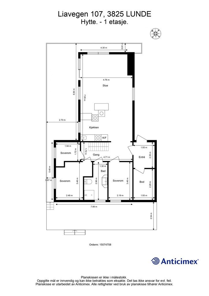
Innhold
BRA-i:
Fritidsbolig:
1. etasje 84 kvm: Entré, gang, stue, kjøkken, bod, bad og tre soverom.
2. etasje 11 kvm: Gang og loftstue.
BRA-e:
Fritidsbolig:
1. etasje 5 kvm: Redskapsbod og utedo.
Garasje:
1. etasje 18 kvm: Garasje.
Åpent areal:
Fritidsbolig:
1. etasje 49 kvm: Terrasse.
Vi gjør oppmerksom på areal som ikke er måleverdig som bruksareal:
Kun deler av arealet i entré og bod er måleverdig som bruksareal. Arealene har et totalt gulvareal på 10 kvm, men grunnet lav takhøyde er kun 8 kvm av arealet måleverdig som bruksareal. De delene av arealene som har lav himlingshøyde utgjør 2 kvm. 2.etasje har et totalt gulvareal på 21 kvm, men grunnet skråtak/lav takhøyde er kun 11 kvm av arealet måleverdig som bruksareal. De delene av arealene som har lav himlingshøyde utgjør 10 kvm.
Vedlagte plantegninger er ikke målbare. De oppgitte arealer er hentet fra rapport med befaringsdato 13.08.2025 utført av Anticimex v/Joakim Havem. Arealene er beregnet og rom er definert etter dagens faktiske bruk, uavhengig av hva som er godkjent av bygningsmyndighetene.
Byggemåte
Selger har fått utarbeidet en tilstandsrapport, dvs. en teknisk gjennomgang av boligen hvor eventuelle avvik, risiko for kjøper og prisoverslag for hva som bør gjøres av oppgradering, er skissert. Se særskilt TGIU (tilstandsgrad ikke undersøkt), samt TG2 og TG3 som viser hva som er boligens normale slitasje, alder og type, hva som er avvik fra dette og hva som bør/må utbedres. Rapporten og selgers egenerklæring er en del av salgsoppgaven og må leses nøye før bud inngis. Kjøper overtar ansvaret for de opplysninger som fremkommer av salgsdokumentasjonen, og kan ikke gjøre gjeldende som mangel noe som burde vært kjent eller som ikke kan anses å ha betydning for avtalen.
Bygningen er iht. tilstandsrapporten oppført på søylefundamenter og noe grunnmur av lettklinkerblokker. Fasade kledd med stående trekledning. Etasjeskiller av trekonstruksjoner. Saltak i trekonstruksjoner. Yttertak tekket med metallplater. Les forøvrig mer om byggemåte og den tekniske tilstanden i rapporten.
Det gjøres oppmerksom på følgende forhold som har fått TG2:
- Våtrom: Ingen ventilasjon i rommet. Vannrør av kobber er vurdert til å ha en alder som har passert anbefalt brukstid. Det er ikke benyttet elastisk fugemasse mellom gulv- og veggfliser enkelte steder. Elastiske flisfuger har stedvis manglende vedheft. Tettesjiktet har en alder som tilsier at restlevetiden er usikker. Fornying av slukmansjett og tettesjikt bør påregnes. Avløpsrør har en alder som tilsier at anbefalt brukstid er passert. Foreligger lite informasjon om våtrommet generelt og utførelsen bærer preg av noe egeninnsats.
- Kjøkken: Varmtvannsbereder er plassert i rom uten sluk/overløp. Skapbunnen er svekket ved varmtvannsberederen. Usikker restlevetid på berederen. Vannrør av kobber er vurdert til å ha en alder som tilsier at anbefalt brukstid er passert. Det registreres bomlyd under enkelte gulvfliser. Avløpsrør er vurdert til å ha en alder som tilsier at anbefalt brukstid er passert.
- Øvrige rom: Stedvis knirk i gulvflater. Moderate tegn til bomlyd under enkelte gulvfliser i entré/gang. Stedvis riper/bruksmerker i gulvet overflatemateriale. Stedvis sprekker mellom gulvbord. Det ble registrert noe fuktskader på parkettgulv under varmtvannsbereder i bod, det ble overflatesøkt med fuktindikasjonsinstrument og det ble registrert forhøyde verdier.
- 2.etg/loft: Det registreres stedvis riper/hakk i gulvets overflatemateriale. Konstruksjonene er lukket og det er ikke kjent hvordan oppbygningen er utført.
- Uinnredet loft: Det registreres svertesopp enkelte steder i undertak. Observert spor etter aktivitet av gnagere. Kontroll av dampsperre mellom kald og varm sone er ikke mulig grunnet lukket konstruksjon. Taket på hytten er bygget over den opprinnelige hytten. Kun tilgang for inspeksjon av den nye delen av loftet.
- Innvendig trapper: Trappen har ikke håndløpere på begge sider. Rekkverket og trappen har åpninger på mer enn 0,10 m.
- Etasjeskiller 1.etg: Største målte avvik er målt i stue. Avviket er målt til 22 mm.
- Radon: Ikke foretatt radonmåling.
- El anlegg: Det foreligger kontroll fra det lokale el-tilsynet (datert innenfor de siste fem år). TG2 settes grunnet manglende samsvarserklæring.
- Yttervegger: Registrert sprekker enkelte steder i kledningen og på vindskibord. Luftespalte bak trekledning er stedvis blokkert. Ukjent om det er musesperre rundt hele hytten.
- Yttertak: Det kan ikke verifiseres at det er etablert tilstrekkelig lufting i gesims rund hele hytten.
- Terrasse: Rekkverkshøyden er under 1,0 m. Det registreres noe skjevheter i søylene/pilarene som danner terrassens fundamenter.
- Grunnmur/Fundamenter: Det registreres riss på grunnmur, enkelte skjevheter og noe avskallinger. Noe skjevheter i søyler/pilarer som danner fundamenter, samt enkelte skjeve bjelker. Det registreres at stubloftsplatene under hytten stedvis har glipper og noen løse plater.
- Drenering: Hytten er oppført på søylefundamenter og det vurderes til at det ikke er etablert drenering/drenerende masse under hytten. Helhetsvurdering.
- Stikkledninger og tank: Boligen har brønnvann, ingen fremlagt dokumentasjon på vannkvalitet. Septiktank fra 2001.
- Frittstående bod: Helhetsvurdering.
- Garasje: Helhetsvurdering.
Det gjøres spesielt oppmerksom på følgende forhold som har fått TG3:
- Våtrom: Registreres betydelig bomlyd og enkelte løse gulvfliser. Stedvis knirk i gulvflater. Det registreres motfall rundt sluk. Stedvis motfall på gulvflater utenfor dusjsone. Registreres motfall på 15mm fra topp sluk til dørterskel.
Følgende forhold har ikke blitt undersøkt (TGIU):
Byggegrunn: Byggegrunnens beskaffenhet er ukjent.
Se supplerende tekst i tilstandsrapporten. Kjøper overtar ansvar og risiko for dette.
Moderniseringer og påkostninger
Boligen er modernisert og påbygd i 2000.
Standard
Bad: 2002. Gulv og vegger belagt med flis. Varme i gulv. Himling med malt trepanel. Innredning med slette fronter med heldekkende servant med ett-greps blandebatteri. Speilskap med overlys. Vannrør av kobber. Avløpsrør i plastmateriale. Dusjkabinett med skyvedører og to-greps blandebatteri. Gulvstående toalett. Opplegg for vaskemaskin.
Kjøkken: 2002. Innredning med profilerte fronter. Laminert benkeplate med nedsenket oppvaskkum i metall med ett-greps blandebatteri. Frittstående hvitevarer. Vannrør av kobber. Avløpsrør i plastmateriale. Gulvflate belagt med flis. Varme i gulv. Vegger og tak med trepanel.
Øvrige rom: Gulvflater belagt med flis i entré og gang, laminat i stue og heltregulv i resterende rom. Vegger og tak med trepanel. Gulvvarme i entré og gang. Peisovn og varmepumpe i stue. Profilerte innerdører. Elektrisk oppvarming. Naturlig ventilasjon.
2.etg: Innredet loftstue. Gulvflater av heltre. Vegger og tak med trepanel. Slette innerdører. Naturlig ventilasjon. Elektrisk oppvarming. Uinnredet kaldtloft.
Løsøre og tilbehør
Fritidsboligen selges med alt inventar, utenom personlige gjenstander.
Vi viser til liste fra Norges Eiendomsmeglerforbund som gjelder fra 01.01.2020 angående løsøre og tilbehør.
Oppvarming
Peis med innsats i stue. Vedkomfyr på kjøkken. Nyere varmepumpe i stue. varmekabler i entré, kjøkken og bad.
Dersom beboelsesrom ikke har vegg- eller fastmonterte varmekilder ved visning, følger dette heller ikke med.
Ferdigattest/brukstillatelse
Eiendommen har vært brukt til fritidsboligformål siden 1974
Kommunen opplyser at det ikke foreligger ferdigattest eller midlertidig brukstillatelse for eiendommen.
Det er gitt ferdigattest for tilbygg på fritidsboligen med utslipp til tett tank 19.09.2002.
Kjøper overtar ansvaret forbundet med dette.
Tinglyste heftelser og rettigheter
Eiendommen overdras fri for pengeheftelser
Det er tinglyst følgende servitutter på eiendommen. Dagboknr 203, tinglyst 14.01.1983, type heftelse: Bestemmelse om vannrett og hjemmet til eiendomsrett.
Dagboknr 579122, tinglyst 18.05.2021, type heftelse: Bestemmelse om brønnrett.
Servituttene vil følge eiendommen. Kjøpers bank vil få prioritet etter ovennevnte heftelser og servitutter.
Eventuell adgang til utleie
Fritidseiendommen har ikke separat utleiedel. Det vil normalt være anledning til utleie av hele eiendommen eller enkeltrom, såfremt utleiearealet er bygningsmessig godkjent for varig opphold.
Diverse
Tilbud av produkter og tjenester fra våre samarbeidspartnere
VI er opptatt av verdiskapning, og har knyttet til oss samarbeidspartnere som skal sikre våre kunder de beste produkter og tjenester;
• Gjensidige leverer boligselgerforsikring og tilbyr bygningsforsikring
• Boligkjøperforsikring leveres av Hiscox og med Sedgwick som skadebehandler, og er formidlet gjennom Gjensidige.
• BN bank tilbyr finansieringsløsninger
• Vår avdeling Krogsveen Pluss tilbyr flyttetjenester som utvask, visningsvask, lager, tømming og transport av flyttelass, i tillegg til å formidle kontakt med Flip for overflateoppussing.
• I forbindelse med overtagelse av eiendommen tilbyr Overo avtale om strøm, alarm og bredbånd.
• Krogsveen er, sammen med øvrige bransjeaktører, medeier i den digitale annonseringsplattformen Hjem.
Beliggenhet og tomteforhold
Beliggenhet og tomteforhold
Beliggenhet
Eiendommen ligger i Lia Hyttegrend - et område med fritidsbebyggelse og landbruk. Fritidsboligen ligger høyt og fritt. Meget solrik og vakker utsikt til Telemarkskanelen, Nomevatn og områdene mot vest.
Adkomst
Veibeskrivelse Se Google maps - det er enkelt å finne frem i kartet.
Det vil bli skiltet med Krogsveen visningsskilt ved fellesvisninger.
Beskrivelse av tomt
Eiertomt på 1 513 kvm. Pent opparbeidet med stein, plen og prydevekster. Delvis naturtomt.
Vei, vann og avløp
Eiendommen har adkomst via privat vei med felles vedlikeholdsansvar.
Eiendommen har privat septiktank. Kommunen har en generell hjemmel til å kreve at eiendommer med privat septiktank kobler seg til det offentlige avløpsnettet. Kontakt megler for ytterligere informasjon.
Eiendommen har privat brønn sammen med nabo som vannkilde. Brønnen er fra 2018. Brønnen er i forbindelse med salget ikke undersøkt og det er ikke tatt vannprøver selger bekjent. Det tas forbehold om vannkvalitet og brønnens tilstand.
Regulerings-og arealplaner
Eiendommen ligger i et uregulert område, men er i kommuneplanens arealdel datert 14.12.2021 avsatt til: Fritidsbebyggelse - Nåværende.
Utsnitt av plan med tilhørende bestemmelser kan fås ved henvendelse til megler.
Økonomi
Økonomi
Kommunale utgifter
Årsprognose for kommunale avgifter i 2025 er kr 11.988,-. I dette inngår gebyr for eiendomsskatt, renovasjon, årlig slamtømming og feiing/tilsyn.
Nåværende eier har et strømforbruk som tilsvarer ca. 10.000 - 12.000 kwh. pr. år.
Utgiftene er basert på nåværende eiers forbruk og avtaler.
Formuesverdi
Formuesverdi for 2023 var kr 236.183,- ifølge skatteetaten.
Eiendomsskatt
Eiendomsskatten utgjør kr. 2.181 pr 2025. Eiendomsskatteen er inkludert i kommunale avgifter.
Omkostninger
2 250 000,00 Prisantydning
Omkostninger
56 250,00 Dokumentavgift til staten (2,5% av kjøpesum)
19 900,00 Gjensidige Boligkjøperpakke (valgfri)
545,00 Tinglysing panterettsdokument
545,00 Tinglysing skjøte
--------------------------------------------------------
77 240,00 Omkostninger totalt
--------------------------------------------------------
2 327 240,00 Totalpris inkl. omkostninger
--------------------------------------------------------
Totalpris inkl. omkostninger forutsetter kjøp til prisantydning.
Det tas forbehold om endringer i avgifter og gebyrer.
Betalingsbetingelser
Kjøpesum inkludert omkostninger, samt pantedokument tilknyttet eventuelt lån, skal være disponibelt hos megler 2 virkedager før overtagelsen.
Annen viktig informasjon
Annen viktig informasjon
Eier
Åge Pettersen og Bodil Synnøve Pettersen
Overtakelse
Etter nærmere avtale. Selger opplyser om at overtagelse kan skje hurtig om ønskelig.
Boligselgerforsikring
Selger har i forbindelse med salget tegnet boligselgerforsikring levert av Gjensidige.
Boligselgerforsikringen dekker selgers ansvar etter avhendingsloven begrenset oppad til kr 14 millioner. Dersom kjøper oppdager forhold ved eiendommen som hen mener utgjør en mangel ved eiendommen, vil Gjensidige behandle reklamasjonen på vegne av selger. Forsikringsvilkår kan fås ved henvendelse til megler.
Vedlagt salgsoppgaven følger selgers egenerklæringsskjema og tilstandsrapport. Interessenter må sette seg inn i dokumentene før bud inngis.
Boligkjøperforsikring
Innen kontraktsmøtet må kjøper ta stilling til om det ønskes å bestille Boligkjøperpakken gjennom Gjensidige. I denne gunstige pakken er boligen ferdig forsikret og inkluderer rettshjelpsforsikring, også kalt Boligkjøperforsikring. Rettshjelpsforsikring gir trygghet og tilgang på profesjonell juridisk hjelp dersom det oppdages uventede feil eller mangler det første året etter overtagelse. Forsikringsselskapet behandler i så fall ethvert mangelskrav kjøper måtte ha overfor selger.
Boligkjøperpakken inkluderer bygningsforsikring for hus og hytte, innboforsikring, flytteforsikring og dobbel rentedekning - i situasjoner hvor kjøper ikke får solgt nåværende primærbolig.
Kjøper mottar ingen særskilt faktura for Boligkjøperpakken da kostnaden det første året legges til kjøpesummen for boligen. Det gjøres oppmerksom på Krogsveen mottar et honorar for denne formidlingen.
Produktark for Boligkjøperpakken ligger vedlagt i salgsoppgaven.
Dersom ikke boligkjøperpakke ønskes kan kun rettshjelpsforsikring, også kalt boligkjøperforsikring, tegnes særskilt via megler. Rettshjelpsforsikringen varer i 5 år fra overtagelse og leveres gjennom Gjensidige. Ta kontakt med megler for ytterligere informasjon.
Selskap og privatpersoner som driver med kjøp/salg/utvikling som ledd i egen næringsvirksomhet kan ikke tegne boligkjøperpakke eller rettshjelpsforsikring.
Budgivning
Forbrukerinformasjon om budgivning er vedlagt denne salgsoppgaven og er også på vår hjemmeside Krogsveen.no. Alle bud og budforhøyelser må inngis skriftlig. I tillegg må legitimasjon være fremlagt sammen med signatur fra budgiver.
Vi oppfordrer til å gi bud elektronisk via GI BUD-knappen på eiendommens hjemmeside på Krogsveen.no. Da vil samtlige vilkår bli oppfylt.
Eventuelle forhøyelser eller endringer av budet kan bekreftes pr SMS eller på e-post. Vi oppfordrer alltid til å kontakte megler pr. telefon i tillegg da forsinkelser i SMS og e-post kan forekomme.
For at budene skal kunne bli behandlet og videreformidlet skriftlig til alle involverte parter, må alle bud ha en tilstrekkelig lang akseptfrist, jf. eiendomsmeglingsforskriften § 6-3.
Selger må også skriftlig akseptere budet før aksept kan formidles til budgiver. Akseptfrist bør derfor være på minimum 30 minutter, og budforhøyelser må derfor skje i god tid før fristens utløp.
Bud i forbrukerforhold kan uansett ikke settes med kortere frist enn kl. 12.00 første virkedag etter siste annonserte visning. I tillegg kan ikke budet ha forbehold om at det skal holdes hemmelig ovenfor øvrige interessenter. Megler har iht lov om eiendomsmegling ikke anledning til å videreformidle disse budene, og de vil dermed heller ikke bli journalført.
Etter at eiendommen er solgt vil kjøper og selger få tilsendt budjournal. Øvrige budgivere kan få utlevert kopi av budjournalen i anonymisert form.
Hvitvaskingsreglene
I henhold til lov om hvitvasking og terrorfinansiering har megler plikt til å gjennomføre kontrolltiltak overfor kunder, herunder fullmektiger. Dette innebærer bl.a. å bekrefte kunders og reelle rettighetshaveres identitet på bakgrunn av fremvist gyldig legitimasjon eller på annen godkjent måte, samt å innhente opplysninger om kundeforholdets formål og tilsiktede art.
Dersom slike kundetiltak ikke kan gjennomføres, kan megler ikke etablere kundeforholdet eller utføre transaksjonen.
Hvis kjøper ikke bidrar til gjennomføring av kundekontrollen og dette fører til at transaksjonen blir forsinket eller ikke kan gjennomføres, vil dette ansees som mislighold av avtalen og gi selger rettigheter etter avhendingslova kapittel 5. I tilfeller der selger ikke bidrar til gjennomføring av løpende kundekontroll underveis i oppdraget, er det selger som misligholder sine forpliktelser etter avtalen og gi kjøper rettigheter etter avhendingslovens kapittel 4. Partene er selv ansvarlige for eventuelle kostnader og ansvar dette kan medføre. Eiendomsmegleren eller eiendomsmeglingsforetaket kan ikke holdes ansvarlig for de konsekvenser dette vil kunne få for partene eller andre som har interesser i eiendomshandelen.
Kjøper oppfordres til å innbetale kjøpesummen som ikke kommer fra låneinstitusjon i én samlet innbetaling fra egen konto i norsk bank. Megler har plikt til å melde fra til Økokrim om eiendomshandler som fremstår som mistenkelige. Melding sendes Økokrim uten at partene varsles.
Personopplysningsloven
I henhold til personopplysningsloven gjør vi oppmerksom på at interessenter kan bli registrert for videre oppfølging.
Lovanvendelse
Generelle bestemmelser
Salgsoppgaven er basert på de opplysningene selger har gitt til megler, den bygningssakyndiges tilstandsrapport, samt opplysninger innhentet fra kommunen, Kartverket og andre tilgjengelige kilder. Det er viktig at kjøper setter seg grundig inn i alle salgsdokumentene, herunder salgsoppgave, tilstandsrapport og selgers egenerklæring. Kjøper anses kjent med forhold som er tydelig beskrevet i salgsdokumentene, og slike forhold kan ikke påberopes som mangler. Dette gjelder uavhengig av om kjøper har lest dokumentene. Alle interessenter oppfordres til å undersøke eiendommen nøye, gjerne sammen med fagkyndig før bud inngis. Kjøper som velger å kjøpe usett kan ikke gjøre gjeldende som mangel noe han burde blitt kjent med ved undersøkelsen.
Dersom det er behov for avklaringer, anbefaler vi at interessenter rådfører seg med eiendomsmegler eller egne rådgivere før det legges inn bud.
En bolig som har blitt brukt i en viss tid, har vanligvis blitt utsatt for slitasje og skader kan ha oppstått. Slik bruksslitasje må kjøper regne med, og det kan avdekkes enkelte forhold etter overtakelse som nødvendiggjør utbedringer. Normal slitasje og skader som nødvendiggjør utbedring, er innenfor hva kjøper må forvente og vil ikke utgjøre en mangel.
Kjøper og selgers rettigheter og plikter reguleres av avtalen mellom partene, samt informasjonen som har vært tilgjengelig for kjøperen i forbindelse med handelen. Avtalen utfylles av avhendingsloven, og det gjelder ulike avtalevilkår avhengig av om kjøper er forbrukerkjøper eller ikke. Dette er nærmere beskrevet nedenfor.
På grunn av ulike avtalevilkår kan selger vurdere bud fra en som ikke er forbruker, ulikt fra en forbrukers bud. Dersom kjøper ikke er forbruker, er selger sitt mulige mangelsansvar begrenset fordi eiendommen selges "som den er". Selger kan ikke ta «som den er»- forbehold overfor en forbrukerkjøper. Selv et lavere bud fra en som ikke er forbruker kan foretrekkes fordi begrensningen i mulig mangelsansvar kan ha egenverdi for selger. Selger står fritt til å forkaste eller akseptere ethvert bud, og er for eksempel ikke forpliktet til å akseptere høyeste bud.
Budgiver skal i budskjema avgi egenerklæring om budgiver er forbruker eller næringsdrivende/ person som hovedsakelig handler som ledd i næringsvirksomhet. Budgivere får informasjon dersom andre bud er inngitt av en som ikke er forbruker.
Forbrukerkjøp - definisjon
Med forbrukerkjøp menes kjøp av eiendom når kjøperen er en fysisk person som ikke hovedsakelig handler som ledd i næringsvirksomhet.
Forbruker – avtalevilkår
Eiendommen har en mangel dersom den ikke er i samsvar med kravene som følger av avtalen, eller det foreligger brudd på bestemmelsene i avhendingsloven §§ 3-2 til 3-8. Hvis eiendommen ikke er i samsvar med det kjøperen må kunne forvente ut ifra alder, type og synlig tilstand, kan det være grunnlag for mangelskrav. Det samme gjelder hvis det er holdt tilbake eller gitt uriktige opplysninger om eiendommen. Dette gjelder likevel bare dersom man kan gå ut ifra at det virket inn på avtalen at opplysningen ikke ble gitt eller at mangelskravet ikke blir rettet i tide på en tydelig måte.
Boligen kan ha en mangel etter avhendingsloven § 3-3 andre ledd, dersom det er avvik mellom opplyst og faktisk innvendig areal, forutsatt at avviket er på 2% eller mer og minimum 1 kvm.
Ved beregning av et eventuelt prisavslag eller erstatning må kjøper selv dekke tap/kostnader opptil et beløp på kr 10 000 (egenandel).
Ikke-forbruker (næringsdrivende) – definisjon
Hvis kjøper er en juridisk person, eller en fysisk person som hovedsakelig handler som ledd i næringsvirksomhet, vil kjøpet ikke anses som et forbrukerkjøp.
Ikke-forbruker – avtalevilkår
Eiendommen har en mangel dersom den ikke er i samsvar med kravene som følger av avtalen.
Eiendommen selges «som den er», og selgers ansvar utover det konkret avtalte er da begrenset etter avhendingsloven § 3-9, første ledd andre setning.
Avhendingsloven § 3-3 andre ledd fravikes, og hvorvidt boligens arealsvikt utgjør en mangel vurderes etter avhendingsloven § 3-8.
Informasjon om kjøpers undersøkelsesplikt, herunder oppfordringen om å undersøke eiendommen nøye, gjelder også for kjøpere som ikke anses som forbrukere.
Det forutsettes at hjemmel overføres til kjøper. Hvis kjøper ikke ønsker hjemmelsoverføring av eiendommen, må det tas forbehold om dette i budet.
Meglers vederlag
Meglers vederlag betales av selger og er avtalt til:
Vederlag: 2,00 % av salgssummen.
Kontroll av hjemmel og heftelser kr 2 900,00
Markedsføringspakke Fritid kr 27 400,00
Oppgjør kr 7 500,00
Tilrettelegging kr 15 000,00
Visninger pr stk / Overtagelse kr 2 000,00
Utlegg
Innhenting av offentlig opplysninger Nome komm. inkl tegninger kr 5 566,00
Tinglysing sikring kr 545,00
Andre utgifter
Annonse i TA - 2 innrykk kr 3 000,00
Boligselgerforsikring Gjensidige + tilstandsrapport kr 33 275,00
Foto - Fritid (kjøretillegg må påregnes) kr 4 750,00
Opplysninger om oppdraget
Oppdragsnummer 26-0051/25
Eiendomsmegler Krogsveen AS, avd. Skien
Langbrygga 9, 3724, SKIEN
950 007 613
Oppdragets KR-kode KR26.2551
Dato
Sist oppdatert: 15. mai 2026 kl. 13:26
Dokumenter
Dokumenter
PDF – 745 KB
PDF – 566 KB
PDF – 1012 KB
PDF – 1012 KB
PDF – 312 KB
PDF – 29 KB
PDF – 127 KB
PDF – 392 KB
Område
Legg til steder som er viktige for deg
Visning
For å delta på visning, ber vi om at du melder deg på. Da sikrer vi at du får nødvendig informasjon og at det er satt av tilstrekkelig med tid. Kontakt megler dersom annet tidspunkt ønskes. Husk å lese salgsoppgaven før visningen, så du stiller forberedt.
Ønsker du kun å bli holdt orientert, kan du fra eiendommens hjemmeside få varsel om solgtpris, eller kontakte megler.
Lurer du på noe?
Vurderer du utleie?
Få et tilbud fra Utleie KrogsveenHva koster lånet?
Sjekk estimert lånekostnadVil du varsles om lignende boliger?
Ved å lagre ditt boligsøk hos oss får du beskjed når vi har en bolig som ligner denne, før den legges ut på markedet!




