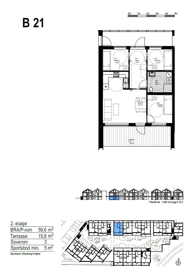
Hovdegrend - B 21
2 790 000 kr
59 m²
3 soverom
Komplett salgsoppgave
Hovden - Hovdegrend | Ny flott arealeffektiv leilighet klar for overtagelse - Sentralt plassert- 3 soverom
Prisantydning
2 790 000 krOmkostninger
254 717 krTotalpris
3 044 717 kr
Pris
Bruksareal
62 m²BRA-I (internt bruksareal)
59 m²BRA-E (eksternt bruksareal)
3 m²TBA (terrasse-balkongareal)
15 m²
Areal
Etasje
2Byggeår
2025Soverom
3 soveromBad
1 badType
Fritidseiendom på fjelletEierform
EierseksjonFasiliteter
Garasje/P-plass, Heis og Balkong/TerrasseFellesutgifter
1 510 kr
Nøkkelinfo
Vurderer du utleie?
Få et tilbud fra Utleie KrogsveenHva koster lånet?
Sjekk estimert lånekostnadBeskrivelse
Kort om enheten
- Velkommen til Leilighet B 21 - En av i alt 32 flotte leiligheter midt i smørøyet på Hovden
Prosjektet ligger meget sentralt til rett ved dagens sentrum og langrennsløypa som nærmeste nabo.
Her vil du kunne gå rett ut fra smøreboden i parkeringskjelleren og ut i den flotte lysløypa. Rema 1000 og Vinmonopolet finner du i første etasje ellers er det gangavstand til alle Hovdens fasiliteter som butikker, Hovden Fjellbad, serveringsteder og alpinanlegg.
Elven Otra renner like forbi og har mang en flott bade og fiskeplass sommerstid. Flotte turløyper like utenfor leilighetsbygget.
Innhold: Vindfang/gang, stue/kjøkken, baderom, 3 soverom og sportsbod.
For mer utfyllende annonse om prosjektet se her: https://www.krogsveen.no/kjope/boliger-til-salgs/81F9A101-3FB5-498A-9D6B-0D4ADCEDC88F
Innhold og byggemåte
Innhold og byggemåte
Eiendommen
Hovdegrend - B 21, 4755 HOVDEN I SETESDAL
Kommunenummer 4222, gårdsnummer 2, bruksnummer 2222, seksjonsnummer 3, ideell andel 1/1
Enhetsbeskrivelse
Følgende rom vil inngå i prosjektets primærrom: Samtlige rom innenfor leilighetens omsluttende vegger defineres som primærrom.
Arealene er beregnet etter Norsk Standard 3940. BTA-arealet angir leilighetens gulvareal med utvendige vegger og halvparten av veggen mot naboleiligheten/gang. BRA-arealet angir boarealet inklusive innvendig bod. P-rom arealet angir leilighetens bruksareal av primærdel. De oppgitte arealene i markedsføringen er å betrakte som ca. areal. Partene har ingen krav mot hverandre dersom arealet skulle vise seg å være 5 % mindre/større enn markedsført areal.
Boligens terrasse og utvendige bodarealer kommer i tillegg for alle arealangivelser.
Se prisliste, og vedlagte plantegninger for nærmere opplysninger om de enkelte boligenes arealer.
Beliggenhet og tomteforhold
Beliggenhet og tomteforhold
Parkering
Alle leilighetskjøpere MÅ kjøpe en parkeringsplass til leiligheten. Ligger som omkostning i prislisten.
Etter eierseksjonsloven § 26 kan styret, etter krav fra en seksjonseier med nedsatt funksjonsevne, pålegge en annen seksjonseier uten behov for tilrettelagt plass å bytte parkeringsplass. Dette gjelder kun dersom seksjonseieren med nedsatt funksjonsevne allerede disponerer en parkeringsplass i sameiet.
Med samtykke fra styret kan en seksjonseier anlegge ladepunkt for elbil og ladbare hybrider ved parkeringsplassen som seksjonen disponerer, eller andre steder som styret anviser. Styret kan bare nekte å samtykke dersom det foreligger en saklig grunn, jf. eierseksjonsloven § 25.
Økonomi
Økonomi
Boligens kostnader
Da boligene ikke er tatt i bruk, foreligger det ingen eksakt oversikt over faste, løpende kostnader.
Når sameiet er etablert, blir det opp til sameiet å vedta om man skal betale fellesutgifter, eller om seksjonene selv betaler sine egne kostnader tilknyttet seksjonen (kommunale avgifter, bygningsforsikring, kabel-tv osv.). Hvor store evt. felleskostnader blir, avhenger av hvor mange ytelser sameiet rekvirerer.
Dersom sameiet vedtar månedlige felleskostnader, er denne kostnader stipulert til kr 25,- pr. kvm BRA. Dette nivået er relativt lavt og det forventes ikke at det vil kunne dekke de kommunale avgiftene, renovasjon, kabeltv etc. Det tas forbehold om evt. sameiets endelige fastsettelse av felleskostnadene.
I tillegg til fellesutgifter må sameierne dekke egne kostnader til strøm, forsikring og kabel-tv/bredbånd. Det vil bli lagt trekkerør for kabel-tv/internett til nærmeste stolpe. Kjøper må selv undersøke hvilke leverandører som tilbyr disse tjenestene og selv bekoste installasjon.
Iht. Fjordkraft er gjennomsnittlig strømforbruk for leiligheter ca. 9.000 kWh, for rekkehus/tomannsboliger ca. 15.000 kWh. og for eneboliger ca. 20.000 kWh pr. år.
Kostnadene til strøm vil variere avhengig av antall medlemmer i husstanden, ønsket innetemperatur, egne fordelsavtaler etc.
Kommunale avgifter utgjør normalt ca. kr. 12.000,- pr. år. pr. seksjon for tilsvarende boliger. Kommunale avgifter er stipulert i dette inngår gebyr for vann, avløp, renovasjon og feiing/tilsyn.
Kjøper må selv tegne innboforsikring.
Boligene vil bli solgt som eierseksjoner og organisert i et eierseksjonssameie bestående av 32 leilighetsseksjoner, seksjon for kjeller og for næringsdeler. Sameiebrøken vil bli satt ut fra leilighetens areal (BRA) Bebyggelsen og tomten består både av næringsarealer og boliger. Det vil bli et samarbeid mellom bolig og næring, der hvor det antas formålstjenlig.
Sameiet vil bli ledet av et styre som velges av sameierne. Styret skal ivareta saker av felles interesse for sameierne og forestå driften av sameiet innenfor de rammer sameiet vedtar.
Eieformen følger Lov om eierseksjoner. Loven kan i sin helhet fås ved henvendelse til megler. Loven finner du også på www.lovdata.no.
Det vil forut for sameiermøte bli utarbeidet forslag til vedtekter for sameiet . Det forventes ikke at vedtektene vil inneholde vilkår som oppfattes spesielt råderettsbegrensende. Det vil bl.a bli foreslått at dyrehold er tillatt. Vedtektene fastsettes av sameiet på sameiermøtet. Det anbefales å delta på sameiermøtene.
Kommunale utgifter
Kommunale avgifter er stipulert til ca. kr. 12.000,- (avhengig av leilighetens størrelse) . I dette inngår gebyr for vann, avløp og renovasjon.
Formuesverdi
Da boligen selges som bygg under oppføring er formuesverdien ikke fastsatt på nåværende tidspunkt.
Formuesverdi fastsettes med utgangspunkt i en formel for kvadratmeterpris som fastsettes av SSB. Den estimerte kvadratmeterprisen er fastsatt ut fra flere kriterier (beliggenhet, alder, areal og boligtype) som danner markedsverdien i området. Boligens faktiske markedspris vil derfor ikke være Skatteetatens grunnlag for den første fastsettelsen av formuesverdi.
Det første året boligeiendommen skal formues verdsettes, må skatteyter påse å gi tilstrekkelig med opplysninger om boligen til skattemyndighetene slik at korrekt estimert markedsverdi og formuesverdi kan beregnes. Formuesverdien vil senere automatisk justeres i takt med prisutviklingen på boliger og beregnet formuesverdi vil fremgå av forhåndsutfylt skattemelding.
Formuesverdien for boligeiendommer for inntektsåret 2021 skal ikke overstige 25 % av dokumentert markedsverdi for primærbolig (der man bor fast). Formuesverdien for sekundærboliger (øvrig bruk av eiendommen, f.eks. fritidsbolig, pendlerbolig, utleieobjekt) skal for inntektsåret 2021 ikke overstige 90% av dokumentert markedsverdi. For nærmere opplysninger om formuesverdi kontakt skatteetaten.
Eiendomsskatt
Det er p.t ikke vedtatt eiendomsskatt for eiendommer i kommunen.
Omkostninger
1) Dokumentavgift til staten tilsvarende 2,5 % av andel tomtekostnad. Avgiftsgrunnlaget utgjør ca. kr. 2381 per kvm av arealet til hele leiligheten. Eksempelvis har leilighet A21 ca. kr 4700 kr. i dokumentavgift til staten. Det tas forbehold om aksept av avgiftsgrunnlaget fra tinglysingsmyndighetene.
2) Tinglysingsgebyr for skjøte kr 585,-.
3) Tinglysingsgebyr for kjøpers eventuelle pantedokumenter, kr 585,- pr. stk.
4) Parkeingsplass i p-kjeller kr. 200.000,.
5) Sportsbod i parkeringskjeller kr. 50.000,.
6) Total kjøpesum for hver leilighet inkl. omkostninger fremkommer av prislisten.
Annen viktig informasjon
Annen viktig informasjon
Eier
Hovdegrend AS
Opplysninger om oppdraget
Oppdragsnummer 32-0065/23
Eiendomsmegler Krogsveen AS, avd. Hovden
Setesdalsvegen 4275, 4755, HOVDEN I SETESDAL
950 007 613
Oppdragets KR-kode KR32.2365
Dato
Sist oppdatert: 16. februar 2026 kl. 20:32
Dokumenter
Dokumenter
PDF – 392 KB
Visning
Fellesvisning hver lørdag kl 11.00 - Husk og meld deg på visningen.
Passer ikke dag eller tidspunkt for fellesvisningen så kontakter du megler for å avtale en privatvisning.
Eller selgers representant - Svanhild Breivegen tlf: 971 10 721.
For å delta på visning, ber vi om at du melder deg på. Da sikrer vi at du får nødvendig informasjon og at det er satt av tilstrekkelig med tid. Husk å lese salgsoppgaven før visningen, så du stiller forberedt. NB. Visning utgår dersom det ikke er noen påmeldte.
Ønsker du kun å bli holdt orientert, kan du fra eiendommens hjemmeside få varsel om solgtpris, eller kontakte megler.
Lurer du på noe?
Vurderer du utleie?
Få et tilbud fra Utleie KrogsveenHva koster lånet?
Sjekk estimert lånekostnad



