Malerhaugveien 18
5 700 000 kr
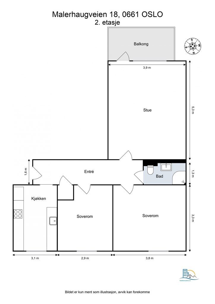
63 m²
2 soverom
Komplett salgsoppgave
Ensjø
Lys, delikat og gjennomgående 3-roms med sydvendt balkong | Kjøkken fra 2021 | Fyring, V.vann og bredbånd inkl.
Prisantydning
5 700 000 krAndel fellesgjeld
194 455,44 krOmkostninger
24 600 krTotalpris
5 919 055,44 kr
Pris
Bruksareal
79 m²BRA-I (internt bruksareal)
63 m²BRA-E (eksternt bruksareal)
16 m²TBA (terrasse-balkongareal)
6,5 m²
Areal
Etasje
2Byggeår
1949Soverom
2 soveromBad
1 badType
AksjeleilighetEierform
AksjeFasiliteter
Balkong/TerrasseFellesutgifter
6 226 krEnergimerke
Lysegrønn C
Nøkkelinfo
Unngå doble boligrenter
Vi tilbyr gunstig forsikring.
Vurderer du utleie?
Få et tilbud fra Utleie KrogsveenHva koster lånet?
Sjekk estimert lånekostnadBeskrivelse
Kort om eiendommen
Innhold og byggemåte
Innhold og byggemåte
Eiendommen
Malerhaugveien 18, 0661 OSLO
Kommunenummer 301, gårdsnummer 133, bruksnummer 24, ideell andel 1/1
Aksjenummer 661-700, Ensjø Boligselskap AS, organisasjonsnummer 930 862 878
Innhold
Totalt bruksareal BRA: 79 kvm
BRA-i:
2. etasje 63 kvm: Entré, bad, 2 soverom, kjøkken, og stue.
BRA-e:
Loft 6 kvm: Loftbod.
Kjeller 10 kvm: Kjellerbod.
Terrasse- og balkongareal (TBA):
2. etasje 6,5 kvm: Sydvendt balkong.
Loftsboden har et totalt gulvareal (GUA) på 10 kvm, men grunnet skråtak er kun 6 kvm av arealet måleverdig som bruksareal (BRA-e). De delene av arealet som har lav himlingshøyde (ALH) utgjør 4 kvm.
Det gjøres oppmerksom på at boligens eksterne boder tilhører borettslagets fellesareal, og at boden således ikke eies av den enkelte andelseier. Dette medfører at borettslaget i fellesskap beslutter bruken, og at man ikke selv har eierrett og rettsvern for boden. Borettslaget kan ved vedtak beslutte annet bruk av fellesarealet og disponering av bodarealet kan dermed opphøre.
Vedlagte plantegninger er ikke målbare. De oppgitte arealer er hentet fra rapport med befaringsdato 04.02.2026 utført av Takstkonsulent1 AS v/Marcus Bratland.
Byggemåte
Tilstandsrapporten er inntatt i salgsoppgaven. Rapporten inneholder informasjon om eventuelle avvik og konsekvensen av disse. Dersom det er registrert avvik med TG3, har den bygningssakkyndige i tillegg gitt et anslag på hva det vil koste å utbedre disse. Ettersom kjøper regnes å være kjent med forhold som tydelig fremgår av tilstandsrapporten, oppfordres du til å sette deg grundig inn i rapporten i sin helhet.
Bygningen er iht. tilstandsrapport en boligblokk oppført i 1949. Bygningen antas fundamentert med betong til stedlige masser. Grunnmur og etasjeskillere er av betong, og yttervegger er oppført med betong/murverk. Takkonstruksjonen er et saltak med sperrer av tre, og taket er antatt tekket med takstein, men ble ikke besiktiget. Leilighetens vinduer har 2-lags pressglass fra 2014. Entrédøren er lyd- og brannklassifisert, og balkongdøren har 2-lags pressglass fra 2014. Innvendige dører er formpressede med 3-speil, med en innerdør med glassfelt til stuen.
Følgende bygningsdeler er gitt Tilstandsgrad 2 (TG2) — Avvik som kan kreve tiltak:
Innvendig
- Etasjeskille/gulv mot grunn: Det er målt høydeforskjell på mellom 15-30 mm gjennom hele rommet. Tilstandsgrad 2 gis med bakgrunn i standardens krav til godkjente måleavvik. Avviket er målt gjennom stuen.
Bad
- Det er ikke påvist tilfredsstillende løsning for å synliggjøre lekkasje fra innebygget sisterne.
- Rommet har kun naturlig ventilasjon. NS3600 krever mekanisk/elektrisk styrt vifte for å kunne gi tg 0/1. Naturlig oppdriftsventilasjon er vanlig i blokkleiligheter, det er normalt ikke tillatt med forsert avtrekk til felles kanaler for bygget.
Kjøkken
- Kjøkkenet har ventilator med omluft (kullfilter). NS3600 krever mekanisk for å kunne gi tg 0/1. Kjøkkenventilator med kullfilter er vanlig i blokkleiligheter, og det er normalt ikke tillat med forsert avtrekk til felles kanaler for bygget.
Det er gitt TG 2 grunnet alder og/eller slitasje på vann- og avløpsledninger, anlegg for vannbåren varme samt badets overflater og membran.
Følgende bygningsdeler er ikke undersøkt (TGIU):
Bad
- Hulltaking er ikke foretatt da det ikke er fysisk mulig pga tilliggende konstruksjoner.
Helse, miljø og sikkerhet
Det er behov for at en kvalifisert elektrofaglig person kontrollerer det elektriske anlegget.
Rekkverket på balkong eller terrasse er for lavt i forhold til dagens krav. Høyden på rekkverket tilfredsstiller ikke dagens krav. "Høyde på rekkverk ved balkonger, tribuner, passasjer og lignende skal være minimum 1,0 m".
Det har vært noe problemer med kjellerlukt i kjellerbod.
I juni 2025 sprakk hovedvannledningen til blokka. Det sprukne røret lå på nedsiden av bygget utenfor gjerdet. Feilen ble utbedret samme helg av rørlegger, og blokka ble ikke fysisk berørt av vannlekkasjen. Vannet var tilbake dagen etter.
Ovennevnte er kun et utdrag fra rapporten. Se supplerende tekst i tilstandsrapporten og egenerklæringsskjema for mer informasjon. Kjøper overtar ansvar og risiko for dette.
Moderniseringer og påkostninger
Følgende moderniseringer er foretatt de senere år:
2023:
- Malt vegger i gangen
- Installert ny taklampe i stue og byttet taklampe på hovedsoverom
- Fjernet en lysbryter på hovedsoverom og byttet en dimmer i gangen
- Boligselskapet opparbeidet parkeringsplasser utenfor blokka. 4 av plassene er ladeplasser for elbil
2022:
- Malt vegger på begge soverom og i stue
2021:
- Kjøkkeninnredning fra Epoq installert
Vedlikeholdshistorikk borettslaget:
2025:
- Utbedring av sprukket hovedvannledning til blokka
Standard
Dette er en klassisk og arealeffektiv 3-roms leilighet i en bygård fra 1949. Planløsningen er tradisjonell og praktisk, med alle rom tilgjengelig fra en sentral entré. Leiligheten har blitt jevnlig vedlikeholdt og oppgradert de siste årene, med blant annet et moderne kjøkken fra 2021 og nylig malte overflater i flere rom. Oppvarming via radiatorer tilknyttet fellesanlegg er inkludert.
Entré:
Entréen fungerer som leilighetens bindeledd og gir adkomst til samtlige rom. Døren inn til stuen har et glassfelt som slipper lyset gjennom. Veggene ble malt i 2023.
Kjøkken:
Leilighetens kjøkken er holdt i en praktisk separat løsning, noe som gir ro under matlagingen. Kjøkkenet ble modernisert i 2021 med en Epoq-innredning med glatte fronter og laminatbenkeplate med nedfelt vask. Det er rikelig med oppbevaringsplass i skuffer og skap. Alle hvitevarer er integrerte og består av platetopp, stekeovn, oppvaskmaskin og kjøl-/fryseskap. Kjøkkenet har også egen vaskemaskin. Over kokeplassen er det en kullfilterventilator.
Stue:
Stuen har en god takhøyde på 2,60 meter som kombinert med vindusflatene sørger for en luftig atmosfære. Det er god plass til sofagruppe med tilhørende salongbord og annet ønskelig stuemøblement. Dette er også plass til en spisegruppe. Rommet har malte vegger fra 2022 og en Philips Hue taklampe installert i 2023. Fra stuen er det utgang til en sydvendt balkong.
Balkong:
Balkongen er på ca. 6 m² og vender mot syd. Her er det gode muligheter for å innrede med en sittegruppe der årets varme dager kan nytes. Det er tillatt med EL- og gassgrill på balkongen. Selger informerer om gode solforhold med sol fra ca. 10.00-17:00.
Bad:
Badet har flislagte vegger og gulv med elektrisk gulvvarme for en behagelig start på dagen. Innredningen består av et vegghengt klosett, servant nedfelt i baderomsinnredning, speilskap med lys og et dusjhjørne med svingbare glassdører. Himlingen har en nedsenket spottkasse med innfelte downlights. Ventilasjonen er naturlig via en lufteluke.
Soverom:
Leiligheten har to soverom, begge med overflater malt i 2022. Hovedsoverommet fikk i tillegg en ny Philips Hue taklampe i 2023. Hovedsoverommet er av god størrelse og kan enkelt innredes med både dobbeltseng og tilhørende nattbord. Det er god oppbevaringsplass i et romslig garderobeskap. Leilighetens andre soverom er også romslig og egner seg ypperlig som barnerom, gjesterom eller kontor. Her er det plass til seng, pult eller annet ønskelig møblement.
Overflater:
Gulvoverflater: Laminat.
Vegger: Malt betong.
Himling: Malt betong.
Lagring:
Leiligheten disponerer en loftsbod på ca. 6 m² (gulvareal 10 m²) og en kjellerbod på ca. 10 m². Bodene ligger i fellesareal, men er til eksklusiv disposisjon for denne leiligheten.
For fullstendig teknisk informasjon om boligen, se punktet Byggemåte i salgsoppgaven.
Løsøre og tilbehør
Vi viser til liste fra Norges Eiendomsmeglerforbund som gjelder fra 01.01.2020 angående løsøre og tilbehør.
- Det medfølger kjøleskap med frys, oppvaskmaskin og vaskemaskin koblet opp på kjøkken.
- Alle fastmonterte vegg- og taklamper samt vegghengt tv- benk kan følge med.
Oppvarming
Boligen varmes opp av radiatorer tilknyttet felles, vannbåren varmeanlegg. Det er elektrisk gulvvarme på bad.
Dersom beboelsesrom ikke har vegg- eller fastmonterte varmekilder ved visning, følger dette heller ikke med.
Ferdigattest/brukstillatelse
Eiendommen har vært brukt til boligformål siden 1949.
Kommunen opplyser at det ikke foreligger ferdigattest eller midlertidig brukstillatelse for eiendommen. Det finnes av den grunn ikke dokumentasjon over eiendommens lovlighet. Dette er ikke uvanlig for bygårder fra denne perioden, da krav om ferdigattest først ble landsdekkende i 1965. Det foreligger en tilsynsrapport som viser at byggesaken stammer fra 1946.
Det gjøres oppmerksom på at det ikke lenger utstedes ferdigattest på tiltak det er søkt om før 1998 jf. plan- og bygningsloven § 21-10. Kommunen vil ikke kreve ferdigattest for disse tiltakene og vil avvise eventuelle søknader. Bestemmelsen innebærer ikke at tiltak med manglende søknad blir lovlige, men at man ikke trenger å avslutte gamle byggesaker. Normalt sett kreves ferdigattest for alle søknadspliktige tiltak som gjøres etter plan- og bygningsloven.
Kjøper overtar all risiko og kostnader knyttet til overnevnte forhold.
Det foreligger godkjente og byggemeldte tegninger som stemmer med dagens bruk. Tegningene kan fås ved henvendelse til megler.
Det er utstedt følgende ferdigattester for senere arbeider på eiendommen:
- Ferdigattest for utskifting av balkonger datert 14.07.1989.
- Ferdigattest for baderomsrehabilitering datert 19.02.2009.
Dokumentene kan fås ved henvendelse til megler.
Tinglyste heftelser og rettigheter
Utover andel fellesgjeld overdras leiligheten fri for pengeheftelser
Borettslaget har legalpant for forfalte felleskostnader og andre krav som følger av borettslagsforholdet iht. burettslagsloven § 5-20. Pantet er begrenset oppad til 2G (G = folketrygdens grunnbeløp).
Det er tinglyst følgende servitutter på borettslagets eiendom:
Det er tinglyst 5 servitutter på borettslagets eiendom. Disse omhandler blant annet bestemmelse om bebyggelse, benyttelse, vann/kloakkledning, veg, gjerde og trafostasjon/kiosk.
Servituttene vil følge eiendommen. Kjøpers bank vil få prioritet etter ovennevnte heftelser og servitutter.
Eventuell adgang til utleie
Utleie reguleres av selskapets vedtekter og borettslagslovens bestemmelser anvendes normalt tilsvarende. Utleie forutsetter at leiligheten har forsvarlige radonverdier. Se vedtektene for eventuelle avvikende bestemmelser og konferer megler ved spørsmål.
I henhold til selskapets vedtekter kan aksjonæren ikke overlate bruken av leiligheten til andre uten godkjenning fra styret. Med styrets godkjenning kan hele leiligheten leies ut dersom aksjonæren (eller nær familie) har bodd der i minst ett av de siste to årene. Godkjenning gis for ett år av gangen. Utleie kan også godkjennes ved midlertidig fravær på grunn av arbeid, utdanning, militærtjeneste, sykdom eller andre tungtveiende grunner, eller ved utleie til nær familie. Søknader regnes som godkjent hvis styret ikke svarer innen en måned.
Beliggenhet og tomteforhold
Beliggenhet og tomteforhold
Beliggenhet
Velkommen til Ensjø, en bydel som har gjennomgått en utrolig transformasjon og i dag er et av Oslos mest spennende og sentrale boligområder. Her bor du i et nabolag som kombinerer det beste fra to verdener: byens puls rett rundt hjørnet og en rolig, tilbaketrukket atmosfære med grønne lunger. Ensjø har utviklet seg til en liten by i byen, hvor alt du trenger er innen rekkevidde.
Hverdagslogistikken er enkel på Ensjø. De daglige innkjøpene gjør du hos Kiwi eller Rema 1000, som begge ligger innenfor 5-10 minutters gange. For et bredere utvalg av tjenester og butikker er Fyrstikktorget og Hasle Torg også i nærheten. Området har et godt utvalg av skoler og barnehager, med flere alternativer som Fyrstikkalleen barnehage og Fyrstikkalleen skole kun en kort spasertur unna. Dette gjør nabolaget svært attraktivt for både etablerere og barnefamilier.
For den aktive er det mange muligheter. Flere treningssentre, som Fresh Fitness og SATS Kampen, ligger i gangavstand. Jordal idrettspark med ballbane og skatepark er også et populært samlingspunkt for sport og lek. Når du ønsker å koble av i naturen, er det flere fine parker og grøntområder i umiddelbar nærhet, som underbygger områdets rykte som en grønn oase midt i byen. Østre parkdrag ligger på forsiden av blokken, og er et grønt og frodig parkdrag med opplyst turvei, bekker samt hyggelige oppholdssteder og områder, inkludert bålplass.
Kommunikasjonsmulighetene er utmerkede. Fra Ensjø T-banestasjon, bare 3 minutters gangavstand fra leiligheten, tar du deg raskt og effektivt rundt i hele byen med linje 1, 2, 3 og 4. Det er også et godt utbygd bussnettverk i området. Denne kombinasjonen av sentral beliggenhet, gode servicetilbud og nærhet til rekreasjonsområder gjør Ensjø til et sted hvor det er lett å trives og leve et aktivt og komfortabelt byliv.
Adkomst
Det vil bli skiltet med Krogsveen visningsskilt ved fellesvisninger.
Barnehager, skoler og fritid
Eiendommen sogner til Teglverket skole. Informasjon om tilhørende skolekretser er hentet fra Prognosesenteret som dataleverandør, og tilhørigheten kan årlig endres av kommunen. Dersom skole- og barnehagetilbud er av betydning for kjøpet, ber vi om at det rettes en særskilt henvendelse til kommunen/bydelsadministrasjonen for oppdatert informasjon.
Beskrivelse av tomt
Eiertomt på 4 140 kvm som tilhører aksjelaget.
Parkering
Parkering skjer på oppmerkede og tildelte plasser, og parkeringsplass kan leies av boligselskapet etter venteliste/ansiennitet (fremleie er ikke tillatt). Det er tilgang på garasjeplasser, utvendige plasser og 4 rulleringsplasser for elbil-lading, men garasjene har ikke lademulighet. I tillegg finnes 3 gjesteparkeringsplasser som kan leies av beboere for sine gjester.
I følge Styret er det ingen på venteliste pr. 7.3, og det blir også frigjort en parkeringsplass ved salg av denne leiligheten.
Det er innført beboerparkering i dette området (indre by). Dette betyr at du kan parkere fritt døgnet rundt på parkeringsplassene regulert til beboerparkering i området rundt din bolig for kun kr. 3.850- pr. år for fossile biler, dieselbil, hybridbil, ladbar hybrid.
Har du el-bil så betaler du kr. 1.300,- pr år, hydrogenbil og el-varebil er gratis.
Motorsykkel og moped kr 1.925,- pr år.
El-motorsykkel og el-moped kr 650,- pr år.
Se Oslo kommune sine nettsider for mer informasjon og priser for ytre by.
Vei, vann og avløp
Eiendommen har adkomst via kommunal vei.
Eiendommen er tilknyttet kommunalt ledningsnett via private stikkledninger.
Aksjelaget er ansvarlig for private stikkledninger til bygningen.
Regulerings-og arealplaner
Eiendommen er regulert til reguleringsplan S-2864 datert 12.06.2019 med tilhørende reguleringsbestemmelser, regulert til boligformål med tilhørende anlegg.
Det gjøres oppmerksom på at Ensjøområdet er under utvikling og at endringer og oppføring av nye bygg vil kunne skje. Det anbefales spesielt å følge med på de planer og prosesser som pågår for området via Oslo kommune, Plan- og bygningsetaten.
Utdrag av plansaker iht. Plan- og bygningsetatens planinnsyn:
- Saksnummer 202209626: Reguleringssak - Ensjøveien 16 - 22 - Planforslag til offentlig ettersyn- Næring/kontor opp til 8 etasjer. Ensjøveien Utvikling As ønsker å regulere opp mot 30 000 m² BRA næring, kontor, forretning og bevertning. Planarbeidet skal undersøke hvordan deler av eksisterende bebyggelse kan transformeres og innpasses i den nye bebyggelsen. Viktige tema i planarbeidet er Østre parkdrag, forbindelser, Ensjøveien og ombruk av eksisterende bebyggelse. Planforslag ble sendt til offentlig ettersyn 19.06.2025.
- Saksnummer: 201918011 - Reguleringssak. Gladengveien 1 og Ensjøveien 14 - Etter offentlig ettersyn. Det foreslås å omregulere Gladengveien 1 og Ensjøveien 14 fra forretning, kontor, bevertning og allmennyttig formål (kultur, helse, trim og undervisning), bolig, industri til bolig, forretning, bevertning, annen offentlig eller privat tjenesteyting. Det foreslås i hovedsak boligbebyggelse i en kvartalsstruktur med opptil 8 etasjer + takoppbygg. Det legges opp til næringsarealer i 1. etasjer plassert i en base. Denne saken fortsetter i sak 2025/06901.
- Saksnummer 2025/20495 - Byggesak. Malerhaugveien 20 (nabotomten) - oppføring av boligblokk med barnehage i underetasje. Det ble gitt endret tillatelse 04.09.2025. Tiltaket godkjent ved rammetillatelse omfatter oppføring av boligblokk med 106 leiligheter, underjordisk parkeringsanlegg, samt barnehage i byggets underetasje mot vest. Det ble gitt avslag på søknad om ferdigattest 09.01.2024.
- Saksnummer: 202202903 - Ensjøveien 3 - Ensjøveien 3 m.fl. - NRK - Normannsløkka - Oppdatering av planforslag etter offentlig ettersyn. NRKs generalforsamling ved kulturminister Abid Raja har 18/05 gitt NRK fullmakt til å kjøpe Ensjøveien 3, 5 og 7 fra hhv Ferd Eiendom og Axer Eiendom. NRK flytter da hovedkontor fra Marienlyst til Ensjø. Fastsatt planprogram ble gitt 30.06.2023. Det forventes at planforslag er utarbeidet innen 30.08.2024 og lagt ut til offentlig ettersyn 22.11.2024. Saken fortsetter i sak 2025/06870
- Saksnummer 2025/11886 - Byggesak. Ensjøveien 12 D - oppføring av tre boligbygg, underjordisk garasjeanlegg og trafo - Riving av bebyggelse - Opparbeidelse av uteoppholdsarealer. Det ble sendt søknad om tillatelse 07.10.2025.
- Saksnummer 202460006 - Reguleringssak. Grenseveien mellom Økernveien og Grensesvingen - Utarbeidelse av planforslag - tilrettelegging for syklende og gående. Det er i dag ingen tilrettelegging for sykkel på strekningen, med unntak om strekket mellom Hovinveien og Økernveien nord i planområdet. Prosjektet innebærer en helhetlig opprustning av Grenseveien, som inkluderer trygge og attraktive ferdseslsarealer for myke trafikanter.
- Saksnummer 2025/06814: Grenseveien 65 - Bestilling av oppstartsmøte - Oppføring av ny ungdomsskole på Ensjø. Prosjektet varslet om oppstart av detaljregulering 14. august 2023. Det planlegges at saken skal legges ut for offentlig høring 23.09.2024. Denne saken er en fortsettelse av sak 202214130.
- Saksnummer 202118619 - Reguleringssak. Grenseveien 73, 91 og 95 - utarbeidelse av planforslag. Saken fortsetter i sak 2025/06823. Planen innebærer ny B4 skole med spesialavdeling for 16 elever, ny flerbrukshall/Idrettshall med aktivitetssal 8-avdelings barnehage, etablere Grønvold park og styrke stedet som lokal møteplass.
- Saksnummer 202017619 - Reguleringssak. Grenseveien 99 og 107 - utarbeidelse av planforslag. Det planlegges et fleksibelt og fremtidsrettet næringsbygg på 2-11 etasjer / ca 25.000 m2 BTA, med utadrettet virksomhet i fortrinnsvis 1. og 2. etg, samt deler av U-etg. Totalhøyden i planforslaget er 44,8 meter og er dermed over grensen 42 meter - høyhus. Vi ønsker å avklare høyde/fleksibilitet i oppstartsmøtet før vi evt utarbeider et alternativt forslag. Denne saken fortsetter i sak 2025/06851
- Saksnummer 201703173: Reguleringssak - Karoline Kristiansens vei 1 - 9 - Fyrstikktorget - Planforslag sendt til politisk behandling - Bolig, kontor, næring og hotell. Eksisterende bebyggelse foreslås regulert med hensynssone bevaring og dagens bruk videreføres. I tillegg foreslås det to høyhus på henholdsvis 53 og 76 meter med i hovedsak boliger og utadrettede funksjoner på gateplan. Forslagsstiller fremmer også et alternativ 2 med byggehøyde på maksimalt 42 meter. Planforslag ble sendt byrådsavdelingen 05.07.2023.
- Saksnummer 202304155: Byggesak Grenseveien 97 - Oppføring av tre boligbygg på opp til 13 etasjer - Grønvollkvartalet - Bygg B, C og D. Igangsettingstillatelse ble gitt 05.08.2025.
- Saksnummer: 202103851 - Reguleringssak. Ensjøveien 8 - Bystyret vedtok 28.02.2024 å omregulere Ensjøveien 8 fra industri til boliger. Det er lagt opp til å rive eksisterende industribygg og oppføre nytt boligbygg på 5 etasjer (45 leiligheter). Detaljregulering egengodkjent av bystyret 28.02.2024
- Saksnummer: 202002883 - Reguleringssak. Ensjøveien 7-15 - Bestilling av oppstartsmøte - Boliger, torg og møteplasser.
- Saksnummer: 200404446 - Reguleringssak: Ensjøområdet - Veiledende prinsipplan for det offentlige rom - VPOR Ensjø - vedtatt av bystyret 28.2.2007 Det offentlige rom på Ensjø skal framstå som levende, attraktivt og tilgjengelig for alle, med et “naturbant” preg (samspillet mellom det grønne, det blå og de harde flatene). Levende og trygge møteplasser, torg, gater og parker med betydelig innslag av grønt skal kjennetegne det nye Ensjø.
Området er under stor utvikling og byggearbeid må påregnes. Opplistingen er ikke uttømmende og interessenter oppfordret til å sette seg inn i planer for området.
Utsnitt av plan med tilhørende bestemmelser kan fås ved henvendelse til megler
Økonomi
Økonomi
Boligens kostnader
Total husleie er kr 6 226,- per måned. Dette inkluderer selskapets kollektive bredbåndsavtale, oppvarming og varmtvann, kommunale avgifter, forretningsførsel, felles bygningsforsikring, drift og vedlikehold mv.
Felleskostnadene ble økt med 3 % fra 01.01.2026.
Husleien er fordelt slik:
- Felleskostnader: kr 5 025,37,-
- Energi: kr 1 149,-
- Trappevask: kr 52,-
Selger informerer om et årlig strømforbruk på ca. kr 7 550,-/ 4034 kWh pr. år.
Det er vedtatt eiendomsskatt i Oslo kommune. Pt. faller det ikke eiendomsskatt for boligen.
Eiendommen er tilknyttet GlobalConnect AS 100/100 hastighet. Kostnad dekkes av felleskostnader. TV leverandør eller høyere hastighet kan bestilles privat hos GlobalConnect.
Utgiftene er basert på nåværende eiers forbruk. Kjøper må selv tegne innboforsikring.
Formuesverdi
Ved hjelp av skatteetatens boligkalkulator er boligens formuesverdi beregnet til kr 1 509 054 for fjoråret når boligen benyttes som primærbolig.
Formuesverdien er en gitt prosent av den beregnede markedsverdien. Beregnet markedsverdi er basert på Statistisk sentralbyrå (SSB) sine opplysninger om omsatte boliger. I beregningen tas det hensyn til boligens beliggenhet, areal, byggeår og boligtype.
Det er eier av boligen som fastsetter formuesverdien, jf. skatteforvaltningsloven § 9-1 første ledd, men skattemyndighetene kan kontrollere at verdien er satt riktig.
Formuesverdi skal ikke overstige:
Primærbolig: 25 % av beregnet eller dokumentert markedsverdi opp til kr. 10 000 000, og deretter 70 % av den overskytende markedsverdi.
Sekundærbolig: 100 % av beregnet eller dokumentert markedsverdi.
Formuesverdier som overstiger disse grensene, kan kreves nedjustert av eier.
Fra 2026 har Stortinget vedtatt en oppdatert modell for beregning av formuesverdi for primærbolig, så avvik kan forekomme.
For mer informasjon se skatteetaten.no
Opplysninger om fellesgjeld
Andel formue er kr 26 808,- pr. 31.12.2025
Andel fellesgjeld er kr 194 455,44 pr. 23.02.2026
Selskapet har følgende lån og vilkår:
Bank: OBOS-banken AS
Lånenummer: 98208130862
Type: Annuitetslån, 12 terminer per år
Restsaldo pr. 23.02.2026: kr 5 871 582,00,-
Andel av saldo: kr 194 455,44,-
Innfrielsesdato: 30.05.2053
Type Rente: Flytende rente
Rente: 6,10 %
Mulighet for individuell nedbetaling på hele eller deler av fellesgjeld (IN-lån): Nei.
Omkostninger
5 700 000,00 Prisantydning
194 455,44 Andel av fellesgjeld
--------------------------------------------------------
5 894 455,44 Pris inkl. fellesgjeld
Omkostninger
10 500,00 Eierskiftegebyr AKSJE (kjøper)
9 950,00 Gjensidige Boligkjøperpakke (valgfri)
4 150,00 Pantenoteringsgebyr til forretningsfører (aksje)
--------------------------------------------------------
24 600,00 Omkostninger totalt
--------------------------------------------------------
5 919 055,44 Totalpris inkl. omkostninger
--------------------------------------------------------
Dersom aksjelaget har fellesgjeld, vil aksjens andel av fellesgjelden komme i tillegg til kjøpesummen. Denne gjelden skal ikke innbetales i oppgjøret, men følger aksjen.
Det tas forbehold om endringer i avgifter og gebyrer.
Tilbud om lånefinansiering
Megler formidler gjerne kontakt med rådgiver hos vår samarbeidspartner BN Bank. De har konkurransedyktige betingelser samt rask og løsningsorientert behandling av din lånesøknad. Krogsveen mottar et honorar dersom lån opprettes.
Betalingsbetingelser
Kjøpesum inkludert omkostninger, samt pantedokument tilknyttet eventuelt lån, skal være disponibelt hos megler 2 virkedager før overtagelsen.
Annen viktig informasjon
Annen viktig informasjon
Eier
Tina Erica Skog og Brede Martinussen
Informasjon om aksjelaget
Leiligheten er tilknyttet Ensjø Boligselskap AS.
- Boligaksjeselskapet består av leiligheter fordelt på 1.081 aksjer.
- Forretningsfører er OBOS Eiendomsforvaltning AS.
- Selskapet er forsikret i Gjensidige Forsikring Asa med polisenummer 79424144.
- Dyrehold er tillatt etter skriftlig godkjennelse fra styret, så lenge det ikke er til sjenanse for andre beboere.
- Det er kun tillatt med gass- eller elektrisk grill på balkongen.
- Det skal være ro i leiligheten mellom kl. 23:00 og 07:00.
- Selskapet har felles vaskeri, kjeller- og loftsrom, sportsrom og egne boder til leilighetene.
Alle aksjonærer er pliktige til å overholde gjeldende plikter for vask av fellesarealer. Den enkelte aksjonær har vedlikeholdsplikt for sin leilighet, inkludert innvendige flater, rør, ledninger, vinduer, samt boder og balkong. Vedlikeholdsplikten omfatter også rens av sluk på balkonger og innvendige avløpsrør frem til fellesledningsnettet.
Styret informerer pr. 05.03.2026 at det ikke foreligger planlagte påkostninger.
Kjøper skal godkjennes av styret i aksjelaget. Dette kan ikke nektes uten saklig grunn. I henhold til vedtektene har styret en frist på 20 dager til å behandle søknaden. Kun fysiske personer kan være aksjeeiere, og ingen kan eie aksjer til mer enn én leilighet.
Det foreligger ingen forkjøpsrett på eiendommen.
For å dekke eventuell manglende innbetaling av fellesutgifter har selskapet panterett i den enkelte aksje foran alle andre panthavere med et beløp tilsvarende to ganger folketrygdens grunnbeløp (2G). Selskapet er ikke tilknyttet en sikringsordning som dekker tap ved manglende innbetaling av felleskostnader.
Dokumenter for boligaksjeselskapet kan fås ved henvendelse til megler.
Overtakelse
Etter nærmere avtale.
Boligselgerforsikring
Selger har i forbindelse med salget tegnet boligselgerforsikring levert av Gjensidige.
Boligselgerforsikringen dekker selgers ansvar etter avhendingsloven begrenset oppad til kr 14 millioner. Dersom kjøper oppdager forhold ved eiendommen som hen mener utgjør en mangel ved eiendommen, vil Gjensidige behandle reklamasjonen på vegne av selger. Forsikringsvilkår kan fås ved henvendelse til megler.
Vedlagt salgsoppgaven følger selgers egenerklæringsskjema og tilstandsrapport. Interessenter må sette seg inn i dokumentene før bud inngis.
Boligkjøperforsikring
Innen kontraktsmøtet må kjøper ta stilling til om det ønskes å bestille Boligkjøperpakken gjennom Gjensidige. I denne gunstige pakken er boligen ferdig forsikret og inkluderer rettshjelpsforsikring, også kalt Boligkjøperforsikring. Rettshjelpsforsikring gir trygghet og tilgang på profesjonell juridisk hjelp dersom det oppdages uventede feil eller mangler det første året etter overtagelse. Forsikringsselskapet behandler i så fall ethvert mangelskrav kjøper måtte ha overfor selger.
Boligkjøperpakken inkluderer bygningsforsikring for hus og hytte, innboforsikring, flytteforsikring og dobbel rentedekning - i situasjoner hvor kjøper ikke får solgt nåværende primærbolig.
Kjøper mottar ingen særskilt faktura for Boligkjøperpakken da kostnaden det første året legges til kjøpesummen for boligen. Det gjøres oppmerksom på Krogsveen mottar et honorar for denne formidlingen.
Produktark for Boligkjøperpakken ligger vedlagt i salgsoppgaven.
Dersom ikke boligkjøperpakke ønskes kan kun rettshjelpsforsikring, også kalt boligkjøperforsikring, tegnes særskilt via megler. Rettshjelpsforsikringen varer i 5 år fra overtagelse og leveres gjennom Gjensidige. Ta kontakt med megler for ytterligere informasjon.
Selskap og privatpersoner som driver med kjøp/salg/utvikling som ledd i egen næringsvirksomhet kan ikke tegne boligkjøperpakke eller rettshjelpsforsikring.
Budgivning
Forbrukerinformasjon om budgivning er vedlagt denne salgsoppgaven og er også på vår hjemmeside Krogsveen.no. Alle bud og budforhøyelser må inngis skriftlig. I tillegg må legitimasjon være fremlagt sammen med signatur fra budgiver.
Vi oppfordrer til å gi bud elektronisk via GI BUD-knappen på eiendommens hjemmeside på Krogsveen.no. Da vil samtlige vilkår bli oppfylt.
Eventuelle forhøyelser eller endringer av budet kan bekreftes pr SMS eller på e-post. Vi oppfordrer alltid til å kontakte megler pr. telefon i tillegg da forsinkelser i SMS og e-post kan forekomme.
For at budene skal kunne bli behandlet og videreformidlet skriftlig til alle involverte parter, må alle bud ha en tilstrekkelig lang akseptfrist, jf. eiendomsmeglingsforskriften § 6-3.
Selger må også skriftlig akseptere budet før aksept kan formidles til budgiver. Akseptfrist bør derfor være på minimum 30 minutter, og budforhøyelser må derfor skje i god tid før fristens utløp.
Bud i forbrukerforhold kan uansett ikke settes med kortere frist enn kl. 12.00 første virkedag etter siste annonserte visning. I tillegg kan ikke budet ha forbehold om at det skal holdes hemmelig ovenfor øvrige interessenter. Megler har iht lov om eiendomsmegling ikke anledning til å videreformidle disse budene, og de vil dermed heller ikke bli journalført.
Etter at eiendommen er solgt vil kjøper og selger få tilsendt budjournal. Øvrige budgivere kan få utlevert kopi av budjournalen i anonymisert form.
Hvitvaskingsreglene
I henhold til lov om hvitvasking og terrorfinansiering har megler plikt til å gjennomføre kontrolltiltak overfor kunder, herunder fullmektiger. Dette innebærer bl.a. å bekrefte kunders og reelle rettighetshaveres identitet på bakgrunn av fremvist gyldig legitimasjon eller på annen godkjent måte, samt å innhente opplysninger om kundeforholdets formål og tilsiktede art.
Dersom slike kundetiltak ikke kan gjennomføres, kan megler ikke etablere kundeforholdet eller utføre transaksjonen.
Hvis kjøper ikke bidrar til gjennomføring av kundekontrollen og dette fører til at transaksjonen blir forsinket eller ikke kan gjennomføres, vil dette ansees som mislighold av avtalen og gi selger rettigheter etter avhendingslova kapittel 5. I tilfeller der selger ikke bidrar til gjennomføring av løpende kundekontroll underveis i oppdraget, er det selger som misligholder sine forpliktelser etter avtalen og gi kjøper rettigheter etter avhendingslovens kapittel 4. Partene er selv ansvarlige for eventuelle kostnader og ansvar dette kan medføre. Eiendomsmegleren eller eiendomsmeglingsforetaket kan ikke holdes ansvarlig for de konsekvenser dette vil kunne få for partene eller andre som har interesser i eiendomshandelen.
Kjøper oppfordres til å innbetale kjøpesummen som ikke kommer fra låneinstitusjon i én samlet innbetaling fra egen konto i norsk bank. Megler har plikt til å melde fra til Økokrim om eiendomshandler som fremstår som mistenkelige. Melding sendes Økokrim uten at partene varsles.
Personopplysningsloven
I henhold til personopplysningsloven gjør vi oppmerksom på at interessenter kan bli registrert for videre oppfølging.
Lovanvendelse
Salg av aksjeleiligheter reguleres av kjøpsloven, men avhendingslovens bestemmelser legges til grunn så langt de passer.
Det forutsettes at aksjene transporteres til kjøper.
Generelle bestemmelser
Salgsoppgaven er basert på de opplysningene selger har gitt til megler, den bygningssakyndiges tilstandsrapport, samt opplysninger innhentet fra kommunen, Kartverket og andre tilgjengelige kilder. Det er viktig at kjøper setter seg grundig inn i alle salgsdokumentene, herunder salgsoppgave, tilstandsrapport og selgers egenerklæring. Kjøper anses kjent med forhold som er tydelig beskrevet i salgsdokumentene, og slike forhold kan ikke påberopes som mangler. Dette gjelder uavhengig av om kjøper har lest dokumentene. Alle interessenter oppfordres til å undersøke eiendommen nøye, gjerne sammen med fagkyndig før bud inngis. Kjøper som velger å kjøpe usett kan ikke gjøre gjeldende som mangel noe han burde blitt kjent med ved undersøkelsen.
Dersom det er behov for avklaringer, anbefaler vi at interessenter rådfører seg med eiendomsmegler eller egne rådgivere før det legges inn bud.
En bolig som har blitt brukt i en viss tid, har vanligvis blitt utsatt for slitasje og skader kan ha oppstått. Slik bruksslitasje må kjøper regne med, og det kan avdekkes enkelte forhold etter overtakelse som nødvendiggjør utbedringer. Normal slitasje og skader som nødvendiggjør utbedring, er innenfor hva kjøper må forvente og vil ikke utgjøre en mangel.
Kjøper og selgers rettigheter og plikter reguleres av avtalen mellom partene, samt informasjonen som har vært tilgjengelig for kjøperen i forbindelse med handelen. Avtalen utfylles av avhendingsloven, og det gjelder ulike avtalevilkår avhengig av om kjøper er forbrukerkjøper eller ikke. Dette er nærmere beskrevet nedenfor.
På grunn av ulike avtalevilkår kan selger vurdere bud fra en som ikke er forbruker, ulikt fra en forbrukers bud. Dersom kjøper ikke er forbruker, er selger sitt mulige mangelsansvar begrenset fordi eiendommen selges "som den er". Selger kan ikke ta «som den er» forbehold ovenfor en forbrukerkjøper. Selv et lavere bud fra en som ikke er forbruker kan foretrekkes fordi begrensningen i mulig mangelsansvar kan ha egenverdi for selger. Selger står fritt til å forkaste eller akseptere ethvert bud, og er for eksempel ikke forpliktet til å akseptere høyeste bud.
Budgiver skal i budskjema avgi egenerklæring om budgiver er forbruker eller næringsdrivende/ person som hovedsakelig handler som ledd i næringsvirksomhet. Budgivere får informasjon dersom andre bud er inngitt av en som ikke er forbruker.
Forbrukerkjøp - definisjon
Med forbrukerkjøp menes kjøp av eiendom når kjøperen er en fysisk person som ikke hovedsakelig handler som ledd i næringsvirksomhet.
Forbruker – avtalevilkår
Eiendommen har en mangel dersom den ikke er i samsvar med kravene som følger av avtalen, eller det foreligger brudd på bestemmelsene i avhendingsloven §§ 3-2 til 3-8. Hvis eiendommen ikke er i samsvar med det kjøperen må kunne forvente ut ifra alder, type og synlig tilstand, kan det være grunnlag for mangelskrav. Det samme gjelder hvis det er holdt tilbake eller gitt uriktige opplysninger om eiendommen. Dette gjelder likevel bare dersom man kan gå ut ifra at det virket inn på avtalen at opplysningen ikke ble gitt eller at mangelskravet ikke blir rettet i tide på en tydelig måte.
Boligen kan ha en mangel etter avhendingsloven § 3-3 andre ledd dersom det er avvik mellom opplyst og faktisk innvendig areal, forutsatt at avviket er på 2% eller mer og minimum 1 kvm.
Ved beregning av et eventuelt prisavslag eller erstatning må kjøper selv dekke tap/kostnader opptil et beløp på kr 10 000 (egenandel).
Ikke-forbruker (næringsdrivende) – definisjon
Hvis kjøper er en juridisk person, eller en fysisk person som hovedsakelig handler som ledd i næringsvirksomhet, vil kjøpet ikke anses som et forbrukerkjøp.
Ikke-forbruker – avtalevilkår
Eiendommen har en mangel dersom den ikke er i samsvar med kravene som følger av avtalen.
Eiendommen selges «som den er», og selgers ansvar utover det konkret avtalte er da begrenset etter avhendingsloven § 3-9, første ledd andre setning.
Avhendingsloven § 3-3 andre ledd fravikes, og hvorvidt boligens arealsvikt utgjør en mangel vurderes etter avhendingsloven § 3-8.
Informasjon om kjøpers undersøkelsesplikt, herunder oppfordringen om å undersøke eiendommen nøye, gjelder også for kjøpere som ikke anses som forbrukere.
Meglers vederlag
Meglers vederlag betales av selger og er avtalt til:
Vederlag: 1,00 % av salgssummen inkl. eventuell fellesgjeld. Minimumsprovisjon er kr 50 000,00
Vederlag:
Kontroll av hjemmel og heftelser kr 3 900,00
Markedsføringspakke kr 30 900,00
Oppgjør kr 8 900,00
Rabatt stylingtime kr -2 100,00
Tilrettelegging kr 19 900,00
Visninger pr stk / Overtagelse kr 4 500,00
Utlegg:
Innhenting av informasjon forretningsfører ca. kr 3 535,00
Pantenoterings-/sperregebyr til forretningsfører aksje - kr 4 150,00
Tinglysing sikring kr 545,00
Andre utgifter:
Boligselgerforsikring Gjensidige kr 15 333,00
Boligstyling/rådgivning kr 2 100,00
Foto (Dag- og kveldsbilder) kr 9 000,00
Tilstandsrapport fra bygningssakkyndig kr 9 000,00
Vi er opptatt av verdiskapning, og har knyttet til oss samarbeidspartnere som skal sikre våre kunder de beste produkter og tjenester;
• I forbindelse med forberedelse av salget, innhenter vi informasjon om eiendommen hovedsakelig fra vår samarbeidspartner Amibita.
• Gjensidige leverer boligselgerforsikring og tilbyr bygningsforsikring
• Boligkjøperforsikring leveres av Hiscox og med Sedgwick som skadebehandler, og er formidlet gjennom Gjensidige.
• BN bank tilbyr finansieringsløsninger
• Vår avdeling Krogsveen Pluss tilbyr flyttetjenester som utvask, visningsvask, lager, tømming og transport av flyttelass, i tillegg til å formidle kontakt med Flip for overflateoppussing.
• I forbindelse med overtagelse av eiendommen tilbyr Overo avtale om strøm, alarm og bredbånd.
• Krogsveen er, sammen med øvrige bransjeaktører, medeier i Bomega AS som tilbyr den digitale annonseringsplattformen Hjem.
Opplysninger om oppdraget
Oppdragsnummer 37-0017/26
Eiendomsmegler Krogsveen AS, avd. Hasle
Valle View, Innspurten 11D, 0663, OSLO
950007613
Oppdragets KR-kode KR37.2617
Dato
Sist oppdatert: 16. mars 2026 kl. 18:25
Dokumenter
Dokumenter
PDF – 1006 KB
PDF – 166 KB
PDF – 312 KB
PDF – 29 KB
PDF – 127 KB
PDF – 392 KB
Område
Legg til steder som er viktige for deg
Visning
Det er ingen planlagte visninger. Meld deg på for å avtale en tid som passer.
Lurer du på noe?
Unngå doble boligrenter
Vi tilbyr gunstig forsikring.
Vurderer du utleie?
Få et tilbud fra Utleie KrogsveenHva koster lånet?
Sjekk estimert lånekostnadVil du varsles om lignende boliger?
Ved å lagre ditt boligsøk hos oss får du beskjed når vi har en bolig som ligner denne, før den legges ut på markedet!





