Fritz Smiths gate 11
1 600 000 kr
61 m²
2 soverom
Komplett salgsoppgave

Selveierleilighet like ved havna i Tvedestrand sentrum- vakker utsikt- to soverom
Prisantydning
1 600 000 krAndel fellesgjeld
153 539 krOmkostninger
54 860 krTotalpris
1 808 399 kr
Pris
Bruksareal
61 m²BRA-I (internt bruksareal)
61 m²
Areal
Etasje
2Byggeår
1880Soverom
2 soveromBad
1 badType
EierleilighetEierform
EierseksjonFellesutgifter
4 035 krEnergimerke
Rød G
Nøkkelinfo
Unngå doble boligrenter
Vi tilbyr gunstig forsikring.
Vurderer du utleie?
Få et tilbud fra Utleie KrogsveenHva koster lånet?
Sjekk estimert lånekostnadBeskrivelse
Kort om eiendommen
Innholdsrik og arealeffektiv sentrumsleilighet med vakker utsikt til sjøen. Leiligheten ligger fint plassert nede ved havna i fine omgivelser. Det er gangavstand til alt av byens fasiliteter og bussforbindelser kort vei unna. Leiligheten ligger i byggets andre etasje og består av to soverom, gang, stue, bad/vaskerom og kjøkken. Det er fin utsikt til havnen fra både stue, kjøkken og bad.
Dette er en sjarmerende og fin leilighet plassert i byen som mange mener er en av Norges vakreste! Sørlandsbyen er en liten, men unik by bestående av koselige gater, hvitmalt trebebyggelse og nydelig skjærgård. På sommerstid "våkner" sentrum til liv og det er ulike arrangementer i byen. Både lokale og turister trekker til sentrumsgatene og havna yrer av båter og mennesker.
Innhold og byggemåte
Innhold og byggemåte
Eiendommen
Fritz Smiths gate 11, 4900 TVEDESTRAND
Kommunenummer 4213, gårdsnummer 74, bruksnummer 45, seksjonsnummer 3
Innhold
Totalt bruksareal BRA: 61 kvm
BRA-i:
Leilighet:
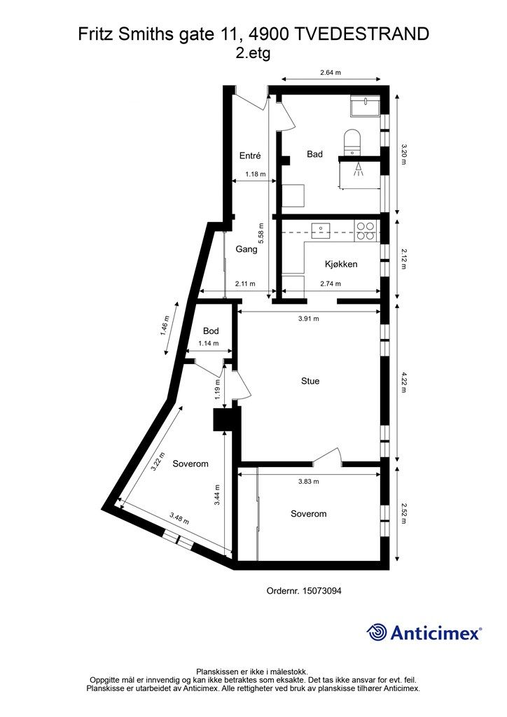
2. etasje 61 kvm: Entre, bad, gang, stue, kjøkken og to soverom
Vedlagte plantegninger er ikke målbare. De oppgitte arealer er hentet fra rapport med befaringsdato 10.06.2025 utført av Svein Ove Gjeruldsen . Arealene er beregnet og rom er definert etter dagens faktiske bruk, uavhengig av hva som er godkjent av bygningsmyndighetene.
Byggemåte
Selger har fått utarbeidet en tilstandsrapport, dvs. en teknisk gjennomgang av boligen hvor eventuelle avvik, risiko for kjøper og prisoverslag for hva som bør gjøres av oppgradering, er skissert. Se særskilt TGIU (tilstandsgrad ikke undersøkt), samt TG2 og TG3 som viser hva som er boligens normale slitasje, alder og type, hva som er avvik fra dette og hva som bør/må utbedres. Rapporten og selgers egenerklæring er en del av salgsoppgaven og må leses nøye før bud inngis. Kjøper overtar ansvaret for de opplysninger som fremkommer av salgsdokumentasjonen, og kan ikke gjøre gjeldende som mangel noe som burde vært kjent eller som ikke kan anses å ha betydning for avtalen.
Bygningen er iht. tilstandsrapporten oppført med grunnmur av betong og naturstein. Fundamentert på ukjent byggegrunn. Yttervegger av trekonstruksjoner. Fasaden er kledd med liggende og stående trekledning. Etasjeskillere av trekonstruksjoner.
Det gjøres spesielt oppmerksom på:
TG1 (Alt i orden): 73%
TG2 (Alder, slitasje og alder mv.): 16%
TG3 (Strakstiltak nødvendig): 0%
TGIU (Ikke undersøkt): 11%
Følgende har fått tilstandsgrad 2 (det henvises til sidetall i tilstandsrapporten):
Våtrom- bad/vaskerom: Overflate vegger, fallforhold (gulv), s. 8
Øvrige rom: Ventilasjon, overflater gulv, innerdører, s. 9
Etasjeskiller- 2.etg: Skjevhetsmåling, s.9
Sammendrag selgers egenerklæringsskjema:
2. Kjenner du til om det er utført arbeid på bad/våtrom?
Ja, både av faglært og ufaglært. Forrige eier pusset opp badet. Forrgie eier brukte jansvis norden og bravida, også egeninnsats.
2.1 Ble ettesjikt/membran/sluk oppgradert/fornyet?
Ja. Forrige eier. Nytt gulvbelegg.
5. Kjenner du til om det er/har vært problemer med drenering, fuktinnsig, øvrig fukt eller fuktmerker i underetasje/kjeller?
Vet ikke, eiligheter i 1 etasje ligger halvveis under bakken. men mur runt fasade og baksiden er pusset opp av agder byggutvikling as 2022 og 2025. Det påvirker ikke vår leilighet da den ligger i 2 etasje .
7. Kjenner du til om det er/har vært skjevheter/setningsskader, f. eks. riss/sprekker i mur, skjeve gulv eller lignende?
Noen skjevheter, da dette er et gammelt hus.
9. Kjenner du til om det er/har vært insekter/skadedyr i boligen som f.eks. rotter, mus, skjeggkre, maur eller lignende?
Ja, fjernet av skadedyrkontroll 1as.
11. Kjenner du til om det har vært utført arbeider på terrasse/garasje/tak/fasade?
Ja, kun faglært. Agder byggeutvikling as. Fasade.
13. Kjenner du til om det er utført kontroll av el-anlegget og/eller andre installasjoner (f.eks. oljetank, sentralfyr, ventilasjon)?
Nei, ikke utført mens vi har vært eiere, men forrige eier hadde kontroll av el anlegg i 2021.
Standard
Sentrumsleilighet med fin plassering like ved havna. Leiligheten ligger i byggets 2 etasje. Smart og arealeffektiv planløsning. Leiligheten inneholder to soverom, gang, bad/vaskerom, kjøkken og stue. Bad/vaskerom fra 2021 med vegghengt servantinnredning, dusjkabinett, toalett og opplegg for vaskemaskin. Kjøkkeninnredning med glatte fronter og integrert stekeovn, platetopp og oppvaskmaskin. Hvitevarer medfølger.
Løsøre og tilbehør
Vi viser til liste fra Norges Eiendomsmeglerforbund som gjelder fra 01.01.2020 angående løsøre og tilbehør.
Oppvarming
Elektrisk oppvarming.
Ferdigattest/brukstillatelse
Eiendommen har vært brukt til boligformål siden: ukjent. Det foreligger tegninger datert fra 1965-1977, men disse stemmer ikke overens med slik leiligheten fremstår i dag.
Kjøper overtar alt ansvar, kostnad og risiko for dette videre.
Det gjøres oppmerksom på at det ikke lenger utstedes ferdigattest på tiltak det er søkt om før 1998 jf. plan- og bygningsloven § 21-10. Kommunen vil ikke kreve ferdigattest for disse tiltakene og vil avvise eventuelle søknader. Bestemmelsen innebærer ikke at tiltak med manglende søknad blir lovlige, men at man ikke trenger å avslutte gamle byggesaker. Normalt sett kreves ferdigattest for alle søknadspliktige tiltak som gjøres etter plan- og bygningsloven.
Tinglyste heftelser og rettigheter
På eiendommen er det tinglyst følgende heftelser og rettigheter som følger eiendommens matrikkel ved overskjøting til ny hjemmelshaver:
4213/74/45/3:
19.07.1988- dokumentnr. 3083
Seksjonering
03.03.2000- dokumentnr. 618
Reseksjonering
Eventuell adgang til utleie
Leiligheten kan leies ut såfremt leiligheten har forsvarlige radonverdier. Leietaker må følge sameiets vedtekter og ordensregler på lik linje som eier.
Diverse
Vi er opptatt av verdiskapning, og har knyttet til oss samarbeidspartnere som skal sikre våre kunder de beste produkter og tjenester;
• Gjensidige leverer boligselgerforsikring og tilbyr bygningsforsikring
• Boligkjøperforsikring leveres av Hiscox og med Sedgwick som skadebehandler, og er formidlet gjennom Gjensidige.
• BN bank tilbyr finansieringsløsninger
• Vår avdeling Krogsveen Pluss tilbyr flyttetjenester som utvask, visningsvask, lager, tømming og transport av flyttelass, i tillegg til å formidle kontakt med Flip for overflateoppussing.
• I forbindelse med overtagelse av eiendommen tilbyr Overo avtale om strøm, alarm og bredbånd.
• Krogsveen er, sammen med øvrige bransjeaktører, medeier i den digitale annonseringsplattformen Hjem.
Beliggenhet og tomteforhold
Beliggenhet og tomteforhold
Beliggenhet
Nydelig sentrumsbeliggenhet like ved byhavna. Det er gangavstand til alt av byens fasiliteter og det man skulle trenge i hverdagen. Leiligheten har fin utsikt ut mot havna og sjøen.
Tvedestrand er en vakker, liten by med smale brosteinsgater omringet av hvitmalte trehus. I sentrumsgatene finner du koselige butikker, bakeri og restauranter samt gallerier og utstillinger. Havna er livlig om sommeren da både lokale og turister legger båtturen til sentrum. På sommeren arrangeres det ulike tilstelninger som konserter og festivaler i byen, der den årlige Tvedestrandsregattaen er sommeren høydepunkt.
Tvedestrand har en fantastisk skjærgård med nydelige holmer og strender. På land er det fin natur med vakre skogsområder og turstier i nærheten av eiendommen.
Det er kort vei til barnehage, skole, dagligvare og bussforbindelser. Grisen storsenter og Grenstøl handel tilbyr fint utvalg av dagligvare og shopping. Lett fremkommelighet til nærliggende steder ved påkjørsel til E18 i kort avstand på sentrum. Det er ca. 25 minutter med bil til Arendal og 30 minutter til Risør.
Adkomst
Se vedlagte kart eller kontakt megler for veibeskrivelse.
Barnehager, skoler og fritid
Barnehage:
Bronsbu barnehage (1-5 år): 0.9 km
Lyngbakken barnehage (1-5 år): 1.1 km
Skole:
Tvedestrand barneskole (1-7 kl.): 1.7 km
Lyngmyr skole (8-10 kl.): 1.2 km
Tvedestrand videregående skole : 1.5 km
Informasjon om tilhørende skolekretser er hentet fra Prognosesenteret som dataleverandør, og tilhørigheten kan årlig endres av kommunen. Dersom skole- og barnehagetilbud er av betydning for kjøpet, ber vi om at det rettes en særskilt henvendelse til kommunen/bydelsadministrasjonen for oppdatert informasjon.
Beskrivelse av tomt
Eiertomt på 152 kvm som tilhører sameiet. Tomten er fellesareal.
Parkering
Gateparkering etter områdets bestemmelser.
Vei, vann og avløp
Eiendommen har adkomst via kommunal vei.
Eiendommen er tilknyttet kommunalt ledningsnett via private stikkledninger.
Sameiet er ansvarlig for private stikkledninger til bygningen.
Regulerings-og arealplaner
I kommuneplanen er område satt av til sentrumsformål. Områder rundt er satt av til LNFR og boligformål.
Hensynssone: Bevaring kulturmiljø (H570).
Økonomi
Økonomi
Boligens kostnader
Fellesutgiftene er kr 4 035,- pr. mnd. og inkluderer: felleskostnader (årskontingent boligbyggelag, forretningsførerhonorar, forsikring, vedlikehold og lønnskostnader), rentekostnader andel fellesgjeld og avdrag andel fellesgjeld.
Fellesutgiftene justeres normalt en til to ganger årlig i forhold til sameiets faktiske utgifter.
Det tas forbehold om at felleskostnadene kan justeres fortløpende pga renteøkninger.
Kommunale avgifter kommer i tillegg og faktureres til hver enkelt seksjonseier.
Utgiftene er basert på nåværende eiers forbruk. Kjøper må selv tegne innboforsikring.
Kommunale utgifter
Vann: kr 5 066,-
Avløp: kr 6 951,-
Renovasjon: kr 4 800,-
Eiendomsskatt: kr 1 584,-
Formuesverdi
Formuesverdi for 2023 var kr 235 998,- ifølge skatteetaten. Beløpet forutsetter at eier bor fast i boligen (primærbolig).
Ved eventuell øvrig bruk av eiendommen (f.eks. fritidsbolig, pendlerbolig, utleieobjekt) var formuesverdien for 2023 kr 943 992,-.
Formuesverdien justeres normalt årlig. Se skatteetaten.no for mer informasjon om fastsettelse av formuesverdien.
Opplysninger om fellesgjeld
Spesifikasjon av lån:
Lånenummer: 60308124692, Nordea Bank ASA
Annuitetslån, 4 terminer per år.
Rentesats per 17.06.2025: 6.75% pa.
Antall terminer til innfrielse: 16
Saldo per 17.06.2025: 767 696
Andel av saldo: 153 539
Første termin/første avdrag: 30.12.2024 ( siste termin 30.03.2029 )
Flytende rente
Omkostninger
1 600 000,00 Prisantydning
153 539,00 Andel av fellesgjeld
--------------------------------------------------------
1 753 539,00 Pris inkl. fellesgjeld
Omkostninger
43 820,00 Dokumentavgift til staten (2,5% av kjøpesum)
9 950,00 Gjensidige Boligkjøperpakke (valgfri)
545,00 Tinglysing panterettsdokument
545,00 Tinglysing skjøte
--------------------------------------------------------
54 860,00 Omkostninger totalt
--------------------------------------------------------
1 808 399,00 Totalpris inkl. omkostninger
--------------------------------------------------------
Dersom sameiet har fellesgjeld, vil leilighetens andel av fellesgjelden komme i tillegg til kjøpesummen. Denne gjelden skal ikke innbetales i oppgjøret, men følger leiligheten.
Totalpris inkl. omkostninger forutsetter kjøp til prisantydning.
Det tas forbehold om endringer i avgifter og gebyrer.
Betalingsbetingelser
Kjøpesum inkludert omkostninger, samt pantedokument tilknyttet eventuelt lån, skal være disponibelt hos megler 2 virkedager før overtagelsen.
Annen viktig informasjon
Annen viktig informasjon
Eier
Thomas Skåningsrud Tangen og Maria Ann-Charlotte Åbonde
Overtakelse
Etter nærmere avtale.
Boligselgerforsikring
Selger har ikke tegnet boligselgerforsikring og eventuelle reklamasjoner må rettes direkte til selger. Selgers egenerklæringsskjema følger som bilag til denne salgsoppgaven i tillegg til tilstandsrapport. Interessenter må sette seg inn i dokumentene før bud inngis.
Boligkjøperforsikring
Innen kontraktsmøtet må kjøper ta stilling til om det ønskes å bestille Boligkjøperpakken gjennom Gjensidige. I denne gunstige pakken er boligen ferdig forsikret og inkluderer rettshjelpsforsikring, også kalt Boligkjøperforsikring. Rettshjelpsforsikring gir trygghet og tilgang på profesjonell juridisk hjelp dersom det oppdages uventede feil eller mangler det første året etter overtagelse. Forsikringsselskapet behandler i så fall ethvert mangelskrav kjøper måtte ha overfor selger.
Boligkjøperpakken inkluderer bygningsforsikring for hus og hytte, innboforsikring, flytteforsikring og dobbel rentedekning - i situasjoner hvor kjøper ikke får solgt nåværende primærbolig.
Kjøper mottar ingen særskilt faktura for Boligkjøperpakken da kostnaden det første året legges til kjøpesummen for boligen. Det gjøres oppmerksom på Krogsveen mottar et honorar for denne formidlingen.
Produktark for Boligkjøperpakken ligger vedlagt i salgsoppgaven.
Dersom ikke boligkjøperpakke ønskes kan kun rettshjelpsforsikring, også kalt boligkjøperforsikring, tegnes særskilt via megler. Rettshjelpsforsikringen varer i 5 år fra overtagelse og leveres gjennom Gjensidige. Ta kontakt med megler for ytterligere informasjon.
Selskap og privatpersoner som driver med kjøp/salg/utvikling som ledd i egen næringsvirksomhet kan ikke tegne boligkjøperpakke eller rettshjelpsforsikring.
Budgivning
Forbrukerinformasjon om budgivning er vedlagt denne salgsoppgaven og er også på vår hjemmeside Krogsveen.no. Alle bud og budforhøyelser må inngis skriftlig. I tillegg må legitimasjon være fremlagt sammen med signatur fra budgiver.
Vi oppfordrer til å gi bud elektronisk via GI BUD-knappen på eiendommens hjemmeside på Krogsveen.no. Da vil samtlige vilkår bli oppfylt.
Eventuelle forhøyelser eller endringer av budet kan bekreftes pr SMS eller på e-post. Vi oppfordrer alltid til å kontakte megler pr. telefon i tillegg da forsinkelser i SMS og e-post kan forekomme.
For at budene skal kunne bli behandlet og videreformidlet skriftlig til alle involverte parter, må alle bud ha en tilstrekkelig lang akseptfrist, jf. eiendomsmeglingsforskriften § 6-3.
Selger må også skriftlig akseptere budet før aksept kan formidles til budgiver. Akseptfrist bør derfor være på minimum 30 minutter, og budforhøyelser må derfor skje i god tid før fristens utløp.
Bud i forbrukerforhold kan uansett ikke settes med kortere frist enn kl. 12.00 første virkedag etter siste annonserte visning. I tillegg kan ikke budet ha forbehold om at det skal holdes hemmelig ovenfor øvrige interessenter. Megler har iht lov om eiendomsmegling ikke anledning til å videreformidle disse budene, og de vil dermed heller ikke bli journalført.
Etter at eiendommen er solgt vil kjøper og selger få tilsendt budjournal. Øvrige budgivere kan få utlevert kopi av budjournalen i anonymisert form.
Hvitvaskingsreglene
I henhold til lov om hvitvasking og terrorfinansiering har megler plikt til å gjennomføre kontrolltiltak overfor kunder, herunder fullmektiger. Dette innebærer bl.a. å bekrefte kunders og reelle rettighetshaveres identitet på bakgrunn av fremvist gyldig legitimasjon eller på annen godkjent måte, samt å innhente opplysninger om kundeforholdets formål og tilsiktede art.
Dersom slike kundetiltak ikke kan gjennomføres, kan megler ikke etablere kundeforholdet eller utføre transaksjonen.
Hvis kjøper ikke bidrar til gjennomføring av kundekontrollen og dette fører til at transaksjonen blir forsinket eller ikke kan gjennomføres, vil dette ansees som mislighold av avtalen og gi selger rettigheter etter avhendingslova kapittel 5. I tilfeller der selger ikke bidrar til gjennomføring av løpende kundekontroll underveis i oppdraget, er det selger som misligholder sine forpliktelser etter avtalen og gi kjøper rettigheter etter avhendingslovens kapittel 4. Partene er selv ansvarlige for eventuelle kostnader og ansvar dette kan medføre. Eiendomsmegleren eller eiendomsmeglingsforetaket kan ikke holdes ansvarlig for de konsekvenser dette vil kunne få for partene eller andre som har interesser i eiendomshandelen.
Kjøper oppfordres til å innbetale kjøpesummen som ikke kommer fra låneinstitusjon i én samlet innbetaling fra egen konto i norsk bank. Megler har plikt til å melde fra til Økokrim om eiendomshandler som fremstår som mistenkelige. Melding sendes Økokrim uten at partene varsles.
Personopplysningsloven
I henhold til personopplysningsloven gjør vi oppmerksom på at interessenter kan bli registrert for videre oppfølging.
Lovanvendelse
Generelle bestemmelser
Salgsoppgaven er basert på de opplysningene selger har gitt til megler, den bygningssakyndiges tilstandsrapport, samt opplysninger innhentet fra kommunen, Kartverket og andre tilgjengelige kilder. Det er viktig at kjøper setter seg grundig inn i alle salgsdokumentene, herunder salgsoppgave, tilstandsrapport og selgers egenerklæring. Kjøper anses kjent med forhold som er tydelig beskrevet i salgsdokumentene, og slike forhold kan ikke påberopes som mangler. Dette gjelder uavhengig av om kjøper har lest dokumentene. Alle interessenter oppfordres til å undersøke eiendommen nøye, gjerne sammen med fagkyndig før bud inngis. Kjøper som velger å kjøpe usett kan ikke gjøre gjeldende som mangel noe han burde blitt kjent med ved undersøkelsen.
Dersom det er behov for avklaringer, anbefaler vi at interessenter rådfører seg med eiendomsmegler eller egne rådgivere før det legges inn bud.
En bolig som har blitt brukt i en viss tid, har vanligvis blitt utsatt for slitasje og skader kan ha oppstått. Slik bruksslitasje må kjøper regne med, og det kan avdekkes enkelte forhold etter overtakelse som nødvendiggjør utbedringer. Normal slitasje og skader som nødvendiggjør utbedring, er innenfor hva kjøper må forvente og vil ikke utgjøre en mangel.
Kjøper og selgers rettigheter og plikter reguleres av avtalen mellom partene, samt informasjonen som har vært tilgjengelig for kjøperen i forbindelse med handelen. Avtalen utfylles av avhendingsloven, og det gjelder ulike avtalevilkår avhengig av om kjøper er forbrukerkjøper eller ikke. Dette er nærmere beskrevet nedenfor.
På grunn av ulike avtalevilkår kan selger vurdere bud fra en som ikke er forbruker, ulikt fra en forbrukers bud. Dersom kjøper ikke er forbruker, er selger sitt mulige mangelsansvar begrenset fordi eiendommen selges "som den er". Selger kan ikke ta «som den er»- forbehold overfor en forbrukerkjøper. Selv et lavere bud fra en som ikke er forbruker kan foretrekkes fordi begrensningen i mulig mangelsansvar kan ha egenverdi for selger. Selger står fritt til å forkaste eller akseptere ethvert bud, og er for eksempel ikke forpliktet til å akseptere høyeste bud.
Budgiver skal i budskjema avgi egenerklæring om budgiver er forbruker eller næringsdrivende/ person som hovedsakelig handler som ledd i næringsvirksomhet. Budgivere får informasjon dersom andre bud er inngitt av en som ikke er forbruker.
Forbrukerkjøp - definisjon
Med forbrukerkjøp menes kjøp av eiendom når kjøperen er en fysisk person som ikke hovedsakelig handler som ledd i næringsvirksomhet.
Forbruker – avtalevilkår
Eiendommen har en mangel dersom den ikke er i samsvar med kravene som følger av avtalen, eller det foreligger brudd på bestemmelsene i avhendingsloven §§ 3-2 til 3-8. Hvis eiendommen ikke er i samsvar med det kjøperen må kunne forvente ut ifra alder, type og synlig tilstand, kan det være grunnlag for mangelskrav. Det samme gjelder hvis det er holdt tilbake eller gitt uriktige opplysninger om eiendommen. Dette gjelder likevel bare dersom man kan gå ut ifra at det virket inn på avtalen at opplysningen ikke ble gitt eller at mangelskravet ikke blir rettet i tide på en tydelig måte.
Boligen kan ha en mangel etter avhendingsloven § 3-3 andre ledd, dersom det er avvik mellom opplyst og faktisk innvendig areal, forutsatt at avviket er på 2% eller mer og minimum 1 kvm.
Ved beregning av et eventuelt prisavslag eller erstatning må kjøper selv dekke tap/kostnader opptil et beløp på kr 10 000 (egenandel).
Ikke-forbruker (næringsdrivende) – definisjon
Hvis kjøper er en juridisk person, eller en fysisk person som hovedsakelig handler som ledd i næringsvirksomhet, vil kjøpet ikke anses som et forbrukerkjøp.
Ikke-forbruker – avtalevilkår
Eiendommen har en mangel dersom den ikke er i samsvar med kravene som følger av avtalen.
Eiendommen selges «som den er», og selgers ansvar utover det konkret avtalte er da begrenset etter avhendingsloven § 3-9, første ledd andre setning.
Avhendingsloven § 3-3 andre ledd fravikes, og hvorvidt boligens arealsvikt utgjør en mangel vurderes etter avhendingsloven § 3-8.
Informasjon om kjøpers undersøkelsesplikt, herunder oppfordringen om å undersøke eiendommen nøye, gjelder også for kjøpere som ikke anses som forbrukere.
Det forutsettes at hjemmel overføres til kjøper. Hvis kjøper ikke ønsker hjemmelsoverføring av eiendommen, må det tas forbehold om dette i budet.
Meglers vederlag
Meglers vederlag betales av selger og er avtalt til:
Minimumsprovisjon er 47.900,-
Tilrettelegging fra kr 9.900,-
Oppgjør: kr 7.500,-
Markedspakke: kr 26.900,-
Visninger: kr 900,- pr. visning
Oppslag eiendomsregister: kr 2.900,-
Megler har i tillegg krav på dekning av utlegg:
Foto kr 3 750,-
Innhenting av offentlige opplysninger Tvedestrand kommune kr 4 619,-
Innhenting av opplysninger ABBL kr 4 619,-
Eierskiftegebyr ABBL kr 4 575,-
Opplysninger om oppdraget
Oppdragsnummer 47-0106/25
Eiendomsmegler Krogsveen AS, avd. Arendal
Kystveien 14, 4841, ARENDAL
950 007 613
Oppdragets KR-kode KR47.25106
Dato
Sist oppdatert: 24. mai 2026 kl. 00:47
Dokumenter
Dokumenter
PDF – 346 KB
PDF – 657 KB
PDF – 1 MB
PDF – 1003 KB
PDF – 312 KB
PDF – 29 KB
PDF – 127 KB
PDF – 392 KB
Område
Legg til steder som er viktige for deg
Visning
Ta kontakt med megler for avtale om privatvisning.
Ønsker du kun å bli holdt orientert, kan du fra eiendommens hjemmeside få varsel om solgtpris, eller kontakte megler.
Lurer du på noe?
Unngå doble boligrenter
Vi tilbyr gunstig forsikring.
Vurderer du utleie?
Få et tilbud fra Utleie KrogsveenHva koster lånet?
Sjekk estimert lånekostnadVil du varsles om lignende boliger?
Ved å lagre ditt boligsøk hos oss får du beskjed når vi har en bolig som ligner denne, før den legges ut på markedet!

