Pilestredet Park 11C
6 450 000 kr
100 m²
2 soverom
Komplett salgsoppgave
Pilestredet Park
Lys og romslig 3-roms over 2 plan – IN-ordning – vv/fyring ink – heis – felles takterrasse - attraktiv beliggenhet
Prisantydning
6 450 000 krAndel fellesgjeld
2 385 228 krOmkostninger
11 040 krTotalpris
8 846 268 kr
Pris
Bruksareal
106 m²BRA-I (internt bruksareal)
100 m²BRA-E (eksternt bruksareal)
6 m²
Areal
Etasje
6Byggeår
1952Soverom
2 soveromBad
2 badType
EierleilighetEierform
AndelFasiliteter
HeisFellesutgifter
18 751 kr
Nøkkelinfo
Unngå doble boligrenter
Vi tilbyr gunstig forsikring.
Vurderer du utleie?
Få et tilbud fra Utleie KrogsveenHva koster lånet?
Sjekk estimert lånekostnadBeskrivelse
Kort om eiendommen
Lys og romslig 3-roms leilighet over to plan med generøs takhøyde og vindusflater fra gulv til tak. Planløsningen gir god soneinndeling, med kjøkken og spiseplass som sosialt samlingspunkt oppe, og egen TV-stue nede - i tillegg til fleksible soner som passer perfekt til hjemmekontor, lesekrok e.l. Stort bad nede og separat toalett oppe.
Høydepunkter:
IN-ordning: redusere felleskostnader til ca. 6 567 kr/mnd
Attraktiv beliggenhet
Romslig og sosial planløsning
Takhøyde på opptil 2,66 m
Store vindusflater
To felles takterrasser
A-konto oppvarming og vv ink
Innvendig bod + disponibel kjellerbod
Tidvis mulighet for kjøp/leie av parkering*
Felleskostnader / IN-ordning: Totalpris er inkludert andel fellesgjeld/lån. Ved innfrielse av fellesgjeld kan felleskostnader reduseres til 6 567 kr/mnd
Innhold og byggemåte
Innhold og byggemåte
Eiendommen
Pilestredet Park 11C, 0176 OSLO
Kommunenummer 301, gårdsnummer 208, bruksnummer 922, ideell andel 1/1
Andelsnummer 5606, Pilestredet Park 11-13 BRL, organisasjonsnummer 992 212 519
Innhold
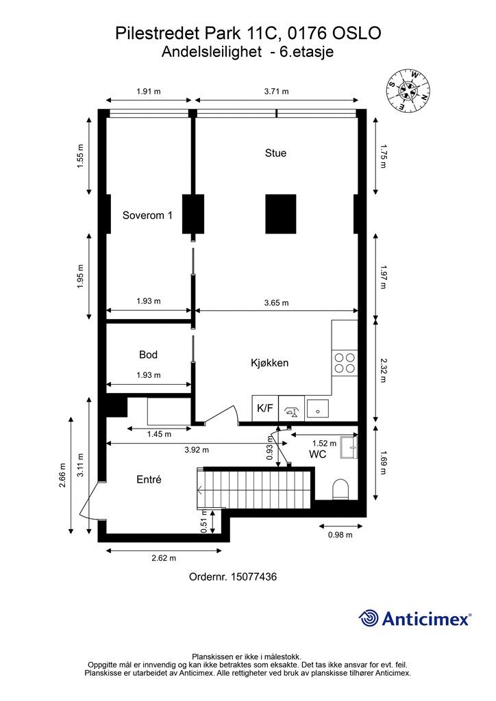
Totalt bruksareal BRA: 106 kvm
BRA-i:
5. etasje 49 kvm: Tv-stue, bad og soverom.
6. etasje 51 kvm: Entré, wc-rom, bod, soverom og stue med åpen kjøkkenløsning.
BRA-e:
-3. etasje 6 kvm: Bod.
Boligen disponerer 1 bod i tredje underetasje, boden er merket med nr. 5-606. Det gjøres oppmerksom på at boligens eksterne boder tilhører borettslagets fellesareal, og at boden således ikke eies av den enkelte andelseier. Dette medfører at borettslaget i fellesskap beslutter bruken, og at man ikke selv har eierrett og rettsvern for boden. Borettslaget kan ved vedtak beslutte annet bruk av fellesarealet.
Vedlagte plantegninger er ikke målbare. De oppgitte arealer er hentet fra rapport med befaringsdato 24.11.2025 utført av Anticimex AS. Arealene er beregnet og rom er definert etter dagens faktiske bruk, uavhengig av hva som er godkjent av bygningsmyndighetene.
Byggemåte
Andelsleilighet tilhørende Pilestredet Park 11-13 BRL beliggende i bydel St.Hanshaugen, Oslo kommune. Blokk over åtte etasjer samt tre u.etasjer. Støpt plate. Grunnmur, bærende konstruksjoner og skillende dekker i hovedsak av betong, med utfyllende bindingsverk samt noe bjelkelag av trekonstruksjoner. Fasader utført i teglstein, murpuss og betongoverflater. Tilnærmet flat takkonstruksjon utvendig tekket med papp/takfolie (ikke besiktiget). Ny entrédør etter befaring med takstmann av tre med brannklasse El30 og lydklasse 35dB. Vinduer med karmer av aluminium og to-lags glass fra året for ombygging 2007/2008. Les for øvrig mer om byggemåte og den tekniske tilstanden i rapporten.
Selger har fått utarbeidet en tilstandsrapport, dvs. en teknisk gjennomgang av boligen hvor eventuelle avvik, risiko for kjøper og prisoverslag for hva som bør gjøres av oppgradering, er skissert. Se særskilt TGIU (tilstandsgrad ikke undersøkt), samt TG2 og TG3 som viser hva som er boligens normale slitasje, alder og type, hva som er avvik fra dette og hva som bør/må utbedres. Rapporten og selgers egenerklæring er en del av salgsoppgaven og må leses nøye før bud inngis. Kjøper overtar ansvaret for de opplysninger som fremkommer av salgsdokumentasjonen, og kan ikke gjøre gjeldende som mangel noe som burde vært kjent eller som ikke kan anses å ha betydning for avtalen.
Sammendrag av boligens tilstandsgrad:
TG1: 64%
TG2: 32%
TGIU: 4%
Det gjøres spesielt oppmerksom på:
Tilstandsgrad 2 (TG2):
- Våtrom/Bad: Vannrør, Sanitærutstyr/innredning, Overflater vegger, Overflater gulv, Membran, tettesjikt og overgang til sluk, Fallforhold (gulv).
- Kjøkken: Overflater gulv.
- Toalettrom (Ikke våtrom)/Wc-rom: Sanitærutstyr / innredning, Overflater gulv.
- Øvrige rom: Overflater vegger, Overflater gulv.
- Innvendige trapper: Trappen har stedvis fri ganghøyde lavere enn 2,0 m.
- Etasjeskiller 5. etasje: Skjevhetsmåling.
- Elektrisk anlegg: Forenklet vurdering av det elektriske anlegget.
Ingen punkter er tildelt TG3.
Kjøper overtar ansvar og risiko for dette. For mer utdypende informasjon om overnevnte punkter, henvises det til boligens tilstandsrapport.
Selger opplyser i sin egenerklæring at boligen selges som et dødsbo. Selger har dermed begrenset kjennskap til leiligheten. Selger opplyser om at den ene skinnen til lamell gardin i stuen er litt løs og at det er noen mindre merker på gulvet ved radiator.
Standard
6. etasje
Entré:
Velkommen inn! Når du kommer inn i leiligheten blir du møtt av en lys og romslig entré i 6. etasje. Her er det god plass til yttertøy og oppbevaring i skyvedørsgarderobe. Ved entréen er det en praktisk innvendig bod. Adkomst via felles trapperom med heis, oppgangen har callinganlegg.
WC/Toalettrom:
I tilknytning til entréen er det praktisk toalettrom fra 2007/2008 og har flislagt gulv med varme og vegger. Det er innredet med vegghengt servant og speil over servant, samt vegghengt toalett med innebygget sisterne.
Stue med åpen kjøkkenløsning:
Stuen har en arealeffektiv og smart planløsning med plass til både sofahjørne og spisebord. Leilighetens utforming gjør boligen enkel å møblere. Store vindusflater gir godt med naturlig dagslys, og sammen med moderne fargevalg skapes en behagelig atmosfære.
Kjøkkenet ligger i åpen løsning mot stuen. Den åpne kjøkkenløsningen skaper en sosial atmosfære, og har god plass til en stor spisegruppe. Dette er et kjøkken med rikelig skap- og benkeplass med innredning av glatte fronter. Benkeplaten er i laminat og har nedfelt oppvaskkum i rustfritt stål. Det er integrerte hvitevarer - oppvaskmaskin, stekeovn og keramisk platetopp. Frittstående kjøleskap med frysedel. Integrert ventilator med avtrekkskanal.
Soverom 1:
Leiligheten har to fine soverom. Soverommet i 6. etasje egner seg ypperlig som barnerom, gjesteværelse eller hjemmekontor.
5. etasje
Tv-stue
Leiligheten har en innbydende og pen stue. De store vindusflatene slipper inn rikelig dagslys og gir rommet en luftig, romslig følelse. Det er hyggelig utsyn mot frodige trær. Stuen byr på gode møbleringsmuligheter, med plass til sofagruppe, tv-seksjon og spisebord.
Hovedsoverom:
Hovedsoverommet er romslig og kan enkelt innredes med både dobbeltseng med tilhørende nattbord og ønsket oppbevaringsmøblement. Rommet er holdt i duse og behagelige nyanser - perfekte for soverommet.
Bad
Leiligheten har et delikat og flislagt baderom med gulvvarme. Rommet har en vegghengt innredning med heldekkende servant, vegghengt overskap med speildører og overlys over servant. Det er videre dusjhjørne med glassvegg, vegghengt toalett og opplegg for vaskemaskin. Badet er fra ombyggingsår.
Øvrig:
Gulv: Gulvflater belagt med parkett.
Vegger og himling: Vegger og himlingsflater utført i glatte malte flater
Takhøyde: 6. etasje: 2,4 meter i entré. 2,26 meter i wc-rom og 2,41-2,66 meter i øvrige rom.
5. etasje: 2,42-2,48 meter på soverom og 2,4 meter i øvrige rom.
Vinduer fra 2007/2008 (ombyggingsår)
Leiligheten er rengjort av vaskebyrå før visning og vil ikke bli ytterliggere rengjort før overtakelse
Løsøre og tilbehør
Vi viser til liste fra Norges Eiendomsmeglerforbund som gjelder fra 01.01.2020 angående løsøre og tilbehør.
Følger med: Frittstående kombiskap, innebygd oppvaskmaskin, vaskemaskin og tørketrommel, samt integrerte hvitevarer. Andre møbler kan følge etter avtale.
Oppvarming
Leilighet er oppvarmet med vannbåren varme ved radiatorer via varmeanlegg, samt tilknyttet felles varmtvann for bygningen. Gulvvarme på bad.
Dersom beboelsesrom ikke har vegg- eller fastmonterte varmekilder ved visning, følger dette heller ikke med.
Ferdigattest/brukstillatelse
Det foreligger ferdigattest på eiendommen, datert 23.05.2025. Denne kan fås ved henvendelse til megler.
I henhold til de godkjente byggetegningene fra 2006 er det gjort flere endringer. Trappen i leiligheten er flyttet, noe som har medført flere endringer i romløsningen. Blant annet er badet utvidet og har innlemmet en innvendig bod og arealet ved de store vinduene er i 5. etasje byggemeldt som vinterhage og vinterhage regnes som BRA-B. Disse endringene er søknadspliktige. Dagens planløsning stemmer overens med seksjonering fra 2007 og det viser seg at det er flere liknende endringer i mange leiligheter i bygget.
Styret opplyser følgende i mail den 11.02.2026 om de overnevnte forholdene:
«Styret kan bekrefte at vi har startet arbeidet med å rette opp situasjonen, der Plan- og bygningsetaten i Oslo kommune ikke besitter de korrekte tegningene over leilighetene.
Kostnadene for dette arbeidet vil borettslaget bære, da ansvarlig arkitektfirma hevder at deres ansvar er foreldet. Utover det kollektive ansvaret hver andelseier har i et borettslag, hviler det ikke noe ekstra ansvar på enkelte andelseiere.»
Arkitekten fra ombyggingen sier at de kan på seg jobben med ny søknadsprosess og sier at søknadsprosessen vil koste kr 123.120,- ganger antall bygg som skal omsøkes i tillegg til deres kostnad for arbeidet. Dette blir som nevnt en felles kostnad for bygget.
Kjøper overtar ansvar og risiko for situasjonen videre.
Tinglyste heftelser og rettigheter
Utover andel fellesgjeld overdras leiligheten fri for pengeheftelser.
Borettslaget har legalpant for forfalte felleskostnader og andre krav som følger av borettslagsforholdet iht. burettslagsloven § 5-20. Pantet er begrenset oppad til 2G (G = folketrygdens grunnbeløp).
Det er ingen tinglyste servitutter på eiendommen.
Eventuell adgang til utleie
Andelseier kan ikke uten samtykke fra styret i borettslaget overlate bruken av boligen til andre. Med samtykke kan andelseier overlate boligen til andre i inntil tre år hvis andelseier har bodd i boligen i minst ett av de to siste år. Utleie i andre tilfeller kan godtas ved særlige grunner, jf. burettslagslova § 5-6. Utleie forutsetter at leiligheten har forsvarlige radonverdier. Se også borettslagets vedtekter og konferer megler ved spørsmål.
Diverse
Eiendommen inngår i et dødsbo hvor arvingene er selgere. Arvingene har ikke bebodd eiendommen og kjennskapen til eiendommens tilstand kan være mangelfull. Kjøper må derfor kunne påregne at det kan være flere feil og mangler som normalt oppdages ved bruk av boligen, men som selger av dødsbo ikke har mulighet å vite.
Beliggenhet og tomteforhold
Beliggenhet og tomteforhold
Beliggenhet
Da Rikshospitalet i mai 2000 flyttet inn i nybygde lokaler på Gaustad besluttet Stortinget at gamle rikshospitalet skulle utvikles til et område for bolig og næring med fokus på ivaretakelse av bærekraftige byøkologiske prinsipper. Med ombygging av Pilestredet Park 11-13 er området ferdig utviklet. Eiendommen består av tidligere institutt for Øre-nese-hals fra 1968 og Bakteriologisk institutt fra 1940. Sistnevnte er bevaringsverdig og er oppført på Byantikvarens gul liste. Eiendommen som består av 3 sammenhengende bygg, grenser til Oslo katedralskole, Ullevålsveien og Stensberggata og er ombygget til 113 leiligheter.
Pilestredet Park 11 C ligger sentralt og attraktivt til med nærhet til både St. Hanshaugen og sentrum. Pilestredet Park skiller seg ut med sin moderne arkitektur i et område som ellers består av klassisk bygårdsbebyggelse. Hele prosjektet ble oppført på tidlig 2000-tallet, og er et byøkologisk prosjekt med miljøvennlige løsninger på mange områder og grøntanlegg som setter sterkt preg på strøket.
Eiendommen har en sentral og attraktiv beliggenhet i en pulserende bydel, med nærhet til det meste hovedstaden har å tilby. Borettslaget er oppført langs Ullevålsveien med adkomst til parkmessig område og hovedinngang fra Stensberggaten. Leiligheten har god beliggenhet i byggets tredje etasje med lys fra to sider og utsyn over grøntområde. Gangavstand til to av hovedstadens mest ettertraktede handlegater, Bogstadveien og Karl Johans Gate, med et rikt utvalg av forretninger og servicetilbud. Her finner du alt fra de store motehusene til de mindre nisjeforretningene.
Bogstadveien har dessuten fått et nytt estetisk løft og fremstår som en moderne og attraktiv handlegate. Nisjeforretninger som Gutta på Haugen og Røtter er få minutter fra boligen. Bydelen er dessuten preget av flere kulturelle virksomheter som f.eks. Litteraturhuset og Kunstnernes hus. For øvrig også gangavstand til sentrum med Karl Johans gate og eksklusive kjøpesentre som Eger, Paleet og Sten & Strøm.
Området er omkranset av flere parker og grøntområder. Få minutters gange til Slottsparken med sitt karakteristiske uttrykk. For øvrig kort vei til idylliske St. Hanshaugen og Stensparken. Anerkjente Frognerparken med skulpturparken Vigelandsanlegget og frodige Frognerbadet er også innenfor rekkevidde. Her finner du flotte skulpturer, beplantning og grøntanlegg i særklasse.
Både Bislett, Majorstuen og St.hanshaugen har gode velvære- og treningstilbud innendørs med Sats på Bislet, Fresh Fitness St.Hanshaugen og St.Hanshaugen senter, for ikke å glemme Bislet Bad. For den turglade er det relativt kort avstand med offentlig kommunikasjon til Sognsvann og Frognerseteren med milevis av turløyper sommer som vinter.
Foruten å ha gangavstand til Oslo sentrum. I Ullevålsveien rett utenfor finner du 33- og 37-bussen, samt 21-bussen med hyppige avganger fra Waldemar Thranes gate. På Frydenlund finner du blåtrikken med trikkelinjene 11, 16, 17 og 18 samt alle t-banens linjer fra Nationaltheatret og Stortinget. Med andre ord - Her har du nær sagt alt du trenger i umiddelbar nærhet.
Adkomst
Det vil bli skiltet med Krogsveen visningsskilt ved fellesvisninger.
Barnehager, skoler og fritid
Informasjon om tilhørende skolekretser er hentet fra Prognosesenteret som dataleverandør, og tilhørigheten kan årlig endres av kommunen. Dersom skole- og barnehagetilbud er av betydning for kjøpet, ber vi om at det rettes en særskilt henvendelse til kommunen/bydelsadministrasjonen for oppdatert informasjon.
Beskrivelse av tomt
Eiertomt på 3 577 kvm som tilhører borettslaget. Tomten er opparbeidet med støpte internveier, gressplen og diverse beplantning.
Parkering
Garasjene i bygget er en egen seksjon som ikke borettslaget eller forretningsfører forvalter. Ved ønske om kjøp eller informasjon om garasje, ta kontakt med Pilestredet Park 11-13 garasjesameie. Her er det privateide plasser som er tidvis tilgjengelig for salg og leie.
Det er innført beboerparkering i dette området (indre by). Dette betyr at du kan parkere fritt døgnet rundt på parkeringsplassene regulert til beboerparkering i området rundt din bolig for kun kr. 3.850,- pr. år for fossile biler, dieselbil, hybridbil, ladbar hybrid.
Har du el-bil så betaler du kr. 1.300,- pr år, hydrogenbil og el-varebil er gratis.
Motorsykkel og moped kr 1.950,- pr år.
El-motorsykkel og el-moped kr 650,- pr år.
Se Oslo kommune sine nettsider for mer informasjon og priser for ytre by.
Vei, vann og avløp
Eiendommen har adkomst via kommunal vei.
Eiendommen er tilknyttet kommunalt ledningsnett via private stikkledninger. Borettslaget er ansvarlig for private stikkledninger til bygningen.
Regulerings-og arealplaner
Eiendommen er regulert til byggeområde for bolig, forretning, kontor, bevertn. og off.bygn./allmen.formål (barnehage, undervisning) i henhold til reguleringsplan S-4173 datert 31.08.2005 med tilhørende reguleringsbestemmelser. Utsnitt av plan med tilhørende bestemmelser kan fås ved henvendelse til megler.
Området blir berørt av kommuneplanens arealdel fra 2015: «Oslo mot 2030 - Smart, trygg og grønn». Ny kommuneplan «Oslo fram mot 2040: Variert boligbygging og styrking av det grønne» er under revidering, men er ikke endelig vedtatt. Denne planen får betydning for en rekke vedtatte reguleringsplaner i Oslo. Inntil ny arealdel er vedtatt, gjelder arealdelen fra 2015. Henviser til kommunens nettsider for ytterligere informasjon: https://www.oslo.kommune.no/politikk-og-administrasjon/politikk/kommuneplan/.
Eiendommen er verneverdig da den står oppført på Byantikvarens Gule Liste. Dette kan medføre at større endringer av bygningen må godkjennes av kommunen eller fylket før igangsetting.
Pågående byggesaker:
- Stensberggata 17 B - Ombygging. Saksnummer 202515469.
- Stensberggata 11 - Bruksendring av eksisterende garasjebygg til vinbar. Saksnummer 202517243.
Opplistingen er ikke uttømmende og interessenter oppfordres til å sette seg inn i reguleringsplaner for området. For flere byggesaker og informasjon i området, gå inn på Oslo kommune, plan og bygg sine nettsider: https://od2.pbe.oslo.kommune.no/kart/
Økonomi
Økonomi
Boligens kostnader
Felleskostnadene er kr 18 751,- pr. mnd. og inkluderer: Varme og varmtvann, bredbånd, kommunale avgifter, drift og vedlikehold, diverse honorarer m.m.
Dersom IN-lånet innfris vil de månedlige felleskostnadene reduseres til kr 6.567,- per mnd.
Felleskostnadene justeres normalt en til to ganger årlig i forhold til borettslagets faktiske utgifter og ble sist justert 01.01.2026.
Felleskostnadene fordeles slik:
Varme og v.vann kr 1 114,43,-
Lån nr: 9820756488; IN lån 1 - Akonto renter kr 9 789,13,-
Lån nr: 9820756488; IN lån 1 - Akonto avdrag kr 2 395,19,-
Drift målere Techem kr 95,00,-
Felleskostnader kr 5 130,60,-
Bredbånd kr 227,-
Kostnader for varme og varmtvann avregnes årlig etter forbruk og ved eierskifte, dette betales som et månedlig á-konto beløp.
Eiendomsskatten er ca. kr 2 793,- pr år. Eiendomsskatten blir lagt på felleskostnadene i mai, juni, september og november.
Sameiet har avtale med Techem om leveranse av energiservicetjenester. OBOS fakturerer den enkelte beboer a-konto på vegne av Techem sammen med ordinær innkreving av felleskostnader. Avregning og evt. justering av a-kontobeløp skjer årlig. Ved salg av boligen må kjøper/selger lese av måler og selv sende inn avlesningsskjema til Techem.
Nåværende eier har et strømforbruk som tilsvarte kr 600 i november og er beregnet til omtrent 1 843 kwh. pr. år (eier opplyser at det er usikkert om dette gir et korrekt bilde av normalt forbruk ettersom hun selv ikke har bodd i boligen)
Boligen er tilknyttet ObosOpennet som leverandør av internett og er inkludert i felleskostnadene. Tv-tuner/dekoder medfølger ikke.
Selger har ikke bebodd eiendommen og har således ikke kjennskap til øvrige løpende utgifter for eiendommen. Kjøper må selv tegne innboforsikring.
Formuesverdi
Formuesverdi for 2024 var kr 2 103 048,- ifølge Skatteetaten. Beløpet forutsetter at eier bor fast i boligen (primærbolig).
Ved eventuell øvrig bruk av eiendommen (f.eks. fritidsbolig, pendlerbolig, utleieobjekt) var formuesverdien for 2023 kr 8 412 190,-.
Formuesverdien justeres normalt årlig. Se Skatteetaten.no for mer informasjon om fastsettelse av formuesverdien.
Opplysninger om fellesgjeld
Andel formue er kr 65 874,- pr. 31.12.2024
Andel fellesgjeld er kr 2 385 228,- pr. 29.12.2025
Total fellesgjeld for boligselskapet er kr 74 372 318,- pr. 29.12.2025 og lånevilkårene er:
Lån 1:
Rentebetingelser: 4,99% flytende rente
Restsaldo: kr 2 544 022,-
Innfrielsesdato: 30.11.2036
IN-avtale: Nei
Lån 2:
Rentebetingelser: 4,99% flytende rente
Restsaldo: 71 828 296,-
Innfrielsesdato: 30.07.2058
IN-avtale: Ja.
Dette borettslaget har tilrettelagt for individuell nedbetaling av andel fellesgjeld (IN-ordning) på det ene lånet. Det vil si at hver enkelt andelseier helt eller delvis kan velge å nedbetale sin andel av borettslagets fellesgjeld til boligbyggelaget. Det er mulig å nedbetale/innfri andel fellesgjeld 2 ganger pr. år, den 30/4 og 30/10 (gjelder kun ett av borettslagets to lån), beløpet må være OBOS ihende senest 2 uker før de oppgitte datoer. Dette vil i så fall medføre en reduksjon av de månedlige felleskostnadene (andel av renter og avdrag på fellesgjelden). Nedbetalt andel av fellesgjeld knyttes til andelen og følger andelen ved et eventuelt salg.
kr 2.353.915,- av fellesgjelden kan innløses. Dette vil medføre en reduksjon i felleskostnadene med kr 12.184 slik at resterende kostnader blir kr 6.567,- per mnd.
Omkostninger
6 450 000,00 Prisantydning
2 385 228,00 Andel av fellesgjeld
--------------------------------------------------------
8 835 228,00 Pris inkl. fellesgjeld
Omkostninger
9 950,00 Gjensidige Boligkjøperpakke (valgfri)
545,00 Tinglysing hjemmel
545,00 Tinglysing panterettsdokument
--------------------------------------------------------
11 040,00 Omkostninger totalt
--------------------------------------------------------
8 846 268,00 Totalpris inkl. omkostninger
--------------------------------------------------------
Dersom kjøper ikke er medlem av boligbyggelaget, må det påregnes en innmeldingsavgift og årlig medlemsgebyr pr. ny andelseier. Dette faktureres direkte fra boligbyggelaget.
Dersom borettslaget har fellesgjeld, vil leilighetens andel av fellesgjelden komme i tillegg til kjøpesummen. Denne gjelden skal ikke innbetales i oppgjøret, men følger leiligheten.
Det tas forbehold om endringer i avgifter og gebyrer.
Tilbud om lånefinansiering
Megler formidler gjerne kontakt med rådgiver hos vår samarbeidspartner BN Bank. De har konkurransedyktige betingelser samt rask og løsningsorientert behandling av din lånesøknad. Krogsveen mottar et honorar dersom lån opprettes.
Betalingsbetingelser
Kjøpesum inkludert omkostninger, samt pantedokument tilknyttet eventuelt lån, skal være disponibelt hos megler 2 virkedager før overtagelsen.
Annen viktig informasjon
Annen viktig informasjon
Eier
Camilla Pedersen
Informasjon om forkjøpsrett
Leiligheten er tilknyttet Pilestredet Park 11-13 BRL. Borettslagets 113 boliger er i felleskap seksjonert i en samleseksjon bolig, og er en del av Pilestredet Park 11-13 Eierseksjonssameie. Sameiet består av 1 samleseksjon bolig for alle leilighetene og 6 næringsseksjoner hvorav 1 seksjon utgjør parkeringskjelleren og 1 seksjon benyttes til barnehage.
Forretningsfører er Obos Eiendomsforvaltning AS.
Dugnad samt trappevask må påregnes.
Dyrehold er i alminnelighet tillatt så lenge det ikke er til plage for andre beboere/andelseiere.
Foretatt påkostninger i 2024:
• Innføring av mobilnøkkel til hovedinngangene
• Vedtatt å pålegge andelseierne automatisk lekkasjestopper på kjøkken
• Fulgt opp forsikringssaker ifbm. innbrudd og vannskader
• Malt oppgang 12B
• Vedlikehold av utvendige sluk
• Startet søk av sluk på terrasser i 7. etasje mot øst.
• Oppgradert innbruddssikring på inngangsdørene
• Startet utredning av sykkelparkering ved inngangen til 13F
• Oljet terrassene
• Saksbehandlet og innhentet juridisk bistand i ulike saker fra andelseiere
• Arbeidet med manglende ferdigattest på bygget
• Vedtatt rutiner ved brann og branntilsyn
• Reparert branndører etter innbrudd
• Startet arbeidet med innsetting av manglende pakninger på samtlige branndører
• Har hatt el-tilsyn og fulgt opp dette
• Systematisk tilsyn og vedlikehold av:
-heiser
-ventilasjonsanlegg
-brannsikringssystem
-varmt- og kaldtvannssystem
-sentralvarmeanlegg
-adgangskontrollsystem
Planlagte påkostninger:
Iht. mailkorrespondanse med styreleder 05.01.2026 er det ikke pt. ikke planlagt noen påkostninger.
I henhold til borettslagets vedtekter må kjøper godkjennes av styret som ny andelseier. Det er kjøpers ansvar at styregodkjenning blir gitt, men styret kan ikke nekte godkjenning uten saklig grunn.
Iht. burettslagslova kan man bare eie én andel i borettslaget. Kun fysiske personer kan være andelseiere.
Borettslaget er tilknyttet Borettslagenes Sikringsordning AS som dekker manglende innbetaling av felleskostnader fra øvrige andelseiere. Avtalen om sikring er gyldig til avtalen sies opp av en av partene. Oppsigelsesfrist er 1 desember med gyldighet fra førstkommende årsskifte.
Overtakelse
Etter nærmere avtale. Overtakelse kan tidligst skje etter at styrets godkjennelse er avklart.
Boligselgerforsikring
Selger har i forbindelse med salget tegnet Boligselgerforsikring levert av Gjensidige. Boligselgerforsikring dekker selgers ansvar etter avhendingsloven begrenset oppad til kr 14 millioner. Dersom kjøper oppdager forhold ved eiendommen som hen mener utgjør en mangel ved eiendommen, vil Gjensidige behandle reklamasjonen på vegne av selger. Forsikringsvilkår kan fås ved henvendelse til megler.
Vedlagt salgsoppgaven følger selgers egenerklæringsskjema og tilstandsrapport. Interessenter må sette seg inn i dokumentene før bud inngis. Egenerklæringen er fylt ut av arvingene iht deres kjennskap om eiendommen. Da de ikke har bebodd eiendommen kan kjennskapen være mangelfull.
Boligkjøperforsikring
Innen kontraktsmøtet må kjøper ta stilling til om det ønskes å bestille Boligkjøperpakken gjennom Gjensidige. I denne gunstige pakken er boligen ferdig forsikret og inkluderer rettshjelpsforsikring, også kalt Boligkjøperforsikring. Rettshjelpsforsikring gir trygghet og tilgang på profesjonell juridisk hjelp dersom det oppdages uventede feil eller mangler det første året etter overtagelse. Forsikringsselskapet behandler i så fall ethvert mangelskrav kjøper måtte ha overfor selger.
Boligkjøperpakken inkluderer bygningsforsikring for hus og hytte, innboforsikring, flytteforsikring og dobbel rentedekning - i situasjoner hvor kjøper ikke får solgt nåværende primærbolig.
Kjøper mottar ingen særskilt faktura for Boligkjøperpakken da kostnaden det første året legges til kjøpesummen for boligen. Det gjøres oppmerksom på Krogsveen mottar et honorar for denne formidlingen.
Produktark for Boligkjøperpakken ligger vedlagt i salgsoppgaven.
Dersom ikke boligkjøperpakke ønskes kan kun rettshjelpsforsikring, også kalt boligkjøperforsikring, tegnes særskilt via megler. Rettshjelpsforsikringen varer i 5 år fra overtagelse og leveres gjennom Gjensidige. Ta kontakt med megler for ytterligere informasjon.
Selskap og privatpersoner som driver med kjøp/salg/utvikling som ledd i egen næringsvirksomhet kan ikke tegne boligkjøperpakke eller rettshjelpsforsikring.
Budgivning
Forbrukerinformasjon om budgivning er vedlagt denne salgsoppgaven og er også på vår hjemmeside Krogsveen.no. Alle bud og budforhøyelser må inngis skriftlig. I tillegg må legitimasjon være fremlagt sammen med signatur fra budgiver.
Vi oppfordrer til å gi bud elektronisk via GI BUD-knappen på eiendommens hjemmeside på Krogsveen.no. Da vil samtlige vilkår bli oppfylt.
Eventuelle forhøyelser eller endringer av budet kan bekreftes pr SMS eller på e-post. Vi oppfordrer alltid til å kontakte megler pr. telefon i tillegg da forsinkelser i SMS og e-post kan forekomme.
For at budene skal kunne bli behandlet og videreformidlet skriftlig til alle involverte parter, må alle bud ha en tilstrekkelig lang akseptfrist, jf. eiendomsmeglingsforskriften § 6-3.
Selger må også skriftlig akseptere budet før aksept kan formidles til budgiver. Akseptfrist bør derfor være på minimum 30 minutter, og budforhøyelser må derfor skje i god tid før fristens utløp.
Bud i forbrukerforhold kan uansett ikke settes med kortere frist enn kl. 12.00 første virkedag etter siste annonserte visning. I tillegg kan ikke budet ha forbehold om at det skal holdes hemmelig ovenfor øvrige interessenter. Megler har iht lov om eiendomsmegling ikke anledning til å videreformidle disse budene, og de vil dermed heller ikke bli journalført.
Etter at eiendommen er solgt vil kjøper og selger få tilsendt budjournal. Øvrige budgivere kan få utlevert kopi av budjournalen i anonymisert form.
Hvitvaskingsreglene
I henhold til lov om hvitvasking og terrorfinansiering har megler plikt til å gjennomføre kontrolltiltak overfor kunder, herunder fullmektiger. Dette innebærer bl.a. å bekrefte kunders og reelle rettighetshaveres identitet på bakgrunn av fremvist gyldig legitimasjon eller på annen godkjent måte, samt å innhente opplysninger om kundeforholdets formål og tilsiktede art.
Dersom slike kundetiltak ikke kan gjennomføres, kan megler ikke etablere kundeforholdet eller utføre transaksjonen.
Hvis kjøper ikke bidrar til gjennomføring av kundekontrollen og dette fører til at transaksjonen blir forsinket eller ikke kan gjennomføres, vil dette ansees som mislighold av avtalen og gi selger rettigheter etter avhendingslova kapittel 5. I tilfeller der selger ikke bidrar til gjennomføring av løpende kundekontroll underveis i oppdraget, er det selger som misligholder sine forpliktelser etter avtalen og gi kjøper rettigheter etter avhendingslovens kapittel 4. Partene er selv ansvarlige for eventuelle kostnader og ansvar dette kan medføre. Eiendomsmegleren eller eiendomsmeglingsforetaket kan ikke holdes ansvarlig for de konsekvenser dette vil kunne få for partene eller andre som har interesser i eiendomshandelen.
Kjøper oppfordres til å innbetale kjøpesummen som ikke kommer fra låneinstitusjon i én samlet innbetaling fra egen konto i norsk bank. Megler har plikt til å melde fra til Økokrim om eiendomshandler som fremstår som mistenkelige. Melding sendes Økokrim uten at partene varsles.
Personopplysningsloven
I henhold til personopplysningsloven gjør vi oppmerksom på at interessenter kan bli registrert for videre oppfølging.
Lovanvendelse
Generelle bestemmelser
Salgsoppgaven er basert på de opplysningene selger har gitt til megler, den bygningssakyndiges tilstandsrapport, samt opplysninger innhentet fra kommunen, Kartverket og andre tilgjengelige kilder. Det er viktig at kjøper setter seg grundig inn i alle salgsdokumentene, herunder salgsoppgave, tilstandsrapport og selgers egenerklæring. Kjøper anses kjent med forhold som er tydelig beskrevet i salgsdokumentene, og slike forhold kan ikke påberopes som mangler. Dette gjelder uavhengig av om kjøper har lest dokumentene. Alle interessenter oppfordres til å undersøke eiendommen nøye, gjerne sammen med fagkyndig før bud inngis. Kjøper som velger å kjøpe usett kan ikke gjøre gjeldende som mangel noe han burde blitt kjent med ved undersøkelsen.
Dersom det er behov for avklaringer, anbefaler vi at interessenter rådfører seg med eiendomsmegler eller egne rådgivere før det legges inn bud.
En bolig som har blitt brukt i en viss tid, har vanligvis blitt utsatt for slitasje og skader kan ha oppstått. Slik bruksslitasje må kjøper regne med, og det kan avdekkes enkelte forhold etter overtakelse som nødvendiggjør utbedringer. Normal slitasje og skader som nødvendiggjør utbedring, er innenfor hva kjøper må forvente og vil ikke utgjøre en mangel.
Kjøper og selgers rettigheter og plikter reguleres av avtalen mellom partene, samt informasjonen som har vært tilgjengelig for kjøperen i forbindelse med handelen. Avtalen utfylles av avhendingsloven, og det gjelder ulike avtalevilkår avhengig av om kjøper er forbrukerkjøper eller ikke. Dette er nærmere beskrevet nedenfor.
På grunn av ulike avtalevilkår kan selger vurdere bud fra en som ikke er forbruker, ulikt fra en forbrukers bud. Dersom kjøper ikke er forbruker, er selger sitt mulige mangelsansvar begrenset fordi eiendommen selges "som den er". Selger kan ikke ta «som den er»- forbehold overfor en forbrukerkjøper. Selv et lavere bud fra en som ikke er forbruker kan foretrekkes fordi begrensningen i mulig mangelsansvar kan ha egenverdi for selger. Selger står fritt til å forkaste eller akseptere ethvert bud, og er for eksempel ikke forpliktet til å akseptere høyeste bud.
Budgiver skal i budskjema avgi egenerklæring om budgiver er forbruker eller næringsdrivende/ person som hovedsakelig handler som ledd i næringsvirksomhet. Budgivere får informasjon dersom andre bud er inngitt av en som ikke er forbruker.
Forbrukerkjøp - definisjon
Med forbrukerkjøp menes kjøp av eiendom når kjøperen er en fysisk person som ikke hovedsakelig handler som ledd i næringsvirksomhet.
Forbruker – avtalevilkår
Eiendommen har en mangel dersom den ikke er i samsvar med kravene som følger av avtalen, eller det foreligger brudd på bestemmelsene i avhendingsloven §§ 3-2 til 3-8. Hvis eiendommen ikke er i samsvar med det kjøperen må kunne forvente ut ifra alder, type og synlig tilstand, kan det være grunnlag for mangelskrav. Det samme gjelder hvis det er holdt tilbake eller gitt uriktige opplysninger om eiendommen. Dette gjelder likevel bare dersom man kan gå ut ifra at det virket inn på avtalen at opplysningen ikke ble gitt eller at mangelskravet ikke blir rettet i tide på en tydelig måte.
Boligen kan ha en mangel etter avhendingsloven § 3-3 andre ledd, dersom det er avvik mellom opplyst og faktisk innvendig areal, forutsatt at avviket er på 2% eller mer og minimum 1 kvm.
Ved beregning av et eventuelt prisavslag eller erstatning må kjøper selv dekke tap/kostnader opptil et beløp på kr 10 000 (egenandel).
Ikke-forbruker (næringsdrivende) – definisjon
Hvis kjøper er en juridisk person, eller en fysisk person som hovedsakelig handler som ledd i næringsvirksomhet, vil kjøpet ikke anses som et forbrukerkjøp.
Ikke-forbruker – avtalevilkår
Eiendommen har en mangel dersom den ikke er i samsvar med kravene som følger av avtalen.
Eiendommen selges «som den er», og selgers ansvar utover det konkret avtalte er da begrenset etter avhendingsloven § 3-9, første ledd andre setning.
Avhendingsloven § 3-3 andre ledd fravikes, og hvorvidt boligens arealsvikt utgjør en mangel vurderes etter avhendingsloven § 3-8.
Informasjon om kjøpers undersøkelsesplikt, herunder oppfordringen om å undersøke eiendommen nøye, gjelder også for kjøpere som ikke anses som forbrukere.
Det forutsettes at hjemmel overføres til kjøper. Hvis kjøper ikke ønsker hjemmelsoverføring av eiendommen, må det tas forbehold om dette i budet.
Meglers vederlag
Meglers vederlag betales av selger og er avtalt til:
Vederlag: 0,65 % av salgssummen inkl. eventuell fellesgjeld.
Vederlag:
Kontroll av hjemmel og heftelser kr 2 900,-
Markedsføringspakke kr 30.900,-
Oppgjør kr 7 500,-
Tilrettelegging kr 17 000,-
Visninger pr stk / Overtagelse kr 3 000,-
Utlegg:
Eierskiftegebyr forretningsfører - OBOS kr 6 725,-
Innhenting av informasjon forretningsfører kr 4 758,-
Innhenting av offentlig opplysninger, ferdigattest m/byggetegn kr 950,-
Tinglysing sikring kr 545,-
Andre utgifter:
Foto stor pakke med profesjonell fotograf kr 4 750,-
Vi er opptatt av verdiskapning, og har knyttet til oss samarbeidspartnere som skal sikre våre kunder de beste produkter og tjenester;
• I forbindelse med forberedelse av salget, innhenter vi informasjon om eiendommen hovedsakelig fra vår samarbeidspartner Amibita.
• Gjensidige leverer boligselgerforsikring og tilbyr bygningsforsikring
• Boligkjøperforsikring leveres av Hiscox og med Sedgwick som skadebehandler, og er formidlet gjennom Gjensidige.
• BN bank tilbyr finansieringsløsninger
• Vår avdeling Krogsveen Pluss tilbyr flyttetjenester som utvask, visningsvask, lager, tømming og transport av flyttelass, i tillegg til å formidle kontakt med Flip for overflateoppussing.
• I forbindelse med overtagelse av eiendommen tilbyr Overo avtale om strøm, alarm og bredbånd.
• Krogsveen er, sammen med øvrige bransjeaktører, medeier i Bomega AS som tilbyr den digitale annonseringsplattformen Hjem.
Opplysninger om oppdraget
Oppdragsnummer 40-0239/25
Eiendomsmegler Krogsveen AS, avd. Majorstuen og Oslo Vest
Hegdehaugsveien 31, 0352, OSLO
950 007 613
Oppdragets KR-kode KR40.25239
Dato
Sist oppdatert: 18. mars 2026 kl. 22:54
Dokumenter
Dokumenter
PDF – 925 KB
PDF – 402 KB
PDF – 627 KB
PDF – 312 KB
PDF – 29 KB
PDF – 127 KB
PDF – 392 KB
Område
Legg til steder som er viktige for deg
Visning
For å delta på visning, ber vi om at du melder deg på. Da sikrer vi at du får nødvendig informasjon og at det er satt av tilstrekkelig med tid. Kontakt megler dersom annet tidspunkt ønskes. Husk å lese salgsoppgaven før visningen, så du stiller forberedt.
Ønsker du kun å bli holdt orientert, kan du fra eiendommens hjemmeside få varsel om solgtpris, eller kontakte megler.
Lurer du på noe?
Unngå doble boligrenter
Vi tilbyr gunstig forsikring.
Vurderer du utleie?
Få et tilbud fra Utleie KrogsveenHva koster lånet?
Sjekk estimert lånekostnadVil du varsles om lignende boliger?
Ved å lagre ditt boligsøk hos oss får du beskjed når vi har en bolig som ligner denne, før den legges ut på markedet!




