Revgårdsveien 19
3 390 000 kr
199 m²
3 soverom
Solgt

Seter/Vanvikan
Enebolig på stor tomt med vakker utsikt mot fjorden. To bad oppusset i 2021 og 2024. Store terrasser og altaner.
Prisantydning
3 390 000 krOmkostninger
105 740 krTotalpris
3 495 740 kr
Pris
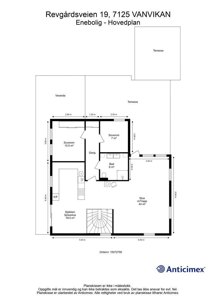
Bruksareal
224 m²BRA-I (internt bruksareal)
199 m²BRA-E (eksternt bruksareal)
25 m²TBA (terrasse-balkongareal)
107 m²
Areal
Etasje
2Byggeår
1981Soverom
3 soveromBad
2 badTomteareal
1 092 m² (festet)Type
Enebolig - FrittliggendeEierform
EietFasiliteter
Garasje/P-plass og Balkong/TerrasseEnergimerke
Gul F
Nøkkelinfo
Unngå doble boligrenter
Vi tilbyr gunstig forsikring.
Vurderer du utleie?
Få et tilbud fra Utleie KrogsveenHva koster lånet?
Sjekk estimert lånekostnadBeskrivelse
Kort om eiendommen
Eiendommen har fin beliggenhet i terrenget med vakker utsikt over fjorden. Den store tomta omkranses av skog, som i tillegg til pent å ramme inn huset sørger for naturlig skjerming. Det er godt med plass til lek og utfoldelse for store og små i familien, og i tillegg til hage og uteområder har huset terrasse/veranda/altan på totalt ca. 200 kvm. Det er kort vei ned til fjorden og strandkanten, og nærområdet er omgitt av vakker natur med gode stier og turløyper.
Huset har store vindusflater mot den vakre fjordutsikten, og oppholdssonen er gjennomlys, med et stort og luftig areal. Til sammen har boligen fire soverom fordelt på begge etasjer (ett mangler godkjenning), og i underetasjen er en bod på ca. 14 kvm innredet som kjellerstue. Begge etasjer har fine baderom – oppusset i 2021 og 2024.
Område
Legg til steder som er viktige for deg
På flyttefot? Tenk kjøp og salg samtidig.
Få din egen rådgiver gjennom hele kjøps- og salgsprosessen. Det starter med en verdivurdering.
Unngå doble boligrenter
Vi tilbyr gunstig forsikring.
Vurderer du utleie?
Få et tilbud fra Utleie KrogsveenHva koster lånet?
Sjekk estimert lånekostnadVil du varsles om lignende boliger?
Ved å lagre ditt boligsøk hos oss får du beskjed når vi har en bolig som ligner denne, før den legges ut på markedet!

