Hjalmar Brantings vei 109
4 990 000 kr
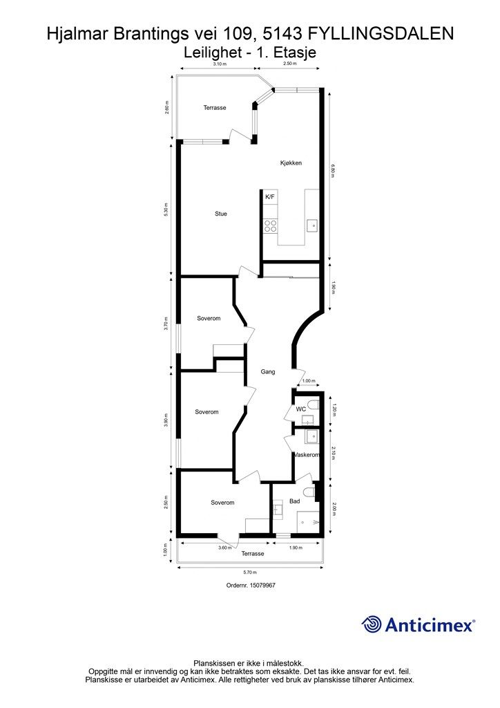
92 m²
3 soverom
Solgt

Presenteres av
Henriette MuriSjelden mulighet! Nydelig 4-roms endeleilighet innredet i 2015. Trappefri adkomst. Usjenerte og solrike omgivelser.
Prisantydning
4 990 000 krAndel fellesgjeld
28 561 krOmkostninger
19 252 krTotalpris
5 037 813 kr
Pris
Bruksareal
97 m²BRA-I (internt bruksareal)
92 m²BRA-E (eksternt bruksareal)
5 m²TBA (terrasse-balkongareal)
14 m²
Areal
Etasje
1Byggeår
1973Soverom
3 soveromBad
1 badType
AndelsleilighetEierform
AndelFasiliteter
Balkong/TerrasseFellesutgifter
5 903 krEnergimerke
Oransje F
Nøkkelinfo
Unngå doble boligrenter
Vi tilbyr gunstig forsikring.
Vurderer du utleie?
Få et tilbud fra Utleie KrogsveenHva koster lånet?
Sjekk estimert lånekostnadBeskrivelse
Kort om eiendommen
Velkommen til Hjalmar Brantings vei 109! En unik leilighet i hjertet av Fyllingsdalen med gangavstand til bybanen og Oasen kjøpesenter, samt til skole og barnehager.
Høydepunkter:
Leiligheten har to terrasser
Varmtvann inkl. i fellesutgiftene
Leiligheten var tidligere barnehage, den ble i 2015 innredet som leilighet og holder en god standard deretter
Gulvvarme i stue, kjøkken, gang, bad og vaskerom
Rør-i-rør
Romslig leilighet
Fin plassering i borettslaget
Like ved bybanen, samt sykkel- og gangtunnel som tar deg raskt til Minde/Haukeland/sentrum
Svært gode turmuligheter i området
10 minutter kjøretid til Bergen sentrum
Område
Legg til steder som er viktige for deg
På flyttefot? Tenk kjøp og salg samtidig.
Få din egen rådgiver gjennom hele kjøps- og salgsprosessen. Det starter med en verdivurdering.
Unngå doble boligrenter
Vi tilbyr gunstig forsikring.
Vurderer du utleie?
Få et tilbud fra Utleie KrogsveenHva koster lånet?
Sjekk estimert lånekostnadVil du varsles om lignende boliger?
Ved å lagre ditt boligsøk hos oss får du beskjed når vi har en bolig som ligner denne, før den legges ut på markedet!
På flyttefot? Slik gjør vi det enklere for deg
Skreddersydd flyttepakke
Vi fikser håndverkere, vask, pakking, lagring og transport, og legger ut for utgiftene underveis.
Hjelp med både kjøp og salg
Hos oss har du din egen rådgiver gjennom hele kjøps- og salgsprosessen.
Hjelp til finansiering
Vårt samarbeid med BN Bank sikrer deg rask og løsningsorientert hjelp, til konkurransedyktige betingelser.





































