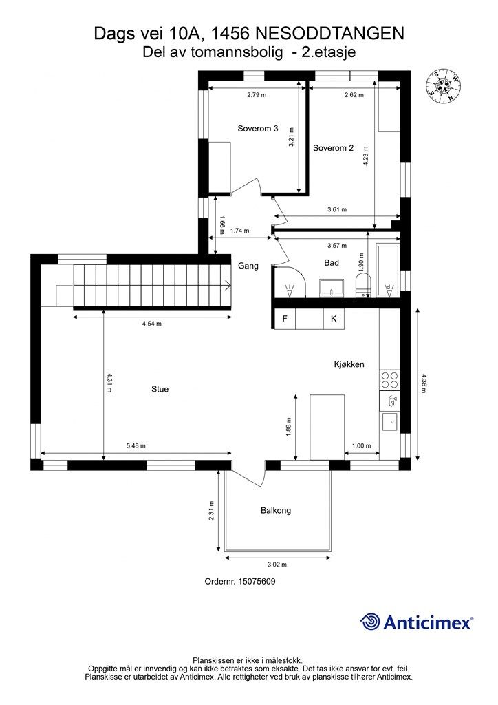
Dags vei 10A
9 900 000 kr
137 m²
4 soverom
Solgt
Ursvik/Oksval
Fantastisk utsikt! Stor del av tomannsbolig med hage, terrasser, takterrasse, garasje, 5 min til sjøen, 35 min til Oslo
Prisantydning
9 900 000 krOmkostninger
258 540 krTotalpris
10 158 540 kr
Pris
Bruksareal
142 m²BRA-I (internt bruksareal)
137 m²BRA-E (eksternt bruksareal)
5 m²TBA (terrasse-balkongareal)
64 m²
Areal
Byggeår
2015Soverom
4 soveromBad
2 badType
EierleilighetEierform
EierseksjonFasiliteter
Garasje/P-plass og Balkong/TerrasseFellesutgifter
3 614 krEnergimerke
Rød C
Nøkkelinfo
Unngå doble boligrenter
Vi tilbyr gunstig forsikring.
Vurderer du utleie?
Få et tilbud fra Utleie KrogsveenHva koster lånet?
Sjekk estimert lånekostnadDette liker selger best ved boligen
Fantastisk utsikt, fred og ro uten sjenerende støy fra vei eller naboer. Boligen gir en ekte eneboligfølelse. En pent opparbeidet, inngjerdet hage som innbyr til både dyrking og avslapning. Eiendommen har en moderne utforming med gjennomtenkte løsninger, lyse flater og gode materialvalg. Store vindusflater slipper inn rikelig med naturlig lys og gir en luftig atmosfære, samtidig som utsikten kan nytes fra flere rom. Boligen kombinerer komfort og funksjonalitet, og passer perfekt for dem som ønsker et hjem i rolige omgivelser – uten å gi avkall på moderne standard og kvalitet. Sameiet har et stort felles grøntareale.
Beskrivelse
Kort om eiendommen
Her får du en elegant bolig med "eneboligfølelse" og flott utsikt over fjorden, Svartskog, Ljan, Nordstrand, Bekkelaget og helt til Frogner. Moderne og innholdsrik del av tomannsbolig med høy standard og stilfullt interiør! Boligen byr på fantastiske solforhold fra tidlig morgen til sen kveld. Den delvis overbygde takterrassen gir en spektakulær utsikt – perfekt for både avslapning og sosiale stunder. Hagen er nydelig opparbeidet med solrike terrasseflater, frodige plantekasser, velstelt plen, blomster og frukttrær som gir både epler og fersken. Parkering i felles anlegg. Beliggenheten er sentral og familievennlig, med kort vei til skoler, barnehager, butikker, badestrender, kollektivtransport og Tangen brygge med båt til Lysaker og Aker brygge. Dette er en bolig som virkelig må oppleves!
Område
Legg til steder som er viktige for deg
På flyttefot? Tenk kjøp og salg samtidig.
Få din egen rådgiver gjennom hele kjøps- og salgsprosessen. Det starter med en verdivurdering.
Unngå doble boligrenter
Vi tilbyr gunstig forsikring.
Vurderer du utleie?
Få et tilbud fra Utleie KrogsveenHva koster lånet?
Sjekk estimert lånekostnadVil du varsles om lignende boliger?
Ved å lagre ditt boligsøk hos oss får du beskjed når vi har en bolig som ligner denne, før den legges ut på markedet!




