Skogahaugen 21
3 790 000 kr
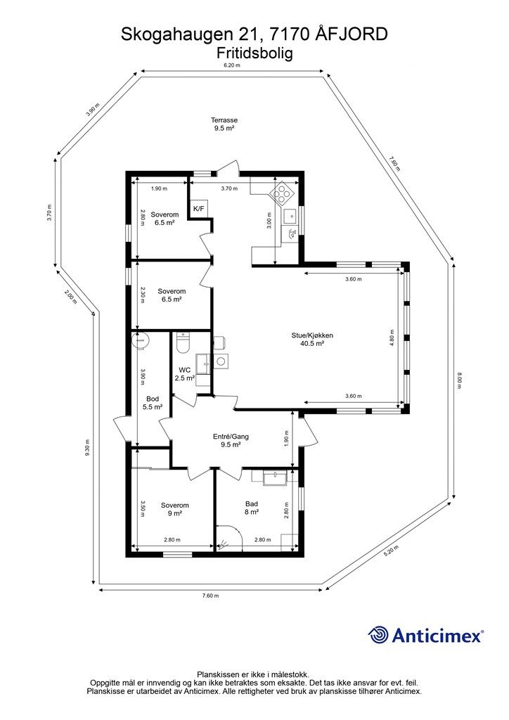
93 m²
3 soverom
Solgt

Lauvøya
Flott, velholdt fritidsbolig med fabelaktig utsikt mot havet. Hems. Anneks. Naust og tinglyst naustplass nr. 2.
Prisantydning
3 790 000 krOmkostninger
115 740 krTotalpris
3 905 740 kr
Pris
Bruksareal
145 m²BRA-I (internt bruksareal)
93 m²BRA-E (eksternt bruksareal)
52 m²TBA (terrasse-balkongareal)
95 m²
Areal
Etasje
1Byggeår
2006Soverom
3 soveromBad
1 badTomteareal
801 m² (eiet)Type
Fritidseiendom ved sjøenEierform
EietFasiliteter
Balkong/TerrasseEnergimerke
Oransje D
Nøkkelinfo
Vurderer du utleie?
Få et tilbud fra Utleie KrogsveenHva koster lånet?
Sjekk estimert lånekostnadBeskrivelse
Kort om eiendommen
Eiendommen har en flott beliggenhet i terrenget med fabelaktig utsikt mot havet. Utsikten spiller hovedrollen på alle vis, og både sol- og lysforhold er enestående. Det er god plass rundt huset i alle retninger, og tomta oppleves fredelig og uforstyrret, omgitt av det vakre landskapet.
Hytta ble oppført i 2006 og er i meget god forfatning. Den er preget av solid vedlikehold, og er vel tilrettelagt for hyttelivet, både innvendig og utvendig. Heldekkende vindusflater i stua tar naturen og den vakre utsikten inn på stuegulvet. Terrassen kretser rundt hele huset, og gjør det mulig å nyte omgivelsene tørrskodd fra flere fine solkroker. I tillegg til tre gode soverom er det også en hems, som gir rom for enda flere sengeplasser.
Naust og anneks følger med, i tillegg til en tinglyst naustplass.

Område
Legg til steder som er viktige for deg
På flyttefot? Tenk kjøp og salg samtidig.
Få din egen rådgiver gjennom hele kjøps- og salgsprosessen. Det starter med en verdivurdering.
Vurderer du utleie?
Få et tilbud fra Utleie KrogsveenHva koster lånet?
Sjekk estimert lånekostnadVil du varsles om lignende boliger?
Ved å lagre ditt boligsøk hos oss får du beskjed når vi har en bolig som ligner denne, før den legges ut på markedet!

