Våkleivåsen 194
4 490 000 kr
115 m²
3 soverom
Solgt

Presenteres av
Siren Helene Rundhovde Familievennlig rekkehus med fantastisk utsikt og hage! Utvendig rehabilitert i 2022. Fine uteplasser,balkong & terrasse.
Prisantydning
4 490 000 krAndel fellesgjeld
729 457 krOmkostninger
19 252 krTotalpris
5 238 709 kr
Pris
Bruksareal
115 m²BRA-I (internt bruksareal)
115 m²TBA (terrasse-balkongareal)
32 m²
Areal
Etasje
2Byggeår
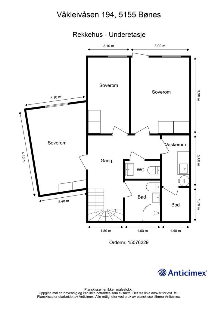
1984Soverom
3 soveromBad
1 badType
RekkehusEierform
AndelFasiliteter
Balkong/TerrasseFellesutgifter
7 909 krEnergimerke
Oransje E
Nøkkelinfo
Unngå doble boligrenter
Vi tilbyr gunstig forsikring.
Vurderer du utleie?
Få et tilbud fra Utleie KrogsveenHva koster lånet?
Sjekk estimert lånekostnadBeskrivelse
Kort om eiendommen
Velkommen til Våkleivåsen 194 – Et koselig og familievennlig rekkehus i rolige, barnevennlige og naturskjønne omgivelser med minimal gjennomgangstrafikk og like ved borettslagets lekeplass. Borettslaget renoverte alle rekkehusene utvendig i 2022 med nye vinduer, dører, kledning og tak. Boligen ligger på populære Bønes og byr på en enkel og behagelig hverdag med kort vei til alt du trenger.
Høydepunkter:
Fantastisk utsikt
Pen hage
God planløsning
3 romslige soverom
Varmepumpe og peis i boligen
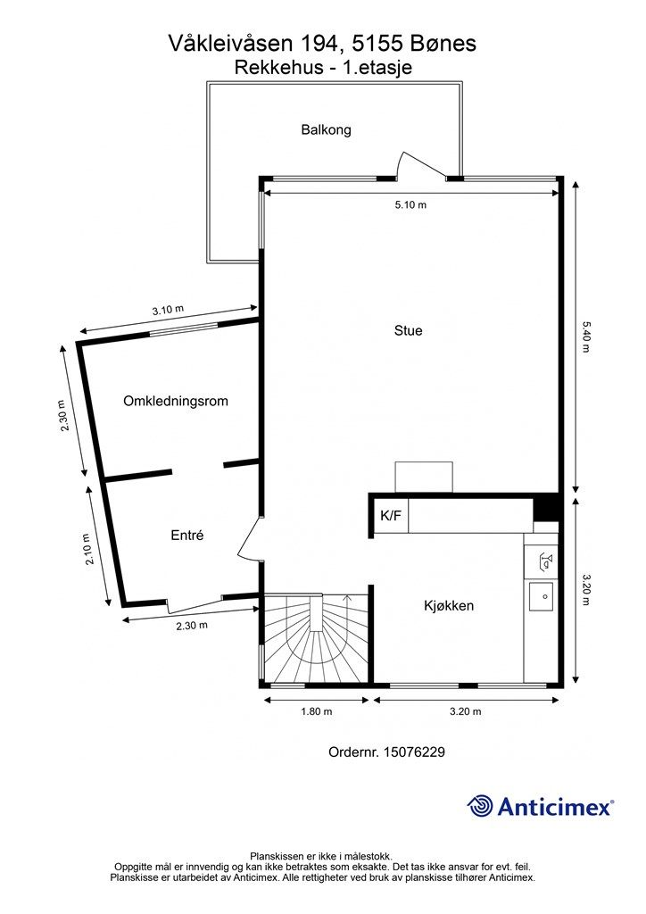
Terrasse på ca. 20 m²
Balkong på ca. 12 m²
Utvendig renovert (2022) i regi av borettslaget - Dette omfatter nye vinduer, dører, kledning og tak.
Lekeplass like ved boligen
Svært kort gangavstand til skole, barnehage og idrettsanlegg
Område
Legg til steder som er viktige for deg
På flyttefot? Tenk kjøp og salg samtidig.
Få din egen rådgiver gjennom hele kjøps- og salgsprosessen. Det starter med en verdivurdering.
Unngå doble boligrenter
Vi tilbyr gunstig forsikring.
Vurderer du utleie?
Få et tilbud fra Utleie KrogsveenHva koster lånet?
Sjekk estimert lånekostnadVil du varsles om lignende boliger?
Ved å lagre ditt boligsøk hos oss får du beskjed når vi har en bolig som ligner denne, før den legges ut på markedet!
På flyttefot? Slik gjør vi det enklere for deg
Skreddersydd flyttepakke
Vi fikser håndverkere, vask, pakking, lagring og transport, og legger ut for utgiftene underveis.
Hjelp med både kjøp og salg
Hos oss har du din egen rådgiver gjennom hele kjøps- og salgsprosessen.
Hjelp til finansiering
Vårt samarbeid med BN Bank sikrer deg rask og løsningsorientert hjelp, til konkurransedyktige betingelser.

