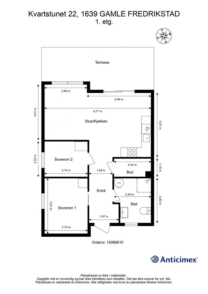
Kvartstunet 22
3 330 000 kr
62 m²
2 soverom
Solgt

Presenteres av
Raymond Bøhn Begby
Velholdt og innbydende 3-roms med solrik uteplass. Oppusset bad og stilrent kjøkken. Rolig og familievennlig område.
Prisantydning
3 330 000 krOmkostninger
94 290 krTotalpris
3 424 290 kr
Pris
Bruksareal
67 m²BRA-I (internt bruksareal)
62 m²BRA-E (eksternt bruksareal)
5 m²TBA (terrasse-balkongareal)
21 m²
Areal
Etasje
1Byggeår
2011Soverom
2 soveromBad
1 badType
EierleilighetEierform
EierseksjonFasiliteter
Garasje/P-plass og Balkong/TerrasseFellesutgifter
1 729 krEnergimerke
Rød B
Nøkkelinfo
Unngå doble boligrenter
Vi tilbyr gunstig forsikring.
Vurderer du utleie?
Få et tilbud fra Utleie KrogsveenHva koster lånet?
Sjekk estimert lånekostnadDette liker selger best ved boligen
Stille og rolig, lite trafikk. Er nærhet til skog og mark, utrolig fine tur stier for både gå, løping og sykling rett ved huset. Er landlig, men likevel sentralt, kort vei til gamlebyen, og byen generelt.
Beskrivelse
Kort om eiendommen
Tre-roms selveier på Bråtenfeltet med attraktiv plassering i sameiets ytre rekke
- Solrik, takoverbygget terrasse på hele 21 kvm
- Stilfullt og moderne bad med store fliser og ny innredning
- Effektiv romløsning med åpent stue- og kjøkken
- Velholdt kjøkken fra Sigdal med integrerte hvitevarer
- Biloppstillingsplass med mulighet for lader til EL-bil
- Lysløype og fine turområder i Begbymarka lett tilgjengelig fra nabolaget
- Kort gangavstand til barnehage, barne-/ungdomsskole og idrettsanlegg
- Sykkelavstand til byen - gratis ferge over Glomma til sentrum og Nøklebystranda
Område
Legg til steder som er viktige for deg
På flyttefot? Tenk kjøp og salg samtidig.
Få din egen rådgiver gjennom hele kjøps- og salgsprosessen. Det starter med en verdivurdering.
Unngå doble boligrenter
Vi tilbyr gunstig forsikring.
Vurderer du utleie?
Få et tilbud fra Utleie KrogsveenHva koster lånet?
Sjekk estimert lånekostnadVil du varsles om lignende boliger?
Ved å lagre ditt boligsøk hos oss får du beskjed når vi har en bolig som ligner denne, før den legges ut på markedet!
På flyttefot? Slik gjør vi det enklere for deg
Skreddersydd flyttepakke
Vi fikser håndverkere, vask, pakking, lagring og transport, og legger ut for utgiftene underveis.
Hjelp med både kjøp og salg
Hos oss har du din egen rådgiver gjennom hele kjøps- og salgsprosessen.
Hjelp til finansiering
Vårt samarbeid med BN Bank sikrer deg rask og løsningsorientert hjelp, til konkurransedyktige betingelser.

