Valmuevegen 15
2 550 000 kr
51 m²
2 soverom
Solgt
Hjellum
Moderne og innbydende halvpart av tomannsbolig fra 2021 med sentral beliggenhet på Hjellum - Vannbåren gulvvarme
Prisantydning
2 550 000 krOmkostninger
74 790 krTotalpris
2 624 790 kr
Pris
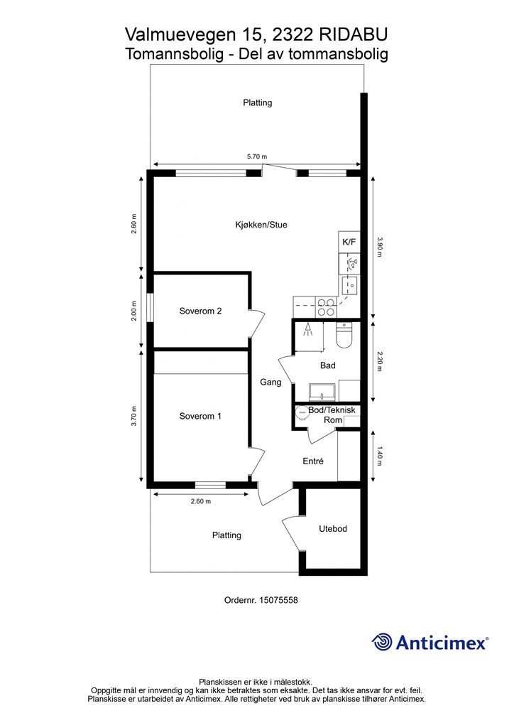
Bruksareal
55 m²BRA-I (internt bruksareal)
51 m²BRA-E (eksternt bruksareal)
4 m²TBA (terrasse-balkongareal)
28 m²
Areal
Etasje
1Byggeår
2021Soverom
2 soveromBad
1 badType
Halvpart vertikaldelt boligEierform
EierseksjonFasiliteter
Balkong/TerrasseEnergimerke
Grønn C
Nøkkelinfo
Unngå doble boligrenter
Vi tilbyr gunstig forsikring.
Vurderer du utleie?
Få et tilbud fra Utleie KrogsveenHva koster lånet?
Sjekk estimert lånekostnadBeskrivelse
Kort om eiendommen
Velkommen til Valmuevegen 15!
Moderne halvpart av tomannsbolig fra 2021 med nær ett år igjen av nybygggarantien.
Boligen er lettstelt og innbydende, med entré, to soverom, bad, bod og en åpen stue-/kjøkkenløsning med integrerte hvitevarer.
Store vindusflater gir en lys og trivelig atmosfære.
Hele boligen har vannbåren gulvvarme og balansert ventilasjon for godt inneklima.
Tomten er lettstelt og har gode solforhold.
Beliggenheten på Hjellum er rolig og familievennlig, med kort vei til skole, barnehage, dagligvare og flotte turområder, kun ti minutter fra Hamar sentrum.
Velkommen til en hyggelig visning!
Område
Legg til steder som er viktige for deg
På flyttefot? Tenk kjøp og salg samtidig.
Få din egen rådgiver gjennom hele kjøps- og salgsprosessen. Det starter med en verdivurdering.
Unngå doble boligrenter
Vi tilbyr gunstig forsikring.
Vurderer du utleie?
Få et tilbud fra Utleie KrogsveenHva koster lånet?
Sjekk estimert lånekostnadVil du varsles om lignende boliger?
Ved å lagre ditt boligsøk hos oss får du beskjed når vi har en bolig som ligner denne, før den legges ut på markedet!




