Gøteborggata 35B
5 800 000 kr
58 m²
1 soverom
Komplett salgsoppgave

Rodeløkka
Stor & supersentral 2 roms selveier i et populært boområde på Rodeløkka. Garasjeplass. Heis. Lave felleskostnader!
Prisantydning
5 800 000 krAndel fellesgjeld
41 284 krOmkostninger
157 060 krTotalpris
5 998 344 kr
Pris
Bruksareal
64 m²BRA-I (internt bruksareal)
58 m²BRA-E (eksternt bruksareal)
6 m²TBA (terrasse-balkongareal)
10 m²
Areal
Etasje
2Byggeår
2000Soverom
1 soveromBad
1 badType
EierleilighetEierform
EierseksjonFasiliteter
Garasje/P-plass, Heis og Balkong/TerrasseFellesutgifter
2 619 krEnergimerke
Gul D
Nøkkelinfo
Unngå doble boligrenter
Vi tilbyr gunstig forsikring.
Vurderer du utleie?
Få et tilbud fra Utleie KrogsveenHva koster lånet?
Sjekk estimert lånekostnadDette liker selger best ved boligen
Praktisk med garasje med portåpner og bod i forkant av plass. Heis, lettstelt leilighet, nydelig bakgård som blir vedlikeholdt av firma, fin balkong med markise, stor blomsterkasse og bod. Fin planløsning, plass til hjemmekontor på soverom. Sentral beliggende med gang/sykkelavstand til hele byen, likevel trafikkstille. Hyggelig bomiljø. Godt vedlikehold og et styre som er i forkant med løsning av utfordringer.
Beskrivelse
Kort om eiendommen
Innhold og byggemåte
Innhold og byggemåte
Eiendommen
Gøteborggata 35B, 0566 OSLO
Kommunenummer 301, gårdsnummer 227, bruksnummer 157, seksjonsnummer 5
Innhold
Totalt bruksareal BRA: 64 kvm
BRA-i:
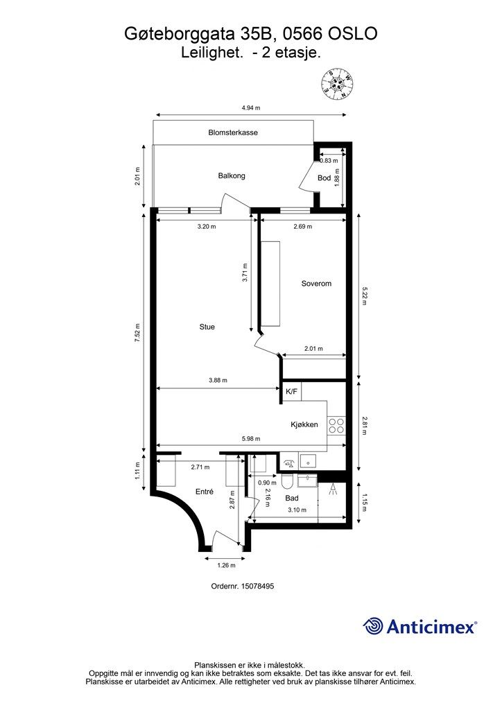
2. etasje 58 kvm: Entré, bad, soverom og stue med åpen kjøkkenløsning
BRA-e:
-1. etasje 4 kvm: Kjellerbod.
2. etasje 2 kvm: Utvendig bod på balkong.
Åpent areal:
2. etasje 10 kvm: Balkong.
Boligen disponerer i tillegg en kjellerbod på 4 kvm. boder. Det gjøres oppmerksom på at boligens eksterne boder tilhører sameiets fellesareal, og at boden således ikke eies av den enkelte sameier. Dette medfører at sameiet i fellesskap beslutter bruken, og at man ikke selv har eierrett og rettsvern for boden. Sameiet kan ved vedtak beslutte annet bruk av fellesarealet og disponering av bodarealet kan dermed opphøre.
Vedlagte plantegninger er ikke målbare. De oppgitte arealer er hentet fra rapport med befaringsdato 16.01.2026 utført av Anticimex AS.
Byggemåte
Selger har fått utarbeidet en tilstandsrapport, dvs. en teknisk gjennomgang av boligen hvor eventuelle avvik, risiko for kjøper og prisoverslag for hva som bør gjøres av oppgradering, er skissert. Se særskilt TGIU (tilstandsgrad ikke undersøkt), samt TG2 og TG3 som viser hva som er boligens normale slitasje, alder og type, hva som er avvik fra dette og hva som bør/må utbedres. Rapporten og selgers egenerklæring er en del av salgsoppgaven og må leses nøye før bud inngis. Kjøper overtar ansvaret for de opplysninger som fremkommer av salgsdokumentasjonen, og kan ikke gjøre gjeldende som mangel noe som burde vært kjent eller som ikke kan anses å ha betydning for avtalen.
Bygningen er iht. tilstandsrapporten oppført med grunnmur, bærende konstruksjoner og skillende dekker i hovedsak av betong og stålkonstruksjoner. Yttervegger forblendet med teglsteinsmur samt felter med malte betongkonstruksjoner. Takkonstruksjon av saltaksform utvendig tekket med takstein (taket er ikke besiktiget).
Les for øvrig mer om byggemåte og den tekniske tilstanden i rapporten.
Følgende forhold gjøres det spesielt oppmerksom på, og har fått TG2:
Stedvis riper/hakk i parkettgulv, alder på vannrør og alder på vinduer og balkongdør.
Øvrige forhold har fått TGIU eller TG1.
Oppsummering av selgers egenerklæringsskjema:
Det er utført flere arbeider i boligen og sameiet. Badet ble totalrenovert i 2025 av Oslo Bad og Renovering, og dokumentasjon foreligger. Det har vært en fuktskade på skilleveggen på balkongen som skyldtes dårlig malerarbeid. Styret og vaktmester ble kontaktet, og vaktmester anbefalte at blikkenslager etablerer et tak over veggen. Skaden er utbedret, og videre tiltak avventes fra styret.
Fasade og tak ble vasket og malt i 2018 av faglærte, og dokumentasjon foreligger. Sameiet har tidligere hatt problemer med vann i garasjen ved kraftig regn, som følge av feil fall på avløp. I 2023 ble bakgården gravd opp, ny membran lagt og ny asfalt etablert i garasjen. Arbeidet ble utført av Braathen Landskapsentreprenør AS, og dokumentasjon foreligger.
Det er også utført arbeid på avløpssystemet i 2023, inkludert spyling av bunnledninger og kummer, tømming av sandkummer og rens av avløpsrør. Dette arbeidet ble utført av Gårdreform, og dokumentasjon foreligger.
Det har vært mindre sprekker i nederste fliser på badet, uten skade på membran. Badet er nå totalrenovert. Sameiet har vedtatt utskifting av heis, noe som kan medføre endringer i felleskostnader eller fellesgjeld.
Se supplerende tekst i tilstandsrapporten og selgers egenerklæringsskjema om overnevnte forhold. Kjøper overtar ansvar og risiko for dette.
Moderniseringer og påkostninger
Boligen er påkostet med totalrenovering av bad i 2025. Dokumentasjon på arbeidet foreligger.
Standard
Entré:
Velkommen inn! Innbydende entré med god plass til å sette fra seg sko og henge fra seg yttertøy. Videre adkomst til leilighetens øvrige rom.
Stue:
Romslig stue med god plass til sofaseksjon, stuebord og tilhørende mediemøblement. Store vindusflater med rikelig lysinnslipp gjør stuen til et lyst og luftig oppholdsrom. Fra stuen er det utgang til balkongen.
Balkong:
Stor og hyggelig sørvestvendt balkong på 10 kvm med fint utsyn. Selger opplyser om gode solforhold fra ca 10:00-20:00 på sommerstid. God plass til utemøbler, grill og planter i plantekasse.
Kjøkken:
Praktisk og pent Epoq kjøkken fra 2018 i åpen løsningen med stuen. Kjøkkeninnredning bestående av laminat benkeplater, nedsenket oppvaskkum av rustfritt stål med ett-greps armatur, fliser på vegg over kjøkkenbenk, benkeskapsbelysning og stikkontakter. Hvitevarer som integrert oppvaskmaskin, komfyr med steketopp og frittstående kjøleskap med frysedel medfølger. God plass til oppbevaring av kjøkkenredskaper i store over og underskap, samt gode arbeidsflater for matlaging.
Bad:
Lekkert og totalrehabilitert Linn baderom fra 2025 med gulvvarme og downlights i himling. Badet består av vegghengt baderomsinnredning med glatte lyse fronter, heldekkende servant med ett-greps armatur, speilskap med belysning og stikkontakt over servant, stikkontakter på vegg ved toalett og vaskemaskin, dusjnisje med glassdør tilkoblet hånddusj samt gulvstående toalett. Tilrettelagt opplegg for vaskemaskin.
Soverom:
Lunt og romslig soverom med plass til dobbeltseng og tilhørende nattbord. God plass til oppbevaring av klær i garderobeskap.
Øvrig:
Praktisk utebod på 2 kvm for enkel oppbevaring.
Løsøre og tilbehør
Vi viser til liste fra Norges Eiendomsmeglerforbund som gjelder fra 01.01.2020 angående løsøre og tilbehør.
Vaskemaskin, komfyr, oppvaskmaskin og kjøleskap medfølger.
Oppvarming
Leiligheten har elektrisk oppvarming ved panelovner og gulvvarme på bad.
Dersom beboelsesrom ikke har vegg- eller fastmonterte varmekilder ved visning, følger dette heller ikke med.
Ferdigattest/brukstillatelse
Det foreligger ikke ferdigattest på eiendommen, men midlertidig brukstillatelse ble gitt 25.01.2000.
Tillatelsen er gitt på følgende vilkår:
- Dokumentasjon på oppnådd lydisolering mellom leiligheter og mellom leiligheter og fellesarealer (trapperom) må innsendes snarest.
- Utomhusarbeidene må ferdigstilles.
Det er uklart om dette er utført. Kjøper overtar ansvaret for dette.
Kjøper overtar eiendommen slik den fremstår på visning.
Tinglyste heftelser og rettigheter
Utover andel fellesgjeld overdras leiligheten fri for pengeheftelser.
Sameiet har legalpant for krav mot sameieren som følger av sameieforholdet iht. eierseksjonsloven § 31. Pantet er begrenset oppad til 2G, (G = folketrygdens grunnbeløp).
I tillegg har sameiet tinglyst panterett som nevnt over.
Det er tinglyst 22 servitutter på sameiets eiendom. Disse omhandler blant annet bestemmelse om vann/kloakkledning, om trafostasjon/kios, bebyggelse, benyttelse og adkomstrett.
Servituttene vil følge eiendommen. Kjøpers bank vil få prioritet etter ovennevnte heftelser og servitutter.
Eventuell adgang til utleie
Leiligheten kan leies ut såfremt leiligheten har forsvarlige radonverdier. Leietaker må følge sameiets vedtekter og ordensregler på lik linje som eier.
Korttidsutleie av hele boligseksjonen i mer enn 60 døgn årlig er ikke tillatt. Med korttidsutleie menes utleie i inntil 30 døgn sammenhengende.
Beliggenhet og tomteforhold
Beliggenhet og tomteforhold
Beliggenhet
Leiligheten har en svært attraktiv og sentral beliggenhet i et veletablert område på Rodeløkka, på grensen til Grünerløkka. Her bor du tilbaketrukket, men med umiddelbar nærhet til alt du måtte trenge. Med få minutters gange til dagligvarebutikker som Kiwi, samt kort vei til både Grünerløkka og Carl Berners servicetilbud, blir hverdagslogistikken svært enkel.
Området byr på en perfekt balanse mellom urbant liv og grønne pusterom. Rett utenfor døren finner du den store og populære Sofienbergparken, et ideelt sted for grilling, sosiale sammenkomster og rekreasjon. En kort spasertur unna ligger den sjarmerende trehusbebyggelsen på Rodeløkka, som gir nabolaget en unik historisk karakter. For en lengre tur kan du følge Akerselva, som byr på fine tur- og sykkelstier gjennom grønne omgivelser.
Grünerløkkas pulserende liv er kun en liten spasertur unna, med et rikt utvalg av kaféer, restauranter, barer og spennende nisjebutikker. Utforsk lokale favoritter, nyt en kaffe på Tim Wendelboe, eller opplev det brede kulturtilbudet med konsertsteder som Blå og Parkteatret. For trening finnes det flere sentre i nærheten, som Fresh Fitness og Fitness24Seven.
Kollektivtilbudet er utmerket, med hyppige avganger for både trikk og buss fra holdeplasser som Sofienbergparken og Sofienberg, kun 5-6 minutter unna. Dette gir enkel og effektiv reisevei til resten av byen. Det er også gangavstand til T-banen på Carl Berners plass, samt flere barnehager og skoler i området, inkludert Sofienberg skole.
Adkomst
Det vil bli skiltet med Krogsveen visningsskilt ved fellesvisninger.
Barnehager, skoler og fritid
Dersom skole- og barnehagetilbud er av betydning for kjøpet, ber vi om at det rettes en særskilt henvendelse til bydelsadministrasjonen for oppdatert informasjon.
Beskrivelse av tomt
Eiertomt på 5 047 kvm som tilhører sameiet.
Parkering
Parkeringsplass merket nr. 5 medfølger. Det er installert ladeanlegg for elbil i garasjeanlegget. Den enkelte seksjonseier faktureres for strøm og en månedlig avgift for bruk av anlegget etter avtale. Selger opplyser at det ikke betales separat leie for plassen. Utleie kan parkeringsplassen som man har bruksrettighet til, kan godkjennes etter skriftlig søknad til styret.
Det er innført beboerparkering i dette området (indre by). Dette betyr at du kan parkere fritt døgnet rundt på parkeringsplassene regulert til beboerparkering i området rundt din bolig for kun kr. 3.850- pr. år for fossile biler, dieselbil, hybridbil, ladbar hybrid.
Har du el-bil så betaler du kr. 1.300,- pr år, hydrogenbil og el-varebil er gratis.
Motorsykkel og moped kr 1.925,- pr år.
El-motorsykkel og el-moped kr 650,- pr år.
Se Oslo kommune sine nettsider for mer informasjon og priser for ytre by.
Vei, vann og avløp
Eiendommen har adkomst via privat vei med felles vedlikeholdsansvar for
Sameiet.
Eiendommen er tilknyttet kommunalt ledningsnett via private stikkledninger.
Sameiet er ansvarlig for private stikkledninger til bygningen.
Regulerings-og arealplaner
Eiendommen er regulert til byggeområde for bolig i henhold til reguleringsplan S-3626 med tilhørende reguleringsbestemmelse datert 29.10.1997, hentet i kart 16.01.2026.
Planen er helt eller delvis opphevet som følge av bystyrets vedtak 23.09.2015, "Kommuneplan 2015 - Oslo mot 2030 - Smart, trygg og grønn". Området blir berørt av endringer i reguleringsplan for Oslo Sentrum og indre sone i Oslo kommune som følge av dette. Denne nye planen får betydning for en rekke vedtatte reguleringsplaner i Oslo. Det henvises til kommunens nettsider for ytterligere informasjon: https://www.oslo.kommune.no/politikk-og-administrasjon/politikk/kommuneplan/.
Utdrag av plan- og byggesaker i området:
- Saksnummer 2025/06774 (fortsettelse av sak 202308348) - Reguleringssak. Toftes gate, tilrettelegging for sykkel - Planforslag til politisk behandling. Planforslag ble sendt til offentlig ettersyn 08.11.2024. Bymiljøetaten foreslår å omregulere deler av Toftes gate med bredere fortau og sykkelfelt. Planforslaget sikrer også areal for bussholdeplasser. Hovedhensikten med planforslaget er å legge til rette for bedre fremkommelighet og sikkerhet for sykkel, gange og kollektivtrafikk i Toftes gate, på strekningen mellom Sofienberggata og Helgesens gate.
- Saksnummer 2025/10235 (fortsettelse av sak 202458063) - Byggesak. Stockholmgata 25 - Gøteborggata 42 - 44 - Bruksendring av næringsbygg til studentboliger og oppføring av innfill-bygg med seks studentboliger - Campus Grünerløkka. Igangsettingstillatelse nr. 7 ble gitt 24.10.2025. Tiltaket omfatter bruksendring av næringsbygg til studentboliger, samt oppføring av et infillbygg med fem studentboliger, i bydel Grünerløkka. Det etableres en stor felles takhage for studentboligene, og bakgården oppgraderes til et frodig felles uteareal. I 1. etasje er det i dag en dagligvarebutikk, og dette arealet inngår ikke i tiltaket. Plan U2 inngår ikke i tiltaket.
- Saksnummer 2025/10532 (fortsettelse av sak 202119941)- Byggesak. Karlstadgata 10 B-D - oppføring av boligbygg, rivning av eksisterende bygg. Det ble gitt igangsettingstillatelse 06.06.2025. Tiltaket omfatter riving av eksisterende bakgårdsbygg og oppføring av nytt boligbygg i bakgården.
- Saksnummer: 2025/08187 - Byggesak: Oppføring av 2 boligblokker. Gøteborggata 30 - 34 - Marstrandgata 4. Status: Under behandling.
- Saksnummer: 2025/06446 - Ulovlighetssak: Mangelfull sikring av skråning. Fjellgata 26. Status: Under behandling.
- Saksnummer: 2025/14272 - Byggesak: Bruksendring fra verksted til kontor, innvendige endringer og fasadeendringer. Gøteborggata 38. Status: Under behandling.
Opplistingen er ikke uttømmende og interessenter oppfordres til å sette seg inn i relevante reguleringsplaner. Dette gjøres via planinnsyn på Oslo kommune sine nettsider.
Utsnitt av plan med tilhørende bestemmelser kan fås ved henvendelse til megler.
Økonomi
Økonomi
Boligens kostnader
Fellesutgiftene er kr 2 619,- pr. mnd. og inkluderer: TV-anlegg/bredbånd, kommunale avgifter, vaktmestertjenester, drift og vedlikehold etc.
Fellesutgiftene justeres normalt en til to ganger årlig i forhold til sameiets faktiske utgifter.
Fellesutgiftene fordeles på følgende måte:
Felleskostnader: 2 430,-.
Bredbånd: 189.-.
Nåværende eier har et strømforbruk som tilsvarer ca. kr 14 000,- pr. år. / 4 900 kwh. pr. år. Det er ikke tegnet Norgespris for boligen.
Boligen er tilknyttet OBOS Opennet som leverandør av kabel-tv/internett og har avgift på kr. 189,- pr. mnd. Tv-tuner/dekoder medfølger.
Utgiftene er basert på nåværende eiers forbruk. Kjøper må selv tegne innboforsikring.
Formuesverdi
Formuesverdi for 2024 var kr 1 499 619,- ifølge selgers skattemelding. Beløpet forutsetter at eier bor fast i boligen (primærbolig).
Ved eventuell øvrig bruk av eiendommen (f.eks. fritidsbolig, pendlerbolig, utleieobjekt) var formuesverdien for 2024 kr 5 998 477,-.
Formuesverdien justeres normalt årlig. Se skatteetaten.no for mer informasjon om fastsettelse av formuesverdien.
Opplysninger om fellesgjeld
Andel formue er kr 11 286,- pr. 16.01.2026
Andel fellesgjeld er kr 41 284,- pr. 16.01.2026
Total fellesgjeld for sameiet er kr. 10 521 888,- pr. 16.01.2026 og lånevilkårene er:
Bank: OBOS-banken AS
Lånenr.: 98207359890
Lånetype: Annuitetslån
Rentesats: 6,55%
Restsaldo 979 197,00
Innfrielsesdato: 30.07.2036
Type rente: Flytende rente
Terminer i året: 12
Administrasjonsavtale: Nei
Bank: OBOS-banken AS
Lånenr.: 98207547549
Lånetype: Annuitetslån
Rentesats: 6,55%
Restsaldo 1 234 326,00
Innfrielsesdato: 30.07.2046
Type rente: Flytende rente
Terminer i året: 12
Administrasjonsavtale: Nei
Bank: OBOS-banken AS
Lånenr.: 98207575666
Lånetype: Annuitetslån
Rentesats: 6,55%
Restsaldo 2 078 885,00
Innfrielsesdato: 28.02.2047
Type rente: Flytende rente
Terminer i året: 12
Administrasjonsavtale: Nei
Bank: OBOS-banken AS
Lånenr.: 98208013483
Lånetype: Annuitetslån
Rentesats: 6,55%
Restsaldo 6 229 479,68
Innfrielsesdato: 30.06.2052
Type rente: Flytende rente
Terminer i året: 12
Administrasjonsavtale: Ja
Sameiet har inngått administrasjonsavtale om nedbetaling av lånenr. 98208013483. Innbetalingen kan skje til forfallene 30.03 og 30.09. Innbetalingen må være registrert i OBOS minst 10 virkedager før forfall. Kun hel innfrielse godtas.
Omkostninger
5 800 000,00 Prisantydning
41 284,00 Andel av fellesgjeld
--------------------------------------------------------
5 841 284,00 Pris inkl. fellesgjeld
Omkostninger
146 020,00 Dokumentavgift til staten (2,5% av kjøpesum)
9 950,00 Gjensidige Boligkjøperpakke (valgfri)
545,00 Tinglysing panterettsdokument
545,00 Tinglysing skjøte
--------------------------------------------------------
157 060,00 Omkostninger totalt
--------------------------------------------------------
5 998 344,00 Totalpris inkl. omkostninger
--------------------------------------------------------
Dersom sameiet har fellesgjeld, vil leilighetens andel av fellesgjelden komme i tillegg til kjøpesummen. Denne gjelden skal ikke innbetales i oppgjøret, men følger leiligheten.
Totalpris inkl. omkostninger forutsetter kjøp til prisantydning.
Det tas forbehold om endringer i avgifter og gebyrer.
Tilbud om lånefinansiering
Megler formidler gjerne kontakt med rådgiver hos vår samarbeidspartner BN Bank. De har konkurransedyktige betingelser samt rask og løsningsorientert behandling av din lånesøknad. Krogsveen mottar et honorar dersom lån opprettes.
Betalingsbetingelser
Kjøpesum inkludert omkostninger, samt pantedokument tilknyttet eventuelt lån, skal være disponibelt hos megler 2 virkedager før overtagelsen.
Annen viktig informasjon
Annen viktig informasjon
Eier
Britt Elisabeth Lønaas
Informasjon om sameiet
Eiendommen er seksjonert, og leiligheten er tilknyttet Sameiet Fjellgata Gøteborggata, med sameiebrøk 1/104.
Sameiet består av 58 seksjoner.
Forretningsfører er Obos Eiendomsforvaltning AS, tlf. 22 86 55 00.
Dugnad må påregnes.
Dyrehold er tillatt og må foregå på en hensynsfull måte og ikke være til sjenanse for andre.
Kun elektrisk grill og gassgrill kan benyttes på verandaer, terrasser, forhager og fellesareal.
Foretatt påkostninger de senere år:
2025: Ferdigstilt oppgradering av videoovervåkning i garasjen
2025: Ferdigstilt anskaffelse av brannvarslingsanlegg i garasje og oppganger i Gøteborggata 35
Planlagte påkostninger:
Ifølge boretslagets årsberetning har styret innhentet tilbud i forbindelse med oppgradering av heisene. Dettet innebærer utskifting av elektrisk anlegg, betjeneningspanel med mer. Oppgradering av heisene vil koste ca 1.500.000. Dette vil finansiereres via låneopptak med 20 års nedbetalingstid, og vil gi sameiet økte lånekostnader (renter og avdrag) på ca 10.600/mnd med dagens rente, som fordeles på alle beboere utfra gjeldende fordelingsbrøk. Det betyr en økning av fellesutgifter på ca 100 kr for små leiligheter og ca 200 kr store leiligheter.
Utenom det er det ingen planlagt kostnad som vil medføre økte felleskostnader ifølge styresett.
Vi gjør videre oppmerksom på at det iht. eierseksjonsloven ikke er anledning å erverve mer enn 2 seksjoner i sameiet, her teller også eierskap via. firma, nærstående og familie. Kjøper har risikoen for at overskjøting på denne bakgrunn kan nektes av Statens Kartverk. I så fall vil kjøper uansett være forpliktet til å gjennomføre handelen, og oppgjør til selger vil finne sted tross manglende overskjøting.
Konferer med megler for mer informasjon.
I tillegg følger det av sameiets vedtekter at juridiske personer (selskaper) ikke kan eie seksjoner i sameiet.
Dokumenter for sameiet og kopi av seksjonsbegjæringen kan fås ved henvendelse til megler.
Overtakelse
Etter nærmere avtale.
Boligselgerforsikring
Selger har i forbindelse med salget tegnet boligselgerforsikring levert av Gjensidige.
Boligselgerforsikringen dekker selgers ansvar etter avhendingsloven begrenset oppad til kr 14 millioner. Dersom kjøper oppdager forhold ved eiendommen som hen mener utgjør en mangel ved eiendommen, vil Gjensidige behandle reklamasjonen på vegne av selger. Forsikringsvilkår kan fås ved henvendelse til megler.
Vedlagt salgsoppgaven følger selgers egenerklæringsskjema og tilstandsrapport. Interessenter må sette seg inn i dokumentene før bud inngis.
Boligkjøperforsikring
Innen kontraktsmøtet må kjøper ta stilling til om det ønskes å bestille Boligkjøperpakken gjennom Gjensidige. I denne gunstige pakken er boligen ferdig forsikret og inkluderer rettshjelpsforsikring, også kalt Boligkjøperforsikring. Rettshjelpsforsikring gir trygghet og tilgang på profesjonell juridisk hjelp dersom det oppdages uventede feil eller mangler det første året etter overtagelse. Forsikringsselskapet behandler i så fall ethvert mangelskrav kjøper måtte ha overfor selger.
Boligkjøperpakken inkluderer bygningsforsikring for hus og hytte, innboforsikring, flytteforsikring og dobbel rentedekning - i situasjoner hvor kjøper ikke får solgt nåværende primærbolig.
Kjøper mottar ingen særskilt faktura for Boligkjøperpakken da kostnaden det første året legges til kjøpesummen for boligen. Det gjøres oppmerksom på Krogsveen mottar et honorar for denne formidlingen.
Produktark for Boligkjøperpakken ligger vedlagt i salgsoppgaven.
Dersom ikke boligkjøperpakke ønskes kan kun rettshjelpsforsikring, også kalt boligkjøperforsikring, tegnes særskilt via megler. Rettshjelpsforsikringen varer i 5 år fra overtagelse og leveres gjennom Gjensidige. Ta kontakt med megler for ytterligere informasjon.
Selskap og privatpersoner som driver med kjøp/salg/utvikling som ledd i egen næringsvirksomhet kan ikke tegne boligkjøperpakke eller rettshjelpsforsikring.
Budgivning
Forbrukerinformasjon om budgivning er vedlagt denne salgsoppgaven og er også på vår hjemmeside Krogsveen.no. Alle bud og budforhøyelser må inngis skriftlig. I tillegg må legitimasjon være fremlagt sammen med signatur fra budgiver.
Vi oppfordrer til å gi bud elektronisk via GI BUD-knappen på eiendommens hjemmeside på Krogsveen.no. Da vil samtlige vilkår bli oppfylt.
Eventuelle forhøyelser eller endringer av budet kan bekreftes pr SMS eller på e-post. Vi oppfordrer alltid til å kontakte megler pr. telefon i tillegg da forsinkelser i SMS og e-post kan forekomme.
For at budene skal kunne bli behandlet og videreformidlet skriftlig til alle involverte parter, må alle bud ha en tilstrekkelig lang akseptfrist, jf. eiendomsmeglingsforskriften § 6-3.
Selger må også skriftlig akseptere budet før aksept kan formidles til budgiver. Akseptfrist bør derfor være på minimum 30 minutter, og budforhøyelser må derfor skje i god tid før fristens utløp.
Bud i forbrukerforhold kan uansett ikke settes med kortere frist enn kl. 12.00 første virkedag etter siste annonserte visning. I tillegg kan ikke budet ha forbehold om at det skal holdes hemmelig ovenfor øvrige interessenter. Megler har iht lov om eiendomsmegling ikke anledning til å videreformidle disse budene, og de vil dermed heller ikke bli journalført.
Etter at eiendommen er solgt vil kjøper og selger få tilsendt budjournal. Øvrige budgivere kan få utlevert kopi av budjournalen i anonymisert form.
Hvitvaskingsreglene
I henhold til lov om hvitvasking og terrorfinansiering har megler plikt til å gjennomføre kontrolltiltak overfor kunder, herunder fullmektiger. Dette innebærer bl.a. å bekrefte kunders og reelle rettighetshaveres identitet på bakgrunn av fremvist gyldig legitimasjon eller på annen godkjent måte, samt å innhente opplysninger om kundeforholdets formål og tilsiktede art.
Dersom slike kundetiltak ikke kan gjennomføres, kan megler ikke etablere kundeforholdet eller utføre transaksjonen.
Hvis kjøper ikke bidrar til gjennomføring av kundekontrollen og dette fører til at transaksjonen blir forsinket eller ikke kan gjennomføres, vil dette ansees som mislighold av avtalen og gi selger rettigheter etter avhendingslova kapittel 5. I tilfeller der selger ikke bidrar til gjennomføring av løpende kundekontroll underveis i oppdraget, er det selger som misligholder sine forpliktelser etter avtalen og gi kjøper rettigheter etter avhendingslovens kapittel 4. Partene er selv ansvarlige for eventuelle kostnader og ansvar dette kan medføre. Eiendomsmegleren eller eiendomsmeglingsforetaket kan ikke holdes ansvarlig for de konsekvenser dette vil kunne få for partene eller andre som har interesser i eiendomshandelen.
Kjøper oppfordres til å innbetale kjøpesummen som ikke kommer fra låneinstitusjon i én samlet innbetaling fra egen konto i norsk bank. Megler har plikt til å melde fra til Økokrim om eiendomshandler som fremstår som mistenkelige. Melding sendes Økokrim uten at partene varsles.
Personopplysningsloven
I henhold til personopplysningsloven gjør vi oppmerksom på at interessenter kan bli registrert for videre oppfølging.
Lovanvendelse
Generelle bestemmelser
Salgsoppgaven er basert på de opplysningene selger har gitt til megler, den bygningssakyndiges tilstandsrapport, samt opplysninger innhentet fra kommunen, Kartverket og andre tilgjengelige kilder. Det er viktig at kjøper setter seg grundig inn i alle salgsdokumentene, herunder salgsoppgave, tilstandsrapport og selgers egenerklæring. Kjøper anses kjent med forhold som er tydelig beskrevet i salgsdokumentene, og slike forhold kan ikke påberopes som mangler. Dette gjelder uavhengig av om kjøper har lest dokumentene. Alle interessenter oppfordres til å undersøke eiendommen nøye, gjerne sammen med fagkyndig før bud inngis. Kjøper som velger å kjøpe usett kan ikke gjøre gjeldende som mangel noe han burde blitt kjent med ved undersøkelsen.
Dersom det er behov for avklaringer, anbefaler vi at interessenter rådfører seg med eiendomsmegler eller egne rådgivere før det legges inn bud.
En bolig som har blitt brukt i en viss tid, har vanligvis blitt utsatt for slitasje og skader kan ha oppstått. Slik bruksslitasje må kjøper regne med, og det kan avdekkes enkelte forhold etter overtakelse som nødvendiggjør utbedringer. Normal slitasje og skader som nødvendiggjør utbedring, er innenfor hva kjøper må forvente og vil ikke utgjøre en mangel.
Kjøper og selgers rettigheter og plikter reguleres av avtalen mellom partene, samt informasjonen som har vært tilgjengelig for kjøperen i forbindelse med handelen. Avtalen utfylles av avhendingsloven, og det gjelder ulike avtalevilkår avhengig av om kjøper er forbrukerkjøper eller ikke. Dette er nærmere beskrevet nedenfor.
På grunn av ulike avtalevilkår kan selger vurdere bud fra en som ikke er forbruker, ulikt fra en forbrukers bud. Dersom kjøper ikke er forbruker, er selger sitt mulige mangelsansvar begrenset fordi eiendommen selges "som den er". Selger kan ikke ta «som den er»- forbehold overfor en forbrukerkjøper. Selv et lavere bud fra en som ikke er forbruker kan foretrekkes fordi begrensningen i mulig mangelsansvar kan ha egenverdi for selger. Selger står fritt til å forkaste eller akseptere ethvert bud, og er for eksempel ikke forpliktet til å akseptere høyeste bud.
Budgiver skal i budskjema avgi egenerklæring om budgiver er forbruker eller næringsdrivende/ person som hovedsakelig handler som ledd i næringsvirksomhet. Budgivere får informasjon dersom andre bud er inngitt av en som ikke er forbruker.
Forbrukerkjøp - definisjon
Med forbrukerkjøp menes kjøp av eiendom når kjøperen er en fysisk person som ikke hovedsakelig handler som ledd i næringsvirksomhet.
Forbruker – avtalevilkår
Eiendommen har en mangel dersom den ikke er i samsvar med kravene som følger av avtalen, eller det foreligger brudd på bestemmelsene i avhendingsloven §§ 3-2 til 3-8. Hvis eiendommen ikke er i samsvar med det kjøperen må kunne forvente ut ifra alder, type og synlig tilstand, kan det være grunnlag for mangelskrav. Det samme gjelder hvis det er holdt tilbake eller gitt uriktige opplysninger om eiendommen. Dette gjelder likevel bare dersom man kan gå ut ifra at det virket inn på avtalen at opplysningen ikke ble gitt eller at mangelskravet ikke blir rettet i tide på en tydelig måte.
Boligen kan ha en mangel etter avhendingsloven § 3-3 andre ledd, dersom det er avvik mellom opplyst og faktisk innvendig areal, forutsatt at avviket er på 2% eller mer og minimum 1 kvm.
Ved beregning av et eventuelt prisavslag eller erstatning må kjøper selv dekke tap/kostnader opptil et beløp på kr 10 000 (egenandel).
Ikke-forbruker (næringsdrivende) – definisjon
Hvis kjøper er en juridisk person, eller en fysisk person som hovedsakelig handler som ledd i næringsvirksomhet, vil kjøpet ikke anses som et forbrukerkjøp.
Ikke-forbruker – avtalevilkår
Eiendommen har en mangel dersom den ikke er i samsvar med kravene som følger av avtalen.
Eiendommen selges «som den er», og selgers ansvar utover det konkret avtalte er da begrenset etter avhendingsloven § 3-9, første ledd andre setning.
Avhendingsloven § 3-3 andre ledd fravikes, og hvorvidt boligens arealsvikt utgjør en mangel vurderes etter avhendingsloven § 3-8.
Informasjon om kjøpers undersøkelsesplikt, herunder oppfordringen om å undersøke eiendommen nøye, gjelder også for kjøpere som ikke anses som forbrukere.
Det forutsettes at hjemmel overføres til kjøper. Hvis kjøper ikke ønsker hjemmelsoverføring av eiendommen, må det tas forbehold om dette i budet.
Meglers vederlag
Vi er opptatt av verdiskapning, og har knyttet til oss samarbeidspartnere som skal sikre våre kunder de beste produkter og tjenester;
• I forbindelse med forberedelse av salget, innhenter vi informasjon om eiendommen hovedsakelig fra vår samarbeidspartner Amibita.
• Gjensidige leverer boligselgerforsikring og tilbyr bygningsforsikring
• Boligkjøperforsikring leveres av Hiscox og med Sedgwick som skadebehandler, og er formidlet gjennom Gjensidige.
• BN bank tilbyr finansieringsløsninger
• Vår avdeling Krogsveen Pluss tilbyr flyttetjenester som utvask, visningsvask, lager, tømming og transport av flyttelass, i tillegg til å formidle kontakt med Flip for overflateoppussing.
• I forbindelse med overtagelse av eiendommen tilbyr Overo avtale om strøm, alarm og bredbånd.
• Krogsveen er, sammen med øvrige bransjeaktører, medeier i Bomega AS som tilbyr den digitale annonseringsplattformen Hjem.
Opplysninger om oppdraget
Oppdragsnummer 52-0009/26
Eiendomsmegler Krogsveen AS, avd. Sagene
Maridalsveien 157, 0461, OSLO
950 007 613
Oppdragets KR-kode KR52.269
Dato
Sist oppdatert: 21. januar 2026 kl. 12:47
Dokumenter
Dokumenter
PDF – 949 KB
PDF – 374 KB
PDF – 138 KB
PDF – 312 KB
PDF – 29 KB
PDF – 127 KB
PDF – 392 KB
Område
Legg til steder som er viktige for deg
Visning
Unngå doble boligrenter
Vi tilbyr gunstig forsikring.
Vurderer du utleie?
Få et tilbud fra Utleie KrogsveenHva koster lånet?
Sjekk estimert lånekostnadVil du varsles om lignende boliger?
Ved å lagre ditt boligsøk hos oss får du beskjed når vi har en bolig som ligner denne, før den legges ut på markedet!

