Furulia 14
7 990 000 kr
97 m²
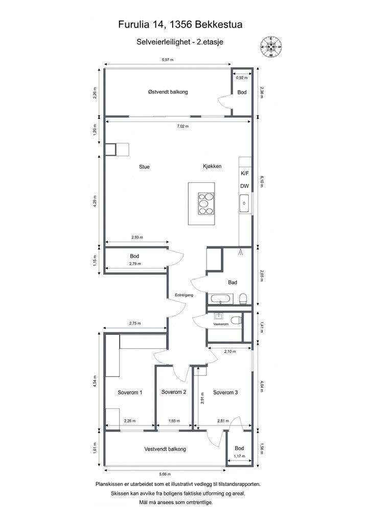
3 soverom
Solgt

Haslum/Bekkestua
Rålekker 4-roms hjørneleilighet m. høy standard- Alt vurdert til TG1 - To solrike balkonger - Renovert 2023 - Garasje
Prisantydning
7 990 000 krAndel fellesgjeld
191 643 krOmkostninger
215 560 krTotalpris
8 397 203 kr
Pris
Bruksareal
102 m²BRA-I (internt bruksareal)
97 m²BRA-E (eksternt bruksareal)
5 m²TBA (terrasse-balkongareal)
22 m²
Areal
Etasje
2Byggeår
1980Soverom
3 soveromBad
1 badType
EierleilighetEierform
EierseksjonFasiliteter
Garasje/P-plass og Balkong/TerrasseFellesutgifter
6 205 krEnergimerke
Rød E
Nøkkelinfo
Unngå doble boligrenter
Vi tilbyr gunstig forsikring.
Vurderer du utleie?
Få et tilbud fra Utleie KrogsveenHva koster lånet?
Sjekk estimert lånekostnadBeskrivelse
Kort om eiendommen
Velkommen til en moderne og stilfull selveierleilighet med høy standard og unikt særpreg!
Leiligheten har en sentral beliggenhet på Bekkestua/Haslum, men ligger samtidig rolig og tilbaketrukket innerst i en blindvei – midt i et veletablert og grønt nabolag. Boligen ble totaloppusset i 2023 med nytt kjøkken, bad, vaskerom, gulv og samtlige overflater, samt en endret og optimalisert planløsning. Den preges av gjennomført kvalitet og delikate fargevalg som gir et tidløst og lekkert uttrykk.
Perfekt for familier, par eller deg som ønsker et lunt og moderne hjem i flotte omgivelser.
- Garasjeplass i 1. etasje
- To solrike balkonger med hyggelig utsyn
- Hjørneleilighet med lys fra tre sider
- Varmtvann og TV/internett inkl.
- Alt vurdert til tilstandsgrad 1
- Bad og WC/vaskerom
Område
Legg til steder som er viktige for deg
På flyttefot? Tenk kjøp og salg samtidig.
Få din egen rådgiver gjennom hele kjøps- og salgsprosessen. Det starter med en verdivurdering.
Unngå doble boligrenter
Vi tilbyr gunstig forsikring.
Vurderer du utleie?
Få et tilbud fra Utleie KrogsveenHva koster lånet?
Sjekk estimert lånekostnadVil du varsles om lignende boliger?
Ved å lagre ditt boligsøk hos oss får du beskjed når vi har en bolig som ligner denne, før den legges ut på markedet!

