Bølerlia 123
4 600 000 kr
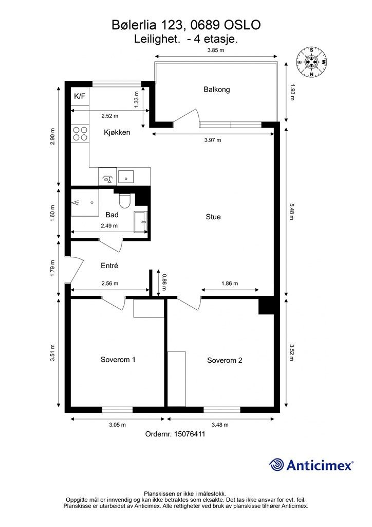
64 m²
2 soverom
Solgt
Bøler v/marka
Lys 3-roms toppleil. m/sydvendt balkong vendt mot skogen| Bad & kjk. 2015| Ingen forkjøpsrett| Marka som nærmeste nabo|
Prisantydning
4 600 000 krAndel fellesgjeld
149 677 krOmkostninger
11 040 krTotalpris
4 760 717 kr
Pris
Bruksareal
75 m²BRA-I (internt bruksareal)
64 m²BRA-E (eksternt bruksareal)
11 m²TBA (terrasse-balkongareal)
7 m²
Areal
Etasje
4Byggeår
1960Soverom
2 soveromBad
1 badType
AndelsleilighetEierform
AndelFasiliteter
Balkong/TerrasseFellesutgifter
3 579 krEnergimerke
Rød G
Nøkkelinfo
Unngå doble boligrenter
Vi tilbyr gunstig forsikring.
Vurderer du utleie?
Få et tilbud fra Utleie KrogsveenHva koster lånet?
Sjekk estimert lånekostnadDette liker selger best ved boligen
Deilig morgensol kan nytes fra balkongen. Nydelig ettermiddagssol som gir magisk lys i trekronene utenfor stuevinduet. Fugleliv rett utenfor vinduet. I 4. etasje kan man oppleve ekorn-akrobatikk på høyt nivå ;) Usjenert og rolig. Lys og luftig. Barn kan slippes rett ut til felles tun med lekeplass. Veldig hyggelig oppgang med gode naboer som stiller opp for hverandre. Lett tilgjengelig bod rett utenfor leilighetene med plassbygde hyller. Starten av marka rett utenfor døren. Ulsrudvann og Nøklevann i umiddelbar nærhet med mulighet for bading og padling - det er fullt mulig med en dukkert i lunsjpausen hvis du har hjemmekontor. 12 minutter til Nøklevann ro- og padleklubb eller byens beste boller på markahytta Rustadsaga. Om vinteren: Skispor rett utenfor og skøytebane rundt hele Nøklevann. Umiddelbar nærhet til naboborettslagets egne skøytebane for alle barn i nabolaget. Opplev store eventyr med overnatting i skogen bare 5 minutter hjemmefra. Østmarka som hage.
Beskrivelse
Kort om eiendommen
Meget lys, og lekker 3-roms toppleilighet med super beliggenhet rett ved Østmarka, med fantastiske muligheter for aktiv utfoldelse sommer som vinter!
Buldring og klatring, fiske, Nøklevann med bading og roklubb, gå- og sykkelturer, ski og skøyter – alt rett utenfor døren. Her får du en sjelden kombinasjon av natur, ro og nærhet til byen!
Verdt å fremheve:
- Sydvendt balkong på 7 kvm, vendt ut mot skogen
- Stue m/pipeløp (sette inn vedovn?)
- Bad (2015): gulvvarme, downlights, oppl. vaskemaskin
- Kjøkken (2015): integr. hvitevarer
- To gode soverom m/garderobeskap
- Bod på samme plan + 2 kjellerboder
- Ingen forkjøpsrett
- Barnevennlige tun og 4 lekeplasser
- "Å bo i marka" - er et eldorado for små, store og firbente!
- 200 m til butikk, kort vei til skole og T-bane (19 min. til sentrum)
Område
Legg til steder som er viktige for deg
På flyttefot? Tenk kjøp og salg samtidig.
Få din egen rådgiver gjennom hele kjøps- og salgsprosessen. Det starter med en verdivurdering.
Unngå doble boligrenter
Vi tilbyr gunstig forsikring.
Vurderer du utleie?
Få et tilbud fra Utleie KrogsveenHva koster lånet?
Sjekk estimert lånekostnadVil du varsles om lignende boliger?
Ved å lagre ditt boligsøk hos oss får du beskjed når vi har en bolig som ligner denne, før den legges ut på markedet!




