Heggeodden 8
8 190 000 kr
89 m²
2 soverom
Komplett salgsoppgave
HEGGEODDEN/ASKER
Flott 3-roms topp- og hjørneleilighet i Heggedal sentrum. Balkong med god utsikt. Garasjeplass. Nært tog og buss.
Prisantydning
8 190 000 krOmkostninger
215 790 krTotalpris
8 405 790 kr
Pris
Bruksareal
94 m²BRA-I (internt bruksareal)
89 m²BRA-E (eksternt bruksareal)
5 m²TBA (terrasse-balkongareal)
12 m²
Areal
Etasje
3Byggeår
2013Soverom
2 soveromBad
1 badType
EierleilighetEierform
EierseksjonFasiliteter
Garasje/P-plass, Heis og Balkong/TerrasseFellesutgifter
6 118 krEnergimerke
Nøkkelinfo
Unngå doble boligrenter
Vi tilbyr gunstig forsikring.
Vurderer du utleie?
Få et tilbud fra Utleie KrogsveenHva koster lånet?
Sjekk estimert lånekostnadBeskrivelse
Kort om eiendommen
Innhold og byggemåte
Innhold og byggemåte
Eiendommen
Heggeodden 8, 1389 HEGGEDAL
Kommunenummer 3203, gårdsnummer 79, bruksnummer 8, seksjonsnummer 28, ideell andel 1/1
Innhold
Totalt bruksareal BRA: 94 kvm
BRA-i:
Leilighet:
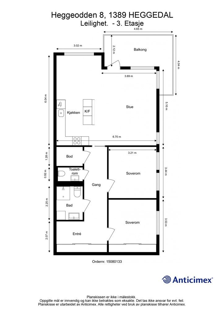
3. etasje 89 kvm: Entré, gang, bad, toalettrom, 2 soverom, innvendig bod og stue/kjøkken
BRA-e:
Leilighet:
-1. etasje 5 kvm: Bod.
Åpent areal:
Leilighet:
3. etasje 12 kvm: Balkong.
Boligen disponerer 2 boder. En av bodene er i leiligheten, den andre er i kjelleren. Kjellerboden er tinglyst som en tilleggsdel til seksjonen.
Vedlagte plantegninger er ikke målbare. De oppgitte arealer er hentet fra rapport med befaringsdato 25.03.2026 utført av Anticimex AS. Arealene er beregnet og rom er definert etter dagens faktiske bruk, uavhengig av hva som er godkjent av bygningsmyndighetene.
Dagens plantegning samsvarer med seksjoneringen datert 18.02.2013, men ikke med byggetegningene datert 24.09.2010.
- På byggetegningene er det en balkong som ikke går rundt hjørnet.
- Opprinnelig var det 3 soverom på byggetegningene og ikke 2 store som dagens planløsning.
- Boden på byggetegningene er plassert der badet er i dag.
Det må antas at utbygger endret planløsning mellom godkjente tegninger og tinglyst seksjonering. Leiligheten står som den ble bygget.
Byggemåte
Selger har fått utarbeidet en tilstandsrapport, dvs. en teknisk gjennomgang av boligen hvor eventuelle avvik, risiko for kjøper og prisoverslag for hva som bør gjøres av oppgradering, er skissert. Se særskilt TGIU (tilstandsgrad ikke undersøkt), samt TG2 og TG3 som viser hva som er avvik fra boligens normale slitasje, alder og type, eller som bør/må utbedres. Rapporten og selgers egenerklæring er en del av salgsoppgaven og må leses nøye før bud inngis. Kjøper overtar ansvaret for de opplysninger som fremkommer av salgsdokumentasjonen, og kan ikke gjøre gjeldende som mangel noe som burde vært kjent eller som ikke kan anses å ha betydning for avtalen.
Leilighetsbygg oppført i 2013. Grunnmur og bæ rende konstruksjoner i hovedsak av betong. Bygget er oppført med underetasje. Bygget er oppført med parkeringsanlegg i nederste etasje. Yttervegger i en kombinasjon av tre- og betongkonstruksjoner. Utvendige fasader av synlig murverk. Etasjeskillere av betong. Flatt tak. Yttertak er belagt med takpapp. Boligen har entrédør med brannklasse B30 og lydklasse db35. Balkongdør med karm/ramme av tre (fra byggeår). Vinduer med karmer/ramme av tre (fra byggeår). Boligen ventileres hovedsakelig gjennom et mekanisk balansert ventilasjonssystem.
Teknisk anlegg/VVS
Vannrør med rør-i-rør system. Leilighetens stoppekran er plassert i fordelerskap. Synlige avløpsrør i plast. Stakeluke er ikke lokalisert, og derfor heller ikke undersøkt. Det er ikke kjent om stakeluke er etablert. Fordelerskap for rør-i-rør system er plassert på toalettrom. Leiligheten er tilknyttet felles varmtvann. Leiligheten er oppvarmet med radiatorer tilkoblet varmesentral. Balansert ventilasjon.
Elektrisk anlegg
Sikringsskap plassert i bod. Anlegget er sikret med automatsikringer.
Brann
Har boligen godkjent slukkeutstyr: Ja. Har boligen tilstrekkelig røykvarsling/deteksjon: Ja. Oppfyller boligen krav til rømningsveier: Ja.
Det gjøres spesielt oppmerksom på:
TG 2 er gitt på følgende bygningsdeler:
- Våtrom: Det er registrert riss/sprekk i flis i dusjsonen. Forholdet vurderes å skyldes en årsak som ikke lar seg kartlegge med visuell inspeksjon alene. Mykfuger har i enkelte områder løsnet fra underlaget. Drenering fra innebygget toalettsisterne er ikke registrert. Konsekvens er at det derfor ikke kan verifiseres om installasjonen er utført slik at eventuelt lekkasjevann raskt blir synliggjort.
- Kjøkken: Det er ikke montert automatisk lekkasjestopper, noe som vurderes å væ re et krav i dette tilfellet.
- Toalettrom: Det er ikke registrert dreneringsspalte eller lignende åpninger fra den innebygde toalettsisternen. Det kan derfor ikke verifiseres om vanninstallasjonen er utført slik at eventuelt lekkasjevann raskt blir synliggjort.
- Teknisk anlegg: Fordelerskap har åpninger/utettheter til omsluttende veggkonstruksjon.
- Yttertak: Taket er ikke fysisk inspisert grunnet sikkerhetsmessige forhold. Konsekvens er at taket kan være utsatt for slitasje, skader eller feil utførelse som ikke lar seg registrere på grunn av begrenset tilkomst.
TGIU (tilstandsgrad ikke undersøkt):
- Teknisk anlegg: Innvendig stakeluke er ikke påvist inne i boenheten. Det vurderes at boenheten likevel har tilgjengelige stakepunkter gjennom sluk og øvrige komponenter tilknyttet avløpssystemet, men hvordan disse vil fungere i en faktisk brukssituasjon er ikke kjent. TGIU er valgt fordi fullverdig kontroll av stakemuligheter forutsetter spesialkompetanse på rørsystemer. Anlegget er felles for flere boenheter, og er derfor ikke en del av undersøkelsene i denne rapporten. Funksjonen er vurdert indirekte under andre sjekkpunkter i rapporten.
- Yttertak: På bakgrunn av at ventilasjonen av takkonstruksjonen ikke kan kartlegges og undersøkes fra innsiden, foreligger det en usikkerhet om hvordan/om denne funksjonen er ivaretatt. Takgjennomføringer er ikke inspisert grunnet redusert tilkomstmulighet. Vurderingen er gjort med begrenset grunnlag fra bakkenivå og tilgjengelige observasjonspunkter. Eventuelle overløpsløsninger for flate tak er ikke inspisert grunnet redusert tilkomstmulighet. Sluk og innvendige nedløp fra flate tak er ikke inspisert grunnet redusert tilkomstmulighet.
- Balkonger: Fundamentene var ikke tilgjengelig for undersøkelser, siden de kun er synlige fra andre boenheter. Tilstanden lot seg derfor ikke kontrollere.
Det er ikke påvist noen TG 3.
Se supplerende tekst i tilstandsrapporten om overnevnte bygningsdeler. Kjøper overtar ansvar og risiko for dette. Les forøvrig mer om byggemåte og den tekniske tilstanden i rapporten.
Se vedlagt dokument til salgsoppgaven med selgers egenerklæring for tilleggsinformasjon til tilstandsrapporten.
Standard
Entré
Romslig entré med stor integrert skyvedørsgarderobe. Videre inn i gangen er det god plass til skap eller hyller. Herfra er det tilgang til begge soverommene, bad, toalettrom, bod og stue.
Stue og spisestue
I stuen er det flere møbleringsmuligheter. Her er det plass til sittegruppe og TV-område. I spisestuedelen er det plass til et stort spisebord. Den delvis åpne løsningen mellom stue, spisestue og kjøkken skaper en sosial atmosfære når man er med venner og familie. Fra stuen er det utgang til balkongen.
Kjøkken
Åpen kjøkkenløsning. Innredning fra byggeår. Glatte fronter. Benkeplate med laminert overflate. Kjøkkenvask med armatur. Integrert stekeovn, platetopp, oppvaskmaskin og kjøleskap med fryser. Vegghengt ventilator. Vannrør av typen rør-i-rør. Synlige avløpsrør av plast. Brannslange under kjøkkenbenk.
De integrerte hvitevarene medfølger ved salg. Det gjøres oppmerksom på at hvitevarene er kjøpt for noen år tilbake, og kjøper må forvente slitasje som følge av alder og normal bruk. Oppvaskmaskinen er fra 2025.
Bad / Vaskerom
Baderom fra byggeår. Flislagt gulv med gulvvarme. Flislagte vegger. Malte flater i himling. Vegghengt servantinnredning. Speil med overlys. Vegghengt baderomsmøbel. Dusjhjørne med dører. Vegghengt toalett. Vannrør av type rør-i-rør. Synlige avløpsrør av plast. Mekanisk avtrekk med ventil i himling. Opplegg for vaskemaskin.
Toalettrom
Gulvflate belagt med fliser. Malte veggflater. Malte flater i himling. Vegghengt servantinnredning. Vegghengt toalett. Vannrør av typen rør-i-rør. Synlige avløpsrør av plast. Mekanisk avtrekk med ventil i himling.
Soverom
Leiligheten har 2 romslige soverom. Hovedsoverommet har god plass til dobbeltseng med nattbord på hver side. Her er det også en stor integrert skyvedørsgarderobe. Det andre soverommet passer godt som gjesterom, barnerom TV-stue eller kontor.
Lagringsplass
Boligen disponerer 2 boder. En av bodene er i leiligheten, den andre er i kjelleren. Kjellerboden er tinglyst som en tilleggsdel til seksjonen.
Overflater
Gulv: fliser, parkett.
Vegger: fliser, malteflater.
Himling: malte flater.
Løsøre og tilbehør
Vi viser til liste fra Norges Eiendomsmeglerforbund som gjelder fra 01.01.2020 angående løsøre og tilbehør.
Gammel veggklokke, lampetter, gammelt hjørneskap, vegglys i stuen og i TV-stuen medfølger ikke ved salg.
Oppvarming
Oppvarming av boligen skjer i hovedsak ved bruk av radiatorer (tilkoblet varmesentral) og gulvvarme/varmekabler på bad og toalettrom.
Dersom beboelsesrom ikke har vegg- eller fastmonterte varmekilder ved visning, følger dette heller ikke med.
Ferdigattest/brukstillatelse
Det foreligger ferdigattest på nybygg boligblokk D med parkeringskjeller, datert 03.11.2014. Denne kan fås ved henvendelse til megler.
Det foreligger godkjente byggetegninger, datert 24.09.2010. Denne kan fås ved henvendelse til megler.
Dagens plantegning samsvarer med seksjoneringen datert 18.02.2013, men ikke med byggetegningene datert 24.09.2010.
- På byggetegningene er det en balkong som ikke går rundt hjørnet.
- Det er tre mindre soverom på byggetegningene og ikke 2 store som dagens planløsning.
- Boden på byggetegningene er plassert der badet er i dag.
Det må antas at utbygger endret planløsning mellom godkjente tegninger og tinglyst seksjonering. Leiligheten står som den ble bygget.
Det er uvisst om det er gjort endringer etter at ferdigattest ble gitt, men selger opplyser at det ikke er foretatt endringer i selgers eiertid.
Kjøper overtar alt ansvar, kostnad og risiko for dette videre.
Tinglyste heftelser og rettigheter
Leiligheten overdras fri for pengeheftelser.
Sameiet har legalpant for krav mot sameieren som følger av sameieforholdet iht. eierseksjonsloven § 31. Pantet er begrenset oppad til 2G, (G = folketrygdens grunnbeløp).
I tillegg har sameiet tinglyst panterett som nevnt over.
Det er tinglyst følgende servitutter på sameiets eiendom.
Dagboknr 900113, tinglyst 19.09.1890, type heftelse: Rettigheter i følge skjøte:
Bestemmelser på bnr.5,6,7 og 8. Med parsellene følger endel huse,samt rett til vei, vann,strand,vannkraft. Bestemmelser om vedlikehold av broer,gjærder m.v
Dagboknr 7876, tinglyst 30.10.1950, type heftelse: Bestemmelse om vannledning:
Eldre håndskrevet dokument det ikke er mulig å tyde.
Dagboknr 8615, tinglyst 04.12.1950, type heftelse: Bestemmelse om vann- og kloakkledning:
Eldre håndskrevet dokument det ikke er mulig å tyde.
Dagboknr 3813, tinglyst 13.03.1975, type heftelse: Erklæring/Avtale:
Bestemmelse om tømming av tank og tilknytning til offentlig kloakk. Eier forpliktet seg til å koble seg til offentlig vann og kloakk så fort det var mulig.
Dagboknr 366928, tinglyst 10.05.2012, type heftelse: Erklæring/Avtale:
Rettighetshaver: Elvia AS Org.nr: 980 489 698 Overenskomst om rettigheter og plikter ved oppføring, drift og vedlikehold av frittliggende nettstasjon.
Dagboknr 455845, tinglyst 11.06.2012, type heftelse: Bestemmelse om adkomstrett:
Allmennheten har rett til gangadkomst over eiendommen. Kan ikke slettes uten samtykke fra kommunen.
Servituttene vil følge eiendommen. Kjøpers bank vil få prioritet etter ovennevnte heftelser og servitutter.
Eventuell adgang til utleie
Leiligheten kan leies ut såfremt leiligheten har forsvarlige radonverdier. Leietaker må følge sameiets vedtekter og ordensregler på lik linje som eier.
Diverse
Eiendommen inngår i et dødsbo hvor arvingene er selgere. Arvingene har ikke bebodd eiendommen og kjennskapen til eiendommens tilstand kan være mangelfull. Kjøper må derfor kunne påregne at det kan være flere feil og mangler som normalt oppdages ved bruk av boligen, men som selger av dødsbo ikke har mulighet for å vite.
Beliggenhet og tomteforhold
Beliggenhet og tomteforhold
Beliggenhet
Boligen ligger fint til i et rolig, attraktivt og barnevennlig område i Heggedal sentrum i Asker kommune. I Heggedal er det blant annet flere butikker, restauranter, postkontor kunstfagskole, og idrettslag med mange medlemmer. Det er også kort vei til kjøpesenter ved Slemmestad og i Asker.
Midt i hjertet av Heggedal ligger Gjellumvannet med badestrand og flytebrygge med stupebrett. Gjellumvannet er blant annet omkranset av volleyballbane, Tuftepark og en sykkelpark. Sykkelparken består av to deler, en for sykkelopplæring for barn og en for terrengsykler og BMX-ere.
GUI sportsklubb (tidligere Heggedal IL) har klubbhus ved Gjellum idrettsanlegg som ligger 1,3 km fra boligen, samt kunstgressbane, ballbinge og grusbane. Ved barneskolen er det en nyere flerbrukshall, ved ungdomsskolen ligger Heggedal idrettshall og i Kloppedalen ligger en utendørs treningspark.
Norges første sykkelpark åpnet i Heggedal sommeren 2015, og er et populært sted for store og små. Kjekstadmarka og Dikemark har fine turstier om sommeren og preparerte skiløyper vinterstid. Gjellumvannet ligger rett utenfor eiendommen og byr på gode bade- og fiskemuligheter om sommeren og normalt gode skøytemuligheter om vinteren.
Dagligvarehandelen kan blant annet gjøres på Coop Extra og Kiwi Heggedal. I Heggedal sentrum har du et godt utvalg butikker og servicesteder med blant annet innbyggertorget hvor du finner bibliotek, helsestasjon og kafé, stor Kiwi dagligvareforretning, delikatesse, apotek, frisør, sushi, restauranter, iskiosk og stort parkeringsanlegg m.m. Det er også kort vei til Trekanten i Asker og Rortunet i Slemmestad.
Fra eiendommen er det gangavstand til Heggedal barneskole. Skolen var ny i desember 2016 og ligger tilknyttet en ny flerbrukshall. For elever i ungdomstrinnene er det ca. 400 meter å gå til Hovedgården ungdomsskole. Det finnes videregående skoler i nærliggende områder og et godt utvalg av barnehager. Nærmeste barnehage er Kistefossdammen barnehage som ligger rundt 700 meter fra boligen.
Kollektivtilbudet består av buss og tog. Det er ca. 6 minutters gange til Heggedal stasjon, og herfra er det togavganger mot Oslo. Ved å benytte bil tar det ca. 8 min til Slemmestad, 10 min til Asker, 14 min til Holmen, 18 min til Sandvika og 34 min til Oslo S. Fra Vollen sentrum går hurtigbåten fra Vollen til Aker Brygge. Denne bruker ca. 25 minutter inn til Aker Brygge og er en behagelig måte å reise til Oslo.
Adkomst
Se vedlagt kartskisse nederst i annonsen på Krogsveen.no. Ved å trykke på kartet får du enkelt tilgang til en spesifisert reiserute fra din startdestinasjon til boligen. Det vil bli skiltet med Krogsveen visningsskilt ved fellesvisninger. Velkommen til visning!
Barnehager, skoler og fritid
Barnehager
- Kistefossdammen barnehage (0-5 år) 0,7 km
- Vikingjordet barnehage Åmotåsen (1-5 år) 0,7 km
- Heggedalskogen barnehage (1-5 år) 1,2 km
Skoler
- Heggedal skole (1-7 kl.) 1,2 km
- Hovedgården ungdomsskole (8-10 kl.) 0,5 km
- Bleiker videregående skole 6,3 km
- Asker videregående skole 6,5 km
Beskrivelse av tomt
Eiertomt på 6 463 kvm som tilhører sameiet. Tomten er fellesareal. Tomt er opparbeidet med blant annet asfalterte veier, plenarealer og andre forskjellige beplantninger.
Utgang fra stue til balkong på 12 m2. Rekkverkshøyde er målt til 1,15 meter. Balkong i betongkonstruksjoner. Rekkverk av glass. Gulvoverflater er belagt med fliser. Balkongen har utebelysning og utvendig stikkontakt.
Det er sol på balkongen fra ca. kl. 5 til kl. 7 og ca. kl. 15 til kl. 21 sommerstid, i følge selger.
Parkering
Leiligheten disponerer biloppstillingsplass i felles garasjekjeller. Biloppstillingsplassen har vedtektsfestet bruksrett. Det er mulighet for utleie av biloppstillingsplassen til andre seksjonseiere om ønskelig.
Vei, vann og avløp
Eiendommen har adkomst via privat vei med felles vedlikeholdsansvar for sameiet.
Eiendommen er tilknyttet kommunalt ledningsnett via private stikkledninger.
Sameiet er ansvarlig for private stikkledninger til bygningen.
Regulerings-og arealplaner
Eiendommen er regulert til boliger, forretning, kontor, turvei, annen veigrunn i henhold til reguleringsplan Heggedal Sentrum datert 16.02.2010 med tilhørende reguleringsbestemmelser datert 11.03.2010
Eiendommen ligger også i område for kommuneplanens arealdel iht. Kommuneplan for Asker 2023-2035.
Utsnitt av plan med tilhørende bestemmelser kan fås ved henvendelse til megler.
Økonomi
Økonomi
Boligens kostnader
Fellesutgiftene er kr 6 118,- pr. mnd. og inkluderer: Kabel-TV, internett, renovasjon, felles varme, parkeringsplass.
Fellesutgiftene justeres normalt en til to ganger årlig i forhold til sameiets faktiske utgifter.
Budsjettet for 2026 er behandlet og vedtatt av styret. Årsmøtet er gjennomført. Det er kun lagt opp til en økning av kommunal avgift renovasjon på kr. 6.- pr. enhet-pr. termin, samt en økning av Telenors leveranse på TV og internett med kr. 104.- pr. enhet pr. termin.
Styret vil og må følge med på energikostnader, men også med den generelle prisøkningen gitt av våres underleverandører, og fortløpende justere budsjett og felleskostnader etter dette. Det er for øvrig en god økonomi her på Heggeodden.
Nåværende eier har et strømforbruk som tilsvarer ca. 2 544 kwh. pr. år.
Boligen er tilknyttet Telenor som leverandør av kabel-tv og internett og dette er inkludert i felleskostnadene. TV-tuner/dekoder medfølger.
Kjøper må selv tegne innboforsikring.
Selger har ikke bebodd eiendommen og har således ikke kjennskap til øvrige løpende utgifter for eiendommen.
Formuesverdi
Formuesverdi for 2024 var kr 1 323 478,- ifølge Skatteetaten. Beløpet forutsetter at eier bor fast i boligen (primærbolig).
Ved eventuell øvrig bruk av eiendommen (f.eks. fritidsbolig, pendlerbolig, utleieobjekt) var formuesverdien for 2024 kr 5 293 913,-.
Fra 2026 har Stortinget vedtatt en oppdatert modell for beregning av formuesverdi for primærbolig, så avvik kan forekomme.
For mer informasjon se skatteetaten.no
Opplysninger om fellesgjeld
Andel formue er kr 30 076,- pr. 31.12.2025
Andel fellesgjeld er kr 0,- pr. 31.12.2025
Omkostninger
8 190 000,00 Prisantydning
Omkostninger
204 750,00 Dokumentavgift til staten (2,5% av kjøpesum)
9 950,00 Gjensidige Boligkjøperpakke (valgfri)* (valgfritt)
545,00 Tinglysing panterettsdokument
545,00 Tinglysing skjøte
--------------------------------------------------------
205 840,00 Omkostninger totalt (uten Gjensidige Boligkjøperpakke (valgfri))
215 790,00 Omkostninger totalt (med Gjensidige Boligkjøperpakke (valgfri))
--------------------------------------------------------
8 395 840,00 Totalpris inkl. omkostninger
8 405 790,00 Totalpris inkl. omkostninger (med Gjensidige Boligkjøperpakke (valgfri))
--------------------------------------------------------
Dersom sameiet har fellesgjeld, vil leilighetens andel av fellesgjelden komme i tillegg til kjøpesummen. Denne gjelden skal ikke innbetales i oppgjøret, men følger leiligheten.
Totalpris inkl. omkostninger forutsetter kjøp til prisantydning.
Det tas forbehold om endringer i avgifter og gebyrer.
Tilbud om lånefinansiering
Megler formidler gjerne kontakt med rådgiver hos vår samarbeidspartner BN Bank. De har konkurransedyktige betingelser samt rask og løsningsorientert behandling av din lånesøknad. Krogsveen mottar et honorar dersom lån opprettes.
Betalingsbetingelser
Kjøpesum inkludert omkostninger, samt pantedokument tilknyttet eventuelt lån, skal være disponibelt hos megler 2 virkedager før overtagelsen.
Annen viktig informasjon
Annen viktig informasjon
Eier
John Aage Hvardal og Merete Hvardal
Informasjon om sameiet
Eiendommen er seksjonert, og leiligheten er tilknyttet Heggeodden Boligsameie, med sameiebrøk 89/9132.
Sameiet består av 107 boligseksjoner, 10 næringsseksjoner på gateplan og 1 næringsseksjon bestående av 4 garasjeplasser.
Forretningsfører er USBL.
Dugnad må påregnes.
Dyrehold er tillatt.
Styrets arbeid den siste tiden:
- Årskontroll av elektrisk anlegg.
- Utskifting pågikk også i 2025 av lysrør med led-lys i garasje.
- Skiftet låser i hoveddører, boddører, slusedør og garasjeport og et nytt nøkkelsystem.
- Skiftet til låsbare lokk på våre søppeldunker (moloker).
- Satt inn 2 stk. kamera for overvåking av inngangspartiet slusa og garasjen.
- Trykk-kontrollert alle brannslanger i garasjen.
- Utført service på garasjeport.
- Skiftet ut noen port-telefoner.
- Malt resterende balkonger som ikke har innglassing i Heggeodden 2 og 4.
- Skiftet ekspansjonstank i Teknisk rom.
- Etablert ny avtale om snøbrøyting.
- Byttet EL- lader leverandør fra Elaway til PlugPay.
Vi gjør videre oppmerksom på at det iht. eierseksjonsloven ikke er anledning å erverve mer enn 2 seksjoner i sameiet, her teller også eierskap via. firma, nærstående og familie. Kjøper har risikoen for at overskjøting på denne bakgrunn kan nektes av Statens Kartverk. I så fall vil kjøper uansett være forpliktet til å gjennomføre handelen, og oppgjør til selger vil finne sted tross manglende overskjøting.
Konferer med megler for mer informasjon.
Dokumenter for sameiet og kopi av seksjonsbegjæringen kan fås ved henvendelse til megler.
Overtakelse
Etter nærmere avtale.
Boligselgerforsikring
Selger har i forbindelse med salget tegnet boligselgerforsikring levert av Gjensidige.
Boligselgerforsikringen dekker selgers ansvar etter avhendingsloven begrenset oppad til kr 14 millioner. Dersom kjøper oppdager forhold ved eiendommen som hen mener utgjør en mangel ved eiendommen, vil Gjensidige behandle reklamasjonen på vegne av selger. Forsikringsvilkår kan fås ved henvendelse til megler.
Vedlagt salgsoppgaven følger selgers egenerklæringsskjema og tilstandsrapport. Interessenter må sette seg inn i dokumentene før bud inngis.
Boligkjøperforsikring
Innen kontraktsmøtet må kjøper ta stilling til om det ønskes å bestille Boligkjøperpakken gjennom Gjensidige. I denne gunstige pakken er boligen ferdig forsikret og inkluderer rettshjelpsforsikring, også kalt Boligkjøperforsikring. Rettshjelpsforsikring gir trygghet og tilgang på profesjonell juridisk hjelp dersom det oppdages uventede feil eller mangler det første året etter overtagelse. Forsikringsselskapet behandler i så fall ethvert mangelskrav kjøper måtte ha overfor selger.
Boligkjøperpakken inkluderer bygningsforsikring for hus og hytte, innboforsikring, flytteforsikring og dobbel rentedekning - i situasjoner hvor kjøper ikke får solgt nåværende primærbolig.
Kjøper mottar ingen særskilt faktura for Boligkjøperpakken da kostnaden det første året legges til kjøpesummen for boligen. Det gjøres oppmerksom på Krogsveen mottar et honorar for denne formidlingen.
Produktark for Boligkjøperpakken ligger vedlagt i salgsoppgaven.
Dersom ikke boligkjøperpakke ønskes kan kun rettshjelpsforsikring, også kalt boligkjøperforsikring, tegnes særskilt via megler. Rettshjelpsforsikringen varer i 5 år fra overtagelse og leveres gjennom Gjensidige. Ta kontakt med megler for ytterligere informasjon.
Selskap og privatpersoner som driver med kjøp/salg/utvikling som ledd i egen næringsvirksomhet kan ikke tegne boligkjøperpakke eller rettshjelpsforsikring.
Budgivning
Forbrukerinformasjon om budgivning er vedlagt denne salgsoppgaven og er også på vår hjemmeside Krogsveen.no. Alle bud og budforhøyelser må inngis skriftlig. I tillegg må legitimasjon være fremlagt sammen med signatur fra budgiver.
Vi oppfordrer til å gi bud elektronisk via GI BUD-knappen på eiendommens hjemmeside på Krogsveen.no. Da vil samtlige vilkår bli oppfylt.
Eventuelle forhøyelser eller endringer av budet kan bekreftes pr SMS eller på e-post. Vi oppfordrer alltid til å kontakte megler pr. telefon i tillegg da forsinkelser i SMS og e-post kan forekomme.
For at budene skal kunne bli behandlet og videreformidlet skriftlig til alle involverte parter, må alle bud ha en tilstrekkelig lang akseptfrist, jf. eiendomsmeglingsforskriften § 6-3.
Selger må også skriftlig akseptere budet før aksept kan formidles til budgiver. Akseptfrist bør derfor være på minimum 30 minutter, og budforhøyelser må derfor skje i god tid før fristens utløp.
Bud i forbrukerforhold kan uansett ikke settes med kortere frist enn kl. 12.00 første virkedag etter siste annonserte visning. I tillegg kan ikke budet ha forbehold om at det skal holdes hemmelig ovenfor øvrige interessenter. Megler har iht lov om eiendomsmegling ikke anledning til å videreformidle disse budene, og de vil dermed heller ikke bli journalført.
Etter at eiendommen er solgt vil kjøper og selger få tilsendt budjournal. Øvrige budgivere kan få utlevert kopi av budjournalen i anonymisert form.
Hvitvaskingsreglene
I henhold til lov om hvitvasking og terrorfinansiering har megler plikt til å gjennomføre kontrolltiltak overfor kunder, herunder fullmektiger. Dette innebærer bl.a. å bekrefte kunders og reelle rettighetshaveres identitet på bakgrunn av fremvist gyldig legitimasjon eller på annen godkjent måte, samt å innhente opplysninger om kundeforholdets formål og tilsiktede art.
Dersom slike kundetiltak ikke kan gjennomføres, kan megler ikke etablere kundeforholdet eller utføre transaksjonen.
Hvis kjøper ikke bidrar til gjennomføring av kundekontrollen og dette fører til at transaksjonen blir forsinket eller ikke kan gjennomføres, vil dette ansees som mislighold av avtalen og gi selger rettigheter etter avhendingslova kapittel 5. I tilfeller der selger ikke bidrar til gjennomføring av løpende kundekontroll underveis i oppdraget, er det selger som misligholder sine forpliktelser etter avtalen og gi kjøper rettigheter etter avhendingslovens kapittel 4. Partene er selv ansvarlige for eventuelle kostnader og ansvar dette kan medføre. Eiendomsmegleren eller eiendomsmeglingsforetaket kan ikke holdes ansvarlig for de konsekvenser dette vil kunne få for partene eller andre som har interesser i eiendomshandelen.
Kjøper oppfordres til å innbetale kjøpesummen som ikke kommer fra låneinstitusjon i én samlet innbetaling fra egen konto i norsk bank. Megler har plikt til å melde fra til Økokrim om eiendomshandler som fremstår som mistenkelige. Melding sendes Økokrim uten at partene varsles.
Personopplysningsloven
I henhold til personopplysningsloven gjør vi oppmerksom på at interessenter kan bli registrert for videre oppfølging.
Lovanvendelse
Generelle bestemmelser
Salgsoppgaven er basert på de opplysningene selger har gitt til megler, den bygningssakyndiges tilstandsrapport, samt opplysninger innhentet fra kommunen, Kartverket og andre tilgjengelige kilder. Det er viktig at kjøper setter seg grundig inn i alle salgsdokumentene, herunder salgsoppgave, tilstandsrapport og selgers egenerklæring. Kjøper anses kjent med forhold som er tydelig beskrevet i salgsdokumentene, og slike forhold kan ikke påberopes som mangler. Dette gjelder uavhengig av om kjøper har lest dokumentene. Alle interessenter oppfordres til å undersøke eiendommen nøye, gjerne sammen med fagkyndig før bud inngis. Kjøper som velger å kjøpe usett kan ikke gjøre gjeldende som mangel noe han burde blitt kjent med ved undersøkelsen.
Dersom det er behov for avklaringer, anbefaler vi at interessenter rådfører seg med eiendomsmegler eller egne rådgivere før det legges inn bud.
En bolig som har blitt brukt i en viss tid, har vanligvis blitt utsatt for slitasje og skader kan ha oppstått. Slik bruksslitasje må kjøper regne med, og det kan avdekkes enkelte forhold etter overtakelse som nødvendiggjør utbedringer. Normal slitasje og skader som nødvendiggjør utbedring, er innenfor hva kjøper må forvente og vil ikke utgjøre en mangel.
Kjøper og selgers rettigheter og plikter reguleres av avtalen mellom partene, samt informasjonen som har vært tilgjengelig for kjøperen i forbindelse med handelen. Avtalen utfylles av avhendingsloven, og det gjelder ulike avtalevilkår avhengig av om kjøper er forbrukerkjøper eller ikke. Dette er nærmere beskrevet nedenfor.
På grunn av ulike avtalevilkår kan selger vurdere bud fra en som ikke er forbruker, ulikt fra en forbrukers bud. Dersom kjøper ikke er forbruker, er selger sitt mulige mangelsansvar begrenset fordi eiendommen selges "som den er". Selger kan ikke ta «som den er»- forbehold overfor en forbrukerkjøper. Selv et lavere bud fra en som ikke er forbruker kan foretrekkes fordi begrensningen i mulig mangelsansvar kan ha egenverdi for selger. Selger står fritt til å forkaste eller akseptere ethvert bud, og er for eksempel ikke forpliktet til å akseptere høyeste bud.
Budgiver skal i budskjema avgi egenerklæring om budgiver er forbruker eller næringsdrivende/ person som hovedsakelig handler som ledd i næringsvirksomhet. Budgivere får informasjon dersom andre bud er inngitt av en som ikke er forbruker.
Forbrukerkjøp - definisjon
Med forbrukerkjøp menes kjøp av eiendom når kjøperen er en fysisk person som ikke hovedsakelig handler som ledd i næringsvirksomhet.
Forbruker – avtalevilkår
Eiendommen har en mangel dersom den ikke er i samsvar med kravene som følger av avtalen, eller det foreligger brudd på bestemmelsene i avhendingsloven §§ 3-2 til 3-8. Hvis eiendommen ikke er i samsvar med det kjøperen må kunne forvente ut ifra alder, type og synlig tilstand, kan det være grunnlag for mangelskrav. Det samme gjelder hvis det er holdt tilbake eller gitt uriktige opplysninger om eiendommen. Dette gjelder likevel bare dersom man kan gå ut ifra at det virket inn på avtalen at opplysningen ikke ble gitt eller at mangelskravet ikke blir rettet i tide på en tydelig måte.
Boligen kan ha en mangel etter avhendingsloven § 3-3 andre ledd, dersom det er avvik mellom opplyst og faktisk innvendig areal, forutsatt at avviket er på 2% eller mer og minimum 1 kvm.
Ved beregning av et eventuelt prisavslag eller erstatning må kjøper selv dekke tap/kostnader opptil et beløp på kr 10 000 (egenandel).
Ikke-forbruker (næringsdrivende) – definisjon
Hvis kjøper er en juridisk person, eller en fysisk person som hovedsakelig handler som ledd i næringsvirksomhet, vil kjøpet ikke anses som et forbrukerkjøp.
Ikke-forbruker – avtalevilkår
Eiendommen har en mangel dersom den ikke er i samsvar med kravene som følger av avtalen.
Eiendommen selges «som den er», og selgers ansvar utover det konkret avtalte er da begrenset etter avhendingsloven § 3-9, første ledd andre setning.
Avhendingsloven § 3-3 andre ledd fravikes, og hvorvidt boligens arealsvikt utgjør en mangel vurderes etter avhendingsloven § 3-8.
Informasjon om kjøpers undersøkelsesplikt, herunder oppfordringen om å undersøke eiendommen nøye, gjelder også for kjøpere som ikke anses som forbrukere.
Det forutsettes at hjemmel overføres til kjøper. Hvis kjøper ikke ønsker hjemmelsoverføring av eiendommen, må det tas forbehold om dette i budet.
Meglers vederlag
Meglers vederlag betales av selger og er avtalt til:
Vederlag: 0,80 % av salgssummen inkl. eventuell fellesgjeld. Minimumsprovisjon er kr 60 000,00
Vederlag:
Kontroll av hjemmel og heftelser kr 4 500,00
Markedsføringspakke kr 30 900,00
Oppgjør kr 8 900,00
Tilrettelegging kr 19 900,00
Visninger pr stk / Overtagelse, 1 visning inkludert i provisjonen kr 4 000,00
Utlegg:
Eierskiftegebyr forretningsfører (selger) kr 6 725,00
Innhenting av informasjon forretningsfører kr 5 138,00
Innhenting av offentlig opplysninger Asker kommune kr 4 351,00
Tinglysing sikring kr 545,00
Andre utgifter:
AX tilstandsrapport leilighet kr 10 750,00
Boligselgerforsikring Gjensidige Snr - regnes av prisantydning kr 38 930,00
Foto med drone merking av bilde på fasade kr 4 490,00
Interiørveiledning fra boligstylist med tips/klargjøringsliste kr 0,00
Vi er opptatt av verdiskapning, og har knyttet til oss samarbeidspartnere som skal sikre våre kunder de beste produkter og tjenester;
• I forbindelse med forberedelse av salget, innhenter vi informasjon om eiendommen hovedsakelig fra vår samarbeidspartner Amibita.
• Gjensidige leverer boligselgerforsikring og tilbyr bygningsforsikring
• Boligkjøperforsikring leveres av Hiscox og med Sedgwick som skadebehandler, og er formidlet gjennom Gjensidige.
• BN bank tilbyr finansieringsløsninger
• Vår avdeling Krogsveen Pluss tilbyr flyttetjenester som utvask, visningsvask, lager, tømming og transport av flyttelass, i tillegg til å formidle kontakt med Flip for overflateoppussing.
• I forbindelse med overtagelse av eiendommen tilbyr Overo avtale om strøm, alarm og bredbånd.
• Krogsveen er, sammen med øvrige bransjeaktører, medeier i Bomega AS som tilbyr den digitale annonseringsplattformen Hjem.
Opplysninger om oppdraget
Oppdragsnummer 15-0019/26
Eiendomsmegler Krogsveen AS, avd. Asker
Torvveien 1, 1383, ASKER
950 007 613
Oppdragets KR-kode KR15.2619
Dato
Sist oppdatert: 21. mai 2026 kl. 12:52
Dokumenter
Dokumenter
PDF – 164 KB
PDF – 3 MB
PDF – 948 KB
PDF – 2 MB
PDF – 20 MB
PDF – 203 KB
PDF – 312 KB
PDF – 29 KB
PDF – 127 KB
PDF – 392 KB
Område
Legg til steder som er viktige for deg
Visning
Det er ingen planlagte visninger. Meld deg på for å avtale en tid som passer.
Lurer du på noe?
Unngå doble boligrenter
Vi tilbyr gunstig forsikring.
Vurderer du utleie?
Få et tilbud fra Utleie KrogsveenHva koster lånet?
Sjekk estimert lånekostnadVil du varsles om lignende boliger?
Ved å lagre ditt boligsøk hos oss får du beskjed når vi har en bolig som ligner denne, før den legges ut på markedet!

















































