Fjellvegen 5
3 450 000 kr
44 m²
1 soverom
Komplett salgsoppgave

Skogmo Park
Ny og ubebodd 2-roms hjørneleilighet sentral på Jessheim | Vestvendt balkong | Nærhet til gode turområder
Prisantydning
3 450 000 krAndel fellesgjeld
31 000 krOmkostninger
98 060 krTotalpris
3 579 060 kr
Pris
Bruksareal
46 m²BRA-I (internt bruksareal)
44 m²BRA-E (eksternt bruksareal)
2 m²TBA (terrasse-balkongareal)
8 m²
Areal
Etasje
2Byggeår
2025Soverom
1 soveromBad
1 badType
EierleilighetEierform
EierseksjonFasiliteter
Heis og Balkong/TerrasseFellesutgifter
1 817 kr
Nøkkelinfo
Unngå doble boligrenter
Vi tilbyr gunstig forsikring.
Vurderer du utleie?
Få et tilbud fra Utleie KrogsveenHva koster lånet?
Sjekk estimert lånekostnadBeskrivelse
Kort om eiendommen
Velkommen til Fjellvegen 5 - en ny og ubebodd eierleilighet sentralt på Jessheim, ferdigstilt august 2025.
Moderne og flott leilighet med meget god planløsning som utnytter plassen godt, samt et flott fargevalg som gir et stilrent uttrykk. Leiligheten har et tidløst Sigdal-kjøkken med integrerte hvitevarer, pent flislagt bad med varmekabler i gulv, romslig soverom på ca. 10,7 kvm og en solrik balkong på ca. 8 kvm. Vannbåren gulvvarme i alle rom som gir en behagelig og lun temperatur.
Leiligheten ligger i et område i vekst, med god infrastruktur og flere gode turområder. Gangavstand inn til Jessheim sentrum med alt av bymessige fasiliteter. Nærmeste bussholdeplass er ca. 250 meter fra leiligheten.
I sameiet har du tilgang til sykkelbod, gjesteleilighet, drivhus m.m.
Innhold og byggemåte
Innhold og byggemåte
Eiendommen
Fjellvegen 5, 2053 JESSHEIM
Kommunenummer 3209, gårdsnummer 131, bruksnummer 170, seksjonsnummer 16, ideell andel 1/1
Innhold
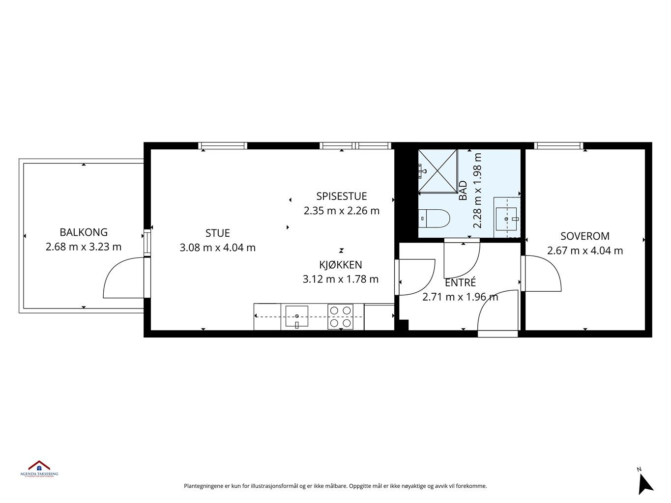
Totalt bruksareal BRA: 46 kvm
BRA-i:
2. etasje 44 kvm: Entré, bad, soverom, stue/kjøkken.
BRA-e:
Kjeller: 2 kvm: Bod i kjeller. Boden er tinglyst som en tilleggsdel til seksjonen.
Åpent areal:
2. etasje 8 kvm: Balkong.
Vedlagte plantegninger er ikke målbare. De oppgitte arealer er hentet fra rapport med befaringsdato 17.11.2025 utført av Agenda Taksering AS.
Byggemåte
Selger har fått utarbeidet en tilstandsrapport, dvs. en teknisk gjennomgang av boligen hvor eventuelle avvik, risiko for kjøper og prisoverslag for hva som bør gjøres av oppgradering, er skissert. Se særskilt TGIU (tilstandsgrad ikke undersøkt), samt TG2 og TG3 som viser hva som er boligens normale slitasje, alder og type, hva som er avvik fra dette og hva som bør/må utbedres. Rapporten og selgers egenerklæring er en del av salgsoppgaven og må leses nøye før bud inngis. Kjøper overtar ansvaret for de opplysninger som fremkommer av salgsdokumentasjonen, og kan ikke gjøre gjeldende som mangel noe som burde vært kjent eller som ikke kan anses å ha betydning for avtalen.
Bygningen er iht. tilstandsrapporten oppført i betong. Veggene har betong-/ bindingsverkskonstruksjon fra byggeår. Fasade/kledning har teglforblending. Bygningen har malte trevinduer med utv. aluminiumsbeslag og med 3-lags glass. Bygningen har brann- og lydklassifisert entrédør og malt balkongdør i tre med utv. aluminiumsbeslag. Balkong med betongdekke og rekkverk av stålprofiler. Etasjeskiller er av betongelementer.
Leiligheten er nybygd og ubebodd, og har gjennomgående TG0/TG1.
Les for øvrig mer om byggemåte og den tekniske tilstanden i rapporten.
Standard
Leiligheten er nylig ferdigstilt og holder en gjennomgående god standard med stilig fargevalg og godt materialvalg. Gulvflater av parkett, malte overflater på vegger og himling. Balansert ventilasjon, rør-i-rør, vannbåren gulvvarme m.m. Hjørneleilighet med flere vinduer som gir rikelig med naturlig lys.
Pent kjøkken fra Sigdal med integrerte hvitevarer. Innredning med glatte fronter, benkeplate av laminat. Avtrekk via balansert anlegg. Kjøkkenet er i åpen løsning mot stua og gir god plass til spisemøblement. Stua har i tillegg god plass til sofakrok og TV. Fra stua er det utgang til solrik balkong på ca. 8 kvm med plass til både sittegruppe og grill.
Pent flislagt modulbad med varmekabler i gulv. Badet har opplegg for vaskemaskin og tørketrommel. Helstøpt vask med oppbevaring i skuffer. Speilskap med belysning, samt downlights fra himling. Vegghengt toalett og slette innfellbare dusjvegger.
Soverommet er ca. 10,7 kvm og har god plass til dobbeltseng og garderobeskap.
Løsøre og tilbehør
Vi viser til liste fra Norges Eiendomsmeglerforbund som gjelder fra 01.01.2020 angående løsøre og tilbehør.
Integrerte hvitevarer medfølger.
Oppvarming
Leiligheten varmes opp med vannbåren oppvarming fra fjernvarme.
Ferdigattest/brukstillatelse
Det foreligger ikke ferdigattest på eiendommen, men midlertidig brukstillatelse ble gitt 05.08.2025. Tillatelsen er gitt på følgende vilkår:
Gjenstående arbeid før ferdigattest kan utstedes:
Ferdigstillelse av rekkehus og tilhørende uteareal.
Merknader: Gjenstående arbeid av vesentlig betydning innenfor tiltaket det søkes om midlertidig brukstillatelse for: Montering av levegger på bakkeplan og 1 baldakin. Grøftpuss og tilsåing. Justering av kumtopper.
Arbeidet må utføres innen 01.06.2025.
Tinglyste heftelser og rettigheter
Leiligheten overdras fri for pengeheftelser.
Sameiet har legalpant for krav mot sameieren som følger av sameieforholdet iht. eierseksjonsloven § 31. Pantet er begrenset oppad til 2G, (G = folketrygdens grunnbeløp).
Det er tinglyst følgende servitutter på sameiets eiendom:
Dagboknr 2847, tinglyst 14.06.1967, type heftelse:
Dagboknr 1407, tinglyst 08.03.1969, type heftelse:
Dagboknr 11844, tinglyst 30.10.1989, type heftelse:
Dagboknr 349634, tinglyst 16.12.2020, type heftelse: Bestemmelse om elektriske ledninger/kabler.
Elvia har rett til å plassere nettstasjon med transformator, tilhørende apparater og kabelanlegg på eiendommen. Retten omfatter også rett til å drfte, vedlikeholde og fornye nettstasjon med tilhørende ledningsnett. Grunneier kan ikke bygge nærmere enn 5 meter til nettstasjon uten tillatelse av netteier.
Dagboknr 604328, tinglyst 30.05.2025, type heftelse: Bestemmelse om jordkabel/jordkabelanlegg
Det er i tillegg tinglyst en eldre servitutt fra 1926, som handler om forbud mot næringsvirksomhet på eiendommen. Grunnet servituttens alder og tilgjengelighet er den ikke bestilt fra Kartverket.
Servituttene vil følge eiendommen. Kjøpers bank vil få pant etter ovennevnte heftelser og servitutter.
Eventuell adgang til utleie
Leiligheten kan leies ut såfremt leiligheten har forsvarlige radonverdier. Leietaker må følge sameiets vedtekter og ordensregler på lik linje som eier.
Beliggenhet og tomteforhold
Beliggenhet og tomteforhold
Beliggenhet
Eiendommen ligger i et veletablert boligområde, i underkant av én km. øst for Jessheim sentrum med alt av fasiliteter. Det er gangavstand til skoler, barnehager og Jessheim sentrum med de fleste fasiliteter med bl.a. Jessheim Storsenter, restauranter, kulturhus, offentlig kommunikasjon m.m.. Det er kort vei til Nordbytjernet med badeplass og flotte tur- og rekreasjonsmuligheter, sommer som vinter. Området for øvrig har et bredt tilbud for alle aldersklasser innen idrett og kultur. Jessheim fikk bystatus i september 2012, og er en by i stor vekst.
Jessheim sentrum ligger kun en kort spasertur unna. Her finner du et stort kjøpesenter med 140 butikker, koselige kafeer og restauranter. Ved siden av senteret ligger byens kulturhus med flere kinosaler og bibliotek. Kulturskole med dans, musikk og teater for barna. Kulturhuset byr i tillegg på konserter, teater, revyer og kunstutstillinger.
Nordbytjernet er Ullensakers mest populære badeplass, og er tilrettelagt med blant annet brygge og volleyballbane. Tjernet er en naturperle som er meget populært på fine sommerdager. Her finner du flotte turstier rundt tjernet samt et yrende badeliv om sommeren. Ellers kan Jessheims skoger tilby turstier, sykkelstier, skiløyper og lysløype. Jessheimmarka har gode vintertilbud hvor det blir kjørt opp flotte skiløyper. Jessheim stadion med fotball, friidrett og ny flerbrukshall/skøytehall ligger kun ca 10 min. gange fra boligen, og flere treningssentre ligger etablert i nye lokaler sentralt på Jessheim. I tillegg ble Jessheimbadet ferdigstilt i 2022 - et moderne anlegg med treningsbasseng og mye rom for lek og moro.
Jessheim stasjon har gode bussforbindelser til Gardermoen og Oslo, samt skolebusser til både Jessheim og Nannestad. Fra Jessheim stasjon går det tog i retning Oslo/Drammen og Dal to ganger i timen. Godt tilrettelagt for pendlere. I tillegg er det nå satt opp et ekspresstog kl 07:50 i hverdagene som bruker 24 minutter til Oslo S. Nærmeste bussholdeplass er Dampsaga allé, ca 250 meter fra leiligheten.
Avstander med bil:
Oslo Lufthavn ca. 10 min
Lillestrøm ca. 23 min
Strømmen ca. 24 min
Oslo S. ca. 35 min
Adkomst
Med bil: Adkomst via Ole Korslunds veg og Gerhard Vees veg.
Gangvei fra Algarheimsvegen via Fjellvegen, kun 600 meter fra sentrum.
Det vil bli skiltet med Krogsveen visningsskilt ved fellesvisninger.
Barnehager, skoler og fritid
Dersom skole- og barnehagetilbud er av betydning for kjøpet, ber vi om at det rettes en særskilt henvendelse til kommunen for oppdatert informasjon.
Beskrivelse av tomt
Eiertomt på 4 177 kvm som tilhører sameiet. Tomten er fellesareal, samt tilhørende uteplass til rekkehusene. Eiendommen er pent opparbeidet med plen, beplantning, drivhus, benker, interveier m.m.
Parkering
Det medfølger ikke parkeringsplass til leiligheten. 10 stk gjesteparkeringer i garasje. Ellers parkering etter områdets bestemmelser.
Utbygger opplyser at det er mulig å kjøpe en parkeringsplass for kr 300 000,-.
Vei, vann og avløp
Eiendommen har adkomst via privat vei med felles vedlikeholdsansvar for sameiet. Den private veien reguleres gjennom et veilag (inkl. i felleskostnadene).
Eiendommen er tilknyttet kommunalt ledningsnett via private stikkledninger.
Sameiet er ansvarlig for private stikkledninger til bygningen.
Regulerings-og arealplaner
Eiendommen er regulert til boligbebyggelse - blokkbebyggelse i henhold til reguleringsplan "B5-B6.5 Jessheim sørøst" datert 13.03.2018 med tilhørende reguleringsbestemmelser. Mindre vesentlig endring vedtatt 07.12.2021.
Det er regulert til blokkbebyggelse på naboeiendommen gnr/bnr 131/172 samt mot Allergot på gnr/bnr 131/156.
Allergotskogene er under også bygging. Området er generelt under utbygging, og byggestøy må derfor påregnes.
Utsnitt av plan med tilhørende bestemmelser kan fås ved henvendelse til megler.
Økonomi
Økonomi
Boligens kostnader
Kommunale avgifter er kr 2 140,- for inneværende år. I dette inngår gebyr for renovasjon. Vannforbruk faktureres direkte fra sameiet.
Fellesutgiftene er kr 1 817,- pr. mnd. og inkluderer: Grunnpakke TV/Internett, bygningsforsikring, drift og vedlikehold, forretningsførsel, styrehonorarer m.m. Estimert kostnad for varmtvann og oppvarming er ca. kr 1000,- pr. mnd.
Fellesutgiftene justeres normalt en til to ganger årlig i forhold til sameiets faktiske utgifter.
Selger har ikke bebodd eiendommen og har således ikke kjennskap til øvrige løpende utgifter for eiendommen.
Utgiftene er basert på nåværende eiers forbruk. Kjøper må selv tegne innboforsikring.
Formuesverdi
Ved hjelp av Skatteetatens kalkulator er formuesverdien for 2025 beregnet til kr 831 584,- når eier er fast bosatt på eiendommen.(primærbolig).
Skatteetatens kalkulator er benyttet da boligen er nyoppført.
Ved eventuell øvrig bruk av eiendommen (f.eks. fritidsbolig, pendlerbolig, utleieobjekt) var formuesverdien for 2025 kr 3 326 336,-.
Formuesverdien justeres normalt årlig. Se skatteetaten.no for mer informasjon om fastsettelse av formuesverdien.
Eiendomsskatt
Det er p.t ikke vedtatt eiendomsskatt for eiendommer i kommunen.
Opplysninger om fellesgjeld
Andel fellesgjeld er kr 31 000,- pr.
Total fellesgjeld for sameiet er kr 2 139 000,- pr. 05.10.2025 og lånevilkårene er:
Rentebetingelser: 5,55%
Lånets løpetid: 08.08.2025 - 05.08.2050.
Omkostninger
3 450 000,00 Prisantydning
31 000,00 Andel av fellesgjeld
--------------------------------------------------------
3 481 000,00 Pris inkl. fellesgjeld
Omkostninger
87 020,00 Dokumentavgift til staten (2,5% av kjøpesum)
9 950,00 Gjensidige Boligkjøperpakke (valgfri)
545,00 Tinglysing panterettsdokument
545,00 Tinglysing skjøte
--------------------------------------------------------
98 060,00 Omkostninger totalt
--------------------------------------------------------
3 579 060,00 Totalpris inkl. omkostninger
--------------------------------------------------------
Dersom sameiet har fellesgjeld, vil leilighetens andel av fellesgjelden komme i tillegg til kjøpesummen. Denne gjelden skal ikke innbetales i oppgjøret, men følger leiligheten.
Totalpris inkl. omkostninger forutsetter kjøp til prisantydning.
Det tas forbehold om endringer i avgifter og gebyrer.
Tilbud om lånefinansiering
Megler formidler gjerne kontakt med rådgiver hos vår samarbeidspartner BN Bank. De har konkurransedyktige betingelser samt rask og løsningsorientert behandling av din lånesøknad. Krogsveen mottar et honorar dersom lån opprettes.
Betalingsbetingelser
Kjøpesum inkludert omkostninger, samt pantedokument tilknyttet eventuelt lån, skal være disponibelt hos megler 2 virkedager før overtagelsen.
Annen viktig informasjon
Annen viktig informasjon
Eier
Marius Lind Halvorsen
Informasjon om sameiet
Eiendommen er seksjonert, og leiligheten er tilknyttet Skogmo Park Boligsameie 2, med sameiebrøk 436/49305.
Sameiet består av 59 leiligheter og 10 rekkehus.
Forretningsfører er BORI BBL.
Dugnad samt trappevask må påregnes.
Dyrehold er tillatt.
Sameiet har en gjesteleilighet som kan leies for kr 100,- pr. time.
Vi gjør videre oppmerksom på at det iht. eierseksjonsloven ikke er anledning å erverve mer enn 2 seksjoner i sameiet, her teller også eierskap via. firma, nærstående og familie. Kjøper har risikoen for at overskjøting på denne bakgrunn kan nektes av Statens Kartverk. I så fall vil kjøper uansett være forpliktet til å gjennomføre handelen, og oppgjør til selger vil finne sted tross manglende overskjøting.
Konferer med megler for mer informasjon.
Dokumenter for sameiet og kopi av seksjonsbegjæringen kan fås ved henvendelse til megler.
Overtakelse
Etter nærmere avtale.
Boligselgerforsikring
Det gjøres oppmerksom på at selger ikke har tegnet boligselgerforsikring som dekker selgers ansvar etter avhendingsloven. Likevel foreligger selgers egenerklæring og godkjent tilstandsrapport som interessenter må sette seg inn i før bud inngis. Eventuelle reklamasjoner må rettes direkte til selger.
Boligkjøperforsikring
Innen kontraktsmøtet må kjøper ta stilling til om det ønskes å bestille Boligkjøperpakken gjennom Gjensidige. I denne gunstige pakken er boligen ferdig forsikret og inkluderer rettshjelpsforsikring, også kalt Boligkjøperforsikring. Rettshjelpsforsikring gir trygghet og tilgang på profesjonell juridisk hjelp dersom det oppdages uventede feil eller mangler det første året etter overtagelse. Forsikringsselskapet behandler i så fall ethvert mangelskrav kjøper måtte ha overfor selger.
Boligkjøperpakken inkluderer bygningsforsikring for hus og hytte, innboforsikring, flytteforsikring og dobbel rentedekning - i situasjoner hvor kjøper ikke får solgt nåværende primærbolig.
Kjøper mottar ingen særskilt faktura for Boligkjøperpakken da kostnaden det første året legges til kjøpesummen for boligen. Det gjøres oppmerksom på Krogsveen mottar et honorar for denne formidlingen.
Produktark for Boligkjøperpakken ligger vedlagt i salgsoppgaven.
Dersom ikke boligkjøperpakke ønskes kan kun rettshjelpsforsikring, også kalt boligkjøperforsikring, tegnes særskilt via megler. Rettshjelpsforsikringen varer i 5 år fra overtagelse og leveres gjennom Gjensidige. Ta kontakt med megler for ytterligere informasjon.
Selskap og privatpersoner som driver med kjøp/salg/utvikling som ledd i egen næringsvirksomhet kan ikke tegne boligkjøperpakke eller rettshjelpsforsikring.
Budgivning
Forbrukerinformasjon om budgivning er vedlagt denne salgsoppgaven og er også på vår hjemmeside Krogsveen.no. Alle bud og budforhøyelser må inngis skriftlig. I tillegg må legitimasjon være fremlagt sammen med signatur fra budgiver.
Vi oppfordrer til å gi bud elektronisk via GI BUD-knappen på eiendommens hjemmeside på Krogsveen.no. Da vil samtlige vilkår bli oppfylt.
Eventuelle forhøyelser eller endringer av budet kan bekreftes pr SMS eller på e-post. Vi oppfordrer alltid til å kontakte megler pr. telefon i tillegg da forsinkelser i SMS og e-post kan forekomme.
For at budene skal kunne bli behandlet og videreformidlet skriftlig til alle involverte parter, må alle bud ha en tilstrekkelig lang akseptfrist, jf. eiendomsmeglingsforskriften § 6-3.
Selger må også skriftlig akseptere budet før aksept kan formidles til budgiver. Akseptfrist bør derfor være på minimum 30 minutter, og budforhøyelser må derfor skje i god tid før fristens utløp.
Bud i forbrukerforhold kan uansett ikke settes med kortere frist enn kl. 12.00 første virkedag etter siste annonserte visning. I tillegg kan ikke budet ha forbehold om at det skal holdes hemmelig ovenfor øvrige interessenter. Megler har iht lov om eiendomsmegling ikke anledning til å videreformidle disse budene, og de vil dermed heller ikke bli journalført.
Etter at eiendommen er solgt vil kjøper og selger få tilsendt budjournal. Øvrige budgivere kan få utlevert kopi av budjournalen i anonymisert form.
Hvitvaskingsreglene
I henhold til lov om hvitvasking og terrorfinansiering har megler plikt til å gjennomføre kontrolltiltak overfor kunder, herunder fullmektiger. Dette innebærer bl.a. å bekrefte kunders og reelle rettighetshaveres identitet på bakgrunn av fremvist gyldig legitimasjon eller på annen godkjent måte, samt å innhente opplysninger om kundeforholdets formål og tilsiktede art.
Dersom slike kundetiltak ikke kan gjennomføres, kan megler ikke etablere kundeforholdet eller utføre transaksjonen.
Hvis kjøper ikke bidrar til gjennomføring av kundekontrollen og dette fører til at transaksjonen blir forsinket eller ikke kan gjennomføres, vil dette ansees som mislighold av avtalen og gi selger rettigheter etter avhendingslova kapittel 5. I tilfeller der selger ikke bidrar til gjennomføring av løpende kundekontroll underveis i oppdraget, er det selger som misligholder sine forpliktelser etter avtalen og gi kjøper rettigheter etter avhendingslovens kapittel 4. Partene er selv ansvarlige for eventuelle kostnader og ansvar dette kan medføre. Eiendomsmegleren eller eiendomsmeglingsforetaket kan ikke holdes ansvarlig for de konsekvenser dette vil kunne få for partene eller andre som har interesser i eiendomshandelen.
Kjøper oppfordres til å innbetale kjøpesummen som ikke kommer fra låneinstitusjon i én samlet innbetaling fra egen konto i norsk bank. Megler har plikt til å melde fra til Økokrim om eiendomshandler som fremstår som mistenkelige. Melding sendes Økokrim uten at partene varsles.
Personopplysningsloven
I henhold til personopplysningsloven gjør vi oppmerksom på at interessenter kan bli registrert for videre oppfølging.
Lovanvendelse
Generelle bestemmelser
Salgsoppgaven er basert på de opplysningene selger har gitt til megler, den bygningssakyndiges tilstandsrapport, samt opplysninger innhentet fra kommunen, Kartverket og andre tilgjengelige kilder. Det er viktig at kjøper setter seg grundig inn i alle salgsdokumentene, herunder salgsoppgave, tilstandsrapport og selgers egenerklæring. Kjøper anses kjent med forhold som er tydelig beskrevet i salgsdokumentene, og slike forhold kan ikke påberopes som mangler. Dette gjelder uavhengig av om kjøper har lest dokumentene. Alle interessenter oppfordres til å undersøke eiendommen nøye, gjerne sammen med fagkyndig før bud inngis. Kjøper som velger å kjøpe usett kan ikke gjøre gjeldende som mangel noe han burde blitt kjent med ved undersøkelsen.
Dersom det er behov for avklaringer, anbefaler vi at interessenter rådfører seg med eiendomsmegler eller egne rådgivere før det legges inn bud.
En bolig som har blitt brukt i en viss tid, har vanligvis blitt utsatt for slitasje og skader kan ha oppstått. Slik bruksslitasje må kjøper regne med, og det kan avdekkes enkelte forhold etter overtakelse som nødvendiggjør utbedringer. Normal slitasje og skader som nødvendiggjør utbedring, er innenfor hva kjøper må forvente og vil ikke utgjøre en mangel.
Kjøper og selgers rettigheter og plikter reguleres av avtalen mellom partene, samt informasjonen som har vært tilgjengelig for kjøperen i forbindelse med handelen. Avtalen utfylles av avhendingsloven, og det gjelder ulike avtalevilkår avhengig av om kjøper er forbrukerkjøper eller ikke. Dette er nærmere beskrevet nedenfor.
På grunn av ulike avtalevilkår kan selger vurdere bud fra en som ikke er forbruker, ulikt fra en forbrukers bud. Dersom kjøper ikke er forbruker, er selger sitt mulige mangelsansvar begrenset fordi eiendommen selges "som den er". Selger kan ikke ta «som den er»- forbehold overfor en forbrukerkjøper. Selv et lavere bud fra en som ikke er forbruker kan foretrekkes fordi begrensningen i mulig mangelsansvar kan ha egenverdi for selger. Selger står fritt til å forkaste eller akseptere ethvert bud, og er for eksempel ikke forpliktet til å akseptere høyeste bud.
Budgiver skal i budskjema avgi egenerklæring om budgiver er forbruker eller næringsdrivende/ person som hovedsakelig handler som ledd i næringsvirksomhet. Budgivere får informasjon dersom andre bud er inngitt av en som ikke er forbruker.
Forbrukerkjøp - definisjon
Med forbrukerkjøp menes kjøp av eiendom når kjøperen er en fysisk person som ikke hovedsakelig handler som ledd i næringsvirksomhet.
Forbruker – avtalevilkår
Eiendommen har en mangel dersom den ikke er i samsvar med kravene som følger av avtalen, eller det foreligger brudd på bestemmelsene i avhendingsloven §§ 3-2 til 3-8. Hvis eiendommen ikke er i samsvar med det kjøperen må kunne forvente ut ifra alder, type og synlig tilstand, kan det være grunnlag for mangelskrav. Det samme gjelder hvis det er holdt tilbake eller gitt uriktige opplysninger om eiendommen. Dette gjelder likevel bare dersom man kan gå ut ifra at det virket inn på avtalen at opplysningen ikke ble gitt eller at mangelskravet ikke blir rettet i tide på en tydelig måte.
Boligen kan ha en mangel etter avhendingsloven § 3-3 andre ledd, dersom det er avvik mellom opplyst og faktisk innvendig areal, forutsatt at avviket er på 2% eller mer og minimum 1 kvm.
Ved beregning av et eventuelt prisavslag eller erstatning må kjøper selv dekke tap/kostnader opptil et beløp på kr 10 000 (egenandel).
Ikke-forbruker (næringsdrivende) – definisjon
Hvis kjøper er en juridisk person, eller en fysisk person som hovedsakelig handler som ledd i næringsvirksomhet, vil kjøpet ikke anses som et forbrukerkjøp.
Ikke-forbruker – avtalevilkår
Eiendommen har en mangel dersom den ikke er i samsvar med kravene som følger av avtalen.
Eiendommen selges «som den er», og selgers ansvar utover det konkret avtalte er da begrenset etter avhendingsloven § 3-9, første ledd andre setning.
Avhendingsloven § 3-3 andre ledd fravikes, og hvorvidt boligens arealsvikt utgjør en mangel vurderes etter avhendingsloven § 3-8.
Informasjon om kjøpers undersøkelsesplikt, herunder oppfordringen om å undersøke eiendommen nøye, gjelder også for kjøpere som ikke anses som forbrukere.
Det forutsettes at hjemmel overføres til kjøper. Hvis kjøper ikke ønsker hjemmelsoverføring av eiendommen, må det tas forbehold om dette i budet.
Meglers vederlag
Meglers vederlag betales av selger og er avtalt til:
Fastpris: kr 30 000,-
Vederlag:
Kontroll av hjemmel og heftelser kr 2 900,-
Markedsføringspakke kr 27 400,-
Oppgjør kr 7 500,-
Tilrettelegging kr 17 000,-
Visninger 2.500 pr stk / 3 stk inkl.
Utlegg:
Eierskiftegebyr Bori kr 6 570,-
Innhenting av informasjon forretningsfører Bori kr 5 000,-
Innhenting av offentlig opplysninger kr 3 056,-
Tinglysing sikring kr 545,-
Andre utgifter:
AX tilstandsrapport leilighet kr 7 950,-
Foto kr 7 980,-
Opplysninger om oppdraget
Oppdragsnummer 63-0257/25
Eiendomsmegler Krogsveen AS, avd. Jessheim
Skovly Promenade 10, 2066, JESSHEIM
950 007 613
Oppdragets KR-kode KR63.25257
Dato
Sist oppdatert: 17. februar 2026 kl. 13:12
Dokumenter
Dokumenter
PDF – 935 KB
PDF – 3 MB
PDF – 627 KB
PDF – 312 KB
PDF – 29 KB
PDF – 127 KB
PDF – 392 KB
Område
Legg til steder som er viktige for deg
Visning
For å delta på visning, ber vi om at du melder deg på. Da sikrer vi at du får nødvendig informasjon og at det er satt av tilstrekkelig med tid. Kontakt megler dersom annet tidspunkt ønskes. Husk å lese salgsoppgaven før visningen, så du stiller forberedt. NB. Visning utgår dersom det ikke er noen påmeldte.
Ønsker du kun å bli holdt orientert, kan du fra eiendommens hjemmeside få varsel om solgtpris, eller kontakte megler.
Lurer du på noe?
Unngå doble boligrenter
Vi tilbyr gunstig forsikring.
Vurderer du utleie?
Få et tilbud fra Utleie KrogsveenHva koster lånet?
Sjekk estimert lånekostnadVil du varsles om lignende boliger?
Ved å lagre ditt boligsøk hos oss får du beskjed når vi har en bolig som ligner denne, før den legges ut på markedet!

