Bøveien 20
7 685 000 kr
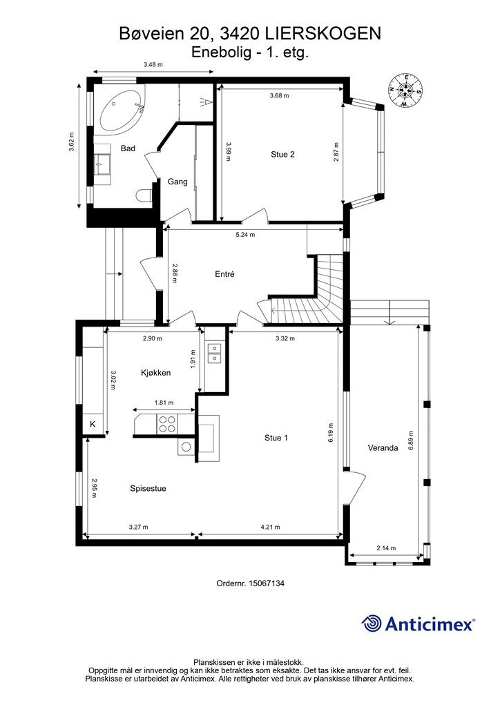
184 m²
3 soverom
Solgt
Lierskogen
Stor enebolig m/attraktiv beliggenhet. Solceller og vannbåren grunnvarme. Veranda og stor hage. Dobbelgarasje m/anneks.
Prisantydning
7 685 000 krOmkostninger
213 110 krTotalpris
7 898 110 kr
Pris
Bruksareal
273 m²BRA-I (internt bruksareal)
184 m²BRA-E (eksternt bruksareal)
89 m²TBA (terrasse-balkongareal)
18 m²
Areal
Etasje
3Byggeår
1940Soverom
3 soveromBad
1 badTomteareal
1 300 m² (eiet)Type
Enebolig - FrittliggendeEierform
EietFasiliteter
Garasje/P-plass og Balkong/TerrasseEnergimerke
Gul G
Nøkkelinfo
Unngå doble boligrenter
Vi tilbyr gunstig forsikring.
Vurderer du utleie?
Få et tilbud fra Utleie KrogsveenHva koster lånet?
Sjekk estimert lånekostnadBeskrivelse
Kort om eiendommen
Velkommen til Bøveien 20
Her finnes en eldre drømmeeiendom av de sjeldne! Huset er romslig, mens garasjen m/anneks byr på verdifulle tilleggsarealer.
Tilbygget med bl.a. nytt bad i 2018.
Grunnvarmeanlegg fra 2018 m/vannbåren gulvvarme og radiatorer.
Solcelleanlegg fra 2021
De fleste vinduer utskiftet 2004-2024.
Enkelte rom og bygningsdeler har et tidsmessig oppgraderingsbehov.
Tomten er ca. 1,3 ,mål. Stor nostalgisk hage med god boltreplass. Bed, planter og frukttrær. Hyggelig overbygget terrasse med nydelig utsikt og gode solforhold.
Eiendommen ligger attraktivt til i utkanten av et nyere byggefelt, og er svært familievennlig. Nærliggende turterreng og skiløyper. Gangavstand til skole, barnehage og kollektivtilbud mot Drammen/Oslo. Kort vei til E18.
Område
Legg til steder som er viktige for deg
På flyttefot? Tenk kjøp og salg samtidig.
Få din egen rådgiver gjennom hele kjøps- og salgsprosessen. Det starter med en verdivurdering.
Unngå doble boligrenter
Vi tilbyr gunstig forsikring.
Vurderer du utleie?
Få et tilbud fra Utleie KrogsveenHva koster lånet?
Sjekk estimert lånekostnadVil du varsles om lignende boliger?
Ved å lagre ditt boligsøk hos oss får du beskjed når vi har en bolig som ligner denne, før den legges ut på markedet!
På flyttefot? Slik gjør vi det enklere for deg
Skreddersydd flyttepakke
Vi fikser håndverkere, vask, pakking, lagring og transport, og legger ut for utgiftene underveis.
Hjelp med både kjøp og salg
Hos oss har du din egen rådgiver gjennom hele kjøps- og salgsprosessen.
Hjelp til finansiering
Vårt samarbeid med BN Bank sikrer deg rask og løsningsorientert hjelp, til konkurransedyktige betingelser.




