Sagtunet 1B
2 800 000 kr
61 m²
2 soverom
Solgt

Årnes
Stilren og romslig 3-roms leilighet med god standard | Stor og solrik terrasse | Barnevennlig
Prisantydning
2 800 000 krAndel fellesgjeld
66 903 krOmkostninger
82 690 krTotalpris
2 949 593 kr
Pris
Bruksareal
64 m²BRA-I (internt bruksareal)
61 m²BRA-E (eksternt bruksareal)
3 m²TBA (terrasse-balkongareal)
25 m²
Areal
Etasje
1Byggeår
2005Soverom
2 soveromBad
1 badType
EierleilighetEierform
EierseksjonFellesutgifter
3 433 krEnergimerke
Rød C
Nøkkelinfo
Unngå doble boligrenter
Vi tilbyr gunstig forsikring.
Vurderer du utleie?
Få et tilbud fra Utleie KrogsveenHva koster lånet?
Sjekk estimert lånekostnadBeskrivelse
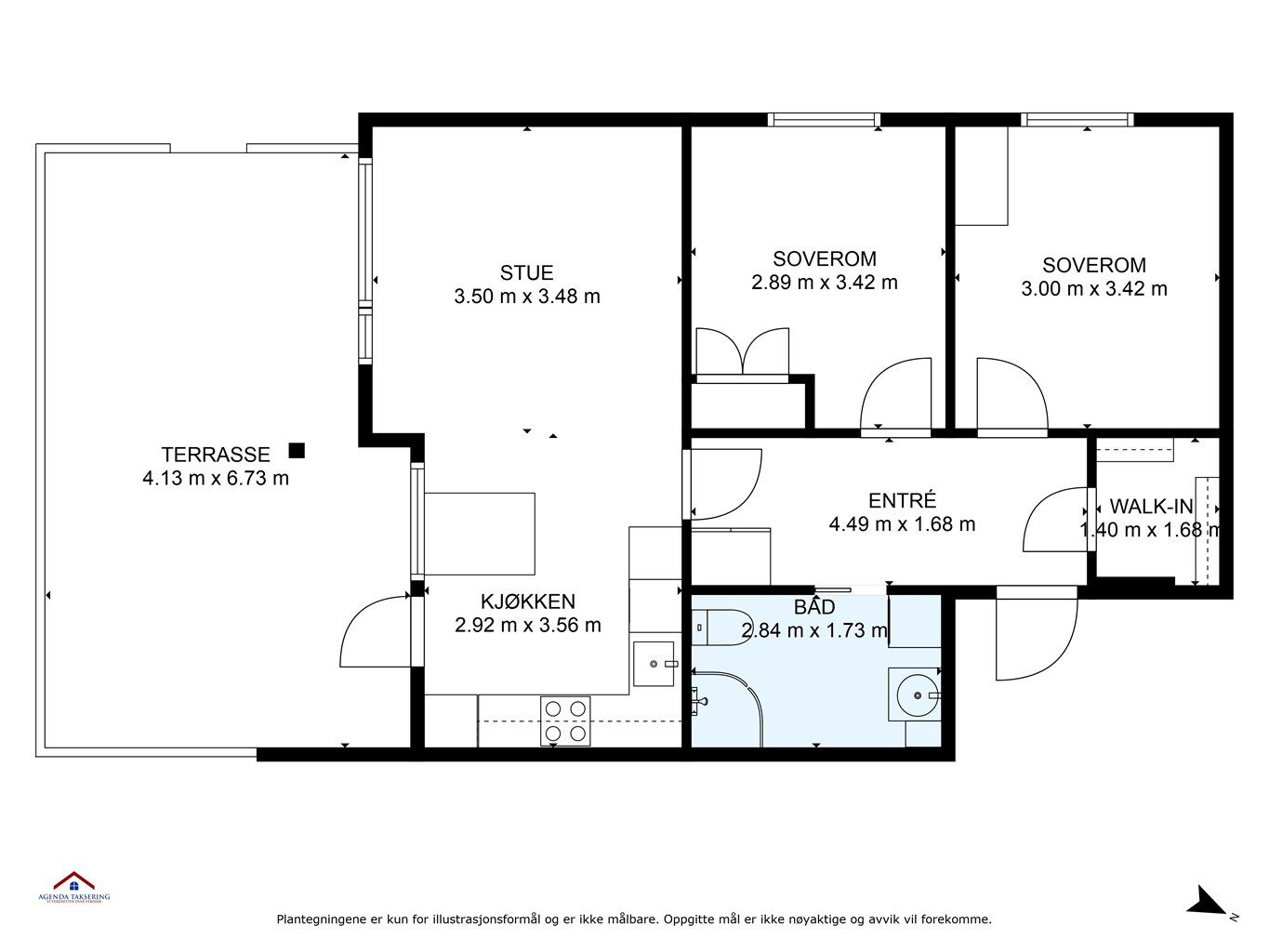
Kort om eiendommen
Velkommen til Sagtunet 1B - en innbydende og flott 3-roms eierleilighet med god beliggenhet på Årnes. Sameiet har en rolig og tilbaketrukken beliggenhet med kort vei til barnehage, skole, buss, tog og Årnes sentrum.
Leiligheten holder en gjennomgående god standard, med blant annet nytt gulv i entré og stue/kjøkken og Ikea-kjøkken fra 2020 med integrerte hvitevarer. Lekker spilevegg i stua som gir et moderne uttrykk. Stor og solrik terrasse på ca. 25 kvm. Flislagt bad med gulvvarme.
To romslige soverom på 9,9 og 10,2 kvm. God lagringsplass i innvendig og utvendig bod. Innvendig bod er innredet som en garderobe.
Leiligheten har fast parkeringsplass, og kan disponere fire elbilladere i sameiet.
Område
Legg til steder som er viktige for deg
På flyttefot? Tenk kjøp og salg samtidig.
Få din egen rådgiver gjennom hele kjøps- og salgsprosessen. Det starter med en verdivurdering.
Unngå doble boligrenter
Vi tilbyr gunstig forsikring.
Vurderer du utleie?
Få et tilbud fra Utleie KrogsveenHva koster lånet?
Sjekk estimert lånekostnadVil du varsles om lignende boliger?
Ved å lagre ditt boligsøk hos oss får du beskjed når vi har en bolig som ligner denne, før den legges ut på markedet!

