Statsråd Ihlens vei 80
5 800 000 kr
222 m²
3 soverom
Solgt

Strømmen
Eldre tomannsbolig med stort potensial – oppgraderingsbehov | Solrik tomt | Gangavstand til sentrum, skoler, tog + buss
Prisantydning
5 800 000 krOmkostninger
165 990 krTotalpris
5 965 990 kr
Pris
Bruksareal
225 m²BRA-I (internt bruksareal)
222 m²BRA-E (eksternt bruksareal)
3 m²TBA (terrasse-balkongareal)
28 m²
Areal
Byggeår
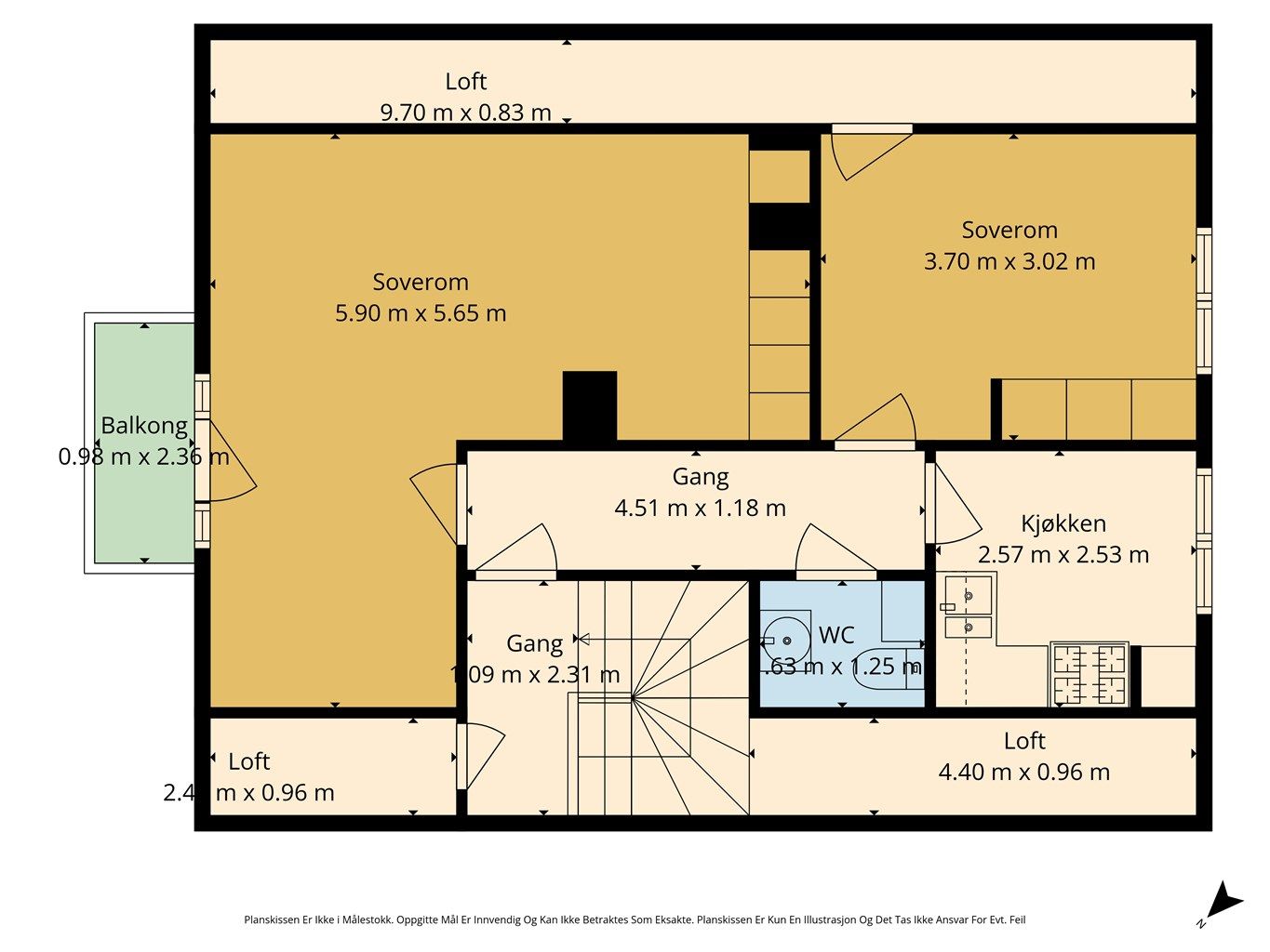
1963Soverom
3 soveromBad
2 badTomteareal
691 m² (eiet)Type
Hel 2-mannsboligEierform
EietFasiliteter
Garasje/P-plass og Balkong/TerrasseEnergimerke
Oransje G
Nøkkelinfo
Unngå doble boligrenter
Vi tilbyr gunstig forsikring.
Vurderer du utleie?
Få et tilbud fra Utleie KrogsveenHva koster lånet?
Sjekk estimert lånekostnadBeskrivelse
Kort om eiendommen
Velkommen Statsråd Ihlens vei 80 - Tomannsbolig fra 1963 med gode muligheter for deg som ønsker å sette ditt eget preg på boligen.
Eiendommen har en eldre standard og fremstår med behov for oppgradering og modernisering, men byr samtidig på en praktisk planløsning og fin tomt.
- To kjøkken – gir fleksibilitet for utleie eller generasjonsbolig
- Tre soverom – med gode størrelser
- Romslige oppholdsrom – naturlig lys og muligheter for tilpasning
Dette er en eiendom med sjel og historie, og med riktig oppussing kan den bli et flott hjem for nye generasjoner.
Beliggenheten er rolig og etablert, med nærhet til skole, barnehage, kollektivtransport og butikk.
Her får du muligheten til å skape noe helt eget – enten du ønsker å bo selv, leie ut deler av boligen eller utvikle eiendommen videre.
Område
Legg til steder som er viktige for deg
Megler

Eskil R. Tyskeberget
Eiendomsmegler
På flyttefot? Tenk kjøp og salg samtidig.
Få din egen rådgiver gjennom hele kjøps- og salgsprosessen. Det starter med en verdivurdering.
Unngå doble boligrenter
Vi tilbyr gunstig forsikring.
Vurderer du utleie?
Få et tilbud fra Utleie KrogsveenHva koster lånet?
Sjekk estimert lånekostnadVil du varsles om lignende boliger?
Ved å lagre ditt boligsøk hos oss får du beskjed når vi har en bolig som ligner denne, før den legges ut på markedet!
