Kongsgård alle 4A
3 690 000 kr
70 m²
2 soverom
Solgt

Lund
Lekker 3(4)-roms endeleilighet med solrik beliggenhet og stor innglasset balkong – bad fra 2023 og kjøkken fra 2018
Prisantydning
3 690 000 krAndel fellesgjeld
361 046 krOmkostninger
19 252 krTotalpris
4 070 298 kr
Pris
Bruksareal
99 m²BRA-I (internt bruksareal)
70 m²BRA-E (eksternt bruksareal)
18 m²
Areal
Etasje
2Byggeår
1959Soverom
2 soveromBad
1 badType
AndelsleilighetEierform
AndelFellesutgifter
5 764 krEnergimerke
Rød F
Nøkkelinfo
Unngå doble boligrenter
Vi tilbyr gunstig forsikring.
Vurderer du utleie?
Få et tilbud fra Utleie KrogsveenHva koster lånet?
Sjekk estimert lånekostnadBeskrivelse
Kort om eiendommen
Krogsveen presenterer Kongsgård allé 4A!
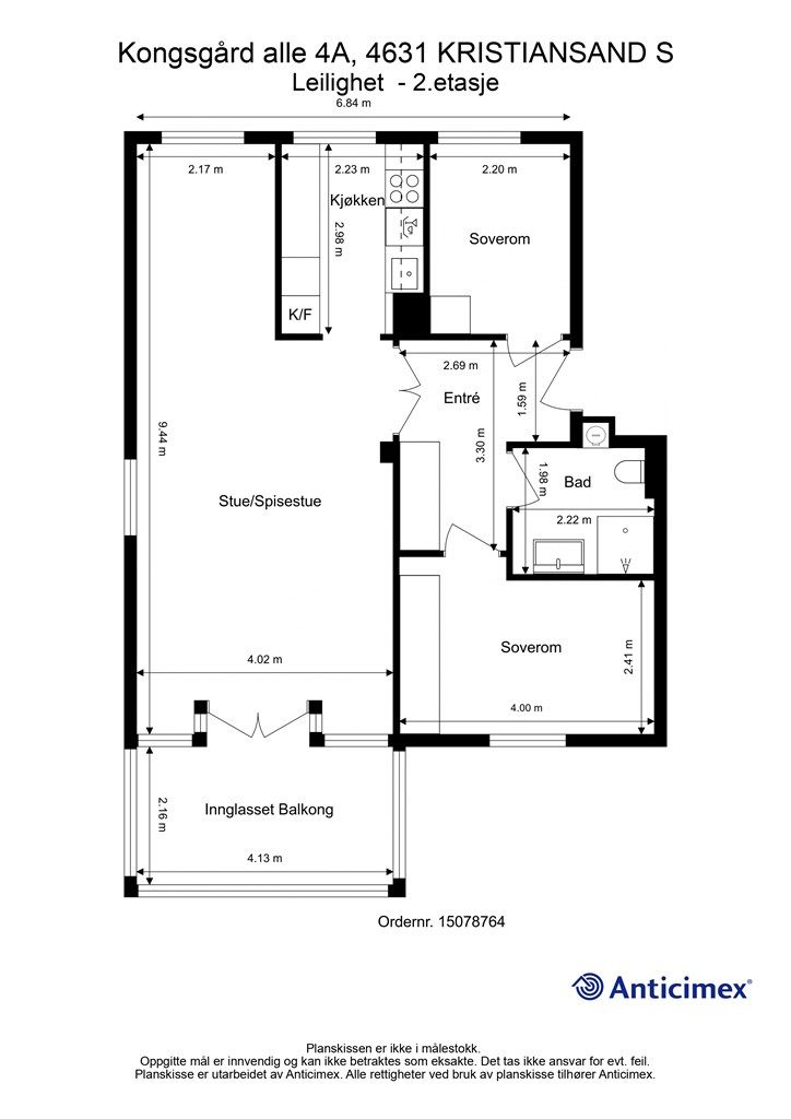
Dette er en svært pen og romslig 3-roms endeleilighet med rolig beliggenhet på populære og attraktive Lund. Leiligheten byr på separat kjøkken oppusset i 2018, bad renovert i 2023, to gode soverom, og en spisestue som flere har omgjort til ekstra soverom. Videre er det stue med utgang til innglasset sørvestvendt balkong med god plass til møblement. Leiligheten fremstår meget innbydende og er malt i flotte og lyse farger. Det er gateparkering rett utenfor blokken.
Fra boligen er det kort avstand til bussforbindelse og Coop Prix, samt gåavstand til både Kvadraturen, UiA, treningsstudio og alt du ellers har behov for i hverdagen. Leiligheten passer ypperlig til blant andre
førstegangsetablerere, enslige og par.
Velkommen til visning!
Område
Legg til steder som er viktige for deg
På flyttefot? Tenk kjøp og salg samtidig.
Få din egen rådgiver gjennom hele kjøps- og salgsprosessen. Det starter med en verdivurdering.
Unngå doble boligrenter
Vi tilbyr gunstig forsikring.
Vurderer du utleie?
Få et tilbud fra Utleie KrogsveenHva koster lånet?
Sjekk estimert lånekostnadVil du varsles om lignende boliger?
Ved å lagre ditt boligsøk hos oss får du beskjed når vi har en bolig som ligner denne, før den legges ut på markedet!


























