Odelsvegen 24
2 890 000 kr
49 m²
1 soverom
Solgt

Jessheim sentrum
Pen og romslig 2-roms eierleilighet med sentral beliggenhet på Jessheim | Nærhet til tog/buss og turområder
Prisantydning
2 890 000 krAndel fellesgjeld
11 516 krOmkostninger
83 560 krTotalpris
2 985 076 kr
Pris
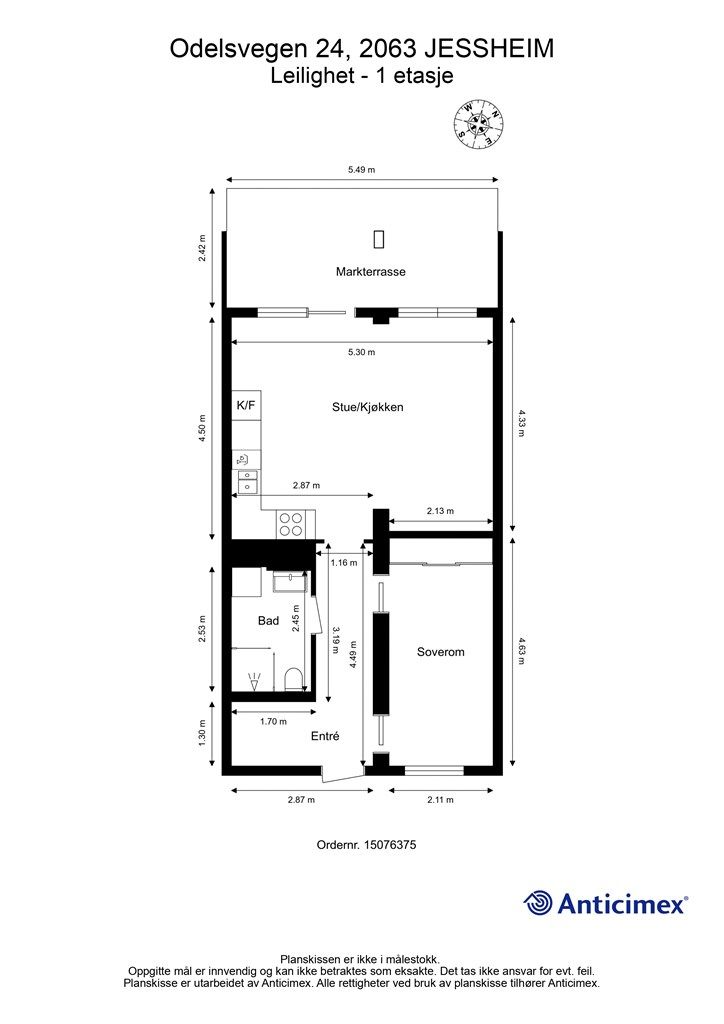
Bruksareal
57 m²BRA-I (internt bruksareal)
49 m²BRA-E (eksternt bruksareal)
8 m²TBA (terrasse-balkongareal)
13 m²
Areal
Etasje
1Byggeår
2016Soverom
1 soveromBad
1 badType
EierleilighetEierform
EierseksjonFasiliteter
Heis og Balkong/TerrasseFellesutgifter
3 408 krEnergimerke
Lysegrønn B
Nøkkelinfo
Unngå doble boligrenter
Vi tilbyr gunstig forsikring.
Vurderer du utleie?
Få et tilbud fra Utleie KrogsveenHva koster lånet?
Sjekk estimert lånekostnadBeskrivelse
Kort om eiendommen
Krogsveen presenterer Odelsvegen 24 - En innbydende leilighet med sentral beliggenhet. Her har du gangavstand til alle bymessige fasiliteter, og kan nyte late dager på solrik terrasse.
Leiligheten holder en gjennomgående god standard, og har et pent flislagt bad, stilrent kjøkken med integrerte og frittstående hvitevarer. Oppvarming og varmtvann via fjernvarme og er inkludert i felleskostnadene med A-konto. Fra stua er det utgang til terrasse på ca. 13 kvm. Leiligheten disponerer en romslig sportsbod i kjeller på ca. 8 kvm.
Odelsvegen 24 har en sentral beliggenhet på Jessheim med umiddelbar nærhet til Coop OBS, Kiwi og søndagsåpen Joker. Videre kun 500 meter til Jessheim sentrum.
Velkommen til visning!
Område
Legg til steder som er viktige for deg
På flyttefot? Tenk kjøp og salg samtidig.
Få din egen rådgiver gjennom hele kjøps- og salgsprosessen. Det starter med en verdivurdering.
Unngå doble boligrenter
Vi tilbyr gunstig forsikring.
Vurderer du utleie?
Få et tilbud fra Utleie KrogsveenHva koster lånet?
Sjekk estimert lånekostnadVil du varsles om lignende boliger?
Ved å lagre ditt boligsøk hos oss får du beskjed når vi har en bolig som ligner denne, før den legges ut på markedet!

