Solbergfaret 14
4 150 000 kr
132 m²
3 soverom
Komplett salgsoppgave

Tvedestrand - Glastadheia
Sjønær og familievennlig enebolig på Glastadheia - Flott utsikt, båtplass og romslig tomt - Barnevennlig omgivelser.
Prisantydning
4 150 000 krOmkostninger
124 740 krTotalpris
4 274 740 kr
Pris
Bruksareal
132 m²BRA-I (internt bruksareal)
132 m²TBA (terrasse-balkongareal)
91 m²
Areal
Byggeår
2009Soverom
3 soveromTomteareal
1 156 m² (eiet)Type
Enebolig - FrittliggendeEierform
EietFasiliteter
Balkong/TerrasseEnergimerke
Oransje B
Nøkkelinfo
Unngå doble boligrenter
Vi tilbyr gunstig forsikring.
Vurderer du utleie?
Få et tilbud fra Utleie KrogsveenHva koster lånet?
Sjekk estimert lånekostnadBeskrivelse
Kort om eiendommen
Velholdt, tidløs og fin bolig på romslig tomt med attraktiv beliggenhet på Glastadheia.
Tomten ligger høyt og fritt med flott utsikt mot Tvedestrandsfjorden, og byr på solrike, rolige og barnevennlige omgivelser.
Meget sentralt, med kort avstand til barnehage, skole og sentrum, samt kort gangvei ned til tilhørende båtplass som er på 3,5 m.
Boligen går over to etasjer og inneholder stue med peisovn, kjøkken med varmepumpe, bad, vaskerom og soverom i hovedplan. Loftsetasje med loftsstue, to soverom og to uinnredede rom. Det ene rommet er tilrettelagt for bad hvor alt av rørføringer ligger klart. Mulighet for ekstra soverom da dette var tiltenkt ut i fra opprinnelige tegninger.
Eiendommen har en fin kombinasjon av luft, lys og utsyn, som gir en ekstra følelse av frihet og sørlandsidyll.
Innhold og byggemåte
Innhold og byggemåte
Eiendommen
Solbergfaret 14, 4905 TVEDESTRAND
Kommunenummer 4213, gårdsnummer 32, bruksnummer 126
Innhold
Totalt bruksareal BRA: 132 kvm
BRA-i:
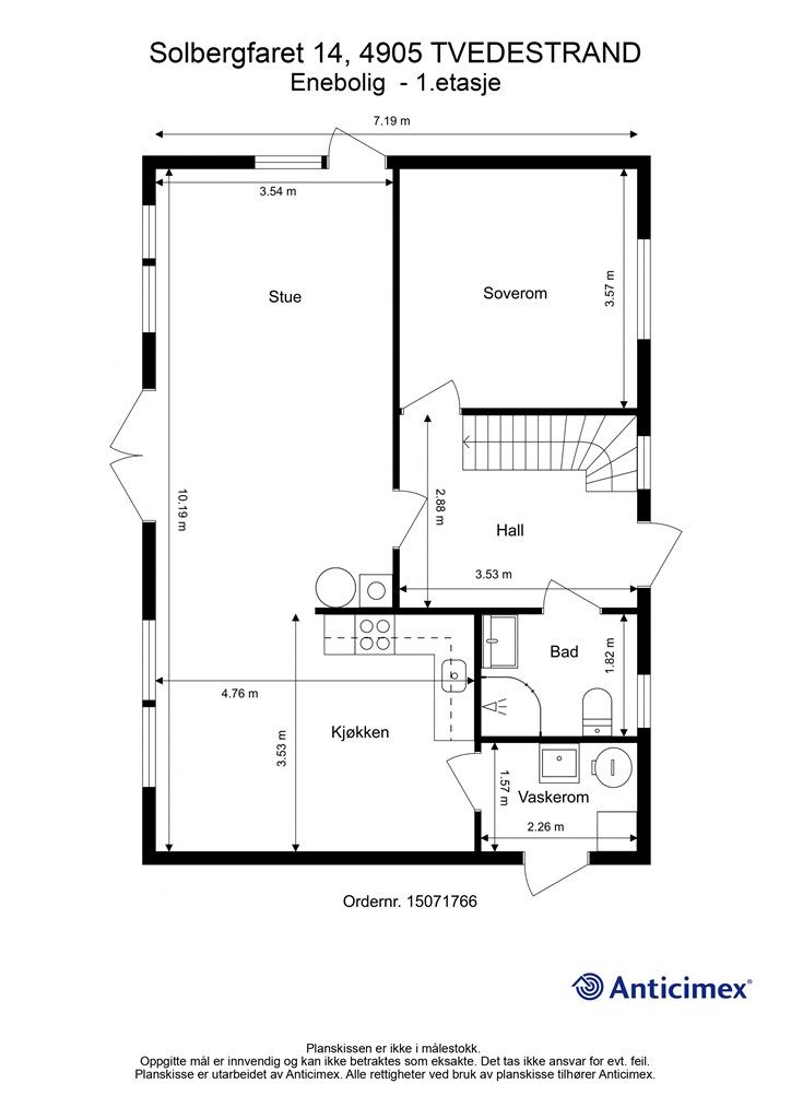
1. etasje 73 kvm: Hall, bad, vaskerom, soverom, stue og kjøkken
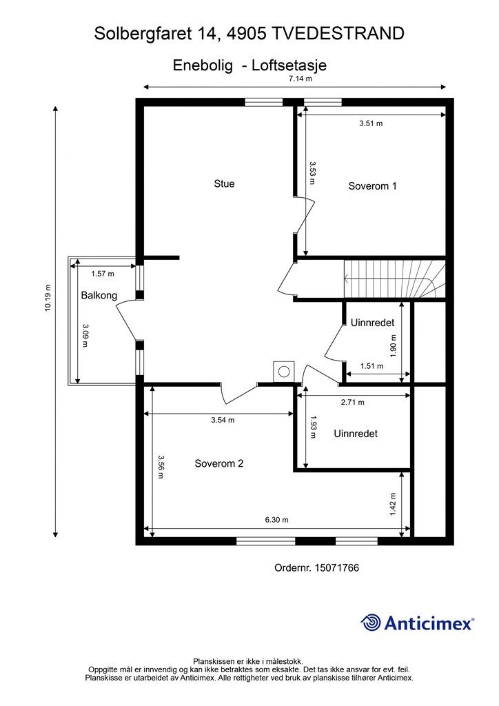
2. etasje 59 kvm: Trapperom, stue, to soverom og to uinnredede rom.
Åpent areal:
1. etasje 86 kvm: Terrasse
2. etasje 5 kvm: Balkong
Loftsetasjen har et totalt gulvareal (GUA) på 68m2, men grunnet skråtak/lav takhøyde er 59m2 av arealet måleverdig som bruksareal. De delene av
arealene som har lav himlingshøyde (ALH) utgjør 9m2.
Arealer bak knevegger og lignende (som ikke er måleverdige) er ikke medtatt som areal med lav himlingshøyde (ALH). Se mer utfyllende
informasjon i rapportens premisser om areal.
Vedlagte plantegninger er ikke målbare. De oppgitte arealer er hentet fra rapport med befaringsdato 21.05.25 utført av Halvard Grina. Arealene er beregnet og rom er definert etter dagens faktiske bruk, uavhengig av hva som er godkjent av bygningsmyndighetene. Det foreligger byggegodkjente tegninger. 2. etasje har på byggetegning tegnet inn 3 soverom mens det i dag er 2 soverom og større loftstue. Der det er tegnet inn bad i 2. etasje er det fortsatt uinnredet. Se pkt. ferdigattest.
Byggemåte
Selger har fått utarbeidet en tilstandsrapport, dvs. en teknisk gjennomgang av boligen hvor eventuelle avvik, risiko for kjøper og prisoverslag for hva som bør gjøres av oppgradering, er skissert. Se særskilt TGIU (tilstandsgrad ikke undersøkt), samt TG2 og TG3 som viser hva som er boligens normale slitasje, alder og type, hva som er avvik fra dette og hva som bør/må utbedres. Rapporten og selgers egenerklæring er en del av salgsoppgaven og må leses nøye før bud inngis. Kjøper overtar ansvaret for de opplysninger som fremkommer av salgsdokumentasjonen, og kan ikke gjøre gjeldende som mangel noe som burde vært kjent eller som ikke kan anses å ha betydning for avtalen.
Enebolig med 1.etasje og loftsetasje. Tomt opparbeidet med blant annet gruslagt innkjørsel, terrasse og plenareal. Utgang fra stue loftsetasje til
balkong.
Boligen er oppført med støpt plate med ringmurselementer. Fundamentert på ukjent byggegrunn. Yttervegger av trekonstruksjoner. Fasadene er
kledd med stående trekledning. Etasjeskillere av trekonstruksjoner. Saltak med kvist i trekonstruksjoner. Yttertak er utvendig tekket med takstein.
Vinduer og terrassedører med karmer av tre, og tre-lags glass. Oppvarming med gulvvarme, luft til luft varmepumpe og vedfyring. Balansert
ventilasjon.
Tg 1: 87%
Tg 2: 8%
Tg 3: 0%
Tg IU: 6%
Følgende har fått tg 2: (Det henvises til sidetall i tilstandsrapport for detaljer):
Bad 1. etasje: Sanitærutstyr/innredning, viser til rapport side 8. Vaskerom 1. etasje: Overflater gulv, membran/tettsjikt og overgang til sluk; se side 9 i rapport. Innvendige trapper; viser til side 11. Teknisk anlegg: Andre VVS-tekniske anlegg; se side 11. Yttertak: Beslag, renner, nedløp og snøfangere; viser til side 13. Terrasse/platting: Rekkverkshøyden er under 1,0 meter. Avvik fra dagens byggteknisk forskrift. Tiltak
anbefales med tanke på sikkerhet. Se side 13.
Sammendrag selgers egenerklæring (Viser til spørsmål i egenerklæringsskjema):
7. Kjenner du til om det er/har vært skjevheter/setningsskader, f. eks. riss/sprekker i mur, skjeve gulv eller
lignende? Ja. Riss i fibersementplater på ringmur
9. Kjenner du til om det er/har vært insekter/skadedyr i boligen som f.eks. rotter, mus, skjeggkre, maur eller
lignende? Ja. Har sett maur og skjeggkre i bolig.
11. Kjenner du til om det har vært utført arbeider på terrasse/garasje/tak/fasade? Bygd terrasse sjøl.
12. Kjenner du til om det er/har vært utført arbeider på el-anlegget eller andre installasjoner (f.eks. oljetank,
sentralfyr, ventilasjon)? Montert noen lamper og stikk
12.1 Foreligger det samsvarserklæring for hele eller deler av det elektriske anlegget (i henhold til forskrift om
lavspenningsanlegg)? Sluttkontroll når huset var ferdig bygd
15. Kjenner du til om ufaglærte har utført arbeider som normalt bør utføres av faglærte personer utover det
som er nevnt tidligere (f.eks. på drenering, murerarbeid, tømrerarbeid etc.)? Delvis innredet 2. etasje sjøl.
17. Kjenner du til forslag til- eller vedtatte reguleringsplaner, andre planer, nabovarsel, eller offentlige
vedtak som kan medføre endringer i bruken av eiendommen eller eiendommens omgivelser? Signert nabovarsel for at nabo skal bygge garasje.
20. Kjenner du til om det er innredet/bruksendret/bygget ut kjeller eller loft eller andre deler av boligen? 2. etasje delvis innredet
Standard
Eiendommen fremstår som velholdt med god standard.
Boligen går over to etasjer og har en gjennomtenkt planløsning som passer godt for både familier og par.
I første etasje finner du en entré/hall, bad, soverom, stue, kjøkken og vaskerom.
Badet er utstyrt med dusjnisje, servant i innredning og toalett. Stuen byr på to utganger til hagen samt en koselig peisovn som gir ekstra varme og stemning. Kjøkkenet har montert varmepumpe og innredning med integrert stekeovn og koketopp – i tillegg medfølger oppvaskmaskin. Vaskerommet har utslagsvask, opplegg for vaskemaskin og en egen utgang til hagen. Garderobeskap på soverom som medfølger.
Andre etasje er innredet med en romslig loftsstue, to soverom og to uinnredede rom. Det ene rommet er tilrettelagt for å kunne bygges om til bad, med rørføringer allerede på plass. På det ene soverommet finnes det garderobeskap, og loftsstuen har utgang til en lufteveranda med nydelig, fritt utsyn.
Opprinnelige byggetegninger viser at det skulle være tre soverom i denne etasjen, men slik boligen er innredet i dag, er loftsstuen større enn tegnet. Det er derfor mulig å etablere et ekstra soverom her med enkle grep.
Tilhørende båtplass tilknyttet Glastad båtforening. Ny eier vil få rettighetsbevis. Vedtektene for foreningen følger vedlagt. Bryggeanlegget har vann og strøm.
Løsøre og tilbehør
Vi viser til liste fra Norges Eiendomsmeglerforbund som gjelder fra 01.01.2020 angående løsøre og tilbehør. Oppvaskmaskin medfølger. Kjøleskap medfølger ikke.
Oppvarming
Ved og elektrisk. Varmekabler i gang og på bad i 1. etasje. Varmepumpe på kjøkkenet. Peisovn i stuen.
Ferdigattest/brukstillatelse
Det foreligger ferdigattest datert 04.12.2009 for nybygg bolig.
Det foreligger byggegodkjente tegninger. 2. etasje har på byggetegning tegnet inn 3 soverom mens det i dag er 2 soverom og større loftstue. Der det er tegnet inn bad i 2. etasje er det fortsatt uinnredet.
Det er oppført frittstående overbygg. Det foreligger ingen tegninger på denne og en liten del av den er utenfor tomtegrensen.
Kjøper overtar alt ansvar, kostnad og risiko for dette videre.
Tinglyste heftelser og rettigheter
På eiendommen er det tinglyst følgende heftelser og rettigheter som følger eiendommens matrikkel ved overskjøting til ny hjemmelshaver:
09.01.2009 - Dokumentnr: 14061 - Bestemmelse om veg: Rett til å benytte vei over gnr 32 bnr 119 med felles vedlikeholdsansvar. Rettigheten følger vedlagt.
Eventuell adgang til utleie
Eiendommen har ikke separat utleieenhet. Det vil normalt være anledning til utleie av hele eiendommen eller enkeltrom, såfremt utleiearealet er bygningsmessig godkjent for varig opphold og har forsvarlige radonnivåer.
Diverse
Vi er opptatt av verdiskapning, og har knyttet til oss samarbeidspartnere som skal sikre våre kunder de beste produkter og tjenester;
• Gjensidige leverer boligselgerforsikring og tilbyr bygningsforsikring
• Boligkjøperforsikring leveres av Hiscox og med Sedgwick som skadebehandler, og er formidlet gjennom Gjensidige.
• BN bank tilbyr finansieringsløsninger
• Vår avdeling Krogsveen Pluss tilbyr flyttetjenester som utvask, visningsvask, lager, tømming og transport av flyttelass, i tillegg til å formidle kontakt med Flip for overflateoppussing.
• I forbindelse med overtagelse av eiendommen tilbyr Overo avtale om strøm, alarm og bredbånd.
• Krogsveen er, sammen med øvrige bransjeaktører, medeier i den digitale annonseringsplattformen Hjem.
Selger har ikke bebodd eiendommen på fulltid, eiendommen har kun blitt benyttet som feriehus.
Beliggenhet og tomteforhold
Beliggenhet og tomteforhold
Beliggenhet
Velkommen til Solbergfaret 14 – en familievennlig beliggenhet på Gladstadheia i Tvedestrand. Her bor du i et stille og godt etablert boligområde med kort vei til alt du trenger i hverdagen.
Fra eiendommen har du gangavstand til både sentrum, barnehager og skoler. Både barnehagen, barneskolen og Tvedestrand videregående skole er moderne og oppgraderte, og området tilbyr trygge omgivelser for barnefamilier.
I nærområdet finner du flotte turmuligheter og kort vei til Tvedestrandsfjorden – perfekt for både hverdagsmosjon og naturopplevelser. For shopping og daglige ærender har du både Grisen Storsenter og Grenstøl Handel i nærheten, med et bredt utvalg av butikker og tjenester.
Tvedestrand sentrum byr på en hyggelig sørlandsatmosfære, med sjarmerende gater, hvite trehus, koselige kafeer, restauranter og småbutikker. På sommeren er det liv og røre i byen, blant annet under Tvedestrandregattaen som trekker både lokale og besøkende til sentrum.
I tillegg har Tvedestrand en attraktiv beliggenhet med kort vei til Arendal og Risør, og gode transportforbindelser både på land og til sjøs.
Fra eiendommen er det også kort gangvei ned til sjøen hvor det medfølger båtplass på 3,5 meter. Her får man enkel tilgang til den vakre fjorden og skjærgården utenfor -perfekt for både båtturer og bading. Båtplassen gir eiendommen en ekstra dimensjon av sørlandsidyll og gjør det lett å nyte livet ved kysten.
Adkomst
Se vedlagte kart
Beskrivelse av tomt
Tomten ligger høyt og fint til, og byr på en flott utsikt mot Tvedestrandsfjorden og omkringliggende landskap. Den er romslig og pent opparbeidet med plen, terrasse og hekk, noe som skaper et trivelig og innbydende uteområde. Her kan du nyte gode solforhold gjennom dagen, enten du vil slappe av på terrassen, leke på plenen eller bare ta inn den vakre utsikten. Det er terrasse rundt store deler av boligen hvor man kan flytte seg etter vær og vind. Stort gruset gårdstun med rikelig plass til parkering/lagring eller ytterligere opparbeidelse av hage og beplantninger.
Eiendommen har en fin kombinasjon av luft, lys og utsyn, som gir en ekstra følelse av frihet og sørlandsidyll.
Parkering
Rikelig med parkeringsmuligheter på eiendommen.
Vei, vann og avløp
Offentlig.
Privat stikkvei ned til eiendommen.
Regulerings-og arealplaner
Eiendommen er regulert til boligformål. Kommuneplan 2017 - 2029. Kommuneplanens arealdel. Ikrafttredelse: 07.02.2017.
Delareal 1 156 m
KPHensynsonenavnH910
KPDetaljering Reguleringsplan skal fortsatt gjelde. Delareal 1 156 m
Arealbruk Boligbebyggelse,Nåværende.
Reguleringsplan: Gladstadstykket, eldre reguleringsplan, vedtatt 16.06.1998. Delarealer Delareal 1 156 m
Formål Boliger
Bestemmelser: https://www.arealplaner.no/4213/dokumenter/1408/059_4B.pdf
Økonomi
Økonomi
Kommunale utgifter
Kommunale avgifter er kr 24239,- for inneværende år. I dette inngår gebyr for eiendomsskatt, vann, avløp, renovasjon og feiing/tilsyn.
Medlemskap i Glastadheia båtlag, kr 1000,- pr.år. Vedtekter følger vedlagt.
Boligen er tilknyttet fiber
Utgiftene er basert på nåværende eiers forbruk og avtaler.
Selger har kun benyttet boligen som feriebolig. Strømforbruk er ikke oppgitt.
Formuesverdi
Formuesverdi for 2023 var kr 611473,- ifølge selger/skatteetaten. Beløpet forutsetter at eier bor fast i boligen (primærbolig).
Ved eventuell øvrig bruk av eiendommen (f.eks. fritidsbolig, pendlerbolig, utleieobjekt) var formuesverdien for 2023 kr 2445892,-
Formuesverdien justeres normalt årlig. Se skatteetaten.no for mer informasjon om fastsettelse av formuesverdien.
Omkostninger
4 150 000,00 Prisantydning
Omkostninger
103 750,00 Dokumentavgift til staten (2,5% av kjøpesum)
19 900,00 Gjensidige Boligkjøperpakke (valgfri)
545,00 Tinglysing panterettsdokument
545,00 Tinglysing skjøte
--------------------------------------------------------
124 740,00 Omkostninger totalt
--------------------------------------------------------
4 274 740,00 Totalpris inkl. omkostninger
--------------------------------------------------------
Totalpris inkl. omkostninger forutsetter kjøp til prisantydning.
Det tas forbehold om endringer i avgifter og gebyrer.
Betalingsbetingelser
Kjøpesum inkludert omkostninger, samt pantedokument tilknyttet eventuelt lån, skal være disponibelt hos megler 2 virkedager før overtagelsen.
Annen viktig informasjon
Annen viktig informasjon
Eier
Vidar Libjå
Overtakelse
Etter avtale
Boligselgerforsikring
Selger har i forbindelse med salget tegnet boligselgerforsikring levert av Gjensidige.
Boligselgerforsikringen dekker selgers ansvar etter avhendingsloven begrenset oppad til kr 14 millioner. Dersom kjøper oppdager forhold ved eiendommen som hen mener utgjør en mangel ved eiendommen, vil Gjensidige behandle reklamasjonen på vegne av selger. Forsikringsvilkår kan fås ved henvendelse til megler.
Vedlagt salgsoppgaven følger selgers egenerklæringsskjema og tilstandsrapport. Interessenter må sette seg inn i dokumentene før bud inngis.
Boligkjøperforsikring
Innen kontraktsmøtet må kjøper ta stilling til om det ønskes å bestille Boligkjøperpakken gjennom Gjensidige. I denne gunstige pakken er boligen ferdig forsikret og inkluderer rettshjelpsforsikring, også kalt Boligkjøperforsikring. Rettshjelpsforsikring gir trygghet og tilgang på profesjonell juridisk hjelp dersom det oppdages uventede feil eller mangler det første året etter overtagelse. Forsikringsselskapet behandler i så fall ethvert mangelskrav kjøper måtte ha overfor selger.
Boligkjøperpakken inkluderer bygningsforsikring for hus og hytte, innboforsikring, flytteforsikring og dobbel rentedekning - i situasjoner hvor kjøper ikke får solgt nåværende primærbolig.
Kjøper mottar ingen særskilt faktura for Boligkjøperpakken da kostnaden det første året legges til kjøpesummen for boligen. Det gjøres oppmerksom på Krogsveen mottar et honorar for denne formidlingen.
Produktark for Boligkjøperpakken ligger vedlagt i salgsoppgaven.
Dersom ikke boligkjøperpakke ønskes kan kun rettshjelpsforsikring, også kalt boligkjøperforsikring, tegnes særskilt via megler. Rettshjelpsforsikringen varer i 5 år fra overtagelse og leveres gjennom Gjensidige. Ta kontakt med megler for ytterligere informasjon.
Selskap og privatpersoner som driver med kjøp/salg/utvikling som ledd i egen næringsvirksomhet kan ikke tegne boligkjøperpakke eller rettshjelpsforsikring.
Budgivning
Forbrukerinformasjon om budgivning er vedlagt denne salgsoppgaven og er også på vår hjemmeside Krogsveen.no. Alle bud og budforhøyelser må inngis skriftlig. I tillegg må legitimasjon være fremlagt sammen med signatur fra budgiver.
Vi oppfordrer til å gi bud elektronisk via GI BUD-knappen på eiendommens hjemmeside på Krogsveen.no. Da vil samtlige vilkår bli oppfylt.
Eventuelle forhøyelser eller endringer av budet kan bekreftes pr SMS eller på e-post. Vi oppfordrer alltid til å kontakte megler pr. telefon i tillegg da forsinkelser i SMS og e-post kan forekomme.
For at budene skal kunne bli behandlet og videreformidlet skriftlig til alle involverte parter, må alle bud ha en tilstrekkelig lang akseptfrist, jf. eiendomsmeglingsforskriften § 6-3.
Selger må også skriftlig akseptere budet før aksept kan formidles til budgiver. Akseptfrist bør derfor være på minimum 30 minutter, og budforhøyelser må derfor skje i god tid før fristens utløp.
Bud i forbrukerforhold kan uansett ikke settes med kortere frist enn kl. 12.00 første virkedag etter siste annonserte visning. I tillegg kan ikke budet ha forbehold om at det skal holdes hemmelig ovenfor øvrige interessenter. Megler har iht lov om eiendomsmegling ikke anledning til å videreformidle disse budene, og de vil dermed heller ikke bli journalført.
Etter at eiendommen er solgt vil kjøper og selger få tilsendt budjournal. Øvrige budgivere kan få utlevert kopi av budjournalen i anonymisert form.
Hvitvaskingsreglene
I henhold til lov om hvitvasking og terrorfinansiering har megler plikt til å gjennomføre kontrolltiltak overfor kunder, herunder fullmektiger. Dette innebærer bl.a. å bekrefte kunders og reelle rettighetshaveres identitet på bakgrunn av fremvist gyldig legitimasjon eller på annen godkjent måte, samt å innhente opplysninger om kundeforholdets formål og tilsiktede art.
Dersom slike kundetiltak ikke kan gjennomføres, kan megler ikke etablere kundeforholdet eller utføre transaksjonen.
Hvis kjøper ikke bidrar til gjennomføring av kundekontrollen og dette fører til at transaksjonen blir forsinket eller ikke kan gjennomføres, vil dette ansees som mislighold av avtalen og gi selger rettigheter etter avhendingslova kapittel 5. I tilfeller der selger ikke bidrar til gjennomføring av løpende kundekontroll underveis i oppdraget, er det selger som misligholder sine forpliktelser etter avtalen og gi kjøper rettigheter etter avhendingslovens kapittel 4. Partene er selv ansvarlige for eventuelle kostnader og ansvar dette kan medføre. Eiendomsmegleren eller eiendomsmeglingsforetaket kan ikke holdes ansvarlig for de konsekvenser dette vil kunne få for partene eller andre som har interesser i eiendomshandelen.
Kjøper oppfordres til å innbetale kjøpesummen som ikke kommer fra låneinstitusjon i én samlet innbetaling fra egen konto i norsk bank. Megler har plikt til å melde fra til Økokrim om eiendomshandler som fremstår som mistenkelige. Melding sendes Økokrim uten at partene varsles.
Personopplysningsloven
I henhold til personopplysningsloven gjør vi oppmerksom på at interessenter kan bli registrert for videre oppfølging.
Lovanvendelse
Generelle bestemmelser
Salgsoppgaven er basert på de opplysningene selger har gitt til megler, den bygningssakyndiges tilstandsrapport, samt opplysninger innhentet fra kommunen, Kartverket og andre tilgjengelige kilder. Det er viktig at kjøper setter seg grundig inn i alle salgsdokumentene, herunder salgsoppgave, tilstandsrapport og selgers egenerklæring. Kjøper anses kjent med forhold som er tydelig beskrevet i salgsdokumentene, og slike forhold kan ikke påberopes som mangler. Dette gjelder uavhengig av om kjøper har lest dokumentene. Alle interessenter oppfordres til å undersøke eiendommen nøye, gjerne sammen med fagkyndig før bud inngis. Kjøper som velger å kjøpe usett kan ikke gjøre gjeldende som mangel noe han burde blitt kjent med ved undersøkelsen.
Dersom det er behov for avklaringer, anbefaler vi at interessenter rådfører seg med eiendomsmegler eller egne rådgivere før det legges inn bud.
En bolig som har blitt brukt i en viss tid, har vanligvis blitt utsatt for slitasje og skader kan ha oppstått. Slik bruksslitasje må kjøper regne med, og det kan avdekkes enkelte forhold etter overtakelse som nødvendiggjør utbedringer. Normal slitasje og skader som nødvendiggjør utbedring, er innenfor hva kjøper må forvente og vil ikke utgjøre en mangel.
Kjøper og selgers rettigheter og plikter reguleres av avtalen mellom partene, samt informasjonen som har vært tilgjengelig for kjøperen i forbindelse med handelen. Avtalen utfylles av avhendingsloven, og det gjelder ulike avtalevilkår avhengig av om kjøper er forbrukerkjøper eller ikke. Dette er nærmere beskrevet nedenfor.
På grunn av ulike avtalevilkår kan selger vurdere bud fra en som ikke er forbruker, ulikt fra en forbrukers bud. Dersom kjøper ikke er forbruker, er selger sitt mulige mangelsansvar begrenset fordi eiendommen selges "som den er". Selger kan ikke ta «som den er»- forbehold overfor en forbrukerkjøper. Selv et lavere bud fra en som ikke er forbruker kan foretrekkes fordi begrensningen i mulig mangelsansvar kan ha egenverdi for selger. Selger står fritt til å forkaste eller akseptere ethvert bud, og er for eksempel ikke forpliktet til å akseptere høyeste bud.
Budgiver skal i budskjema avgi egenerklæring om budgiver er forbruker eller næringsdrivende/ person som hovedsakelig handler som ledd i næringsvirksomhet. Budgivere får informasjon dersom andre bud er inngitt av en som ikke er forbruker.
Forbrukerkjøp - definisjon
Med forbrukerkjøp menes kjøp av eiendom når kjøperen er en fysisk person som ikke hovedsakelig handler som ledd i næringsvirksomhet.
Forbruker – avtalevilkår
Eiendommen har en mangel dersom den ikke er i samsvar med kravene som følger av avtalen, eller det foreligger brudd på bestemmelsene i avhendingsloven §§ 3-2 til 3-8. Hvis eiendommen ikke er i samsvar med det kjøperen må kunne forvente ut ifra alder, type og synlig tilstand, kan det være grunnlag for mangelskrav. Det samme gjelder hvis det er holdt tilbake eller gitt uriktige opplysninger om eiendommen. Dette gjelder likevel bare dersom man kan gå ut ifra at det virket inn på avtalen at opplysningen ikke ble gitt eller at mangelskravet ikke blir rettet i tide på en tydelig måte.
Boligen kan ha en mangel etter avhendingsloven § 3-3 andre ledd, dersom det er avvik mellom opplyst og faktisk innvendig areal, forutsatt at avviket er på 2% eller mer og minimum 1 kvm.
Ved beregning av et eventuelt prisavslag eller erstatning må kjøper selv dekke tap/kostnader opptil et beløp på kr 10 000 (egenandel).
Ikke-forbruker (næringsdrivende) – definisjon
Hvis kjøper er en juridisk person, eller en fysisk person som hovedsakelig handler som ledd i næringsvirksomhet, vil kjøpet ikke anses som et forbrukerkjøp.
Ikke-forbruker – avtalevilkår
Eiendommen har en mangel dersom den ikke er i samsvar med kravene som følger av avtalen.
Eiendommen selges «som den er», og selgers ansvar utover det konkret avtalte er da begrenset etter avhendingsloven § 3-9, første ledd andre setning.
Avhendingsloven § 3-3 andre ledd fravikes, og hvorvidt boligens arealsvikt utgjør en mangel vurderes etter avhendingsloven § 3-8.
Informasjon om kjøpers undersøkelsesplikt, herunder oppfordringen om å undersøke eiendommen nøye, gjelder også for kjøpere som ikke anses som forbrukere.
Det forutsettes at hjemmel overføres til kjøper. Hvis kjøper ikke ønsker hjemmelsoverføring av eiendommen, må det tas forbehold om dette i budet.
Meglers vederlag
Meglers vederlag betales av selger og er avtalt til:
Vederlag: 1,25 % av salgssummen, minimum kr 52.000,-
Tilrettelegging kr 10900,-
Oppgjør: kr 7.500,-
Markedspakke: kr 26950,-
Visninger: kr 1.000,- pr. visning
Oppslag eiendomsregister: kr 2.900,-
Kommunale opplysninger: Kr 4400,-
Foto: Kr 3750,-
Tinglysning sikring: Kr 545,-
Megler har i tillegg krav på dekning av utlegg.
Opplysninger om oppdraget
Oppdragsnummer 47-0090/25
Eiendomsmegler Krogsveen AS, avd. Arendal
Kystveien 14, 4841, ARENDAL
950 007 613
Oppdragets KR-kode KR47.2590
Dato
Sist oppdatert: 17. desember 2025 kl. 13:01
Dokumenter
Dokumenter
PDF – 363 KB
PDF – 6 MB
PDF – 431 KB
PDF – 312 KB
PDF – 29 KB
PDF – 127 KB
PDF – 392 KB
Område
Legg til steder som er viktige for deg
Visning
For å delta på visning, ber vi om at du melder deg på. Da sikrer vi at du får nødvendig informasjon og at det er satt av tilstrekkelig med tid. Kontakt megler dersom annet tidspunkt ønskes. Husk å lese salgsoppgaven før visningen, så du stiller forberedt. NB. Visning utgår dersom det ikke er noen påmeldte.
Ønsker du kun å bli holdt orientert, kan du fra eiendommens hjemmeside få varsel om solgtpris, eller kontakte megler.
Lurer du på noe?
Unngå doble boligrenter
Vi tilbyr gunstig forsikring.
Vurderer du utleie?
Få et tilbud fra Utleie KrogsveenHva koster lånet?
Sjekk estimert lånekostnadVil du varsles om lignende boliger?
Ved å lagre ditt boligsøk hos oss får du beskjed når vi har en bolig som ligner denne, før den legges ut på markedet!

