Jordbærveien 27
2 590 000 kr
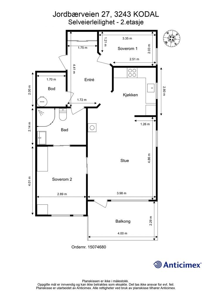
67 m²
2 soverom
Solgt

Kodal
NYHET! Lekker leilighet i populært og rolig boligområde! 2 soverom - lave felleskostnader - solrikt og utsikt - garasje
Prisantydning
2 590 000 krOmkostninger
75 790 krTotalpris
2 665 790 kr
Pris
Bruksareal
87 m²BRA-I (internt bruksareal)
67 m²BRA-E (eksternt bruksareal)
20 m²TBA (terrasse-balkongareal)
9 m²
Areal
Etasje
2Byggeår
2009Soverom
2 soveromBad
1 badType
EierleilighetEierform
EierseksjonFasiliteter
Garasje/P-plass og Balkong/TerrasseFellesutgifter
1 200 krEnergimerke
Rød C
Nøkkelinfo
Unngå doble boligrenter
Vi tilbyr gunstig forsikring.
Vurderer du utleie?
Få et tilbud fra Utleie KrogsveenHva koster lånet?
Sjekk estimert lånekostnadBeskrivelse
Kort om eiendommen
Leiligheten har en fin planløsning, innredet med 2 soverom, bad og en stor stue og kjøkken i delvis åpen løsning, her er det plass til å samle venner og familie til hyggelige måltider.
Solfylt balkong mot vest med utgang fra stuen, her sitter du lunt til med fin utsikt og gode solforhold og kan nyte sene kvelder under markisen.
Leiligheten er nylig oppmalt i en behagelig og moderne fargepalett så her kan du flytte rett inn i en lekker bolig.
Med både inne- og utebod, samt delvis gulvet loft er det særdeles godt med lagringsplass.
Egen parkering i garasje beliggende i felles garasjerekke. Det er også godt med gjesteparkeringer på sameiets område.
Kodal er et flott sted å bo og her kan man trygt la de håpefulle leke fritt i trygge omgivelser.
Velkommen til visning og velkommen hjem!
Område
Legg til steder som er viktige for deg
På flyttefot? Tenk kjøp og salg samtidig.
Få din egen rådgiver gjennom hele kjøps- og salgsprosessen. Det starter med en verdivurdering.
Unngå doble boligrenter
Vi tilbyr gunstig forsikring.
Vurderer du utleie?
Få et tilbud fra Utleie KrogsveenHva koster lånet?
Sjekk estimert lånekostnadVil du varsles om lignende boliger?
Ved å lagre ditt boligsøk hos oss får du beskjed når vi har en bolig som ligner denne, før den legges ut på markedet!

