Rosenli 17
2 990 000 kr
51 m²
1 soverom
Solgt

Stavanger Øst/Rosenli
BUD FORELIGGER | Lys og tiltalende leil. i 12. etg. | Særdeles flott utsikt over fjorden | Innglasset balkong | Heis
Prisantydning
2 990 000 krAndel fellesgjeld
71 043 krOmkostninger
19 253 krTotalpris
3 080 296 kr
Pris
Bruksareal
62 m²BRA-I (internt bruksareal)
51 m²BRA-E (eksternt bruksareal)
2 m²
Areal
Etasje
12Byggeår
1972Soverom
1 soveromBad
1 badType
AndelsleilighetEierform
AndelFasiliteter
Heis og Balkong/TerrasseFellesutgifter
3 573 krEnergimerke
Rød E
Nøkkelinfo
Unngå doble boligrenter
Vi tilbyr gunstig forsikring.
Vurderer du utleie?
Få et tilbud fra Utleie KrogsveenHva koster lånet?
Sjekk estimert lånekostnadBeskrivelse
Kort om eiendommen
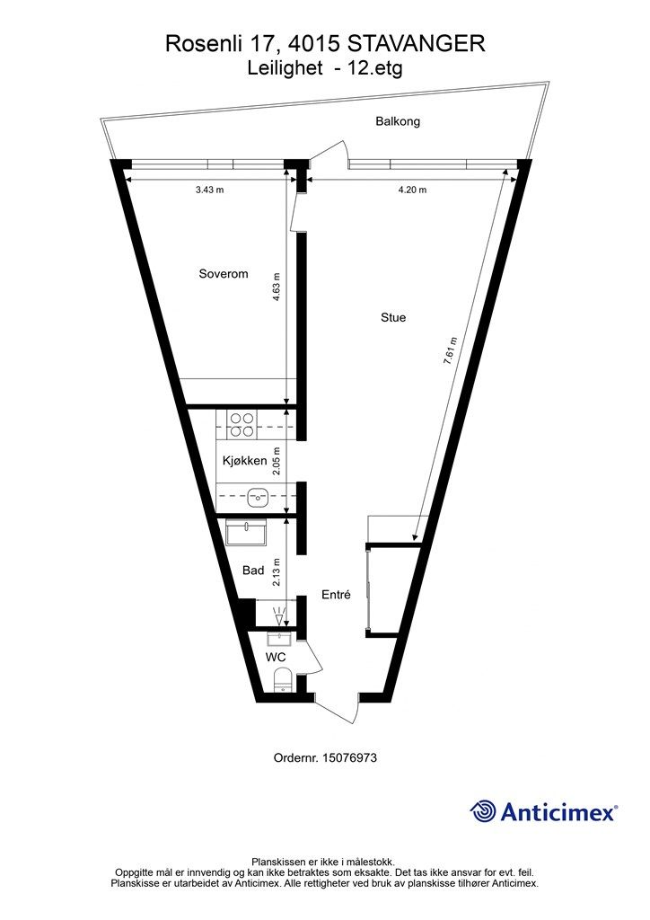
Velkommen til Rosenli 17! Her presenteres en lys og arealeffektiv 2-roms andelsleilighet i 12. etasje. Boligen byr på en fantastisk utsikt sørover mot Gandsfjorden.
Fra stuen er det utgang til en romslig, innglasset balkong som fungerer som en flott forlengelse av stuen. Beliggenheten er ideell med umiddelbar nærhet til friområder, badeplass, Tou Scene og kort vei til Stavanger sentrum.
Kort fortalt:
- Innglasset balkong på 9 m² med flott utsikt
- Heisadkomst og callinganlegg
- Bad med gulvvarme og opplegg for vaskemaskin
- Egen bod i underetasjen
- Borettslaget har selskapslokaler og gjesterom for utleie til beboerne
- Nærhet til sentrum, turområder og badeplass
Velkommen til visning!
Område
Legg til steder som er viktige for deg
På flyttefot? Tenk kjøp og salg samtidig.
Få din egen rådgiver gjennom hele kjøps- og salgsprosessen. Det starter med en verdivurdering.
Unngå doble boligrenter
Vi tilbyr gunstig forsikring.
Vurderer du utleie?
Få et tilbud fra Utleie KrogsveenHva koster lånet?
Sjekk estimert lånekostnadVil du varsles om lignende boliger?
Ved å lagre ditt boligsøk hos oss får du beskjed når vi har en bolig som ligner denne, før den legges ut på markedet!

