Munkebekken 124
5 500 000 kr
132 m²
4 soverom
Solgt

Presenteres av
Robin LauritzenBarnevennlige Munkebekken
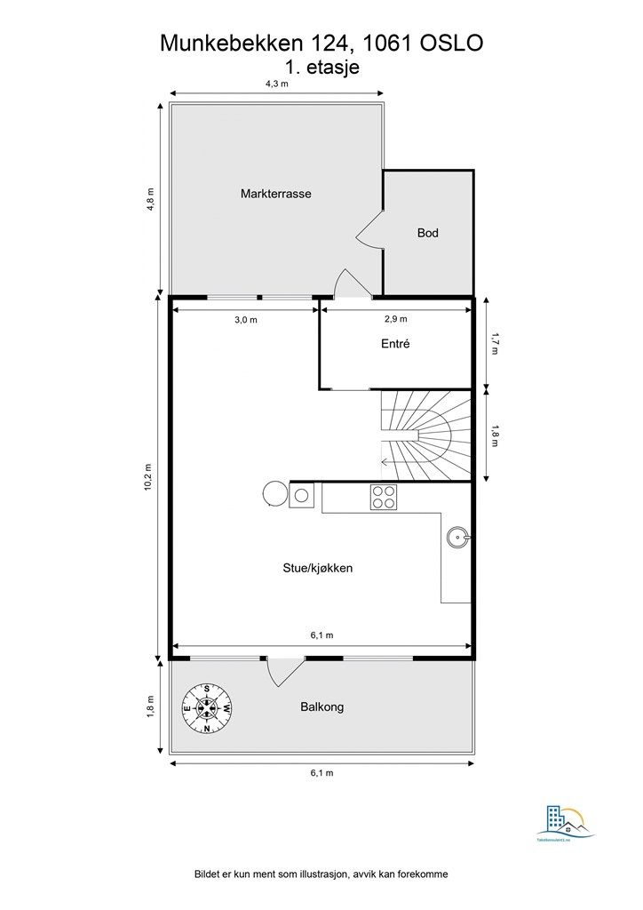
Utbygget rekkehus over tre plan | Oppussingsobjekt | Garasjeplass m/EL | TV/fiber ink. | Marka som nærmeste nabo
Prisantydning
5 500 000 krAndel fellesgjeld
525 729 krOmkostninger
20 102 krTotalpris
6 045 831 kr
Pris
Bruksareal
137 m²BRA-I (internt bruksareal)
132 m²BRA-E (eksternt bruksareal)
5 m²TBA (terrasse-balkongareal)
59 m²
Areal
Etasje
3Byggeår
1984Soverom
4 soveromBad
1 badType
RekkehusEierform
AndelFasiliteter
Garasje/P-plass og Balkong/TerrasseFellesutgifter
7 275 krEnergimerke
Oransje E
Nøkkelinfo
Unngå doble boligrenter
Vi tilbyr gunstig forsikring.
Vurderer du utleie?
Få et tilbud fra Utleie KrogsveenHva koster lånet?
Sjekk estimert lånekostnadBeskrivelse
Kort om eiendommen
Robin Lauritzen v/ Krogsveen har gleden av å presentere Munkebekken 124! Et luftig og romslig rekkehus over tre plan, med god planløsning og flere herlige uteplasser. Munkebekken er et svært barnevennlig boligområde med fortrinnsrett på plass i Munkebekken Idrettsbarnehage for beboerne. Stuen og kjøkkenet i boligen brer seg over nesten hele planet i første etasje, og videre i 2. etasje er det egen avdeling for soverommene.
Verdt å nevne:
Barnevennlig og markanært
Store oppholdsrom og god planløsning
Oppbevaring i utebod og kneloft
Peisovn
TV og internett inkludert
Garasjeplass med elbillader medfølger
Beliggende i blindvei
Fortrinnsrett på plass i idrettsbarnehage
Tre herlige uteplasser
Nærhet til aktivitetstilbud og kollektiv transport
Område
Legg til steder som er viktige for deg
På flyttefot? Tenk kjøp og salg samtidig.
Få din egen rådgiver gjennom hele kjøps- og salgsprosessen. Det starter med en verdivurdering.
Unngå doble boligrenter
Vi tilbyr gunstig forsikring.
Vurderer du utleie?
Få et tilbud fra Utleie KrogsveenHva koster lånet?
Sjekk estimert lånekostnadVil du varsles om lignende boliger?
Ved å lagre ditt boligsøk hos oss får du beskjed når vi har en bolig som ligner denne, før den legges ut på markedet!
På flyttefot? Slik gjør vi det enklere for deg
Skreddersydd flyttepakke
Vi fikser håndverkere, vask, pakking, lagring og transport, og legger ut for utgiftene underveis.
Hjelp med både kjøp og salg
Hos oss har du din egen rådgiver gjennom hele kjøps- og salgsprosessen.
Hjelp til finansiering
Vårt samarbeid med BN Bank sikrer deg rask og løsningsorientert hjelp, til konkurransedyktige betingelser.

