Knobels vei 7A
4 490 000 kr
188 m²
4 soverom
Solgt

Presenteres av
Raymond Bøhn Brevik/Vesteng
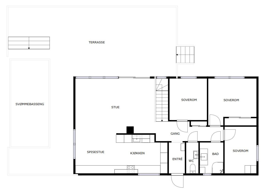
Oppusset enebolig med innredet kjeller. Lekkert Kvik-kjøkken fra '24. Solrik hage og terrasse med basseng. Dobbelgarasje
Prisantydning
4 490 000 krOmkostninger
133 240 krTotalpris
4 623 240 kr
Pris
Bruksareal
222 m²BRA-I (internt bruksareal)
188 m²BRA-E (eksternt bruksareal)
34 m²TBA (terrasse-balkongareal)
75 m²
Areal
Etasje
2Byggeår
1975Soverom
4 soveromBad
2 badTomteareal
823 m² (eiet)Type
Enebolig - FrittliggendeEierform
EietFasiliteter
Garasje/P-plass og Balkong/TerrasseEnergimerke
Gul F
Nøkkelinfo
Unngå doble boligrenter
Vi tilbyr gunstig forsikring.
Vurderer du utleie?
Få et tilbud fra Utleie KrogsveenHva koster lånet?
Sjekk estimert lånekostnadBeskrivelse
Kort om eiendommen
Oppusset enebolig ved Brevik/Vesteng - betydelig påkostet i senere år
- Rolig blindgate med tilbaketrukket og barnevennlig miljø.
- Gangavstand til barnehager og skoler på alle grunntrinn
- Sentrale omgivelser - kun fem minutter til byen
- Familieorientert og praktisk romløsning
- Lekkert og velutstyrt design-kjøkken fra Kvik, nytt i 2024
- Bad i første etasje renovert i 2012
- Stort bad og praktisk vaskerom i kjeller - begge renovert i 2016
- Kjeller med generøse rom og avvik ift. rømningsvei og dagslys
- Stor eiet tomt, pent rammet inn av forstøtningsmur oppført i 2021
- Solfylt terrasse på 75 kvm., med innfelt basseng
- Tre av fire yttervegger etterisolert og kledd om i 2023
- Drenering utført rundt boligen i 2014
Område
Legg til steder som er viktige for deg
På flyttefot? Tenk kjøp og salg samtidig.
Få din egen rådgiver gjennom hele kjøps- og salgsprosessen. Det starter med en verdivurdering.
Unngå doble boligrenter
Vi tilbyr gunstig forsikring.
Vurderer du utleie?
Få et tilbud fra Utleie KrogsveenHva koster lånet?
Sjekk estimert lånekostnadVil du varsles om lignende boliger?
Ved å lagre ditt boligsøk hos oss får du beskjed når vi har en bolig som ligner denne, før den legges ut på markedet!
På flyttefot? Slik gjør vi det enklere for deg
Skreddersydd flyttepakke
Vi fikser håndverkere, vask, pakking, lagring og transport, og legger ut for utgiftene underveis.
Hjelp med både kjøp og salg
Hos oss har du din egen rådgiver gjennom hele kjøps- og salgsprosessen.
Hjelp til finansiering
Vårt samarbeid med BN Bank sikrer deg rask og løsningsorientert hjelp, til konkurransedyktige betingelser.

