Bergerveien 19
10 700 000 kr
149 m²
4 soverom
Solgt

Berger
Sjønær og høytliggende enebolig med panoramautsikt, dobbel garasje, hybel og stor, frodig hage. Attraktivt beliggende
Prisantydning
10 700 000 krOmkostninger
288 490 krTotalpris
10 988 490 kr
Pris
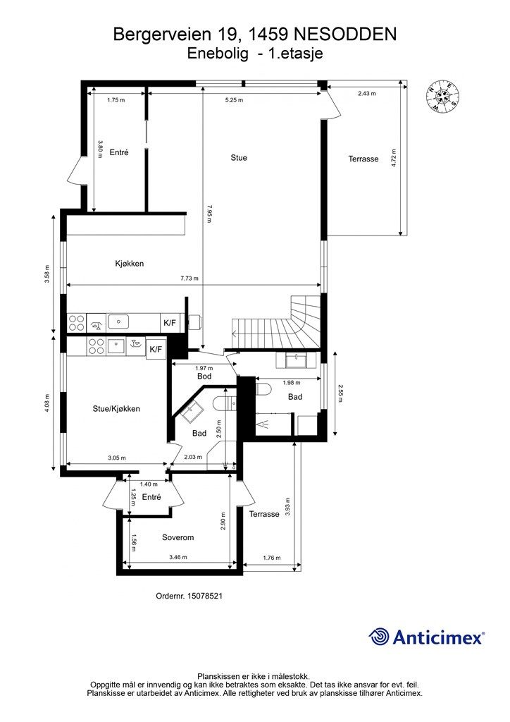
Bruksareal
183 m²BRA-I (internt bruksareal)
149 m²BRA-E (eksternt bruksareal)
34 m²TBA (terrasse-balkongareal)
48 m²
Areal
Byggeår
1939Soverom
4 soveromBad
3 badTomteareal
1 537 m² (eiet)Type
Enebolig - FrittliggendeEierform
EietFasiliteter
Garasje/P-plass og Balkong/TerrasseEnergimerke
Oransje F
Nøkkelinfo
Unngå doble boligrenter
Vi tilbyr gunstig forsikring.
Vurderer du utleie?
Få et tilbud fra Utleie KrogsveenHva koster lånet?
Sjekk estimert lånekostnadDette liker selger best ved boligen
Nyte en kopp kopp kaffe i sengen mens man ser solen stå opp over Bunnefjorden. Leve i hagen på sommeren.
Beskrivelse
Kort om eiendommen
Velkommen til Åsli!
Høytliggende og sjønær eiendom i et attraktivt og barnevennlig område med skjermet beliggenhet. Boligen er plassert på en høyde for å maksimere både solforhold og den imponerende utsikten over fjorden. Kort avstand til sjøen, skoler, barnehager og servicetilbud som gjør dette til en svært ettertraktet beliggenhet. 2 min til bussholdeplass!
Boligen er en velholdt, original funkisvilla fra 1939 med tidstypisk arkitektur og funksjonalitet. Den har et gjennomtenkt arkitektonisk uttrykk, god standard og delikate farge- og materialvalg. Praktisk planløsning over to etasjer med fleksible romløsninger. Store vindusflater gir rikelig med lys og en luftig romfølelse, samtidig som utsikten over Oslofjorden kommer godt til sin rett. Boligen disponerer også en hybeldel.
Må sees!
Område
Legg til steder som er viktige for deg
På flyttefot? Tenk kjøp og salg samtidig.
Få din egen rådgiver gjennom hele kjøps- og salgsprosessen. Det starter med en verdivurdering.
Unngå doble boligrenter
Vi tilbyr gunstig forsikring.
Vurderer du utleie?
Få et tilbud fra Utleie KrogsveenHva koster lånet?
Sjekk estimert lånekostnadVil du varsles om lignende boliger?
Ved å lagre ditt boligsøk hos oss får du beskjed når vi har en bolig som ligner denne, før den legges ut på markedet!

































