Trondheimsveien 169
4 300 000 kr
45 m²
1 soverom
Komplett salgsoppgave

Rosenhoff/Sinsen
Moderne og luftig 2-roms med vestvendt balkong | VV, fyring og internett inkl. | Vestvendt balkong
Prisantydning
4 300 000 krAndel fellesgjeld
180 346 krOmkostninger
11 040 krTotalpris
4 491 386 kr
Pris
Bruksareal
48 m²BRA-I (internt bruksareal)
45 m²BRA-E (eksternt bruksareal)
3 m²TBA (terrasse-balkongareal)
4 m²
Areal
Etasje
4Byggeår
1936Soverom
1 soveromBad
1 badType
AndelsleilighetEierform
AndelFasiliteter
Balkong/TerrasseFellesutgifter
5 094 krEnergimerke
Grønn G
Nøkkelinfo
Unngå doble boligrenter
Vi tilbyr gunstig forsikring.
Vurderer du utleie?
Få et tilbud fra Utleie KrogsveenHva koster lånet?
Sjekk estimert lånekostnadBeskrivelse
Kort om eiendommen
Innhold og byggemåte
Innhold og byggemåte
Eiendommen
Trondheimsveien 169, 0570 OSLO
Kommunenummer 301, gårdsnummer 83, bruksnummer 153
Andelsnummer 34, Borettslaget Trondheimsveien 165-173, organisasjonsnummer 953 608 847
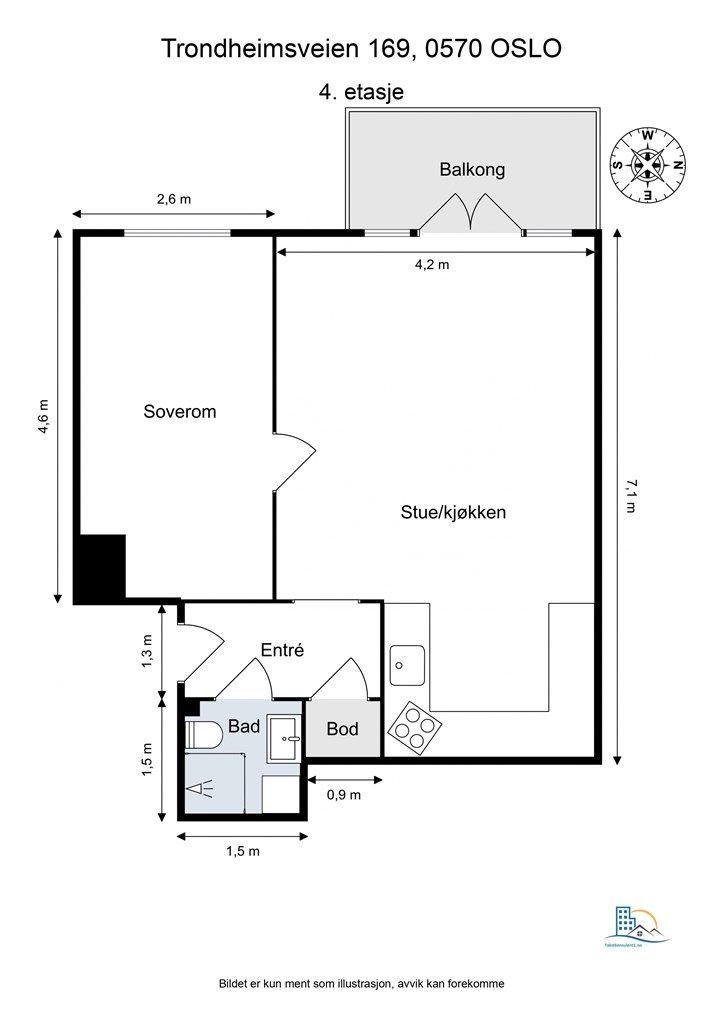
Innhold
Totalt bruksareal BRA: 48 kvm
BRA-i:
4. etasje 45 kvm: Entré, bad, soverom, og stue/kjøkken.
BRA-e:
1. etasje 3 kvm: Kjellerbod.
Åpent areal:
4. etasje 4 kvm: Balkong.
Boligen disponerer en kjellerbod på 3,3 m².
Det gjøres oppmerksom på at boligens eksterne boder tilhører borettslagets fellesareal, og at boden således ikke eies av den enkelte andelseier. Dette medfører at borettslaget i fellesskap beslutter bruken, og at man ikke selv har eierrett og rettsvern for boden. Borettslaget kan ved vedtak beslutte annet bruk av fellesarealet og disponering av bodarealet kan dermed opphøre.
Vedlagte plantegninger er ikke målbare. De oppgitte arealer er hentet fra rapport med befaringsdato 13.11.2025 utført av Marcus Pettersen.
Byggemåte
Selger har fått utarbeidet en tilstandsrapport, dvs. en teknisk gjennomgang av boligen hvor eventuelle avvik, risiko for kjøper og prisoverslag for hva som bør gjøres av oppgradering, er skissert. Se særskilt TGIU (tilstandsgrad ikke undersøkt), samt TG2 og TG3 som viser hva som er boligens normale slitasje, alder og type, hva som er avvik fra dette og hva som bør/må utbedres. Rapporten og selgers egenerklæring er en del av salgsoppgaven og må leses nøye før bud inngis. Kjøper overtar ansvaret for de opplysninger som fremkommer av salgsdokumentasjonen, og kan ikke gjøre gjeldende som mangel noe som burde vært kjent eller som ikke kan anses å ha betydning for avtalen.
Boligblokk bygget i 1936. Bygningen antas fundamentert med betong til stedlige masser. Grunnmur av betong. Etasjeskillere av betong. Yttervegger oppført med betong/murverk. Flat takkonstruksjon, antatt tekket med asfalttakbelegg/folie (ikke besiktiget).
Det gjøres spesielt oppmerksom på at 7 bygningsdeler er tildelt TG2:
-Overflater på bad
- Mer enn halvparten av forventet brukstid er passert på membranløsningen
- Rommet har kun naturlig ventilasjon. NS3600 krever mekanisk/elektrisk styrt vifte for å kunne gi tg 0/1.
- Kjøkkenet har ventilator med omluft (kullfilter). NS3600 krever mekanisk for å kunne gi tg 0/1.
- Mer enn halvparten av forventet brukstid er passert på innvendige vannledninger.
- Ventilasjon i bolig: det er påvist mangelfull ventilasjon på ett eller flere rom i boligen.
TGIU:
- Det er ikke gjort undersøkelser av radonforekomst i forbindelse med rapporten. Dette gjøres med egnet utstyr i de kaldeste månedene i året.
- Hulltaking er ikke foretatt da det ikke er fysisk mulig pga. tilliggende konstruksjoner.
Opplistingen er ikke uttømmende. Interessenter bes sette seg inn i tilstandsrapportens detaljer.
Standard
Nærmere innhold:
ENTRÉ
Velkommen inn! Entréen er lys og innbydende og gir et umiddelbart godt førsteinntrykk. I entréen er det også en garderobe- perfekt for oppbevaring av yttertøy, sko og sesongutstyr.
STUE
Stuen og kjøkkenet er holdt i en åpen løsning og er et naturlig og sosialt samlingspunkt i leiligheten. Her er det god plass til å møblere med sofa, salongbord og TV-seksjon. Videre er det utgang til boligens balkong.
BALKONG
Balkongen har plass til utemøblement og er en fin plass å nyte morgenkaffen. På årets varmere dager er den en fin forlengelse av stuen.
KJØKKEN
Kjøkkenet er holdt i en åpen løsning og er en sosial sone for matlaging. Her er det også en naturlig plass å møblere med et spisebord. Kjøkkeninnredningen er med profilerte fronter og laminat benkeplate med nedfelt vask-og skyllelum. Hvitevarene er sømløst integrert og består av integrert induksjonstopp og stekeovn. Det er både plass og opplegg for oppvaskmaskin.
BAD
Badet er flislagt på gulv og vegger med elektrisk gulvvarme. Badet er innredet med klosett, servant med innredning, speil og dusjhjørne med svingbare glassdører. Det er både plass og opplegg for vaskemaskin.
SOVEROM
Soverommet er av god størrelse med plass til dobbeltseng og tilhørende nattbord. Det er rikelig med lysinnslipp fra store vindusflater. Garderobeskapet er praktisk innebygd med mye oppbevaringsplass. På soverommet er det også nisje på siden av skapet med plass til tørkestativ og strykebrett.
Løsøre og tilbehør
Vi viser til liste fra Norges Eiendomsmeglerforbund som gjelder fra 01.01.2020 angående løsøre og tilbehør.
Oppvarming
Boligen varmes opp via vannbåren varme knyttet til radiatorer.
Dersom beboelsesrom ikke har vegg- eller fastmonterte varmekilder ved visning, følger dette heller ikke med.
Ferdigattest/brukstillatelse
Det foreligger ferdigattest på bygningen datert 11.03.1939. Denne kan fås ved henvendelse til megler.
Dagens planløsning stemmer overens med originale byggetegninger. Det er ikke spesifisert i tegningene hva rommene er godkjent som, men tegningene indikerer til at rommene er godkjent for varig opphold.
Videre foreligger det ferdigattest på fasadeendring datert 29.05.2013, på balkong datert 16.07.2004 og på reparasjon av kledning datert 20.02.1970.
Tinglyste heftelser og rettigheter
Utover andel fellesgjeld overdras leiligheten fri for pengeheftelser.
Borettslaget er ikke tilsluttet sikringsfond.
Det er tinglyst 2 servitutter på borettslagets eiendom. Disse omhandler blant annet skjønn og bestemmelse om vann- og kloakkledninger.
Servituttene vil følge eiendommen. Kjøpers bank vil få prioritet etter ovennevnte heftelser og servitutter.
Eventuell adgang til utleie
Andelseier kan ikke uten samtykke fra styret i borettslaget overlate bruken av boligen til andre. Med samtykke kan andelseier overlate boligen til andre i inntil tre år hvis andelseier har bodd i boligen i minst ett av de to siste år. Utleie i andre tilfeller kan godtas ved særlige grunner, jf. burettslagslova § 5-6. Utleie forutsetter at leiligheten har forsvarlige radonverdier. Se også borettslagets vedtekter og konferer megler ved spørsmål.
Bruksoverlating er ihht. styret ikke tillatt uten styrets samtykke og godkjennelse av leietaker. Søknad må sendes skriftlig til styret. Ulovlig bruksoverlating anses som brudd på borettslagsloven og kan føre til salgspålegg og fravikelse. Kortidsutleie over 30 dager pr år er ikke tillatt.
Diverse
Selgers beskrivelse av det mest positive ved eiendommen:
"Hyggelige naboer. Sentralt kollektivtilbud, Torshovdalen rett over gaten, kort avstand til Torshov, Sagene, Storo, Nydalen, Løren. Carls med arrangementer hele uken for alle og en hver. Grefsenkollen for de som vil ta seg en treningstur med fin utsikt."
Beliggenhet og tomteforhold
Beliggenhet og tomteforhold
Beliggenhet
Trondheimsveien 169 er beliggende i et attraktivt og sentrumsnært område, med nærhet til det meste du har behov for i hverdagen.
Kollektivtransport
Leiligheten har svært gode kollektivforbindelser med både buss og trikk i umiddelbar nærhet langs Trondheimsveien. Fra Sinsen og Carl Berner er det kort vei til T-banen, som gir rask tilgang til sentrum, marka og byens universiteter og høyskoler. 21-bussen går med hyppige avganger fra busstoppet Københavngata. Linjen tar deg til Majorstuen, Bislett og Tjuvholmen mot vest, og Carl Berner og Helsfyr mot øst. 31-bussen går også døgnet rundt og sikrer enkel transport til og fra byen, og Flybussen stopper på Rosenhoff to ganger i timen.
Dagligvare og servicetilbud
Området byr på et bredt utvalg av servicetilbud med nærbutikker, kafeer, restauranter, treningssentre og grønne byrom rett utenfor døren. Storo Storsenter, med rundt 130 butikker, ligger også i nærheten og gir et stort og variert handelstilbud. Langs Trondheimsveien finnes dessuten et godt utvalg av take away-steder, bakeri, kiosker og andre hverdagsfunksjoner.
Aktivitetstilbud
Leiligheten ligger flott til ved Torshovdalen og de sjarmerende kolonihagene på Rodeløkka. Området har flere rekreasjonsmuligheter, inkludert en hyggelig og velstelt bakgård med gode rammer for grilling og sosiale sammenkomster. Torshovparken, Sofienbergparken og Botanisk hage ligger alle innen kort gangavstand. For frilufts- og aktivitetsglade er det enkelt å ta bussen opp til Årvoll, hvor Grefsenkollen Alpinsenter og Lillomarka byr på helårsmuligheter for turer og naturopplevelser.
Barnehage og skole
Det familievennlige nabolaget rundt Trondheimsveien har et godt tilbud av barnehager og skoler i nærområdet. Eiendommen sogner til Sinsen barneskole. Videre ligger Sinsen barnehage, Dynekilen barnehage og Rosenhoff barnehage i gangavstand.
Adkomst
Det vil bli skiltet med Krogsveen visningsskilt ved fellesvisninger.
Barnehager, skoler og fritid
Eiendommen sogner til Sinsen barneskole.
Informasjon om tilhørende skolekretser er hentet fra Prognosesenteret som dataleverandør, og tilhørigheten kan årlig endres av kommunen. Dersom skole- og barnehagetilbud er av betydning for kjøpet, ber vi om at det rettes en særskilt henvendelse til kommunen/bydelsadministrasjonen for oppdatert informasjon.
Beskrivelse av tomt
Eiertomt på 1 895 kvm som tilhører borettslaget.
Parkering
Borettslaget har 6 parkeringsplasser som fordeles etter loddtrekning.
Eiendommen med i ordning for beboerparkering i Oslo Kommune, sone D indre by.
Prisene gjelder for ett år, og inkluderer MVA. Det er mulig å velge månedlig betaling.. Satsene p.t er:
Bensinbil, dieselbil, hybridbil, ladbar hybridbil: 6200 kroner
Elbil: 2090 kroner
Motorsykkel og moped: 3100 kroner
El-motorsykkel og el-moped: 1045 kroner
Videre gjelder gateparkering etter områdets bestemmelser.
Vei, vann og avløp
Eiendommen har adkomst via kommunal vei med private stikkveier med felles vedlikeholdsansvar for Borettslaget.
Eiendommen er tilknyttet kommunalt ledningsnett via private stikkledninger. Borettslaget er ansvarlig for private stikkledninger til bygningen.
Regulerings-og arealplaner
Eiendommen er regulert til boligbebyggelse med tilhørende anlegg i henhold til reguleringsplan S-5239 datert 20.11.2024 med tilhørende reguleringsbestemmelser.
Utdrag av planer i nærområdet:
Saksnummer 2025/04555 - Byggesak. Østgaards gate 44 - oppføring av leilighetsbygg. Det er gitt rammetillatelse om riving av trehuset på eiendommen og oppføring av et nybygg med 34 boliger. Nybygget er et frittliggende punkthus med kjeller, ti etasjer og flatt tak med takterrasse og et takoppbygg. Fasadene utføres med slipt betongoverflate med tilslag av sandfarget pigment og felter med støpt relieff. Vinduer og franske balkonger har stående formater og plasseres i en streng rytme i forhold til hverandre. Vinduene sitter dypt i vegglivet, og innvendige smyg utføres i tre og utvendige smyg utføres med gyllen overflate. Det opparbeides uteoppholdsareal på eiendommens ubebygde arealer. Igangsettingstillatelse gitt 10.09.2025. Denne saken er en fortsettelse av sak 202108855.
Saksnummer 202451391 - Reguleringssak. Hasleveien 28, 30, 36, 38 og Sinsenveien 11 - utarbeidelse av planforslag. Hensikten med reguleringsplanen er å muliggjøre en transformasjon av dagens lukkede næringsbygg til et åpent og levende bygg med bolig, næring, kultur og servicefunksjoner. For å oppnå dette foreslås ombruk av 90 % av eksisterende bygningsmasse, i tillegg til nye tilbygg, påbygg og ny bebyggelse. Deler av eksisterende bygg skal rives for å etablere to allment tilgjengelige akser gjennom området fra Sinsenveien til Hasleveien. En viktig ambisjon i prosjektet er å etablere et torg mot krysset Sinsenveien x Konghellegata x Olaf Schous vei som vil bidra til å rydde opp området og gi det en tydelig identitet som et nabolagstorg.
Opplistingen er ikke uttømmende. Interessenter bør sette seg inn i planene på Oslo Kommune sine hjemmesider. Utsnitt av plan med tilhørende bestemmelser kan fås ved henvendelse til megler.
Økonomi
Økonomi
Boligens kostnader
Felleskostnadene er kr 5 094,- pr. mnd. og inkluderer: Varrmtvann, fjernvarme, fibernett, dugnadsbidrag, renter og nedbetaling av fellesgjeld, trappevask, styrehonorar, forretningsførsel, strøm felleskostnader, felles forsikring m.m
Felleskostnadene justeres normalt en til to ganger årlig i forhold til borettslagets faktiske utgifter. Styret gjorde en økning på 3% den 01.11.2025 i takt med konsumprisindeksen.
Felleskostnadene fordeles slik:
Dugnadsbidrag: 50
Særfordelt lån renter: 570
Felleskostnader: 3 325
Renter og avdrag: 498
Særfordelt lån avdrag: 337
Renter og avdrag: 227
Trappevasktillegg: 87
Det er vedtatt eiendomsskatt i Oslo kommune som p.t ikke påfaller eiendommen.
Nåværende eier har et strømforbruk som tilsvarer ca. kr 1 300,- pr. år. / 1 200 kwh. pr. år.
Boligen er tilknyttet Global Connect med hastighet 1000/1000. Kostnad inkludert i fellesutgifter. Dekoder medfølger ikke.
Utgiftene er basert på nåværende eiers forbruk. Kjøper må selv tegne innboforsikring.
Opplysninger om fellesgjeld
Andel formue er kr 8 937,- pr. 31.12.2024
Andel fellesgjeld er kr kr 180 346,- pr. 21.11.2025
Total fellesgjeld for boligselskapet er kr 10 063 797,6,- pr. 21.11.2025 og lånevilkårene er:
#1
Lånenummer: 114490139, Husbanken
Annuitetslån, 4 terminer per år.
Rentesats per 21.11.2025: 4.28% pa.
Antall terminer til innfrielse: 24
Saldo per 21.11.2025: 1 961 036
Andel av saldo: 30 716
Første termin/første avdrag: 20.12.2006 ( siste termin 20.09.2031 )
#2
Lånenummer: 12123821821, DNB Bank ASA
Annuitetslån, 4 terminer per år.
Rentesats per 21.11.2025: 5.25% pa.
Antall terminer til innfrielse: 68
Saldo per 21.11.2025: 5 926 533
Andel av saldo: 115 544
Første termin/første avdrag: 30.03.2024 ( siste termin 30.09.2042 )
#3
Lånenummer: 16365319603, DNB Bank ASA
Annuitetslån, 4 terminer per år.
Rentesats per 21.11.2025: 5.25% pa.
Antall terminer til innfrielse: 84
Saldo per 21.11.2025: 2 176 228
Andel av saldo: 34 087
Første termin/første avdrag: 30.12.2022 ( siste termin 30.09.2046 )
Omkostninger
4 300 000,00 Prisantydning
180 346,00 Andel av fellesgjeld
--------------------------------------------------------
4 480 346,00 Pris inkl. fellesgjeld
Omkostninger
9 950,00 Gjensidige Boligkjøperpakke (valgfri)
545,00 Tinglysing hjemmel
545,00 Tinglysing panterettsdokument
--------------------------------------------------------
11 040,00 Omkostninger totalt
--------------------------------------------------------
4 491 386,00 Totalpris inkl. omkostninger
--------------------------------------------------------
Dersom kjøper ikke er medlem av boligbyggelaget, må det påregnes en innmeldingsavgift og årlig medlemsgebyr pr. ny andelseier. Dette faktureres direkte fra boligbyggelaget.
Dersom borettslaget har fellesgjeld, vil leilighetens andel av fellesgjelden komme i tillegg til kjøpesummen. Denne gjelden skal ikke innbetales i oppgjøret, men følger leiligheten.
Det tas forbehold om endringer i avgifter og gebyrer.
Tilbud om lånefinansiering
Megler formidler gjerne kontakt med rådgiver hos vår samarbeidspartner BN Bank. De har konkurransedyktige betingelser samt rask og løsningsorientert behandling av din lånesøknad. Krogsveen mottar et honorar dersom lån opprettes.
Betalingsbetingelser
Kjøpesum inkludert omkostninger, samt pantedokument tilknyttet eventuelt lån, skal være disponibelt hos megler 2 virkedager før overtagelsen.
Annen viktig informasjon
Annen viktig informasjon
Eier
Emil Lovin Johannesen
Informasjon om borettslaget
Leiligheten er tilknyttet Borettslaget Trondheimsveien 165-173. Borettslaget består av 65 leiligheter og 2 næringslokaler.
Forretningsfører er Oslo og Omegn Boligforvaltning.
Andelene yter dugnadsbidrag på kr. 50,-/mnd over felleskostnadene. Bidraget refunderes til andeler som bidrar på pliktige dugnader. Ved omsetning følger refusjonen andelen.
Husdyr kan kun holdes etter skriftlig søknad til styret for borettslaget
Foretatt påkostninger de senere år:
2024: Installere vannmåler på fellesinntak, bytte vannkran på vaskeri, bytte lås i 165, bytte av en takhette, gjennomført brannrunde.
2023: Parkeringsplasser utbedret, asfaltert i bakgården, avsluttet takprosjektet, beplantet rundt søppelskur, planlagt og hentet tilbud på innstallering av vannmåler på felles inntak.
2022: Utført utvendige arbeid på taket for å øke levetiden på dagens taktekke, utført
service på ekspansjonskar på fyrrommet, ny belysning ute, Utbedring av innvendig tak ifm.
med skade skade(armeringskorrosjon) i 15 toppleiligheter.
2021: Maling av trappeoppganger fullført. Ny vaskemaskin fellesvaskeri. Utbedring av trapp i bakgården. Tilstandsvurdering av taket og dagens taktekke (arbeid for å øke levetid planlagt gjennomført 2022). Utbedring av skade(armeringskorrosjon) i en andel og arbeid med å avdekke om andre toppleiligheter var rammet av samme skade som i andelen det først ble oppdaget i (arbeidet fortsetter inn i 2022) Det ble gjort en tilstandsvurdering av fjernvarmeanlegget i form av vannprøve og sjekk av ekspansjonskar.
Styret har gjort ferdig arbeidet med budsjettet for 2026.
Med virkning fra 01.01.2026 gjennomføres følgende justeringer:
• Brøkfordelte/uspesifiserte felleskostnader KPI-justeres med 3%
• Tillegg for trappevask økes til faktisk kostnad 2025 + KPI-justeres som tilsvarer 99 kr per mnd.
• Parkeringsleie for beboere økes til kr 670,- per måned.
• Rentekostnadene på særfordelte lån og fellesgjeld går ned desember 2025(særfordelt) og januar 2026(fellesgjeld).
I forbindelse med ny avtale om bredbånd vil kostnadsposten vises separat på faktura. Dette påvirker ikke totalsummen for felleskostnader, men gjør det enklere for andelseiere med behov for dokumentasjon ved refusjon av bredbånd.
Bakgrunnen for justeringen i 2026-budsjettet er: Forsikringskostnadene er varslet økt med 10% , og kommunale avgifter er varslet økt med 15,93% i 2026. Endringen på internett-avtalen innebærer at økte kostnader for tjenester og leverandører utover vanlig KPI-justering er dekket. Det er samtidig inngått avtaler om Norgespris på fjernvarme og strøm, og dette er lagt til grunn i budsjettet, men effekten vil avhenge av faktisk forbruk og temperatur gjennom året.
Borettslaget har ikke forkjøpsrett.
I henhold til borettslagets vedtekter må kjøper godkjennes av styret som ny andelseier. Det er kjøpers ansvar at styregodkjenning blir gitt, men styret kan ikke nekte godkjenning uten saklig grunn.
Iht. burettslagslova kan man bare eie én andel i borettslaget. Kun fysiske personer kan være andelseiere.
Borettslag har anledning til å være tilknyttet et sikringsfond som dekker eventuelt manglende innbetaling av felleskostnader. Dette borettslaget er ikke tilknyttet et slikt fond, noe som vil kunne medføre en risiko for økte felleskostnader dersom andre andelseiere ikke betaler sine felleskostnader. Borettslaget har imidlertid legalpant i andelen, og manglende betaling av felleskostnader kan dermed tvangsinndrives av borettslaget.
Dokumenter for borettslaget kan fås ved henvendelse til megler.
Overtakelse
Etter nærmere avtale. Overtakelse kan tidligst skje etter at forkjøpsretten for øvrige andelseiere i borettslaget og eventuelt medlemmer av boligbyggelaget er avklart, samt at styrets godkjennelse er avklart.
Boligselgerforsikring
Selger har i forbindelse med salget tegnet boligselgerforsikring levert av Gjensidige.
Boligselgerforsikringen dekker selgers ansvar etter avhendingsloven begrenset oppad til kr 14 millioner. Dersom kjøper oppdager forhold ved eiendommen som hen mener utgjør en mangel ved eiendommen, vil Gjensidige behandle reklamasjonen på vegne av selger. Forsikringsvilkår kan fås ved henvendelse til megler.
Vedlagt salgsoppgaven følger selgers egenerklæringsskjema og tilstandsrapport. Interessenter må sette seg inn i dokumentene før bud inngis.
Boligkjøperforsikring
Innen kontraktsmøtet må kjøper ta stilling til om det ønskes å bestille Boligkjøperpakken gjennom Gjensidige. I denne gunstige pakken er boligen ferdig forsikret og inkluderer rettshjelpsforsikring, også kalt Boligkjøperforsikring. Rettshjelpsforsikring gir trygghet og tilgang på profesjonell juridisk hjelp dersom det oppdages uventede feil eller mangler det første året etter overtagelse. Forsikringsselskapet behandler i så fall ethvert mangelskrav kjøper måtte ha overfor selger.
Boligkjøperpakken inkluderer bygningsforsikring for hus og hytte, innboforsikring, flytteforsikring og dobbel rentedekning - i situasjoner hvor kjøper ikke får solgt nåværende primærbolig.
Kjøper mottar ingen særskilt faktura for Boligkjøperpakken da kostnaden det første året legges til kjøpesummen for boligen. Det gjøres oppmerksom på Krogsveen mottar et honorar for denne formidlingen.
Produktark for Boligkjøperpakken ligger vedlagt i salgsoppgaven.
Dersom ikke boligkjøperpakke ønskes kan kun rettshjelpsforsikring, også kalt boligkjøperforsikring, tegnes særskilt via megler. Rettshjelpsforsikringen varer i 5 år fra overtagelse og leveres gjennom Gjensidige. Ta kontakt med megler for ytterligere informasjon.
Selskap og privatpersoner som driver med kjøp/salg/utvikling som ledd i egen næringsvirksomhet kan ikke tegne boligkjøperpakke eller rettshjelpsforsikring.
Budgivning
Forbrukerinformasjon om budgivning er vedlagt denne salgsoppgaven og er også på vår hjemmeside Krogsveen.no. Alle bud og budforhøyelser må inngis skriftlig. I tillegg må legitimasjon være fremlagt sammen med signatur fra budgiver.
Vi oppfordrer til å gi bud elektronisk via GI BUD-knappen på eiendommens hjemmeside på Krogsveen.no. Da vil samtlige vilkår bli oppfylt.
Eventuelle forhøyelser eller endringer av budet kan bekreftes pr SMS eller på e-post. Vi oppfordrer alltid til å kontakte megler pr. telefon i tillegg da forsinkelser i SMS og e-post kan forekomme.
For at budene skal kunne bli behandlet og videreformidlet skriftlig til alle involverte parter, må alle bud ha en tilstrekkelig lang akseptfrist, jf. eiendomsmeglingsforskriften § 6-3.
Selger må også skriftlig akseptere budet før aksept kan formidles til budgiver. Akseptfrist bør derfor være på minimum 30 minutter, og budforhøyelser må derfor skje i god tid før fristens utløp.
Bud i forbrukerforhold kan uansett ikke settes med kortere frist enn kl. 12.00 første virkedag etter siste annonserte visning. I tillegg kan ikke budet ha forbehold om at det skal holdes hemmelig ovenfor øvrige interessenter. Megler har iht lov om eiendomsmegling ikke anledning til å videreformidle disse budene, og de vil dermed heller ikke bli journalført.
Etter at eiendommen er solgt vil kjøper og selger få tilsendt budjournal. Øvrige budgivere kan få utlevert kopi av budjournalen i anonymisert form.
Hvitvaskingsreglene
I henhold til lov om hvitvasking og terrorfinansiering har megler plikt til å gjennomføre kontrolltiltak overfor kunder, herunder fullmektiger. Dette innebærer bl.a. å bekrefte kunders og reelle rettighetshaveres identitet på bakgrunn av fremvist gyldig legitimasjon eller på annen godkjent måte, samt å innhente opplysninger om kundeforholdets formål og tilsiktede art.
Dersom slike kundetiltak ikke kan gjennomføres, kan megler ikke etablere kundeforholdet eller utføre transaksjonen.
Hvis kjøper ikke bidrar til gjennomføring av kundekontrollen og dette fører til at transaksjonen blir forsinket eller ikke kan gjennomføres, vil dette ansees som mislighold av avtalen og gi selger rettigheter etter avhendingslova kapittel 5. I tilfeller der selger ikke bidrar til gjennomføring av løpende kundekontroll underveis i oppdraget, er det selger som misligholder sine forpliktelser etter avtalen og gi kjøper rettigheter etter avhendingslovens kapittel 4. Partene er selv ansvarlige for eventuelle kostnader og ansvar dette kan medføre. Eiendomsmegleren eller eiendomsmeglingsforetaket kan ikke holdes ansvarlig for de konsekvenser dette vil kunne få for partene eller andre som har interesser i eiendomshandelen.
Kjøper oppfordres til å innbetale kjøpesummen som ikke kommer fra låneinstitusjon i én samlet innbetaling fra egen konto i norsk bank. Megler har plikt til å melde fra til Økokrim om eiendomshandler som fremstår som mistenkelige. Melding sendes Økokrim uten at partene varsles.
Personopplysningsloven
I henhold til personopplysningsloven gjør vi oppmerksom på at interessenter kan bli registrert for videre oppfølging.
Lovanvendelse
Generelle bestemmelser
Salgsoppgaven er basert på de opplysningene selger har gitt til megler, den bygningssakyndiges tilstandsrapport, samt opplysninger innhentet fra kommunen, Kartverket og andre tilgjengelige kilder. Det er viktig at kjøper setter seg grundig inn i alle salgsdokumentene, herunder salgsoppgave, tilstandsrapport og selgers egenerklæring. Kjøper anses kjent med forhold som er tydelig beskrevet i salgsdokumentene, og slike forhold kan ikke påberopes som mangler. Dette gjelder uavhengig av om kjøper har lest dokumentene. Alle interessenter oppfordres til å undersøke eiendommen nøye, gjerne sammen med fagkyndig før bud inngis. Kjøper som velger å kjøpe usett kan ikke gjøre gjeldende som mangel noe han burde blitt kjent med ved undersøkelsen.
Dersom det er behov for avklaringer, anbefaler vi at interessenter rådfører seg med eiendomsmegler eller egne rådgivere før det legges inn bud.
En bolig som har blitt brukt i en viss tid, har vanligvis blitt utsatt for slitasje og skader kan ha oppstått. Slik bruksslitasje må kjøper regne med, og det kan avdekkes enkelte forhold etter overtakelse som nødvendiggjør utbedringer. Normal slitasje og skader som nødvendiggjør utbedring, er innenfor hva kjøper må forvente og vil ikke utgjøre en mangel.
Kjøper og selgers rettigheter og plikter reguleres av avtalen mellom partene, samt informasjonen som har vært tilgjengelig for kjøperen i forbindelse med handelen. Avtalen utfylles av avhendingsloven, og det gjelder ulike avtalevilkår avhengig av om kjøper er forbrukerkjøper eller ikke. Dette er nærmere beskrevet nedenfor.
På grunn av ulike avtalevilkår kan selger vurdere bud fra en som ikke er forbruker, ulikt fra en forbrukers bud. Dersom kjøper ikke er forbruker, er selger sitt mulige mangelsansvar begrenset fordi eiendommen selges "som den er". Selger kan ikke ta «som den er»- forbehold overfor en forbrukerkjøper. Selv et lavere bud fra en som ikke er forbruker kan foretrekkes fordi begrensningen i mulig mangelsansvar kan ha egenverdi for selger. Selger står fritt til å forkaste eller akseptere ethvert bud, og er for eksempel ikke forpliktet til å akseptere høyeste bud.
Budgiver skal i budskjema avgi egenerklæring om budgiver er forbruker eller næringsdrivende/ person som hovedsakelig handler som ledd i næringsvirksomhet. Budgivere får informasjon dersom andre bud er inngitt av en som ikke er forbruker.
Forbrukerkjøp - definisjon
Med forbrukerkjøp menes kjøp av eiendom når kjøperen er en fysisk person som ikke hovedsakelig handler som ledd i næringsvirksomhet.
Forbruker – avtalevilkår
Eiendommen har en mangel dersom den ikke er i samsvar med kravene som følger av avtalen, eller det foreligger brudd på bestemmelsene i avhendingsloven §§ 3-2 til 3-8. Hvis eiendommen ikke er i samsvar med det kjøperen må kunne forvente ut ifra alder, type og synlig tilstand, kan det være grunnlag for mangelskrav. Det samme gjelder hvis det er holdt tilbake eller gitt uriktige opplysninger om eiendommen. Dette gjelder likevel bare dersom man kan gå ut ifra at det virket inn på avtalen at opplysningen ikke ble gitt eller at mangelskravet ikke blir rettet i tide på en tydelig måte.
Boligen kan ha en mangel etter avhendingsloven § 3-3 andre ledd, dersom det er avvik mellom opplyst og faktisk innvendig areal, forutsatt at avviket er på 2% eller mer og minimum 1 kvm.
Ved beregning av et eventuelt prisavslag eller erstatning må kjøper selv dekke tap/kostnader opptil et beløp på kr 10 000 (egenandel).
Ikke-forbruker (næringsdrivende) – definisjon
Hvis kjøper er en juridisk person, eller en fysisk person som hovedsakelig handler som ledd i næringsvirksomhet, vil kjøpet ikke anses som et forbrukerkjøp.
Ikke-forbruker – avtalevilkår
Eiendommen har en mangel dersom den ikke er i samsvar med kravene som følger av avtalen.
Eiendommen selges «som den er», og selgers ansvar utover det konkret avtalte er da begrenset etter avhendingsloven § 3-9, første ledd andre setning.
Avhendingsloven § 3-3 andre ledd fravikes, og hvorvidt boligens arealsvikt utgjør en mangel vurderes etter avhendingsloven § 3-8.
Informasjon om kjøpers undersøkelsesplikt, herunder oppfordringen om å undersøke eiendommen nøye, gjelder også for kjøpere som ikke anses som forbrukere.
Det forutsettes at hjemmel overføres til kjøper. Hvis kjøper ikke ønsker hjemmelsoverføring av eiendommen, må det tas forbehold om dette i budet.
Meglers vederlag
Meglers vederlag betales av selger og er avtalt til:
Vederlag: 1,00 % av salgssummen inkl. eventuell fellesgjeld.
Vederlag:
Kontroll av hjemmel og heftelser kr 2 900,00
Kunderabatt – Start Smart kr -6 000,00
Markedsføringspakke kr 28 250,00
Oppgjør kr 7 500,00
Start smart - Kjøpsrådgivning kr 6 000,00
Tilrettelegging kr 17 000,00
Visninger pr stk / Overtagelse kr 4 000,00
Utlegg:
Eierskiftegebyr forretningsfører - OBOS kr 6 570,00
Innhenting av informasjon forretningsfører kr 2 750,00
Tinglysing sikring kr 545,00
Andre utgifter:
AX tilstandsrapport leilighet kr 9 000,00
Boligselgerforsikring Gjensidige Andel/Aksje regnes av prisant. kr 11 567,00
Boligstyling/rådgivning kr 3 125,00
Foto kr 4 500,00
Vi er opptatt av verdiskapning, og har knyttet til oss samarbeidspartnere som skal sikre våre kunder de beste produkter og tjenester;
• I forbindelse med forberedelse av salget, innhenter vi informasjon om eiendommen hovedsakelig fra vår samarbeidspartner Amibita.
• Gjensidige leverer boligselgerforsikring og tilbyr bygningsforsikring
• Boligkjøperforsikring leveres av Hiscox og med Sedgwick som skadebehandler, og er formidlet gjennom Gjensidige.
• BN bank tilbyr finansieringsløsninger
• Vår avdeling Krogsveen Pluss tilbyr flyttetjenester som utvask, visningsvask, lager, tømming og transport av flyttelass, i tillegg til å formidle kontakt med Flip for overflateoppussing.
• I forbindelse med overtagelse av eiendommen tilbyr Overo avtale om strøm, alarm og bredbånd.
• Krogsveen er, sammen med øvrige bransjeaktører, medeier i Bomega AS som tilbyr den digitale annonseringsplattformen Hjem.
Opplysninger om oppdraget
Oppdragsnummer 37-0507/25
Eiendomsmegler Krogsveen AS, avd. Hasle
Valle View, Innspurten 11D, 0663, OSLO
950007613
Oppdragets KR-kode KR37.25507
Dato
Sist oppdatert: 18. januar 2026 kl. 12:27
Dokumenter
Dokumenter
PDF – 942 KB
PDF – 2 MB
PDF – 746 KB
PDF – 312 KB
PDF – 29 KB
PDF – 127 KB
PDF – 392 KB
Område
Legg til steder som er viktige for deg
Visning
Unngå doble boligrenter
Vi tilbyr gunstig forsikring.
Vurderer du utleie?
Få et tilbud fra Utleie KrogsveenHva koster lånet?
Sjekk estimert lånekostnadVil du varsles om lignende boliger?
Ved å lagre ditt boligsøk hos oss får du beskjed når vi har en bolig som ligner denne, før den legges ut på markedet!

